Сущность разрядно-импульсной технологии заключается в том, что скважина, заполненная мелкозернистым бетоном или цементным раствором обрабатывается серией высоковольтных электрических разрядов. При этом возникает электрогидравлический эффект, в результате которого формуется тело сваи или корня анкера, цементируется, уплотняется окружающий грунт. Первоначальный диаметр скважины 130...300 мм в результате обработки расчетной серией разрядов может быть увеличен, в зависимости от энергии, подаваемой в скважину и гидрогеологических условий площадки, более чем в 2 раза. Окружающие грунты уплотняются, снижается пористость в зоне воздействия ударного импульса.
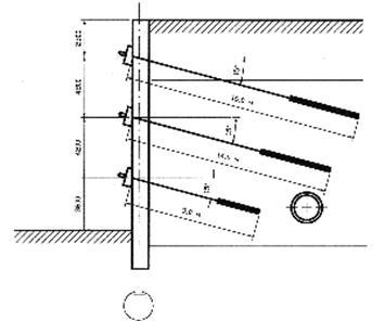
Схема обработки скважины по разрядно-импульсной технологии
1- ствол сваи после обработки;
2- излучатель энергии;
3- разрядная станция;
4- растворонасос;
5- зона цементного грунта;
6- зона уплотнения грунта;
Динамическое воздействие, возникающее в процессе формования, за пределами зоны обработки незначительно и не оказывает вредного воздействия на усиливаемые конструкции и рядом стоящие здания. Разрядно-импульсная технология экологически безвредна. Данная технология позволяет формовать сваи и анкера различной конфигурации, с уширением в одном или нескольких уровнях.
Изготовленные по этой технологии сваи получили сокращенное наименование - сваи РИТ. Инструкция по использованию разрядно-импульсной технологии при изготовлении свай разработана НИИОСП им. Герсеванова в 1993 году. В 1997 году выпущены "Рекомендации по применению буроинъекционных свай", в которых регламентированы технология устройства и методика расчета свай, изготавливаемых по разрядно-импульсной технологии.
Схема изготовления постоянных и временных грунтовых анкеров с обработкой корня анкера по разрядно-импульсной технологии отрабатывалась при научном сопровождении НИИОСП им. Н.М. Герсеванова. Анкера подобного типа получили наименование "Анкер НИИОСП-97".
Разрядно-импульсная технология "обладает значительным преимуществом по сравнению с традиционными методами в комплексной механизации и автоматизации технологических операций строительных работ" (из заключения НИИМосстроя).
Технология позволяет:
-свести к минимуму земляные работы и водопонижение при строительстве нулевого цикла;
-производить работы из подвала (высотой не менее 2,4 м), цокольного или первого этажа, не создавая неудобства жителям вышележащих этажей и окружающих зданий;
-применять легкие малогабаритные станки.
-осуществлять проходку в неустойчивых грунтах при оплывании стенок скважины без обсадных труб.
-получить наибольшую несущую способность свай и анкеров при минимальных количестве выбуренного грунта и длине сваи или корня анкера.
Область применения
Широко применяется рязрядно-импульсная технология в следующих областях геотехнического строительства: буронабивные сваи, постоянные и временные грунтовые анкера, нагельное крепление откосов, цементация стен и фундаментов зданий и сооружений, цементация грунтов, глубинное уплотнение песчаных грунтов.
Сваи РИТ успешно применяются:
-при изменении архитектурно-планировочных и конструктивных решений существующих зданий (надстройка, увеличение пролетов и нагрузок, увеличение высоты подвального этажа и пр.);
-при строительстве подземных гаражей под зданием и в условиях стесненного пространства;
-для устройства подпорных стен и приямков, ограждений и укреплений подземных переходов и коллекторов, строительства набережных, и других инженерных сооружений.
Сваи РИТ имеют несущую способность в 2-3 раза выше, а стоимость одной тонны несущей способности в 1,5-2,0 раза меньше, чем у буроинъекционных и буронабивных свай, изготовленных с использованием традиционных технологий.
Высокая несущая способность свай, изготовленных по разрядно-импульсной технологии (сваи РИТ) обусловлена следующими факторами:
-расширением ствола сваи;
-уплотнением грунта вокруг ствола и под пятой сваи;
-частичной цементацией грунта вокруг ствола;
Сопротивление грунта под пятой сваи увеличивается в 1,3...2,0 раза, а на боковой поверхности- в 1,2...1,5 раза.
Один из компонентов электроразрядной технологии -магнитно-импульсная обработка твердеющей смеси существенно повышает прочность и однородность мелкозернистого бетона, качество и надежность сваи.
Наиболее яркими характерными примерами применения свай РИТ при реконструкции являются усиление фундаментов при реконструкции Центральной музыкальной школы при Московской консерватории, комплекса зданий Большого театра, Старого Гостиного двора.
Расчет несущей способности сваи РИТ выполняется по
"Рекомендациям по применению буроинъекционных свай" (НИИОСП,1997 г.), разработанным в соответствии с требованиями главы СНиП.2.02.03-85 "Свайные фундаменты. Нормы проектирования", главы СНиП.2.03.01-04 "Бетонные и железобетонные конструкции. Нормы проектирования", и "Рекомендациями по проектированию конструкций из мелкозернистого бетона".
Несущая способность свай РИТ определяется:
-расчетом прочности ствола сваи по материалу;
-расчетом на основе физико-механических характеристик грунтов конкретной площадки;
-по результатам полевых испытаний.
Расчет несущей способности свай по грунту является приближенным и может использоваться только как предварительный. Окончательное значение несущей способности сваи принимается с учетом результатов статических испытаний на строительной площадке. Испытание свай статической нагрузкой является обязательным и проводится в соответствии с ГОСТ 5686-94.
Расчет свай по деформациям выполняется в соответствии с разделом 6 и приложениями 3 и 4 СНиП.2.02.03-85.
Расчет усиления фундаментов существующих зданий с применением свай РИТ производится по "Рекомендациям по применению буроинъекционных свай".
В качестве материала свай РИТ используются различные типы мелкозернистых бетонов, применяемых в зависимости от условий строительства и характера работы свай в конструкции.
Для приготовления мелкозернистых бетонов применяется цемент марки не ниже 400 со сроком схватывания не менее 3 часов, а в качестве инертного заполнителя - песок мелко- и среднезернистый с модулем крупности не более 2,0. Морозостойкость и водонепроницаемость бетона должны соответствовать маркам, установленным проектом, но не ниже морозостойкости Р-75 и водонепроницаемости W4
Сваи РИТ армируются пространственными армокаркасами в зависимости от вида и величины действующей нагрузки. Арматура должна иметь конструктивные элементы, центрирующие ее в скважине и обеспечивающие требуемую толщину защитного слоя бетона не менее 2,5 см.
Наклон свай РИТ к вертикальной оси свыше 20° не рекомендуется.
Расчет свай РИТ в составе подпорной стенки на действие горизонтальной нагрузки особенностей не имеет и должен производиться как для обычных буронабивных свай с диаметром, равным буровому диаметру скважины.
Уже несколько лет сваи РИТ с успехом применяются при реконструкции существующих и строительстве новых зданий и сооружений. Область применения свай РИТ достаточно широка и определяется следующими основными направлениями:
-Усиление существующих фундаментов путем передачи на сваи всей или только части нагрузки от сооружения на фундамент;
-Устройство свайных фундаментов при новом строительстве в стесненных условиях в непосредственной близости от существующих зданий;
-Устройство ограждающих конструкций, аналогичных стенкам из бурокасательных свай и "стенам в грунте".
При усилении существующих фундаментов конструктивные решения практически аналогичны тем, что применяются для буроинъекционных свай, изготовляемых по традиционной технологии и сводятся, в основном, к трем схемам, приведенным на рисунках 1-3. На рисунках 1 и 2 приведены схемы устройства так называемых "козловых" свай, когда они забуриваются под некоторым углом через тело существующего фундамента либо с двух сторон стены, либо с одной. В последнем случае сваи устраиваются через одну с разным углом наклона.
Значительно реже применяется схема, приведенная на рисунке 3. Пробуренные вертикально вдоль фундамента сваи воспринимают нагрузку от здания через специально закрепленные в теле фундамента траверсы.
Рисунок 1 Рисунок 2 Рисунок 3
Конструктивные решения устройства свай РИТ при новом строительстве особенностей не имеют.
Отличительной чертой применения свай РИТ в новом строительстве и при усилении существующих фундаментов является возможность получения высокой несущей способности свай при ее минимальных буровом диаметре и длине. Несущая способность свай с буровым диаметром 150- 250 мм оказывается не меньше, чем у забивных свай сечением 300х300 мм той же длины.
Применение свай РИТ в ограждающих конструкциях позволяет при минимальной элевации грунта при бурении получить конструкцию, по жесткости и проницаемости практически не уступающую "стене в грунте", способную, кроме того, нести достаточно большую вертикальную нагрузку. Благодаря тому, что грунт вокруг свай сильно уплотняется, а пески к тому же и цементируются, появляется возможность устройства свай на относительно большом расстоянии друг от друга, при этом нет необходимости устраивать забирки в межсвайном пространстве, т.к. в этом случае грунт между свай достаточно устойчив и, к тому же, обладает малой водопроницаемостью.
Сваи в подпорной стенке могут располагаться как в один ряд, так и в несколько рядов при размещении их в шахматном порядке (см. рисунки 4 и 5). Для обеспечения пространственной жесткости стенки из нескольких рядов свай предусматривается устройство обвязочного пояса по верху свай в виде железобетонного ростверка; при большом расстоянии между сваями иногда дополнительно предусматривается устройство на нескольких уровнях свай уширений, создаваемых по РИТ-технологии. Рисунок 4 Рисунок 5
Для повышения водонепроницаемости подпорных стен из свай РИТ можно применить цементацию межсвайного пространства, также выполняемую по РИТ-технологии. При этом конструкция приобретает дополнительную жесткость.
Впервые в мире - грунтовые анкера, изготовленные по разрядно - импульсной технологии.
Грунтовые анкера и нагели являются относительно новыми для отечественного строительства геотехническими конструкциями. Они особенно эффективны при строительстве в тесной городской застройке, при разработке глубоких котлованов, для укрепления откосов и особенно в качестве элемента "стены в грунте".
При научном сопровождении НИИОСП им. Н.М.Герсеванова была разработана конструкция нового типа анкеров, устраиваемых в грунте с обработкой корня по разрядно-импульсной технологии. Такие анкера получили название "НИИОСП-97".
Несущая способность анкеров НИИОСП-97 в 1.5-2.5 раза превышает этот показатель для анкеров, устраиваемых по традиционным технологиям, в том числе по технологии фирмы "Бауэр". Благодаря возможности создания в строго ограниченной зоне значительного избыточного давления на стенках скважины, технология позволяет отказаться от применения тампонов при проведении инъекции, проведения многоступенчатой технологии зонной цементации, осуществляя при этом строго контролируемый процесс опрессовки и уширения корня анкера в заданных точках.
Особенно эффективным данный тип анкеров оказался при устройстве корня в юрских глинах, которые, как известно, тяжело бурятся, а при применении промывки легко разжижаются и теряют свои механические свойства. РИТ-технология позволяет значительно сократить длину корня анкера и разрушить образовавшийся при бурении на стенках скважины слой слабого грунта за счет значительного даже в плотных глинах увеличения диаметра скважины (в 1,5 и более раз).
В качестве анкерного тяжа применяется, в основном, высокопрочная арматура винтового профиля класса Ат-1000 (Ат-VI) диаметром 25 и 32 мм. Кроме того, возможна установка многопрядевых тросовых анкеров.
Анкера, изготовленные по технологии РИТ, успешно применялись при строительстве ряда станций московского метрополитена, креплении подпорных стен при строительстве комплексов "Москва-Сити", развязки III-го транспортного кольца с Кутузовским проспектом, а также при строительстве ряда жилых комплексов в г. Москве.
В 1999 г. НИИОСП им. Н.М.герсеванова утвердил типовой технологический регламент устройства анкеров НИИОСП-97 при креплении подпорных стен.

Корень грунтового анкера, извлеченного из грунта.
Подпорная стенка набережной из буросекущихся свай, закрепленная грунтовыми анкерами.
Цементация грунтов, стен, фундаментов,
контакта "фундамент-грунт".
Данные виды работ выполняются как по традиционной технологии путем нагнетания под давлением цементного раствора в скважину, так и с применением разрядно-импульсной технологии, когда избыточное давление в скважине создается серией электрических разрядов.
Применение РИТ-технологии особенно эффективно там, где трудно или вообще невозможно установить в скважине тампон для опрессовки ее статическим давлением, либо эта операция сопряжена с большими трудозатратами.
При проведении цементационных работ используются электроразряды с энергией, позволяющей вести эффективное заполнение пустот, трещин и пор в цементируемой среде (кирпичная кладка, бетон и т.п.) без ее разрушения.
Цементация по РИТ-технологии производится до тех пор, пока не будет достигнут "отказ", когда последующая обработка электроразрядами не приводит к дальнейшему поглощению цементационного раствора цементируемой средой.
Качество цементации по РИТ-технологии ничем не уступает традиционной цементации, однако сам процесс становится значительно более контролируемым и менее трудоемким.
Качество цементации проверяется путем контрольной инъекции раствора в цементируемую среду как традиционным способом, так и с использованием РИТ.
Цементация фундаментов и контакта "фундамент-грунт" по РИТ-технологии с успехом была применена на ряде объектов городского строительства, в том числе на таких, как реконструкция Старого Гостиного двора, реконструкция комплекса зданий ГАБТ и др.
Цементация стен вспомогательного корпуса зданий ГАБТ и стен храма Вознесения Господня у Серпуховских ворот была выполнена также с применением разрядно-импульсной технологии. Успешная серия опытов в том же направлении была осуществлена при проведении работ по усилению стен Старого Гостиного двора.
Уплотнение грунтов с применением разрядно-импульсной технологии осуществляется путем проведения серии электрических разрядов в скважине, заполненной слабым электролитом, в качестве которого обычно используется водно-цементная суспензия. При этом улучшение физико-механических свойств грунта достигается не только в результате его уплотнения в околоскважинном пространстве, но и за счет его цементации. Кроме того, скважины, заполненные цементным раствором и пересекающие грунтовую толщу под разными углами, образуют с упрочняемым грунтом массив, иногда именуемый как "армогрунт". Такой массив имеет прочностные и деформационные показатели лучшие, чем у отдельно взятого уплотненного грунтового массива.
Данная технология улучшения физико-механических свойств грунта была с успехом применена на строительстве 4 и 5 опор транспортной развязки МКАД с Ярославским шоссе и при усилении основания дома №6 по Кутузовскому проезду.
Одной из самых главных операций технологического цикла считается контроль качества выполненных работ. При этом, выполняя все требования соответствующих ГОСТов и СНиПов в этой области, широко применяются дополнительные методы предпостроечного обследования объекта и оперативного контроля качества. Для уточнения геолого-гидрологического строения площадки и выявления неучтенных инженерных коммуникаций и пустот в грунте производится георадарное профилирование объекта, по результатам которой корректируется технология изготовления свай и, при необходимости, проект.
В процессе обработки скважины электрическими разрядами в условиях плотной застройки производится измерения сейсмического воздействия на грунт и строительные конструкции и уточняются параметры электрических разрядов.
Во время изготовления свайного поля производится выборочный сейсмоакустический контроль длины свай, контролируется сплошность их сечения.
Ввиду того. что несущая способность свай РИТ во многом определяется величиной и расположением уширений ствола скважины, нами успешно применяется специальный прибор, позволяющий контролировать расход бетона на каждом уровне обработки скважины электрическими разрядами, что позволяет судить о форме скважины и степени уплотнения окружающего грунта.
В особо ответственных случаях перед проведением цементации стен и фундаментов зданий с целью изучения их состояния и выявления наиболее ослабленных участков производится их сейсмоакустическое обследование. Оно повторяется в процессе инъектирования и после твердения инъекционных растворов, что позволяет оконтурить зону цементации и оценить степень повышения прочности кладки.
Сейсмоакустический контроль качества цементации:
Карты изолиний средних скоростей продольных волн по нормальным лучам в плоскости стены,укрепляемой цементацией.
A - по результатам первого измерения, проведеннгого через сутки после инъектирования.
B - по результатам второго измерения, проведеннгого через 7 суток после инъектирования.
|