ЗМІСТ
РЕФЕРАТ
СПИСОК УМОВНИХ ПОЗНАЧЕНЬ
ВСТУП
1. Визначення розрахункових навантажень цехів та підприємства
1.1 Визначення розрахункового силового навантаження цехів
1.2 Визначення центра електричних навантажень та місця розташування головної понижуючої підстанції
1.3 Вибір кількості та потужності трансформаторів головної понижувальної підстанції
1.4 Вибір кількості та потужності трансформаторів цехових трансформаторних підстанцій
1.5 Вибір потужності компенсуючих пристроїв у системі електропостачання підприємства
1.6 Розробка схеми електропостачання підприємства
1.7 Розрахунок струмів трифазного короткого замикання на шинах низької напруги головної понижувальної підстанції
1.8 Вибір перерізу провідників в електричній мережі напругою 6 кВ
1.9 Вибір комутаційної апаратури
СПИСОК ВИКОРИСТАНИХ ДЖЕРЕЛ
РЕФЕРАТ
Розвиток енергетики України, посилення зв'язків між енергосистемами вимагає розширення будівництва електроенергетичних об'єктів, зокрема ліній електропередач і підстанцій напругою 35-110кВ змінного струму.
Виробництво електроенергії росте у всьому світі, що супроводжується зростанням числа електроенергетичних систем, яке йде по шляху централізації вироблення електроенергії на крупних електростанціях і інтенсивного будівництва ліній електропередач і підстанцій.
Проектування електричної мережі, включаючи розробку конфігурації мережі і схеми підстанції, є одним з основних завдань розвитку енергетичних систем, що забезпечують надійне і якісне електропостачання споживачів. Якісне проектування є основою надійного і економічного функціонування електроенергетичної системи.
Завдання проектування електричної мережі відноситься до класу оптимізаційних завдань, проте не може бути строго вирішена оптимізаційними методами у зв'язку з великою складністю завдання, обумовленою багатокрітеріальностью, багато параметрічностью і динамічним характером завдання, дискретністю і частковою невизначеністю початкових параметрів.
У цих умовах проектування електричної мережі зводиться до розробки кінцевого числа раціональних варіантів розвитку електричної мережі, що забезпечують надійне і якісне електропостачання споживачів електроенергією в нормальних і після аварійних режимах. Вибір найбільш раціонального варіанту проводиться по економічному критерію. При цьому всі варіанти заздалегідь доводяться до одного рівня якості і надійності електропостачання. Екологічний, соціальний і інші критерії при проектуванні мережі враховуються у вигляді обмежень.
ПЕРЕЛІК ПОЗНАЧЕНЬ ТА СКОРОЧЕНЬ
Таблиця.1
| Позначення скорочення
|
Найменування
|
| ЕУ
|
Електроустановка
|
| ЕП
|
Електроприймач
|
| СЕП
|
Система енергопостачання
|
| СРШ
|
Силова розподільна шафа
|
| ШРА
|
Шинопровід розподільний алюмінієвий
|
| НН
|
Низька напруга
|
| ТП
|
Трансформаторна підстанція
|
| ШМА
|
Шинопровід магістральний алюмінієвий
|
| ГПП
|
Головна понижуюча підстанція
|
| ПВГ
|
Підстанція глибокого вводу
|
| ЦРП
|
Центральний розподільний пункт
|
| РП
|
Розподільний пункт
|
| АД
|
Асинхронний двигун
|
| СД
|
Синхронний двигун
|
| ЕД
|
Електродвигун
|
| ДЖ
|
Джерело живлення
|
| ЦЕН
|
Центр електричних навантажень
|
| ВН
|
Висока напруга
|
| ПС
|
Підстанція
|
| КТП
|
Комплектна трансформаторна підстанція
|
| КТПЗ
|
Комплектна трансформаторна підстанція зовнішня
|
| ТЕП
|
Техніко-економічне порівняння
|
| ТЕР
|
Техніко-економічний розрахунок
|
| КБ
|
Конденсаторна батарея
|
| ДРП
|
Джерело реактивної потужності
|
| ККД
|
Коефіцієнт корисної дії
|
| СК
|
Синхронний компенсатор
|
| ККУ
|
Комплектна конденсаторна установка
|
| АГЖ
|
Агрегат гарантованого живлення
|
| ПП
|
Приймальний пункт
|
| ЛЕП
|
Лінія електропередач
|
| КЗ
|
Коротке замикання
|
| ЕА
|
Електричні апарати
|
ВСТУП
Метою дипломного проекту є розробка раціонального, в техніко-економічному сенсі, варіанту електропостачання споживачів знов споруджуваної підстанції 10 з дотримання вимог ГОСТ до надійності і якості електроенергії, що відпускається споживачам, а також розробка електричної схеми і компоновка підстанції, вибору основного устаткування, і оцінка роботи підстанції в нормальних, аварійних і після аварійних режимах. Карта-схема району електропостачання представлена на мал. 1.1, підстанція споруджується в районі Уралу з середньорічною температурою навколишнього середовища +50С
.
Джерелами електроенергії в схемі є ГРЕС, що працює на бурому вугіллі і сусідня енергосистема, еквівалентирована до вузла 1, потужність якої істотно перевищує потужність даного району розвитку мережі, тому напруга у вузлі 1 можна вважати незмінним при коливанні навантажень даної мережі (U1=115кВ). На ГРЕС встановлені генератори ТВВ-200 і трансформатори ТДЦ-250000/220. Система утворююча мережа 220кВ виконана дротом АС-400, розподільна мережа 110кВ виконана дротом АС-240.
Споживачі електроенергії підстанції, що підключається №10 включають промислове і комунальне навантаження загальною потужністю в максимальному режимі 32 МВт при cosц=0,87. Графік навантаження приведений на малюнку 1.2 і в таблиці 1.1.
Склад споживачів по категоріях надійності електропостачання:
I категорія – 40%
II категорія – 40%
III категорія – 20%;
Номінальна нижча напруга підстанції 10 кВ;
Число ліній, що відходять, - 16
  P=80MBт
 Р =110МВт
4 cosφ=0,9
cosφ
=0,9
    4 ТДЦН – Р50000/220
     2 1000 ……… 4ТВВ-200
Uбаз P=32МВт
  cos=0,87
 1 10 6 Р=130МВт
  cosφ=0,9
7
  
  9 8 5
P=16,9МВт
3 cosφ=0.9
Р=125МВт
cosφ=0,9
Рис.1.1 Карта-схема району енергозабезпечення
Графік нагрузки характерного для зимового дня

Графік нагрузки характерного літнього дня

Рис.1.2 Графік нагрузки трансформаторів.
Таблиця 1.- Графік нагрузки характерного літнього та зимового дня.
| 1
|
2
|
3
|
4
|
5
|
6
|
7
|
8
|
9
|
10
|
11
|
12
|
| Зима, %
|
40
|
40
|
40
|
40
|
50
|
50
|
40
|
40
|
40
|
40
|
40
|
50
|
| Лето, %
|
30
|
30
|
30
|
30
|
40
|
40
|
30
|
30
|
30
|
30
|
30
|
40
|
| Часы суток
|
13
|
14
|
15
|
16
|
17
|
18
|
19
|
20
|
21
|
22
|
23
|
24
|
| Зима, %
|
40
|
40
|
80
|
100
|
100
|
100
|
100
|
100
|
40
|
40
|
80
|
80
|
| Лето, %
|
30
|
30
|
70
|
70
|
80
|
80
|
80
|
70
|
30
|
30
|
70
|
70
|
ВИХІДНІ ДАНІ
До курсового проекту з дисципліни “Електропостачання промислових та муніципальних об’єктів”
Таблиця 1 – Склад цехів підприємства і категорія надійності їх електроприймачів
| № цеху
|
Назва цеху
|
Категорія надійності електроприймачів
|
| 1
|
Механічний цех №1
|
2 і 3
|
| 2
|
Механічний цех №2
|
2 і 3
|
| 3
|
Механічно –складальний цех
|
2
|
| 4
|
Інструментальний цех
|
3
|
| 5
|
Цех дрібних серій
|
2
|
| 6
|
Ремонтно – механічний цех
|
3
|
| 7
|
Компресорна станція
|
1 і 2
|
Таблиця 2 – Установлена потужність цехів
| Варіант
|
Установлена потужність окремих цехів
|
| 1
|
2
|
3
|
4
|
5
|
6
|
7
|
| 6
|
5500
|
6100
|
6600
|
6400
|
6600
|
6200
|
1500
|
Таблиця 3 – Коефіцієнти попиту цехів
| Варіант
|
Коефіцієнт попиту окремих цехів
|
| 1
|
2
|
3
|
4
|
5
|
6
|
7
|
| 6
|
0,15
|
0,10
|
0,15
|
0,20
|
0,16
|
0,19
|
0,15
|
Таблиця 4 – Коефіцієнти потужності цехів
| Варіант
|
Коефіцієнти потужності cosφ окремих цехів
|
| 1
|
2
|
3
|
4
|
5
|
6
|
7
|
| 6
|
0,59
|
0,69
|
0,66
|
0,64
|
0,51
|
0,59
|
0,66
|
Таблиця 5 – Спосіб виконання загального освітлення цехів
| Варіант
|
Спосіб виконання загального освітлення цехів
|
| 1
|
2
|
3
|
4
|
5
|
6
|
7
|
| 6
|
3
|
1
|
2
|
3
|
1
|
2
|
3
|
Таблиця 6 – Дані електродвигунів компресорної станції
| Варіант
|
Uном
,
кВ
|
Pном
,
кВт
|
nном
,
об/хв
|
Тип
|
Кількість N, шт.
|
| 6
|
10
|
1600
|
500
|
СДНЗ-2-18-49-12
|
4
|
Таблиця 7 – Тривалість перевантаження трансформатора головної понижувальної підстанції в після аварійному режимі та відношення літнього розрахункового навантаження до зимового
| Варіант
|
Тривалість перевантаження, год.
|
Відношення літнього розрахункового навантаження до зимового, в.о
|
| 6
|
1
|
0,75
|
Примітка. Температуру повітря прийнято: зимову – 10 ْС, літню - +20 ْС.
Таблиця 8 - Напруга джерела живлення, номінальна напруга електричної мережі внутрішньозаводського електропостачання, схема приєднання головної понижувальної підстанції, величина початкового струму трифазного короткого замикання від системи на стороні високої напруги підстанції, напруга системи в максимальному режимі, кількість годин використання максимуму навантаження за рік.
| Варіант
|
Uжив
,
кВ
|
Uном.м
,
кВ
|
Схема приєднання
|
І”
к.с.макс
,
кА
|
Uс.макс
,
кВ
|
Tмакс
,
год
|
| 6
|
110
|
10
|
Тупикова
|
17,5
|
105
|
4500
|

| Живлення від
енергосистеми
|
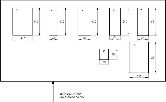
|
Рис. 1 Генеральний план підприємства Примітки:
1.Усі розміри цехів подані у метрах. 2. 1-7 номера цехів.
1 ВИЗНАЧЕННЯ РОЗРАХУНКОВИХ НАВАНТАЖЕНЬ ЦЕХІВ ТА ПІДПРИЄМСТВА
1.1 Визначення розрахункового силового навантаження цехів
З формули (1.1) виведено розрахункове силове активне навантаження для окремого цеху при напрузі 0,38/0,22 кВ
, (1.1)
де - коефіцієнт попиту і-го цеху;
- установлена активна потужність і-го цеху.
Розрахункове силове реактивне навантаження і-го цеху визначено за формулою
, квар, (1.2)
де tgφ - відповідає значенню коефіцієнта потужності cosφ і-го цеху .
Розрахункове силове повне навантаження і-го цеху визначено як
, кВА, (1.3)
За формулами (1.1), (1.2) і (1.3) визначено розрахункове силове активне, реактивне та повне навантаження кожного цеху підприємства.
, кВт;
, квар;
, кВА
Результати розрахунків для цехів наведені в таблиці 1.1.
Таблиця 1.1 – Визначення розрахункового силового навантаження цехів
| № цеху
|
Назва цеху
|
Рустс
кВт
|
Кп,
во
|

|
Результати
розрахунків
|
| Pр.с
,
кВт
|
Qр.с
, квар
|
Sр.с
,
кВА
|
| 1
|
Механічний цех №1
|
5500
|
0,15
|
0,59/0,96
|
825
|
1076,75
|
1356,47
|
| 2
|
Механічний цех №2
|
6100
|
0,10
|
0,69/1,1
|
610
|
420,9
|
741,11
|
| 3
|
Механічно –складальний цех
|
6600
|
0,15
|
0,66/1,26
|
990
|
653,4
|
1186,18
|
| 4
|
Інструментальний цех
|
6400
|
0,20
|
0,64/1,23
|
1280
|
819,2
|
1519,7
|
| 5
|
Цех дрібних серій
|
6600
|
0,16
|
0,51/1,47
|
1056
|
538,56
|
1185,40
|
| 6
|
Ремонтно – механічний цех
|
6200
|
0,19
|
0,59/1,13
|
1178
|
695,02
|
1367,74
|
| 7
|
Компресорна станція
|
1500
|
0,15
|
0,66/1,2
|
225
|
148,5
|
269,58
|
| Усього
|
6164
|
4352,33
|
7626,18
|
Визначення розрахункового навантаження загального електричного освітлення цехів
Методом коефіцієнта попиту визначається розрахункове навантаження загального електричного освітлення цеху . Для цього спочатку визначено установлене (номінальне) активне навантаження і-го цеху Рр.о.і
, якщо воно не визначено розрахунком, який у курсовій роботі не проводиться. На етапі визначення загального навантаження цеху його розраховано за формулою
(1.4)
де k - коефіцієнт, що враховує потужність пускових приладів залежно від джерела світла (для ламп розжарювання приймається k = 1,0; для ламп типу ДРЛ k = 1,1; для ЛЛ низького тиску стартерних k = 1,2, безстартерних - k=1,35);
рп.о.і
. - питоме навантаження загального освітлення і-го цеху, Вт/м;
Fі
. - площа і-го цеху, що підлягає освітленню, м2
.
Розрахункове активне навантаження загального освітлення і-го цеху визначено як:
, кВт (1.5)
де Кп.о
- коефіцієнт попиту загального освітлення.
Для невеликих виробничих будівель (цехів) приймається коефіцієнт попиту загального освітлення Кп.о
= 1; для виробничих будівель, що складаються з окремих великих прольотів, - Кп.о
= 0,95; для виробничих будівель, що складаються з багатьох окремих приміщень, - Кп.о
= 0,85. У курсовій роботі прийнято Кп.о
= 0,95 незалежно від виду джерела світла.
Розрахункове реактивне навантаження загального освітлення і-го цеху визначено за формулою
, квар, (1.6)
де - відповідає значенню коефіцієнта потужності і-го цеху залежно від типу джерела світла.
Розрахункове повне навантаження загального освітлення і-го цеху визначено за формулою
,кВА (1.7)
За формулою (1.4) розраховується установлене (номінальне) активне навантаження загального освітлення, за формулами (1.5)-(1.7) - розрахункові активне, реактивне та повне навантаження загального освітлення кожного цеху підприємства.
кВт;
кВт;
, квар;
, кВА
Результати розрахунків для цехів наведені в таблиці 1.2.
Таблиця 1.2 - Визначення розрахункового навантаження загального електричного освітлення цехів
| № цеху
|
Площа цеху
м
|
Тип ламп
|
,
Вт/м
|
Результати розрахунків
|
| Pуст.о
,
кВт
|
Pр.о
,
кВт
|
Qр.о
, квар
|
Sр.о
,
кВА
|
| 1
|
2880
|
Дугові ртутні
|
15
|
47,52
|
45,14
|
22,57
|
50,46
|
| 2
|
2880
|
Розжарювання
|
15
|
43,2
|
41
|
41
|
57,98
|
| 3
|
4320
|
Люмінесцентні
|
15
|
77,7
|
73,8
|
70
|
101,7
|
| 4
|
2160
|
Дугові ртутні
|
15
|
35,6
|
33,8
|
16,9
|
37,7
|
| 5
|
5760
|
Розжарювання
|
15
|
86,4
|
82
|
82
|
115,9
|
| 6
|
7200
|
Люмінесцентні
|
15
|
129,6
|
123,1
|
116,9
|
169,7
|
| 7
|
648
|
Дугові ртутні
|
15
|
10,7
|
10,2
|
5
|
11,35
|
| Усього
|
430,72
|
409,04
|
354,37
|
544,79
|
Визначення розрахункового навантаження компресорної станції
Якщо у вихідних даних задана кількість ЕД 4, 6 та більше, то кількість робочих ЕД обчислюють за формулою
, (1.8)
де N - задана кількість ЕД, шт.;
2 - кількість резервних ЕД.

Таким чином, для компресорної станції слід визначити загальне розрахункове навантаження з AД силовим навантаженням та навантаженням загального електричного освітлення.
Розрахункова активна потужність СД напругою 6 кВ визначено за формулою (1.9).
, (1.9)
де - кількість робочих СД, що працюють одночасно, шт.;
- коефіцієнт завантаження СД активною потужністю, в.о;
- номінальна активна потужність СД, кВт.
Коефіцієнт завантаження СД активною потужністю приймається = 0,8.
(1.10)
При такому значенні мінімальної реактивної потужності УД зберігає властивості СД і стабільно працює. У даному випадку ця потужність і є розрахунковою потужністю СД яку можна визначити так:
(1.11)
Загальне розрахункове активне навантаження компресорної станції з АД визначається з урахуванням розрахункового силового навантаження Рр.с
та розрахункового навантаження загального електричного освітлення Рр.о
, (1.12)
Загальне розрахункове реактивне навантаження компресорної станції з АД визначається так:
. (1.13)
Загальне розрахункове повне навантаження компресорної станції з СД
. (1.14)
, кВт;
, кВАр;
,кВт
, кВАр
кВА
Визначення розрахункового навантаження підприємства
Загальне розрахункове активне навантаження і-го цеху визначено за формулою
Рр.ц
= Рр.с
+ Рр.о
(1.15)
Загальне розрахункове реактивне навантаження і-го цеху
Q р.ц
=Q р.с
+Q р.о
(1.16)
Таким чином, загальне розрахункове повне навантаження І-го цеху
(1.17)
, кВт;
, кВАр
, кВА
Результати розрахунків для цехів наведені в таблиці 1.3.
Загальне розрахункове активне та реактивне навантаження кількох груп або цехів усього підприємства визначено з урахуванням коефіцієнта одночасності збігання максимумів навантаження К0
цих груп або цехів
 , кВт, (1.18)
, кВАр, (1.19)
де m - кількість розрахункових груп (цехів підприємства), шт.
Коефіцієнт одночасності збігання максимумів навантаження К0
= 0,85.
Розрахункову повну потужність можна визначено так:
, кВА (1.20 )
Таблиця 1.3 – Визначення розрахункового навантаження підприємства
| № цеху
|
Назва цеху
|
Pр.ц
,
кВт
|
Qр.ц
,
квар
|
Sр.ц
,
кВА
|
| 1
|
Механічний цех №1
|
870,14
|
1099,32
|
1402
|
| 2
|
Механічний цех №2
|
651
|
461,9
|
798,2
|
| 3
|
Механічно –складальний цех
|
1063,8
|
732,4
|
1286,4
|
| 4
|
Інструментальний цех
|
1313,8
|
835,1
|
1557,3
|
| 5
|
Цех дрібних серій
|
1138
|
620,56
|
1296,2
|
| 6
|
Ремонтно – механічний цех
|
1301
|
811,92
|
1533,6
|
| 7
|
Компресорнастанція
|
Наван.
|
432,48
|
489,85
|
653,44
|
| Двиг.
|
2000
|
1320
|
-
|
| Усього
|
2432,48
|
1809,85
|
3031,91
|
| Усього
|
6337,69
|
4552,2
|
7803,05
|
| Усього з урахуванням Ко
=0,85
|
5387,04
|
3869,37
|
6632,6
|
1.2 Визначення центра електричних навантажень та місця розташування головної понижувальної підстанції
Площа кола в прийнятому масштабі t дорівнює повному розрахунковому навантаженню цеху
Sр.п.
= π·rц
2
·m
, кВА, (1.21)
Sр.п
- розрахункове повне навантаження і-го цеху, кВА;
rц
- радіус кола і-го цеху, см або мм;
m
- масштаб, кВА/см2
або кВА/мм2
.
Приймаємо 
З цього виразу визначається радіус кола
,см (мм) (1.22)
см.
Розрахунки для цехів підприємства наведені в таблиці 2.1.
Таблиця 1.4 - Координати та радіуси кіл картограм окремих цехів
| № цеху
|
Назва цеху
|
Координати
|
rці
см
|
| Хц.і
, см
|
Yц.і
, см
|
| 1
|
Механічний цех №1
|
25,2
|
25,0
|
2,11
|
| 2
|
Механічний цех №2
|
20,2
|
25,0
|
1,6
|
| 3
|
Механічно –складальний цех
|
14,8
|
25,0
|
2,02
|
| 4
|
Інструментальний цех
|
9,9
|
25,0
|
2,22
|
| 5
|
Цех дрібних серій
|
4,4
|
25,0
|
2,03
|
| 6
|
Ремонтно – Механічний цех
|
24,0
|
9,2
|
2,21
|
| 7
|
Компресорна станція
|
17,1
|
15,2
|
3,44
|
Координати ЦЕН визначені в умовній системі координат, яка нанесена на план підприємства довільним чином з умовними одиницями виміру.
Координати ЦЕН підприємства обчислені за формулами
од, (1.23)
од (1.24)
де - координати ЦЕН і-го цеху;
- кількість цехів підприємства.

  Рисунок 2.1 – Генплан промислового підприємства з нанесенням картограми навантажень і визначенням центра електричних навантажень
1.3 Вибір кількості та потужності трансформаторів головної понижуючої підстанції
Вибрати номінальну потужність трансформаторів ГПП залежно від вихідних даних можна за графіком навантаження (у курсовій роботі він не задається) чи за розрахунковим повним навантаженням у нормальному режимі роботи з урахуванням режиму електропередавальної організації за реактивною потужністю , яке визначається як
(1.25)
де Рp.5
- розрахункова активна потужність підприємства на V рівні електропостачання (дані з таблиці 1.3);
(Qe.5
- економічна реактивна потужність на V рівні електропостачання, що споживається підприємством з мережі енергосистеми.
При проектуванні, величину економічної реактивної потужності доцільно визначати за формулою
. (1.26)
Економічна величина реактивної потужності за формулою (3.2) становить
, квар
Розрахункове повне навантаження в нормальному режимі роботи з урахуванням режиму електропередавальної організації за реактивною потужністю визначаємо за формулою (3.1)
кВА.
За першою умовою мінімальна номінальна потужність трансформаторів ГПП дорівнює
кВА.
Таким чином, для ГПП попередньо вибрано трансформатори типу ТМН-4000/110.
За другою умовою :
(1.27)
кВА,

кВА
Отже, вибрані трансформатори за умовами перевантажень відповідають вимогам.
Остаточно вибрано два трансформатори типу ТМН-4000/110, технічні дані яких наведені в таблиці 3.1.
Таблиця 3.1 - Технічні дані трансформаторів головної понижувальної підстанції
| Тип
|
Номінальна потужність
кВА
|
Поєднання напруг, кВ
|
Втрати
|
НапругаКЗ
|
Струм
ХХ
|
| ВН
|
НН
|
ХХ
|
КЗ
|
| ТМН-4000/110
|
4000
|
115
|
6,6
|
7,7
|
28,2
|
10,5
|
1,2
|
1.4 Вибір кількості та потужності трансформаторів цехових трансформаторних підстанцій
При трьох і менше трансформаторах їх стандартну номінальну потужність вибирають за формулою
(1.28)
де Sном.т.р
- повна номінальна розрахункова потужність трансформатора;
Рр.з
- розрахункове активне навантаження на ІІІ рівні електропостачання (розрахункове активне навантаження цеху Рр.ц
таблиці 1.3);
N
- кількість трансформаторів ПС;
βТ
- коефіцієнт завантаження трансформатора цехової ПС.
, кВА
Розрахунки для вибору номінальної потужності трансформаторів цехових ПС наведені в таблиці 4.1.
Таблиця 4.1 - Вибір кількості та номінальної потужності трансформаторів цехових підстанцій
| № цеху
|
Назва цеху
|
Рр.ц
,
кВт
|
N,
шт.
|
Βт
,
в.о
|
Sном.т.р.
,
кВА
|
Трансформатор
|
| 1
|
Механічний цех №1
|
870,14
|
2
|
0,9
|
483,4
|
ТМЗ-630/10
|
| 2
|
Механічний цех №2
|
651
|
2
|
0,9
|
361,6
|
ТМЗ-400/10
|
| 3
|
Механічно –складальний цех
|
1063,8
|
2
|
0,7
|
759,8
|
ТМЗ-1000/10
|
| 4
|
Інструментальний цех
|
1313,8
|
1
|
0,7
|
938,4
|
ТМЗ-1000/10
|
| 5
|
Цех дрібних серій
|
1138
|
2
|
0,7
|
812,8
|
ТМЗ-1000/10
|
| 6
|
Ремонтно – механічний цех
|
1301
|
1
|
0,7
|
929,2
|
ТМЗ-1000/10
|
| 7
|
Компресорна станція
|
2795
|
2
|
0,65
|
2150
|
ТМЗ-2500/10
|
1.5 Вибір потужності компенсуючих пристроїв у системі електропостачання
Визначення реактивної потужності компенсуючих пристроїв споживачів електроенергії
Qкп
=
Qр.5
–
Qе.5
(1.29)
де Qe.5
розрахункова реактивна потужність підприємства на V рівні електропостачання (береться з таблиці 1.3 з урахуванням коефіцієнта одночасності збігання максимумів навантаження), квар.
,квар
Загальна встановлена потужність компенсуючого пристрою підприємства:
Qз
=
Qн.к
+
Qaд
+
Qв.к
(1.30)
де Qн.к
- реактивна потужність конденсаторних установок (КУ) споживача з напругою конденсаторів до 1кВ, квар.
QAД
– реактивна потужність одержувана від AД, квар;
Qв.
к
- реактивна потужність КУ споживача з напругою конденсаторів понад 1кВ, квар.
Визначення потужності конденсаторних установок з номінальною напругою конденсаторів до 1 кВ. Потужність цих КУ визначається при розрахунках систем внутрішньозаводського та внутрішньо цехового електропостачання. Максимальна реактивна потужність, яку доцільно передавати через трансформатор 10/0,4 кВ у мережу напругою до 1 кВ для забезпечення бажаного коефіцієнта його завантаження , становить
, квар, (1.31)
де N
- кількість трансформаторів ТП, шт.;
Sном.
- повна номінальна потужність трансформатора цехової ПС, кВА;
Рр.3
- розрахункова активна потужність навантаження на III рівні електропостачання (розрахункова активна потужність цеху Рр.ц
з таблиці 1.3), кВт. Якщо під коренем величина зі знаком "мінус", то приймають QТ
= 0.
Потужність КУ із конденсаторами номінальною напругою до 1 кВ (у курсовій роботі номінальною напругою 0,4 кВ) визначено як
Qн.к
=
Qр.т
–
Qт
(1.32)
де Qр.т
.
- розрахункова реактивна потужність на III рівні електропостачання, яка дорівнює розрахунковій реактивній потужності цеху Qр.ц
з таблиці 1.3, квар.
, квар;
, квар
Розрахунки для вибору номінальної потужності конденсаторів номінальною напругою 0,4 кВ для цехових ПС наведені в таблиці 5.1.
Таблиця 5.1 - Визначення потужності комплектних конденсаторних установок
| №
цеху
|
Qт
,
квар
|
Qн.к
,
квар
|
Тип і номінал
|
Потужність, квар
|
Кількість ККУ
|
| 1
|
508,8
|
229,16
|
УКРП 0.4-120-20УЗ
|
120
|
2
|
| 2
|
769,5
|
-189,1
|
-
|
-
|
-
|
| 3
|
1195
|
-340,8
|
-
|
-
|
-
|
| 4
|
913,2
|
-478,7
|
-
|
-
|
-
|
| 5
|
1124,7
|
-517,44
|
-
|
-
|
-
|
| 6
|
931,3
|
-489,1
|
-
|
-
|
-
|
| 7
|
2861,2
|
-337,7
|
-
|
-
|
-
|
Визначення потужності конденсаторних установок з номінальною напругою конденсаторів 6,3 кВ. Потужність цих КУ визначено при розрахунках систем зовнішнього та внутрішньозаводського електропостачання за формулою
Qв.к
=
Σ Qк.н
- Σ Qн.к.ст
,
(1.33)
де Σ Qн.к.ст
- сумарна потужність встановлених низьковольтних ККУ.
, квар
Для застосування приймається найближча стандартна величина потужності ККУ Qн.к.ст
що вибрана зі спеціальної технічної літератури. Кількість ККУ повинна бути парною. Обираємо УКЛ 10,5-1350 УЗ
1.6 Розробка схеми електропостачання підприємства
Відповідно до нових норм технологічного проектування ПС змінного струму з вищою напругою 6-750 кВ [9] у схемах роз подільних пристроїв 35 кВ і більше на ГПП віддільники та короткозамикачі замість вимикачів не застосовуються, бо їх використання вимагає утворення штучного КЗ для забезпечення умов вимкнення вимикача на початку лінії, що призводить до таких обставин: збільшується зона аварії, бо при пошкодженні на живильному відгалуженні до трансформатора чи на самому трансформаторі короткочасно відключаються всі інші трансформатори, приєднані до даної магістралі, що недопустимо для виробництв з безперервним технологічним процесом; підвищується потужність однофазних КЗ (особливо в разі наявності СД, які створюють підживлення КЗ); значно ускладнюються схеми РЗ та автоматики.
У разі відсутності транзиту потужності застосовують перемички з двома роз'єднувачами (схеми 35-2 та 110-2 [9]), що дозволяє використовувати одну лінії та два трансформатори або дві лінії та один трансформатор в умовах ремонту відповідно лінії та трансформатора, тому на високій стороні (110кВ) приймаємо схему перемички з двома роз’єднувачами.
Внутрішньозаводський розподіл електричної енергії при напрузі 6 або 10 кВ може бути виконаний за радіальною, магістральною або змішаною схемами. Кожна з цих схем відрізняється за ступенем надійності та техніко-економічними показниками залежно від конкретних вимог проектованого об'єкта [2-5, 10].
У сучасній практиці проектування та експлуатації промислових підприємств здійснюється ступеневий принцип побудови схем. Під ступенем електропостачання розуміють вузли схеми електропостачання, між якими електроенергія, одержувана від ДЖ, передається визначеній кількості споживачів.
Схеми бувають одноступеневі та багатоступеневі. У багатоступеневих схемах застосовуються РП однієї напруги, від яких живляться окремі потужні ЕП або група ЕП. Це дозволяє зменшити кількість вимикачів у розподільному пристрої 10 кВ ГПП від великої кількості відгалужувальних ліній малої потужності. При виборі схем слід прагнути до зниження кількості ступенів (більше двох ступенів, як правило, не рекомендується), бо це спрощує комутацію, захист та автоматику, знижує втрати електроенергії.
Двоступеневі радіальні схеми застосовують на великих і середніх підприємствах з цехами (групами цехів), які розташовані на великій території. Живлення розташованих поруч одно-та двотрансформаторних ПС без шин ВН та ЕП з напругою понад 1 кВ здійснюється від проміжних РП (РШ - РПЗ), що живляться від ГПП радіальними лініями першого ступеня. При цьому всі комутаційні та захисні апарати розміщуються на РП. На цехових ТП передбачається глухе приєднання трансформаторів до радіальних ліній другого ступеня. Це дуже спрощує конструкцію та зменшує габарити ТП, що має велике значення при застосуванні внутрішньо цехових ТП.
Питання про спорудження РП розглядають при кількості радіальних ліній, що перевищує вісім. Сумарна потужність секцій РП повинна забезпечувати повне використання пропускної здатності головних вимикачів і ліній, які живлять ці секції.
При використанні радіальних схем здійснюється глибоке секціонування всієї СЕП - від основних ДЖ (ГПП) і до шин напругою до 1кВ, а іноді навіть цеховими СРШ. За допомогою секційних апаратів може здійснюватися АВР для живлення в після аварійному режимі роботи СЕП. Приймаємо одноступеневу
схему на напрузі 6кВ.
1.7 Розрахунок трифазного короткого замикання на шинах низької напруги головної понижувальної підстанції
Розрахунок струмів КЗ є необхідним для вибору та перевірки струмопровідних частин і ЕА номінальною напругою понад 1 кВ на термічну й електродинамічну стійкість, вибору вимикачів розподільного пристрою 10 кВ за комутаційною здатністю, а також для розрахунків вставок та перевірки чутливості РЗ.
Режим СЕП, при якому струм КЗ в елементі, що вибирається або перевіряється, буде найбільшим, досягається за умов, коли в мережі між джерелами і точкою КЗ ввімкнена найменша кількість послідовних елементів і найбільша кількість - паралельних.
У схемі електропостачання заводу в нормальному режимі передбачена роздільна робота трансформаторів ГПП на збірні шини 10 кВ (секційний вимикач вимкнений). У разі наявності РП його секційний вимикач також вимкнений.
У розрахунковій схемі максимального режиму один із трансформаторів вимкнений, а секційний вимикач ввімкнений. Цей режим можливий у таких випадках: один із трансформаторів знаходиться в планово-попереджувальному ремонті або після аварійному режимі.
Приймаємо : Хс=0.04 при Sб=100МВА; U1
=110 кВ; U2
=10 кВ; U3
=0,4 кВ;
Визначаємо опір трансформатора ТМН-4000/110
(1.34)

Визначаємо опір трансформатора ТМЗ-1000/6


Рис. 7.1 – Розрахункова схема

Рис. 7.2 – Схема заміщення
Визначаємо опір кабельної лінії 10кВ довжиною 0,100км:
Хл=0,08×0,1=0,08
Трьохфазне коротке замикання на шинах 110кВ (точка К1)
Визначаємо базисний струм:

Визначаємо струм короткого замикання у початковий момент часу:

Визначаємо ударний струм

Трьохфазне коротке замикання на шинах 6кВ (точка К2) цех №1
Визначаємо базисний струм:

Визначаємо струм короткого замикання у початковий момент часу:

де 
Визначаємо ударний струм

Трьохфазне коротке замикання на шинах 0,4кВ (точка К3) цех №1
Визначаємо базисний струм:

Визначаємо струм короткого замикання у початковий момент часу:

де 
Визначаємо ударний струм

Розрахунки зводимо в таблицю 7.1
| Номер цеху
|
Назва цеху
|
Іпо
|
іу
|
| -
|
-
|
кА
|
кА
|
| 1
|
Механічний цех №1
|
23,16
|
59,98
|
| 2
|
Механічний цех №2
|
25,0
|
64,75
|
| 3
|
Механічно-складальний цех
|
19,56
|
50,66
|
| 4
|
Інструментальний цех
|
27,77
|
71,92
|
| 5
|
Цех дрібних серій
|
23,16
|
59,98
|
| 6
|
Ремонтно-механічний цех
|
26,04
|
67,44
|
| 7
|
Компресорна станція
|
28,5
|
73,81
|
1.8 Вибір перерізу провідників в електричній мережі напругою 6 кВ
Економічно вигідний переріз провідників визначають за формулою
(1.35)
де Інорм
- струм нормального режиму, А;
Jек
- нормоване значення економічно вигідної щільності струму, А/мм2
, яку вибрано з таблиці 1.3.36 ПУЭ.
Розрахунковий економічно вигідний переріз Sек
який визначено за формулою (8.1), округлюється до найближчого більшого або меншого стандартного перерізу Sст
, мм2
.
Номінальний первинний струм трансформатора визначено як:
,А, (1.36)
де Sном.Т.1
- номінальна потужність трансформатора, кВА;
U ном Т1
- номінальна первинна напруга трансформатора, кВ.
При виборі перерізу кабелю, що живить високовольтний ЕД, визначено номінальний струм ЕД за формулою
, A, (1.37)
де Рном.Д
- номінальна активна потужність ЕД, кВт;
Uном
- номінальна напруга електричної мережі, кВ;
соsφном
- номінальний коефіцієнт потужності ЕД, в.о;
ŋном
- номінальний ККД ЕД, в.о.
При виборі перерізу кабелю, що живить високовольтні КУ
,А, (1.38)
де - Qном. КУ
- номінальна реактивна потужність КУ, квар.
Перевірка перерізу провідників за максимальним режимом
Режим максимального навантаження провідників може призвести не тільки до їх перегрівання з порушенням ізоляції, але й до розплавлення жил. Тому переріз провідника, вибраний за економічною щільністю струму, перевіряють на нагрівання за величиною струму його максимального навантаження.
Для цього допустимий для даного провідника струм з урахуванням відхилення параметрів навколишнього середовища від стандартних умов Iдоп
та коефіцієнтів допустимого перевантаження Кпер
(наведені в таблицях 1.3.1 та 1.3.2 ПУЭ) порівнюють зі струмом його форсованого режиму (Іф
з урахуванням коефіцієнта резервування Крез
)
, А. (1.39)
У курсовій роботі прийнято коефіцієнт допустимого перевантаження Кпер
= 1, бо у вихідних даних не заданий коефіцієнт попереднього навантаження.
При визначенні допустимого тривалого струму для кабелів необхідно враховувати відхилення параметрів навколишнього середовища від стандартних умов (якщо вони мають довготривалий характер) за допомогою поправкових коефіцієнтів Кпр
та Ксер
, А, (1.40)
де Кпр
- поправковий коефіцієнт на кількість кабелів, що лежать поруч у землі (таблиця 1.3.26 ПУЭ);
Ксер
- поправковий коефіцієнт на температуру навколишнього середовища, якщо вона відрізняється від стандартної (таблиця 1.3.3 ПУЭ);
Iдоп
- допустимий тривалий струм провідника стандартного перерізу для стандартних умов (для однієї окремої лінії; стандартних температур для землі та води +15 °С і +25 °С для повітря) залежно від матеріалу жил, їхньої ізоляції та способу прокладання, А (таблиці ПУЭ).
Поправковий коефіцієнт на температуру навколишнього середовища можна також обчислити за формулою
, (1.41)
де Тж.н
і Тсер.н
- відповідно нормована тривало допустима температура жили та нормована температура середовища;
Тсер.
- фактична температура середовища.
Для кабелів з паперовою просоченою масло каніфольною та не стікаючою масами ізоляцією (ААБ, АСБ, ААШв та ін.) нормована тривало допустима температура жили Тж.н
= +65 °С (при напрузі 6 кВ) .
У курсовій роботі кабелі прокладені в землі (траншеях).
Прокладку в траншеях (від одного до шести кабелів) застосовують на не асфальтованих територіях у випадку малої ймовірності пошкодження кабелів землерийними механізмами, зсувом ґрунту, корозією.
Перевагами траншейної прокладки вважають малу вартість ліній, хороші умови охолодження кабелю, малу ймовірність поширення аварії одного кабелю на сусідні паралельні кабелі.
Для кабелів, прокладених у землі, нормована температура середовища Тсер.н
= +15 °С, а на повітрі - Тсер.н
= +25 °С.
Для двотрансформаторних ПС приймається Крез
= 1,4, а для одно трансформаторних ПС з резервуванням кабелями при напрузі 0,4 кВ Крез
= 1,3, без резервування - коефіцієнт систематичного перевантаження (якщо є дані) або Крез
= 1,0.
Для ЕД та КУ приймається Крез
= 1,0 (Iф
= Iнорм
).
Якщо умова за формулою (8.7) не виконується, то необхідно прийняти нове значення найближчого більшого стандартного перерізу кабелю, щоб вона виконувалась.
Перевірка перерізу провідників на термічну стійкість. При напрузі понад 1 кВ перевірці на термічну стійкість при КЗ підлягають усі провідники, крім тих, що захищаються високовольтними запобіжниками.
Критерієм термічної стійкості провідників є кінцева температура їх нагрівання при проходженні по них струму КЗ, яка не повинна перевищувати короткотривалої допустимої нормованої температури.
Для спрощення розрахунків термічна здатність може бути оцінена найменшим перерізом провідника (мм2
), термостійким до струмів КЗ
, мм2
, (1.42)
де Вк
- тепловий імпульс струму КЗ, А2
с;
Ік
= Іп.о
- початкове значення періодичної складової струму трифазного КЗ, А;
t
- дійсний час вимикання КЗ, с;
С
- температурний коефіцієнт, який враховує обмеження допустимої температури провідника (наводиться в довідкових таблицях), Ас1/2
/мм2
.
Величина дійсного часу вимикання КЗ визначається так:
, с, (1.43)
де t зах
- час дії основного РЗ, с;
t вимик.в
- час вимикання вимикача (можна прийняти tвимик.в
= 0,05 с);
Та
- стала часу аперіодичної складової струму КЗ (Та
= 0,05 с).
Величина початкового значення періодичної складової струму трифазного КЗ на шинах НН ГПП Iк(0)
розрахована в розділі 1.7.
,А; ; ; , А
А; , умова виконується, попередньо обираємо кабель марки АСБ-6.
с; Ас1/2
/мм2
.
мм2
Кабель не відповідає вимогам, так як не витримає термічної дії струму кз, тому приймаємо найближче більше стандартне значення перерізу кабелю, таким чином остаточно обираємо кабель марки ААБ-10(3х35).
Розрахунки для вибору перерізу провідників наведені в таблиці 8.1
Таблиця 8.1- Розрахунок вибору перерізу провідників
| Споживач
|
Іном
|
Sек
|
Sст
|
Ідоп
|
І’доп
|
ААБ-10
|
| ТП1
|
154,14
|
96,339
|
120
|
295
|
176,7
|
3х120
|
| ТП2
|
154,14
|
96,339
|
120
|
295
|
176,7
|
3х120
|
| ТП3
|
60,693
|
37,933
|
95
|
190
|
176,7
|
3х95
|
| ТП4
|
240,84
|
150,52
|
185
|
385
|
190
|
3х95
|
| ТП5
|
96,339
|
60,211
|
95
|
190
|
144,1
|
3х95
|
| ТП6
|
96,3
|
60,1
|
95
|
190
|
176,7
|
3х95
|
| ТП7
|
38,5
|
24
|
95
|
105
|
97,7
|
3х95
|
| КУ1,2
|
165,1
|
103
|
120
|
260
|
260
|
3х120
|
| AД
|
152,1
|
95
|
95
|
225
|
225
|
3х95
|
1.9 Вибір комутаційної апаратури
Вимикачі навантаження обирають за номінальним струмом і напругою, за струмом вимикання та вмикання в робочому режимі, перевіряють на електродинамічну та термічну стійкість. Вимикачі навантаження обирають із запобіжниками, окрім того за величиною граничного струму вимикача запобіжника. Основною умовою вибору вимикачів навантаження ті й самі що й для силових вимикачів.
Таблиця 9.1. Розрахункові та каталожні дані високовольтного вимикача
| Умови вибору
|
Розрахункові дані
|
Каталожні дані вимикача ВГТЗ-110II-40/2500У1
|
| За номінальною напругою
Uном.в
>Uном.м
За номінальним струмом
Іном.в
>Іф
Вид установки, відповідність навколишньому середовищу
За здатністю вимикання
Іном.вимик
>І’к(0)
За динамічною стійкістю
ідин
>іу.к
|
Uном.м
=110кВ
Іф
=154 А
Установлюється на зовнішніх установках
І’к(0)
=8,8 кА
іу.к
=19,69 кА
|
Uном.м
=110кВ
Іном.в
=1600 А
У1
Іном.вимик
=20кА
ідин
=70кА
|
Таблиця 9.2. Розрахункові та каталожні дані високовольтного вимикача
| Умови вибору
|
Розрахункові дані
|
Каталожні дані
ВБЭМ-10-20(12,5)/1000(800) УХЛ2
|
| За номінальною напругою
Uном.в
>Uном.м
|
Uном.м
=10кВ
|
Uном.м
=10кВ
|
| За номінальним струмом
Іном.в
>Іф
|
Іф
=165,1 А
|
Іном.в
=1000 А
|
| Вид установки, відповідність навколишньому середовищу
|
Для зовнішньої установки
|
У1
|
| За здатністю вимикання
Іном.вимик
>І’к(0)
|
І’к(0)
=8,8 кА
|
Іном.вимик
=20кА
|
| За динамічною стійкістю
ідин
>іу.к1
|
І’к(0)
=8,8 кА
|
ідин
=51кА
|
Роз’єднувачі, віддільники то короткозамикачі обирають за конструктивним виконанням, разом з установкою з наданою напругою, номінальним струмом, електродинамічною та термічною стійкістю до струмів к.з. Короткозамикачі обирають, крім, того за найменшим струмом вмикання. РД3-110/1000 ,НУХЛ1 РВ-10/400 ,РВ-10/630 РВ-10/1000. Вибір трансформаторів струму та напруги. Трансформатори струму обирають за номінальною напругою, первинним та вторинним струмом, конструкцією, класом точності, допустимим навантаженням. Трансформатори напруги обирають за номінальною напругою первинної обмотки, схемою з’єднання обмоток та конструктивним виконанням.
На шинах 10кВ встановлюються два трансформатори напруги НАМИТ-10-2 УХЛ2
| Номинальное напряжение обмоток, кВ:
|
| первичной (U1ном
)
|
6 или 10
|
| основной вторичной
|
0,1
|
| дополнительной вторичной
|
0,1/3
|
| мощность нагрузки при cosφ2 = 0,8
|
от 0,25 Sном до Sном
|
| Предельная мощность вне класса точности, В ּ А:
|
| трансформатора
|
1000
|
| основной вторичной обмотки
|
900
|
| дополнительной вторичной обмотки
|
100
|
| Коэффициент мощности нагрузки cosφ2
|
0,8
|
Трансформатор струму ТБМО-110 УХЛ 1 ставимо на ГПП110кВ
| Ном. напряжение, кВ
|
110
|
| Наибольшее рабочее напряжение, кВ
|
126
|
| Номинальная частота, Гц
|
50
|
| Наибольший длительно допустимый ток первичной обмотки, А
|
160 - 1250
|
| Номинальный вторичный ток, А
|
1; 5
|
| Односекундный ток термической стойкости, кА
|
10 - 63
|
| Ток электродинамической стойкости, кА
|
25 - 160
|
| Количество вторичных обмоток
|
5
|
Також використовуємо трансформатори струм на РП 10 та 0,4кВ відповідно ТЛШ-10 ТКЛМ -0,5Т3.
При проектуванні обладнання релейного захисту та автоматики потрібно враховувати рівень надійності СЄП, вимоги до захисту електроустаткування, режим роботи основних приймачів електроенергії та електричних мереж та види надходжень. В процесі проектування потрібно вибрати релейний захист трансформаторів, ЛЕП, передбачити для підвищення надійності потрібне обладнання автоматичного повторного вмикання.
Для захисту від однофазних к.з. та від міжвиткових замикань в обмотках трансформатора повинні застосовуватись поздовжній диференційний струмів захист або струмова відсічка, які діють без витримки часу. Струмова відсічка повинна діяти на вимикання трансформатора з усіх сторін. Двигуни треба захищати від між фазних к.з. в обмотці статора, однофазних замикань на землю обмоток статора і ротора, та від замикань між витками однієї фази. Для захисту двигуна від к.з. в обмотках статора застосовують диференційний захист, струмова відсічка, та максимальний струмів захист.
Захист ЛЄП найчастіше ґрунтується на видах струмового захисту різних виконань. Для мереж напругою 10кВ з ізольованою або заземленою через котушку обов’язковий двофазний захист від між фазних к.з.
У складі споживачів ел.ен. є приймаче першої категорії, станціях та підстанції потрібно обладнати автоматом ввімкнення резерву.
СПИСОК ЛІТЕРАТУРИ
1. Правила устройства электроустановок / Минэнерго СССР. - 6-е изд., перераб. и доп. - М.: Энергоатомиздат, 1986. - 648 с.
1. Федоров А.А., Каменева В.В. Основы электроснабжения промышленных предприятий: Учеб. для вузов. - 4-е изд., перераб. и доп. - М.: Энергоатомиздат, 1984. - 472 с.
2. Князевский Б.А., Липкин Б.Ю. Электроснабжение промышленных предприятий: Учеб. для студ. вузов по спец. "Электропривод и автоматизация промышленных установок". - 3-е изд., перераб. и доп. - М.: Высш. шк., 1986. - 400 с.
3. Дирацу B.C. и др. Электроснабжение промышленных предприятий. -К.: Вища шк., 1974. - 280 с.
4. Федорова А.А., Старкова Л.Е. Учебное пособие для курсового и дипломного проектирования по электроснабжению промышленных предприятий: Учеб. пособие для вузов. -М.: Энергоатомиздат, 1987. - 368 с.
5. Справочник по проектированию электроснабжения / Под ред. Ю.Г. Барыбина и др. -М.: Энергоатомиздат, 1990. -576 с.
6. Справочник по проектированию электрических сетей и электрооборудования / Под ред. Ю.Г. Барыбина и др. - М.: Энергоатомиздат, 1991. - 464 с.
7. Методика розрахунків плати за перетікання реактивної електроенергії між електропередавальною організацією та її споживачами. Затверджена наказом Міністерства палива та енергетики 17.01.02 p. N° 19.
8. Норми технологічного проектування підстанцій змінного струму з вищою напругою 6-750 кВ (ГКД-341.004.001-94). - К.: Міненерго України, 1994. - 139 с.
9 . Сірий О.М., Шестеренко B.C. Розрахунки при проектуванні та реконструкції систем електропостачання промислових підприємств. - К.: ІСДО, 1993. - 592 с
10. Неклепаев Б.И., Крючков И.П. Электрическая часть электростанций и подстанций. Справочные материалы для курсового и дипломного проектирования: Учеб. пособие для вузов. - 4-е изд., перераб. и доп. - М.: Энергоатомиздат, 1989. - 608 с.
11. ГОСТ 14209-85 Трансформаторы силовые масляные общего назначения. Допустимые нагрузки.
ПЕРЕЛІК ПОЗНАЧЕНЬ ТА СКОРОЧЕНЬ
Таблиця .1
| Позначення скорочення
|
Найменування
|
| ЕУ
|
Електроустановка
|
| ЕП
|
Електроприймач
|
| СЕП
|
Система енергопостачання
|
| СРШ
|
Силова розподільна шафа
|
| ШРА
|
Шинопровід розподільний алюмінієвий
|
| НН
|
Низька напруга
|
| ТП
|
Трансформаторна підстанція
|
| ШМА
|
Шинопровід магістральний алюмінієвий
|
| ГПП
|
Головна понижуюча підстанція
|
| ПВГ
|
Підстанція глибокого вводу
|
| ЦРП
|
Центральний розподільний пункт
|
| РП
|
Розподільний пункт
|
| АД
|
Асинхронний двигун
|
| СД
|
Синхронний двигун
|
| ЕД
|
Електродвигун
|
| ДЖ
|
Джерело живлення
|
| ЦЕН
|
Центр електричних навантажень
|
| ВН
|
Висока напруга
|
| ПС
|
Підстанція
|
| КТП
|
Комплектна трансформаторна підстанція
|
| КТПЗ
|
Комплектна трансформаторна підстанція зовнішня
|
| ТЕП
|
Техніко-економічне порівняння
|
| ТЕР
|
Техніко-економічний розрахунок
|
| КБ
|
Конденсаторна батарея
|
| ДРП
|
Джерело реактивної потужності
|
| ККД
|
Коефіцієнт корисної дії
|
| СК
|
Синхронний компенсатор
|
| ККУ
|
Комплектна конденсаторна установка
|
| АГЖ
|
Агрегат гарантованого живлення
|
| ПП
|
Приймальний пункт
|
| ЛЕП
|
Лінія електропередач
|
| КЗ
|
Коротке замикання
|
| ЕА
|
Електричні апарати
|
|