| Красноярский Государственный Аграрный Университет
Кафедра плодоовощеводства
и защиты растений
КУРСОВАЯ РАБОТА
Тема: Технология переработки овощей
Выполнила:студентка агрономического
факультета гр. А-53
Головина Н. П.
Проверил: доцент, к. с.-х. н.
Сергоманов С. В.
Красноярск 2002
Содержание
Введение………………………………………………….................................................3
1. Обзор литературы…………………………………………………...……………6
2. Основные свойства пищевых продуктов…………………………………….….7
3. История консервирования……………………………………………………...11
4. Принципы и методы консервирования пищевых продуктов………………...12
5. Консервация квашением, солением и спиртованием…………………………16
6. Способы консервирования, применяемые в домашнем хозяйстве…………..21
7. Технологии квашения овощей………………………………………………….25
8. Свеклосахарное производство……………………………………………….…31
9. Производство картофельного крахмала………………………………………36
10. Сушка фруктов и овощей……………………………………………………….38
11. Замораживание. …………………………………………………….…………..41
12. Оборудование для переработки и хранения овощей…………………….……43
13. Рецепты переработки овощей для хранения…………………………………..55
Список литературы………………………………...…………………………….79
Введение
Несмотря на то, что наше население уже много лет не испытывает недос- татка в продуктах, нельзя сказать, что все проблемы питания решены. Ког- да-то гласность показала, что с достатком продуктов для всего населения, некоторые сами для себя решали все проблемы, что оказалось слишком упро- щенным. Наоборот, появились новые проблемы, о существовании которых в предыдущие несколько десятилетий не могли и предполагать. И в то же вре- мя обнаружились изъяны и ошибки в питании отдельных лиц и групп населе- ния, хотя большинство не было на дефиците, т.е. на неуместно низком уровне потребления питательных веществ. Не менее часто встречаются слу- чаи чрезмерного потребления, т.е. здесь речь идет о слишком высокой энергетической дозе или чрезмерном потреблении жиров. Обе эти ошибки очень типичны для современных пищевых потребностей в нашей стране. К недостаткам нашего питания относится и низкое потребление фруктов и овощей. Врачебные рекомендации, основанные на рекомендуемых нормах пита- ния, пересчитанные в рекомендуемые порции продуктов, отличаются от действительных, т. е. от того среднего уровня потребления, что на протя- жении ряда лет указывался, например, в статистических сводках при подс- чете общего баланса или при изучении уровня жизни отдельных групп насе- ления. В соответствии с заложенной моделью рекомендуемых норм питания, каж- дому человеку за год надо съесть примерно 103 кг овощей, в пересчете на свежие продукты. Действительно свежих овощей надо съесть примерно 70 кг. Рекомендуемый уровень потребления фруктов и изделий из них составляет около 70 кг, пересчете на свежие фрукты. В свежем виде надо каждому съесть 49 кг фруктов за год и в том числе 16 кг цитрусовых плодов. Овощи и фрукты представляют собой основную группу продуктов, необхо- димую составную часть питания в каждой возрастной группе от младенца до старика. А в рассказах некоторых дилетантов часто ставится знак ра- венства между фруктами и овощами с одной стороны и витамином C с другой стороны. В действительности, однако, в них содержится не только этот ви- тамин, но обе упомянутые группы являются его известнейшим источником, потому что вместе с картофелем составляют 97 % принятого сегодня рациона питания. Фрукты и овощи дают человеку очень много важных веществ и ка- жется, что в этом направлении достижения наших знаний, наконец, сходят- ся. Свидетельством того является недавнее открытие о значении волокон, т.е. не перевариваемых полисахаридов и лигнина. Фрукты и овощи представляют собой низкокалорийные продукты, что, од- нако, при нашем способе питания является достоинством. Наше население очень часто нарушает рекомендуемые энергетические порции. Лицам, которым нужно следить за массой своего тела, которым надо "сбросить" несколько килограммов своего тела, рекомендуется включать в свой рацион фрукты и овощи, за исключением некоторых сортов и с исключением из рациона большого количества сахара и жира. При диетическом лечении ожирения и атеросклероза иногда применяют так называемый фруктовый или овощной день, когда больные целый день ничего не едят, кроме фруктов и овощей. Это приводит к тому, что за такой день тело сбросит нежелательный про- дукт обмена веществ, набранный в предшествующее время. По содержанию жиров, польза от овощей и фруктов довольно низкая. При нашей чрезмерной потребности в жирах, включение в рацион фруктов и ово- щей означает снижение такой высокой потребности. При выгоде низкого со- держания жиров мы сами готовим овощные блюда с большой добавкой жира, особенно жареные. Овощи и фрукты являются богатым источником калия, жизненно необходи- мым в каждый период жизни. Обогатить стол фруктами и овощами означает сдвинуть соотношение натрия и калия в пользу калия. С медицинской точки зрения это часто целесообразно, а иногда и необходимо. Припомним здесь некоторые болезни сердца и сосудов, когда рекомендуется как раз повысить прием калия. Натрий принимают всегда со значительным избытком, т.е. нам- ного больше, чем тело способно потребить. При этом известно, что избыток поваренной соли повышает кровяное давление у населения, которое часто потребляет овощные консервы с солью, что приводит к кровоизлиянию в мозг и к смерти. Овощи и фрукты, конечно содержат и ряд других, так называемых со- путствующих элементов, которые содержатся в незначительных количествах, однако потребление их просто необходимо. Если сравнить по важности все множество фруктов и овощей, то обнаружится, минеральных веществ больше содержится в овощах. При этом надо помнить, что содержание минеральных веществ при консервировании сильно не меняется, в отличие от витаминов, чувствительных к нагреву. Рассматривая овощи и фрукты с точки зрения содержащихся в них витами- нов, мы должны на первое место поставить витамин C, о котором написано и сказано столько, что, возможно, бесполезно упоминать даже основные поня- тия. Возможно, о нем стоить добавить, что в наших географических широтах не всегда этот витамин имеется в достатке, особенно в конце зимы и вес- ной, когда очень ценен каждый его миллиграмм. В консервах, конечно, пер- воначальное содержание этого витамина понижено, однако, когда свежих сортов мало, консервированные фрукты и овощи дают значительную добавку к рекомендуемому рациону. Значительно и содержание каротина - провитамина А, особенно в некото- рых овощах, а не только в моркови. Овощи и фрукты содержат и ряд других витаминов, их доля в общем содержании общепринятого рациона обычно до- вольно значительна. Только в последние несколько лет стали публиковаться труды о влиянии на здоровье так называемых волокон, содержащихся как во фруктах, так и в овощах. К волокнам относятся целлюлоза, гемицеллюлоза, пектин и лигнин. Кроме последнего из названных веществ, указанные полисахариды в организ- ме не перевариваются. При недостатке этих веществ в пище человека стано- вится предрасположенным к ряду болезней, таких, как запор, грыжа, добро- качественные и злокачественные опухоли толстой кишки, болезни желудка, возможна ишемическая болезнь сердца, которая в народе известна как ин- фаркт сердца. Знаете ли вы, что на последнюю названную болезнь овощи и фрукты благоприятно влияют двумя способами - оказывают воздействие на метаболизм витамина С и снижают влияние метаболизма жиров вместе с хо- лестерином, воздействием волокон, в основном пектина. В значении овощей и фруктов в питании современного человека никто не сомневается, что подтверждается многими документами. В нашей географи- ческой полосе есть богатый выбор свежих овощей и фруктов, ограниченный в одну часть года, и как раз в это время находят должное применение произ- веденные консервы. Без них бы наше потребление овощей и фруктов было бы значительно сниженным, и действительно, без консервов мы бы не смогли достичь планового уровня жизни. Действительно важно, что в домашнем кон- сервировании применяются плоды домашнего происхождения, часто выращенные на малых загородных дачах с великой заботой и энтузиазмом. Правильное и гигиенически безопасное консервирование оказывает значительную помощь и в улучшении жизни нашего общества.
1. Обзор литературы
Переработка овощей, плодов в местах производства – важнейший путь сохранения пищевых ресурсов. Трисвятский Л. А. (1991) в своей книге «Хранение и технология сельскохозяйственных продуктов» говорит о важной роли переработки в повышении экономической эффективности производственной деятельности хозяйств в результате более полной и рациональной реализации ценной продукции. Он чётко указывает способы переработки овощей и разделяет их на следующие группы: биохимические – квашение, соление, мочение, производство вин; химические – консервирование веществами антисептического действия (сернистая кислота) и маринование; физические – термостерилизация, сушка, замораживание; механические – производство крахмала из картофеля и т. д.
Переработанная продукция должна по качеству отвечать требованиям государственного нормирования и санитарным нормам. При переработке любых видов сырья обязательно выполняют все правила ведения технологического процесса и обеспечивают должный технохимический и микробиологический контроль (Орлов, 1989).
Качество продуктов, вырабатываемых из овощного сырья зависит от многих условий. По мнению Е. П. Широкова (1989) это: качество и сортовые особенности сырья, соблюдение технологических операций по подготовке сырья к переработке, рецептура, вид тары, в которую помещают продукт, её состояние и качество подготовки.
И. Л. Волкинд (1989) утверждает, что кроме вышеперечисленных факторов огромное значение имеют и сортовые особенности культур. Только определённые сорта пригодны для выработки продуктов высокого качества. Так, квашеную капусту хорошего качества получают только из кочанов позднеспелых и некоторых среднеспелых сортов. Очень ярко выражено влияние сорта на качество солёных огурцов, мочёных яблок и т. д.. Разработаны и утверждены технологические требования к сортам: горошка овощного, огурцов, томатов, фасоли, лука. Это способствует улучшению качества сырья для переработки.
Н. В. Сабуров и М. В. Антонов в своей книге «Хранение и переработка плодов и овощей» (1958) раскрывают нам основные технологические операции подготовки сырья к переработке – мойка, очистка, измельчение, бланширование и др..
Не менее важным фактором является качество других видов сырья, вводимых для выработки продукции. Во всех солёноквашеных продуктах большую роль играет качество поваренной соли, в подслащённых – сахарного песка. Соль должна отвечать требованиям стандарта. Непригодна соль йодированная, особенно для квашения капусты (Ульянов, 1995).
Вкусовые качества и аромат солёноквашеных продуктов, консервов зависят, по мнению В. С. Дьяченко (1987), от состава введённых компонентов. Поэтому, учитывая запросы потребителей, большинство овощной продукции вырабатывают на основе разработанных рецептур и технологических инструкций.
В. В. Момот (1988) более подробно раскрывает технологию квашения капусты, соления огурцов и томатов. Выделяет основные технологические требования, предназначенные для соления и маринования, а так же показатели качества: размер, форма, поверхность, цвет, консистенция, вкус и т. д..
Д. П. Белоусов и др. (1984) подробно излагают такие процессы, как сушка, замораживание, производство сахара и крахмала. Эти вопросы мы конкретно рассмотрим в нашей курсовой работе.
2. Основные свойства пищевых продуктов
Физические свойства
Форма
для плодов и овощей считается показателем ботанического вида и сорта; для хлебобулочных, кондитерских изделий, сычужных сыров характеризует качество сырья и правильность проведения технологических процессов.
Масса
единицы продукции (абсолютная масса) определяется при оценке качества многих пищевых продуктов. Для хлебопекарных и кондитерских изделий массу ограничивают требованиями стандартов; для семян злаков и сырого кофе определяют массу 1000 зерен, для орехов массу 100 штук.
Плотность
- масса единицы объема, выраженная в кг/м 53 0 или г/см 53 0. Для жидких продуктов определяют относительную плотность, которую находят делением массы продукта при температуре 20 градусов на массу воды при той же температуре. Плотность характеризует химический состав продукта и степень его разбавления.
Натура
(объемная или насыпная масса) продукта определяется как отношение его массы к занимаемому им объему вместе с порами и пустотами, выражается в кг/м 53 0. Объемную массу необходимо учитывать при определении вместимости тары, складских помещений, транспортных средств.
Структурно-механические свойства
Характеризуют сопротивляемость пищевых продуктов механическому воздействию, зависят от химического состава и строения продуктов.
Прочность
- способность продукта сопротивляться механическому разрушению; определяется для установления качества сахара-рафинада, сухарей, макаронных изделий.
Твердость
- свойство тела препятствовать проникновению в него другого (более твердого тела); определяется для зерна, сахара, овощей, плодов.
Упругость
- способность тела мгновенно восстанавливать форму после приложения внешней силы (надавливания).
Эластичность
- способность тела восстанавливать форму через некоторое время после надавливания.
Пластичность
- способность продукта к необратимым деформациям (характеризует качество карамельной массы, теста).
Релаксация
- свойство продуктов твердо-жидкой структуры, характеризующее время перехода упругих деформаций в пластические при постоянной нагрузке. Это свойство имеет большое значение при перевозке хлеба и хлебобулочных изделий, плодов, овощей, кондитерских товаров.
Ползучесть
- свойство постепенного нарастания пластической деформации без увеличения нагрузки, особенно нагретого тела; характерно для повидла, мармелада, мороженого, сливочного масла, маргарина.
Вязкость
- характеризует внутреннее трение, образующееся при относительном движении соседних слоев сиропов, патоки, меда, майонеза. Она зависит от сил сцепления между частицами и молекулами вещества, температуры продукта.
Липкость
(адгезия) - способность продуктов проявлять в различной мере силы взаимодействия с другим продуктом или поверхностью тары, оборудования. Свойствами липкости обладают тесто, ирис, сыр, вареная колбаса, сливочное масло, хлебный мякиш, которые при разрезании прилипают к поверхности ножа, крошатся или ломаются.
Для характеристики структурно-механических свойств пищевых продуктов применяют термин "консистенция" - свойства продукта, обнаруженные при осязании или разжевывании.
Оптические свойства
Оптические свойства продуктов определяются визуально или при помощи приборов.
Прозрачность
- способность продуктов пропускать свет (растворы сахара, рафинированные растительные масла, пиво).
Цвет
- обусловлен естественными красящими веществами (пигментами) или добавлением искусственных красителей. Должен соответствовать виду и сорту продукта, может изменяться в процессе хранения и переработки.
Коэффициент преломления
- способность продуктов и их растворов преломлять свет, характеризует качество и концентрацию продукта (сахарных растворов, растительных масел).
Оптическая активность
- способность вращать плоскость поляризации поляризованного луча света.
Теплофизические свойства
Эти свойства проявляются при действии на пищевые продукты тепловой энергии. Знание теплофизических характеристик необходимо для обеспечения правильности протекания процессов варки, выпечки, стерилизации, пастеризации, замораживания, размораживания и хранения продуктов.
Теплоемкость
- количество тепла, поглощенное телом при нагревании на 1 градус. Теплоемкость, рассчитанная на 1 кг продукта, называется удельной и выражается в Дж/(кг 5 о 0С). Низкой теплоемкостью отличаются продукты с большой массовой долей жира, высокой - продукты, имеющие большую влажность.
Коэффициент теплопроводности
-количество тепловой энергии, которая протекает за единицу времени через 1 м 52 0 поверхности продукта на толщину 1 м при разнице температур 1 градус. Вода и продукты с большим влагосодержанием отличаются высокой теплопроводностью, способны быстро нагреваться и охлаждаться; жиросодержащие, пористые и сыпучие продукты обладают низкой теплопроводностью, что может вызвать их порчу.
Температура плавления
жиров несколько выше температуры застывания. Эти характеристики зависят от состава и качества жиров.
Температура застывания
должна учитываться при охлаждении, замораживании и хранении продуктов. Хранение при температуре ниже точки замерзания продуктов отрицательно сказывается на их качестве (для молока, напитков).
Сорбционные свойства
Сорбция
- процесс поглощения из окружающей среды паров или газов. Увлажнение продуктов происходит в том случае, если давление водяных паров в воздухе превышает давление водяных паров на поверхности продуктов в результате испарения из них части свободной влаги. Продукты поглощают влагу в этом случае как за счет адсорбции
(образование тонкого слоя на их поверхности) и абсорбции (путем объемного поглощения гидрофильными веществами), так и в результате капиллярной конденсации
(при наличии микро- и макрокапилляров. Поглощение продуктом паров или газов с образованием химических соединений называется хемосорбцией
.
Гигроскопичность
- способность продуктов сорбировать влагу из окружающей среды. Поглощать влагу могут сухие и относительно-сухие продукты (мука, крупы, зерно, сахара, сухое молоко и другие), а также богатые белком, крахмалом, фруктозой, инвертным сахаром. Продукты, богатые жиром, или содержащие очень много влаги, не поглощают ее. Когда давление водяных паров на поверхности продукта больше, чем давление водяных паров в воздухе, происходит десорбция. Сорбция и десорбция влаги продуктом осуществляются до приобретения им равновесной влажности, когда давление водяного пара в воздухе и на поверхности продукта становятся равными. Поглощение продуктом влаги зависит от его химического состава, структуры, а также температуры, давления и относительной влажности воздуха. Относительная влажность воздуха
есть отношение абсолютного количества влаги в воздухе к количеству воды при наибольшем насыщении при данной температуре, выражается в процентах, измеряется гигрометром или психрометром.
Вкусовые свойства
Согласно учению И.П.Павлова вкусовые возбуждения начинаются во вкусовых почках, заложенных в слизистой оболочке языка и ротовой полости, затем по нервным волокнам передаются в участок коры головного мозга, где возникает ощущение вкуса. Основная масса вкусовых почек (всего около 9000) сосредоточена на вкусовых сосочках на кончике языка, его боковой поверхности и в задней половине. Вкусовые ощущения бывают простыми (кислое, сладкое, соленое, горькое) и сложными, получаемыми при опробывании большинства продуктов. Минимальное количество вещества в растворе, необходимое для возбуждения вкусовых ощущений, называется порогом ощущения. Вкус продукта устанавливают при определенной температуре, указанной в стандарте, или при 15-20 градусах. За эталоны вкуса принимаются продукты: соленого - поваренная соль; горького - кофеин; кислого - винная кислота; сладкого - сахароза. Под запахом понимают любые ощущения, воспринимаемые органами обоняния. Органом обоняния служит слизистая оболочка в области верхних дыхательных путей, выстланная обонятельным эпителием. Обонятельные раздражения по нервам передаются в обонятельный центр мозга. Пахучие вещества при дыхательном движении воздуха растворяются в жидкости, покрывающей эпителий, вызывая возбуждение обонятельных клеток. Для лучшего восприятия запаха нужно создать определенные условия, благоприятствующие испарению летучего вещества, увеличить поверхность продукта, повысить температуру. Различают запахи: приятный (гвоздики, мускатного ореха); плодовый (лимона, апельсина); гнилостный (сероводорода, меркаптанов); горелый (жженого кофе, подгорелого хлеба); прогорклый. На интенсивность восприятия запаха и вкуса влияют температура, концентрация, степень измельчения продукта, продолжительность воздействия, индивидуальные особенности дегустатора.
3. История консервирования
Природное действие проходит возле нас двумя главными, основными группами. Одна включает цепь процессов, где простые органические вещества и элементы, такие как, например, кислород, азот, углекислый газ и вода, возникают для того, чтобы с помощью энергии создавать органические соединения. В другой группе происходит прямо противоположные процессы. Сложные вещества стремятся разными способами освободиться от энергии и разложиться. Итак, в природе идет многообразный круговорот попеременного освобождения и связывания вещества и энергии. Изо всех этих сложных процессов для нашего внимания можно выделить простую и относительно узкую группу тех, при которых возникают растительные продукты, которые составляют питание людей. Эти продукты, конечно, участвуют в выше указанном круговороте, подчиняясь природным процессам синтеза и распада. Человек, поэтому всегда вносил их в течение продолжительного времени в рацион своего питания. Цивилизация и прогресс принесли принципиальное решение этой проблемы. Современный способ жизни вынудил развивать направление хранения продуктов длительное время не только в свежем состоянии, а и в такой форме, которая наиболее сохранит их естественное состояние. Консервированием считается каждое умышленное мероприятие, которое придает сырью форму, пригодную для длительного хранения, и позволяет сохранить его природные свойства. Слово "консервирование" произошло от латинского слова conserve, которое означает "сохранение". Научные основы современных методов консервирования были даны еще в 19 веке, когда кроме видимых виновников разложения продуктов, таких, как плесень и грибки, были обнаружены и невидимые формы микроорганизмов, бактерии и дрожжевые грибки. Это открытие сделал знаменитый французский химик Луи Пастер (1822 - 1895), который подробно изучил, прежде всего, дрожжевые и патогенные микробы и одновременно заложил научную основу умерщвления их зародышей. В честь него был назван пастеризацией способ частичной стерилизации веществ повышенной температурой, прежде всего, жидких. Пастер имел предшественников в специальности практического консервирования продуктов, им был парижский повар Николас Апперт (умер в 1840). В 1804 году он попробовал консервировать продукты в жестяных банках кипячением и свой способ описал и показал в Париже в 1810 году (L`art de conserver toutes les substances animales et vegetales, Paris 1810, первое немецкое издание вышло в Праге в 1844 году). Жестяную банку наполняли продуктами, предназначенными для консервирования, нагревали водяным паром или в горячей воде. Через малое отверстие на верху банки уходил избыточный воздух, а поле его выхода это отверстие запаивали. Герметично заполненную банку затем кипятили в горячей воде, при этом, чтобы температура могла подниматься до 135 0
C, добавляли различные соли и тем самым достигали требуемой степени стерилизации. Дальнейшая эволюция принесло не только знание причин разложения, но и дальнейших биохимических изменений, объяснила значение продуктового метаболизма (обмена веществ), как исходных веществ, так и потребности метаболизма человека, для которого вполне хватает основных питательных веществ, таких как сахариды, липиды и белки и биокатализаторов, прежде всего, витаминов, ферментов, веществ роста, пигментов и антибиотиков. Это дало возможность научной специальности консервирования продуктов, которая рациональным способом обеспечивает долговременное хранение трудно сохраняемых продуктов, прежде всего, фруктов и овощей, для круглогодичного употребления и в такой форме, которая лучше всего сохраняет их первоначальный вид. Из этого наброска вытекает важность консервирования, его значение социальное, государственное и гигиеническое, как с точки зрения производителя, так и потребителя. 4. Принципы и методы консервирования пищевых продуктов
Фрукты, предназначенные для консервирования, должны быть здоровыми, неповрежденными вредителями, соответствовать технологической зрелости, которая отличается для разных фруктов и целей обработки. Для компотов плоды должны иметь соответствующую окраску и вкус, плотную мякоть, которая не разваривается. Для выработки фруктовых соков и сгущенных продуктов можно использовать и плоды с видимыми дефектами и деформациями, зрелые или перезрелые. Степень зрелости оценивают с одной стороны субъективно по органическим свойствам фруктов (вкус, запах, окраска, консистенция), с другой стороны объективно - лабораторными исследованиями. Как основной и наипростейший анализ, требуется провести прямое измерение рефрактометром количества сухого вещества в соке плода (% Rf), что дает содержание растворенных веществ в воде, преимущественно сахара, и определяет титры некоторых кислот в пересчете на лимонную кислоту. В обычной домашней практике консервирования руководствуются указаниями в рецептах, которые дают обычно количества сахара и кислоты в компоте. Фрукты обрабатывают обычно свежими, как можно скорее после уборки. Если их необходимо некоторое время хранить, то их надо убрать в сухое, лучше прохладное и затененное место, лучше всего в холодильник.
С технологической точки зрения, если фрукты достаточно кислые, а так же при их консервировании пастеризацией, т.е. нагревом до 100 0
C, они не требуют подкисления.
Овощи, предназначенные для консервирования, должны быть здоровыми, по возможности свежими, большей частью хорошо вызревшими. Только горошек, фасоль и огурцы собирают незрелыми, в оптимальной технологической зрелости.
С технологической точки зрения, овощи обычно не кислые, и при консервировании их необходимо приготавливать в подкисленной заливке и затем нагревать до температуры 100 0
C. Неподкисленные овощи, т.е. в соленой заливке, необходимо консервировать стерилизацией, т.е. нагреванием свыше 100 0
C, что трудно провести в домашних условиях.
Сырье перед уборкой нельзя поливать или обрабатывать защитными химиическими веществами, нельзя вносить подкормку или удобрения. Тем самым предотвращается заражение болезнетворными микробами и вредными веществами. В последнее время появилась опасность высокого содержания свинца во фруктах, собираемых с деревьев в непосредственной близости от автострад с сильным автомобильным движением. Последние исследования показали, что содержание свинца через несколько метров от дороги быстро падает.
Первой фазой обработки фруктов и овощей является мойка, которая удаляет с плодов пыль, глину, песок и другие нечистоты. Тем самым сильно снижается число микроорганизмом. При мойке необходимо окончательно удалить, прежде всего, засохшие ткани, в которых бы могли остаться споры микроорганизмов и после стерилизации дополнительно способствовать порче готовых консервов. Если небольшая степень загрязнения плодов, то их можно слегка намочить и ополоснуть или вымыть под душем из чистой питьевой воды. Завершается мойка сырья сортировкой по качеству, преимущественно по размерам.
Сортировку можно сочетать с обрыванием плодоножек или дальнейшими операциями, такими как удаление косточек, очистка и резка. Обрывание плодоножек проводится вручную, лишь крыжовник, предназначенный для переработки на компоты, если он достаточно твердый, можно очистить на карборундовом очистителе, входящем в комплект некоторых типов кухонных комбайнов. При этом если выгодно, можно снять кожистую оболочку, чтобы плоды в сиропе не сморщились. Очистка плодов производиться преимущественно вручную, причем эту операцию можно связать с удалением ядра, удалением косточек или резкой плодов. Для очистки можно с выгодой использовать профильные ножи, преимущественно ручные очистительные машинки (для груш, яблок). Очистительные устройства сильно деформируют плоды. В устройстве должен быть остро наточенный и правильно отрегулированный чистящий нож, чтобы не было слишком больших отходов. И затем следует плоды вручную дочистить. Некоторые разновидности персика можно хорошо очистить кратким погружением в кипящую воду, кожура от плодов отторгается образующимся под ней паром, и после вынимания из воды она легко снимается рукой. Под горячей кожурой плод остается практически холодным. Химическую очистку применяют обычно для овощей и некоторых фруктов. Очистка происходит в горячем растворе (50-100 0
C) щелочи натрия или калия при концентрации 1- 20 % в течение 1 - 20 минут. В результате очистки нарушается и освобождается кожура, которая сразу же удаляется сильной струей холодной воды. Избыток щелочи нейтрализуют раствором лимонной кислоты. Горячая щелочь сильно едкая и практически ее нельзя использовать без достаточной профессиональной подготовки. Для механической обработки овощей использовать скребки для картофеля, которыми бывают оснащены некоторые типы кухонных комбайнов.
Очищенными, с удаленными косточками или разрезанными плодами быстро наполняют приготовленные банки и заливают сиропом. При необходимости можно ускорить темпы операций, особенно для светлых фруктов, чтобы воспрепятствовать гниению, особенно окислению витамина C на воздухе. Для предотвращения этого плоды погружают в следующие растворы: 0,2 - 0,5 % раствор лимонной кислоты, 2 % раствор поваренной соли, растворы сахара разной концентрации до 30 %, возможно подкисленные лимонной кислотой до 0,5 %. Если же нет никакого из растворов, достаточно замочить в холодной воде.
Некоторые фрукты и, прежде всего, овощи необходимо перед дальнейшим использованием подвергнуть тепловой обработке - бланшировать. Кратковременной варкой или ошпариванием (бланшированием) достигается с одной стороны частичное удаление воздуха из сырья, а с другой стороны подавляется активность присутствующих ферментов и тем самым подавляются нежелательные биохимические реакции, ведущие к снижению качества продуктов. Подавление активности ферментов имеет значение для тех продуктов, которые консервируют теплом. Бланширование сохраняет консистенцию и объем плодов, что применяется для перца и корнеплодов, устраняет запах некоторых корнеплодов и приводит к подавлению активности микроорганизмов. Недостатком бланширования является потеря растворимых в воде питательных веществ. Потери можно снизить бланшированием в паре и моментальной укладкой горячего сырья в банку. При использовании горячей заливки можно наоборот существенным образом снизить время пастеризации.
Протирание проводится как холодных (например, малина, черника, клубника, смородина), так и теплых, предварительно разваренных фруктов и овощей. В продаже есть ряд протирочных устройств как ручных, так и приставок к домашним комбайнам. Еще стоит обратить внимание на чистоту этих протирок, которые часто бывают заражены микробами от обрабатываемого сырья. Протирание, из-за неизбежного взаимодействия сырья с воздухом, приводит к неизбежному окислению, что требует ускоренной работы, а в случае необходимости стабилизации добавкой сахара или кислоты.
Разваривание необходимо производить быстро при наивысших температурах, чтобы не произошло снижение качества сырья. Наиболее чувствительные сорта необходимо после разваривания охладить. Наиболее выгодно производить разваривание паром, что приводит к разбавлению вещества водой на 10%. На рынке были в продаже алюминиевые разварочные комплекты из ГДР с приспособлением для отвода освобождающегося сока.
Сгущение фруктовых пюре производят в домашних условиях в открытой посуде при нормальном давлении при температуре близкой к кипению. Более высокий нагрев не выгоден, потому что приводит к изменению органолептических свойств. В промышленных условиях это происходит при низких температурах и при пониженном давлении - в автоклавах. При сгущении пюре необходимо постоянно перемешивать, чтобы оно не пригорало. Добавляемые вещества, такие как сахар и желеобразующие вещества, примешивают при достаточном сгущении пюре, чтобы они зря не разрушались долгим нагреванием. После короткого кипячения пюре заполняют чистые банки. Стеклянные банки необходимо сначала прогреть, чтобы из-за высокой разницы температур они не потрескались. Для практики стоит запомнить, что человеческая рука выносит нагрев до 60 - 70 0
C. Стеклянные банки разных типов не должны трескаться при разности температур 30 - 50 0
C (банки должны выдерживать стерилизацию). Стеклянные банки при заполнении горячим пюре должны быть так прогреты, чтобы их можно было держать в руке.
Прессованием получают, прежде всего, фруктовые соки. Прессуют или целые фрукты, или чаще всего предварительно измельченные. Измельчение можно произвести в домашних условиях на ручной терке, или на кухонном комбайне. Для измельчения винограда достаточно простой давилки. Прессование проводят на прессовочных ручных мельницах или на приставках к кухонному комбайну или на малых домашних прессах. Выход сока при прессовании достигает около 70 %. В некоторых случаях выгодно другими способами повысить выход. Производят выдержку сырья в течение 2 - 12 часов, сбраживание сырья в течение 1 - 6 дней или проводят пектолиз сырья. Самым простым является разрыхление и умеренное увлажнение прессованного сырья и новое прессование. Выход в некоторых случаях превышает 10 %. Этим способом пользуются преимущественно при производстве фруктовых вин. Дальнейшая работа с выжатым соком, пока он не забродил, должна быть очень быстрой вследствие высокой активности микробиологических и биохимических процессов.
Приготовление заливки для компота и овощей производят по существующим рецептам. Самым простым способом является растворение всех составных частей в чистой питьевой воде в холодной или теплой. Перед заполнением тары заливку следует перемешать. Еще необходимо помнить, что в холодной воде растворяется самое большое около 60 % сахара, в горячей воде 90 0
C около 80 % сахара. При охлаждении избыточный сахар опять кристаллизуется. Поэтому при малом количестве продуктов заливку следует приготовить отдельно, разлить по банкам, заполненным продуктами, просыпать необходимым количеством отвешенного сахара и других добавок и банки долить водой. Засыпка сахара на дно пустых банок перед заполнением фруктами является менее пригодной, из-за того, что это может привести к его спеканию при быстро проведенной пастеризации.
Консервацию продуктов кислых или в кислой заливке пастеризацией нагревом иногда рекомендуют для отдельных простых видов продуктов и проводят по общепринятым правилам инактивации микробов стерилизацией, приведенным в первой главе. Закрытые заполненные банки можно устанавливать как в холодную, так и в теплую воду. Разница температур между банками и водой не должна превышать 30 - 50 0
C. Установка банок в теплую воду сокращает общее время стерилизации. Правильно проведенная закупорка создает клапан, который в банках Омния позволяет проникать воздуху из банок наружу, но препятствует проникновению воздуха и воды снаружи внутрь. Если произойдет всасывание, то после пастеризации в банке не будет разряжения и крышка на банке не будет держаться. Причиной этого может быть бракованная банка, крышка или уплотнение. Тогда можно - это выгодно - погрузить хорошо закрытые банки полностью под воду и таким образом можно прокипятить два слоя банок один над другим. Если кастрюля, в которой проводится пастеризация, подогревается прямо через дно, то необходимо под слой банок подложить железную или деревянную решетку, слой ткани или бумаги (смятые газеты). По окончании нагревания и остывания банки можно охладить следующим образом: целиком погруженные банки в горячей воде сначала сбрызнуть сверху холодной водой, после полного охлаждения воды в кастрюле их можно интенсивно охладить текущей водой. По другому способу можно вынуть горячие банки из воды и оставить спокойно остывать. Охлаждение прямо в кастрюле слишком медленное, что снижает пищевую ценность и органолептические свойства продуктов (потеря витаминов, излишне мягкая консистенция).
Пастеризацию можно проводить и сухим теплом, например, нагревом в духовом шкафу. В этом случае необходимо подложить под банки негорючий материал (например, асбест).
Консервные банки Twist-off и жестяные банки не могут после закрывания выпустить лишний воздух, поэтому их необходимо наполнять как можно больше - прежде всего, стеклянные - теплым или горячим продуктом.
Отдельным случаем пастеризации является так называемая пастеризация вне банок. В горячие банки накладывают горячее содержимое и сразу же закрывают горячими крышками. Перед закрытием хорошо бы пустить под крышку пар, чем непосредственно достигается плотное закрывание. Закрытые банки переворачивают, ставят на крышки и оставляют охлаждаться. При этом не проводят никакого особенного нагрева. Пастеризация содержимого должна быть проведена осторожным нагревом перед заполнением, пастеризация банок и крышек достигается их подогревом и дополнительным нагревом от горячего содержимого. Предпосылкой успеха является, кроме тщательной чистоты, и минимальное время между заполнением банок и закрыванием крышек. Достоинством этого способа является сокращенное время нагрева и, следовательно, лучшее качество продукта. Его нельзя, конечно, применять без достаточных теоретических и практических знаний.
Консервацию некислых продуктов можно проводить двумя способами: стерилизацией, т.е. нагревом свыше 100 0
C, часто при избыточном давлении в автоклавах; прерванной пастеризацией, т.е. двойным нагревом до 100 0
C, повторенным через 24 часа. С точки зрения потребности в специальном оборудовании в первом случае и хорошем теоретическом знании микробиологии в другом случае нельзя в домашних условиях заручиться безопасности и надежностью приведенных способов.
Хорошо закрепленные металлические крышки на банках является гарантией долгой сохранности стеклянных консервов. Еще они позволяют определить качество консервов по тому, что при легком постукивании ногтем пальца, карандашом, деревянной палочкой по середине крышки раздается звонкий хлопок. Чем выше тон, тем больше при той же толщине и диаметре крышки в банке избыточное давление. Крышка без избыточного давления, находящаяся без избыточного давления, находящаяся на горловине банки при деформации издает замкнутый, глухой или дребезжащий звук. Такая крышка не обеспечивает дальнейшей пригодности продукта.
Недостаточные пастеризационные или стерилизационные мероприятия чаще всего проявляется через несколько дней (3 - 5) по нагреву испорченного продукта (бомбаж). Он сопровождается появлением в банке цепочек газовых пузырьков, которые создают избыточное давление в банке и срывают крышку. Металлические крышки на банках могут создавать и тихий звук. Герметично закрытые банки можно легко открыть рукой. Жестяные банки раздуваются и округляются, возникает опасность открывания банок в замке или на спае и разбрызгивания содержимого.
Консервы после выраженного бомбажа следует обмыть чистой водой, чтобы устранить остатки прилипших приправ и заливки. Отдельные засохшие остатки сахарного сиропа при попадании в консервы во влажной среде могут вызвать прорастание плесени, плесень может прорасти и под уплотнительным кольцом. Чистые и сухие консервы следует хранить, если возможно, в прохладном и сухом месте. Стеклянные банки следует хранить в темном месте, от этого улучшается качество содержимого.
5. Консервирование квашением, солением и спиртованием
Угнетение развития микроорганизмов достигается добавкой значительного количества химически чистых веществ, которые бывают обычно составными частями продуктов, и поэтому не считаются чужеродными веществами.
Квашение
Речь идет о консервировании кислотами, содержащимися в большом количестве во фруктах или получающимися при обычном биологическом процессе - квашении. Сюда можно отнести кислоту лимонную, виноградную, яблочную и молочную. С практической точки зрения чаще всего применяют слабое окисление до концентрации 1,5 % кислот при производстве компота и овощей в кислой заливке. Также готовят продукты при консервировании нагревом до температуры 100 0
C, т.е. пастеризации. Далее, иногда используют комбинации молочной и уксусной кислот в соотношении 2:1 с концентрацией 2 % при консервировании молочным брожением.
В сущности консервированные изделия в переносимых вкусовых концентрациях дает только уксусная кислота, и то если в количестве не более 4-6 %. В настоящее время этот способ почти не употребляется.
Соление
Консервирующее действие поваренной соли (NaCl) проявляется при концентрациях не менее 10 %, некоторые микроорганизмы переносят концентрацию до 30 %. На практике применяют более низкие концентрации соли в комбинации с квашением при консервировании овощей. Соль, как самостоятельный консервант, применяют только при сохранении овощей в соли. Пошинкованные и порезанные овощи пересыпают солью. Аналогично растирают чеснок с солью. Готовая продукция должна содержать до 20 % соли и храниться в сухом прохладном месте.
Спиртование
Этанол (этиловый спирт C2H5OH) останавливает при концентрации 15 % деятельность микроорганизмов. На практике это применяют при приготовлении фруктов в спирте. Используют чистый, не денатурированный спирт не менее 60 %, подслащенный для улучшения вкуса 5 % сахара (сахар не оказывает консервирующего действия). Применяющиеся фрукты должны быть свежими, неповрежденными и не перезревшими, иначе в спирте они будут размягчаться и разлагаться.
Консервирование биологической обработкой среды
Консервирующее действие достигается обработкой среды биологическим путем и выгодным использованием деятельности некоторых микроорганизмов. Возникающие консервирующие вещества затем в высоких концентрациях заглушают и действие своих создателей.
Молочнокислое брожение
Действие молочнокислых бактерий приводит к превращению некоторых сахаридов в молочную кислоту или в некоторые другие, менее желательные вещества (преимущественно, кислоты: уксусную, масляную, этанол, CO2). Этот способ является классическим при консервации овощей. Обычно кислые фрукты не подвергают молочнокислому или спиртовому брожению, потому что они содержат мало сахаристых и белковых веществ, необходимых для брожения.
Для хорошего прохождения молочнокислого брожения требуется соблюдать некоторые правила. Хорошо очищенные овощи в целом виде (например, огурцы) или в нарезанном (шинкованная капуста) укладывают в чистую посуду. Овощи в посуде хорошо прижимают, чтобы выходил воздух, при этом высвобождается клеточный сок. Если сока мало, то можно добавить 1,5 % раствор поваренной соли. Всю поверхность заливают рассолом (содержание соли 1,7-2 % на весь объем посуды). Содержимое требуется закладывать таким образом, чтобы все постоянно находилось ниже уровня рассола. Наполненные емкости под действием окружающей температуры через несколько дней заквасятся под действием микрофлоры, которая при нормальных условиях присутствует на овощах. Если овощи перед закваской подвергали тепловой обработке (бланширование), то необходимо добавить молочнокислой закваски. Лучше всего воспользоваться чистой культурой закваски по инструкции изготовителя. При необходимости можно добавит и кислой сыворотки. В любом случае должна применяться закваска в свежем соке. При квашении удаляют с поверхности посуды, по мере необходимости, возникающую плесень и при необходимости доливают рассол (1,5 % поваренной соли), так, чтобы овощи были постоянно затопленными. Этим устраняется доступ воздуха к содержимому и нежелательный переход молочнокислого брожения на масляное, размягчение плодов и последующее гнилостное разложение.
Время брожения значительно зависит от температуры, при которой оно происходит. При температурах около 20 0
C брожение проходит за 4-8 дней, в более холодный предзимний сезон при температурах около 15 0
C за 3-4 недели. Низкие температуры способствуют увеличению времени квашения, что при длительном хранении продуктов выгоднее.
Для заквашенных овощей необходимо создать еще условия хранения. Складирование должно быть при температурах 0-10 oC, чтобы овощи не замерзли. С их верха необходимо снимать плесень, овощи должны быть затоплены. По мере необходимости можно доливать 1,5-2 % раствор поваренной соли, возможно слабое подкисление уксусом. В последнее время применяют для длительного консервирования стерилизацию квашением продуктов в герметических банках, преимущественно стеклянных.
Спиртовое брожение
Действие дрожжевых грибков рода Saccharomyces приводит к разложению некоторых, так называемых прямосбраживаемых моносахаридов на этанол и углекислый газ CO2. Этот способ является классическим при производстве фруктовых и виноградных вин и при производстве самогона. Следующим по важности после консервирования фруктов считается производство вин. При этом сначала из фруктов получают сок, сусло, которое в исходном состоянии или после соответствующей обработки (разбавление, подслащивание) сбраживают. Оптимальной первоначальной концентрацией сахара является 8 - 20 %, самое большее 30 %. Кроме сахара для брожения бывают нужны и минеральные питательные вещества. Для этого рекомендуют разбавленные соки улучшать раствором солей азота и фосфора. Оптимальная кислотность сусла составляет 0,3 - 0,8 %, в пересчете на лимонную кислоту. Оптимальная температура брожения 15 - 20 oC. Сусло обычно начинает брожение из-за микрофлоры, присутствующей на фруктах. Также можно использовать закваску, приготовленную из чистых культур дрожжей, согласно указаниям производителя.
Из 100 г сахарозы теоретически получается 53 г спирта, т.е. 67 объемных процентов, что составляет неполных 50 г. Можно запомнить, что конечное количество этанола составляет половину исходного количества сахара. Сусло в течение 2 - 3 дней забраживает, после чего бродит в теплом месте около 6 - 8 дней. Если процесс идет в малых, замкнутых объемах, необходимо осторожно выпускать освобождающийся CO2. Брожение останавливается или при сбраживании всего сахара, или при достижении концентрации этанола примерно 15 %. Лишь только вино достаточно очистится - дрожжевые грибки осядут на дно - его необходимо слить. Если осадок в вине передержать свыше 5 дней - это сильно снизит его качество.
Уксусное брожение
Действие уксусных бактерий приводит к превращению этанола в уксусную кислоту (СН3СООН). Это обстоятельство используется при производстве уксуса. Примерно 10 % раствор этанола с 1 - 2 % уксусной кислотой при постоянном интенсивном продувании воздухом при температуре 30 0
C сбраживается в уксус. Выход составляет 90 %.
Консервирование снижением влажности
Снижением подвижности воды в продуктах при нежелательных процессах можно создать среду, непригодную для вегетации микробов. Отнимание воды проводят или высушиванием или повышением содержания необходимых веществ: сгущением, подслащиванием. Микроорганизмы при этом способе консервации большей частью сохраняются. При хранении продуктов, приготовленных таким образом, надо следить, чтобы влажность, прежде всего, поверхности продуктов, которые не бывают достаточно герметично закрыты, равнялась влажности окружающей атмосферы. При обычных температурах хранения 20 0
C критическая относительная влажность воздуха приблизительно для бактерий составляет 95 %, для плесени - 75 %, для осмофильных дрожжей - 60 %.
Сушка
Сушка - это приведение воды из продуктов в газообразное состояние. Выпарить необходимо 80 - 90 % первоначального содержания воды. Высушивание можно проводить на солнце или свежем воздухе, в наших климатически условиях в различных сушильных устройствах. На процесс сушки влияют, прежде всего, температура и скорость движения воздуха в сушильном устройстве. В начале сушки выгоднее поддерживать высокую температуру и скорость движения воздуха, к концу сушки влияние движения воздуха практически отсутствует. Для скорости сушки имеет значение содержание водяных паров в воздухе. Чем температура воздуха выше, тем при данных условиях воздух суше, и он примет больше водяных паров при сушке продуктов. Напротив, излишне высокая температура и низкая влажность отводимого воздуха снижает экономичность системы. Во время сушки всегда происходят измене-ния органолептических и биохимических свойств продукта. Сушка является необратимым процессом, нельзя обратной добавкой воды получить продукты в исходной форме. Способность к набуханию является одним из показателей качества сушки. Кроме изменения окраски - побурения - при сушке происходит и изменение вкуса. В дальнейшем происходит снижение содержания витаминов. Поэтому выгодно некоторые продукты, преимущественно делимые овощи, перед сушкой слегка отварить и тем самым снизить активность присутствующих ферментов.
Сгущение
Сгущение - это частичное испарение воды из продуктов. Концентрированием нерастворимых веществ продуктов создают среду, непригодную для вегетации микроорганизмов. Фруктовые концентраты содержат обычно 50 - 70 % сухого вещества, овощные - 25-50 % сухого вещества. При низких концентрациях необходимо применять дальнейшее консервирование, например, квашением, засахариванием, при необходимости стерилизацией. Сырье при сгущении сначала отжимают или протирают. Для сохранения органолептических (вкус, запах, цвет) и биологических (витамины) свойств его выгоднее сгущать при низких температурах, в основном за счет снижения давления в автоклавах, и как можно быстрее. В домашнем хозяйстве обычно практикуют прямое нагревание до температуры, близкой к кипению. При таких температурах оказывается высокое противомикробное действие, что приводит к практической пастеризации. Напротив, большие изменения претерпевает окраска. Фруктовые и овощные пюре необходимо при сгущении помешивать, чтобы они не пригорали.
Консервирование добавлением сахара
Снижение общего содержания воды в продуктах достигается добавлением сахара (содержание воды в сахаре не более 0,2 %). Сахар сам не оказывает антимикробного действия, но создает среду с низким содержанием воды, но создает среду с низким содержанием воды, которая непригодна для вегетации. Продукты, консервируемые добавлением сахара (сиропы, мармелады, джемы, желе, повидло) имеют не менее 60 % сухого вещества, подслащенные фрукты не менее 70 % сухого вещества.
Сырье для консервирования добавлением сахара сначала отжимают или протирают через сито, сгущают при постоянном помешивании испарением необходимого количества воды, подслащивают, добавляют желеобразующую добавку (пектин), отваривают и раскладывают по банкам. Подслащивать холодными можно фруктовые соки при производстве сиропа. В соке сначала быстрым нагревом и охлаждением снижают активность ферментов, чтобы не привести к ухудшению органолептических свойств (вкуса, запаха, цвета). Холодный сок затем необходимо пропустить через слой сахара или сахар растворить в соке размешиванием.
Подслащенные (засахаренные) фрукты или овощи получают постепенным вымачиванием в постоянно концентрированном растворе сахара. Содержание воды в сырье и сахарном сиропе постепенно выравнивается до тех пор, пока содержание сахара в сырье не достигнет 70 %.
В последнее время появилась тенденция снижать содержание сахара в продуктах, как нежелательного источника энергии. Поэтому необходимо при низких концентрациях сахара применять другие способы консервирования, чаще всего пастеризацию или химическое консервирование.
Вымораживание
Устранение воды с помощью замораживания можно применять только к жидким продуктам, следовательно, и к фруктовым сокам. Сок необходимо медленно заморозить, после чего спокойно раздробить. Ледовые осколки хорошо отсепарировать, а приставший концентрированный сок отделить смыванием малым количеством воды. Это надо повторить несколько раз, пока не будет достигнуто требуемое содержание сухого вещества. При слишком медленном замораживании вырастают большие кристаллы льда, чьи полости содержат концентрат. Слишком малые кристаллы, напротив, имеют большую поверхность, с которой трудно смывать концентрат.
Консервирование снижением температуры
С понижением температуры замедляются биохимические и микробиологические процессы. При температурах ниже 0 0
C замерзает вода во фруктах и овощах, что очень напоминает высушивание среды. Консервирующее действие везде, однако, временное. В холоде лишь замедляются некоторые процессы разложения.
Охлаждение
Охлаждением можно продлить хранение фруктов и овощей лишь на короткое время. На практике это используют лишь при продолжительном складировании сырья перед обработкой. Температуры складирования должны быть минимальные наиболее близко расположенные над точкой замерзания. С точки зрения подавления всех биохимических реакций, выгодно складировать при низких температурах и готовые продукты. Лучше сохраняются их природные и органолептические свойства.
Замораживание
При замораживании фрукты и овощи охлаждают ниже температуры, которая приводит к их замерзанию. Точка замерзания зависит от сорта, разновидности и укладки. Если замораживание не проходит достаточно быстро, в плодах могут образоваться кристаллы, которые разрушают их клетки и ткани. К аналогичным изменениям приводит к вытеканию сока. Размороженные продукты подвергаются очень быстрой порче.
Для долговременного хранения продуктов, в течение нескольких месяцев, необходимо продукты достаточно быстро заморозить до температуры ниже -20 0
C и долгое время хранить при температуре около -18 0
С
6. Способы консервирования, применяемые в домашнем хозяйстве.
Способы консервирования, применяемые в домашнем хозяйстве
Консервирование, как всякое разумное вмешательство, которое применяют к сырью при складировании, не разрушает его природных свойств. При этом надо уделить внимание и другим ближайшим задачам, таким как, например, сохранение пищевой ценности, сохранение важнейших органолептических свойств - вида, запаха, вкуса и консистенции - и наибольшие ограничения потерь важнейших составных веществ, прежде всего, витаминов. Такого эффекта можно добиться разными способами. Каждый способ консервирования имеет свои достоинства и недостатки, некоторые имеют свои специфические особенности, другие требуют обязательного набора продуктов. Для потребностей домашнего консервирования разберем только те способы, которые могут быть реализованы с точки зрения доступной консервирующей техники.
Как уже было сказано, первой причиной потерь продуктов является деятельность микроорганизмов и все способы консервирования имеют намерение ее прекратить.
Предупредительные меры против инфекции
Интенсивность процессов распада в определенной среде прямо зависит от количества и жизнеспособности микробов и косвенно зависит от устойчивости среды. Поэтому требуется ограничить или как можно больше снизить доступ инфекции как к продуктам путем их переработки, так и к окружающей среде, например, упаковкой. Чистая рабочая среда, чистота посуды и инструмента, омытых гигиенически безвредной водой, являются поэтому очевидными требованиями. Большой проблемой является микробиологическая чистота добавляемого сырья, которое хотя в первоначальном состоянии и не загрязненное, но может стать источником инфекции. Высокую зараженность - высокое содержание микроорганизмов - может иметь, например, сахар, соль и все пряности. Часто также забывают засохшие остатки сахара и остатки прежних продуктов в банках, которые при мытье трудно устранить. Поэтому сначала необходимо, прежде всего, многократно использованные для консервирования, банки заранее хорошо вымыть. Такие засохшие комки могут способствовать порче и хорошо простерилизованных продуктов. Засохшие комки необходимо растворить или при мытье или при стерилизации, иначе это произойдет намного позже, при укладке выстерилизованных консервов. Споры микроорганизмов, которые имеют многие выносливые формы, переносящие консервирование, могут все испортить.
Подавление активности микробов стерилизацией
В консервировании применяется практика стерилизации, что означает подавление активности только тех форм микроорганизмов, которые при данных условиях могут способствовать заражению. При этом снижается влияние среды, что продолжается только до тех пор, пока к продуктам не проникнут новые зародыши. Хорошо простерилизованные консервы до тех пор не портятся, пока они герметично замкнуты. Консервирование нагревом, термостерилизацией прямо подавляет активность микробов физическим способом, воздействием тепла. На практике известна пастеризация, при которой действует нагрев до 100 o
C. Таким нагревом подавляют активность вегетативной формы микроорганизмов и обычных болезнетворных зародышей. Выгодно использование при консервировании кислых продуктов, потому что в такой среде не могут развиваться спороносные микроорганизмы и не могут прорасти споры. Стерилизацию, т.е. воздействие нагрева выше 100 o
C, используют при консервировании некислых консервов. Таким нагревом можно уничтожить спороносные и анаэробные микробы. Такой способ можно реализовать в домашних условиях, только это очень затруднительно.
Кроме высокой температуры при стерилизации имеют решающее значение и время воздействия температуры. Количество добавленного тепла или отношение повышения температуры ко времени воздействия, можно при данных условиях просто вычислить. На практике обычно используют уже проверенные режимы стерилизации. Обычно считают, что чем ниже температура, тем больше нужно времени для достижения полной стерилизации и при высоких температурах достигается более полная, глубокая и полноценная обработка. На режим стерилизации еще может влиять исходная зараженность сырья, кислотность изделия, влажность среды, в которой находятся микроорганизмы.
При подсчете количества добавленного тепла измеряют верхнюю температуру и время воздействия, также принимают во внимание и теплопроводность данной среды. Стеклянные банки будут прогреваться значительно медленнее жестяных. Также медленнее будет происходить и нагрев кусковидных и пюреобразных продуктов, по сравнению с жидкими. Для достижения необходимой стерилизации требуется, чтобы на каждую часть продукта воздействовала необходимое время необходимо высокая температура. Практически это означает, что надо прогреть среду консервирования, включая среду кусковидных частей и в той же степени, чтобы все части консервов были равномерно прогреты.
Консервирование химической обработкой среды
Обработка среды - обычно придание большего или меньшего количества способных к химическому воздействию веществ - приводит к угнетению различных микробов в продуктах. При этом не происходит уничтожение спор. Обычно происходит приостановка или ограничение жизнедеятельности и вегетации колоний микроорганизмов, что препятствует их размножению. Воздействие реагента зависит от его активности, действующих условий среды и концентрации. Основным недостатком этого способа консервирования является добавка нового, с точки зрения продуктов, чужеродного вещества. Некоторые ранее использовавшиеся химикалии оказались вредными для здоровья веществами и их использование как консервантов недопустимо (салициловая кислота), другие приводили к нежелательным изменениям органолептических свойств, т.е. вкуса, окраски, запаха и консистенции. Всеобщее использование химических консервантов стали ограничивать и там, где это технически и производственно возможно, применяют выгоднейшие способы консервации, преимущественно пастеризацию и стерилизацию. В промышленную продукцию могут быть положены химические консерванты вместе с другими, при этом их концентрация обязательно указывают. Из чистых химикалий для целей консервации используют преимущественно двуокись серы, бензойную кислоту, муравьиную и сорбиновую кислоты.
Двуокись серы (SO2
)
При нормальных условиях это бесцветный удушливый газ, в воде образует 6 % раствор. В малых количествах чаще всего употребляют в виде кристалликов или спрессованного в таблетки калиумпиросульфита. Окисленные на воздухе на воздухе эти кристаллики распадаются на белый порошок, поэтому их надо хранить только в хорошо закрывающихся пузырьках. Они хорошо растворяются в воде и в лучшем случае могут высвободить при растворении не менее 50 % SO2
(при сульфитации винограда, капусты и т.п.). Серными фитилями, которые при горении выделяют газ SO2 обезвреживают бочки и меньшие емкости для фруктов. При кипячении из продуктов выделяется большой объем двуокиси серы. Двуокись серы обесцвечивает преимущественно антоциановые красители (красный, синий). Готовые продукты должны содержать не более 0,02 % SO2. Такая концентрация не вредна для здоровья.
Бензойная кислота (C6
H5
COOH)
Бесцветное, кристаллическое или чешуевидное вещество без запаха, с наивысшей растворимостью в воде 0,21 %. Поскольку используется для производства нерастворенной (в порошке), ее надо хорошо размешать. В воде она плохо растворима, поэтому часто используют хорошо растворимый бензоат натрия. Бензоат натрия - белый кристаллический порошок сладковатого вкуса и раздражающего запаха с наивысшей растворимостью 61 весовая часть на 100 весовых частей воды. Обычно используют 10-12 % водный раствор.
Бензойная кислота влияет, прежде всего, на вкус изделия и может в различных концентрациях давать большие различия. Некоторые светлые фрукты могут потемнеть. Кипятить с изделием можно только незначительно. Используют при консервировании только кислых продуктов. В некислой среде мало очищает, не действует, прежде всего, на некоторые патогенные организмы. Готовые изделия должны содержать не выше 0,15 % бензойной кислоты. Одна часть бензойной кислоты может заменить 1,33 части бензоата натрия. Из-за ее слабого консервирующего действия ее иногда комбинируют с
соответствующим количеством других химических консервантов, прежде всего, SO2
.
Муравьиная кислота (HCOOH)
В концентрированном состоянии - это бесцветная жидкость, со жгучим вкусом и запахом, сильно кислая и едкая. На это надо обратить внимание при работе с ней. На практике используют водные растворы разной концентрации (50 %, 80 %).
Муравьиная кислота не меняет цвет или запах консервированных продуктов и в разных концентрациях не влияет на вкус. Немного разрушает в продуктах желеобразующие вещества - пектины. Но значительно агрессивнее по отношению к металлам. При кипячении с продуктами частично испаряется в равной пропорции с водой. При снижении объема вещества на половину испарением воды при 100 o
C, также снижается на половину и содержание кислоты. Использование кислоты для получения сильно кислой среды не рекомендуется. Готовые продукты должны содержать не более 0,15 % муравьиной кислоты. Из-за слабого консервирующего воздействия на некоторых комбинатах применяют уменьшенную порцию кислоты в консерванте и добавляют поло-
винную порцию SO2
или бензоата натрия.
Сорбиновая кислота (C6
H8
O2
)
Сорбиновая кислота представляет собой белый порошок без вкуса и запаха, с наивысшей растворимостью в воде 0,2 %, хорошо растворяется в спирте. Растворяется в воде сорбит натрия или калия.
В любых концентрациях не меняет органолептических свойств (вкуса, запаха, цвета и консистенции). Кипятить с продуктами из-за ее низкой текучести можно. Используют при консервировании в кислых средах. Не действует против бактерий молочнокислого брожения, поэтому иногда ее используют при производстве маринованных огурцов. В некислых средах в любых концентрациях не действует. В общем действует лучше, чем бензоат натрия. Готовые изделия могут содержать не более 0,05 % сорбиновой кислоты. С выгодой ее используют в комбинации с SO2
в половинной пропорции и прежде всего в консервировании подслащенных и десертных фруктовых вин, хранимых в бутылках при нормальной температуре. Оптимальная концентрация - 0,15 % сорбиновой кислоты и такое же количество SO2
с содержанием 10 % спирта. При более высоком содержании спирта можно снизить содержание сорбиновой кислоты на 10 % на каждый 1 % спирта.
Салициловая кислота (C7
H6
O3
)
Это бесцветный кристаллический порошок в форме игл сладковатого вкуса. Слаборастворимый в воде, хорошо растворяется в спирте. Как консервант хорошо использовать в сильнокислых средах.
Салициловая кислота раньше широко использовалась в домашнем консервировании на основании рекомендаций в разных непрофессиональных журналах и в переводных заграничных статьях с указанием на то, что она содержится в невероятных количествах в некоторых фруктах. Салициловая кислота - вещество вредное для здоровья и запрещено для консервирования.
7. Технологии квашения овощей.
Технология квашения капусты.
Капусту заквашивают целыми кочанами или нарезанную (нашинкованную или рубленую). Более распространен последний способ. При заквашивании целыми кочанами требуются значительно большие емкости.
Квасят капусту с кочерыгой или без нее. В первом случае кочерыги сильно измельчают. Перед шинкованием кочерыгу рассекают ножом на четыре—восемь частей. Если капусту готовят без кочерыг, их удаляют ножом вручную или на специальных сверлильных машинах. Согласно действующему стандарту, по способу приготовления квашеную капусту подразделяют на виды: шинкованная, рубленая, кочанная с переслойкой шинкованной или рубленой и цельнокочанная.
Существует много рецептов приготовления квашеной капусты. Однако обязательные компоненты в ней — морковь и соль. Добавление моркови (3...5 % массы капусты) столовых сортов обеспечивает достаточное количество Сахаров для питания молочнокислых бактерий и дрожжей, улучшает внешний вид продукта, повышает его витаминную ценность. Желательно, чтобы и в самой капусте было больше сахара (не менее 4 %). Соль вводят 1,7 % общей массы капусты и моркови. Часто в капусту добавляют (%): целые яблоки до 8, клюкву 2, семена тмина 0,05, столовую свеклу 6, сладкий перец до 10 или маринованные грибы до 9. Для квашения капусты используют дошники, деревянные бочки, контейнеры, пленочные материалы.
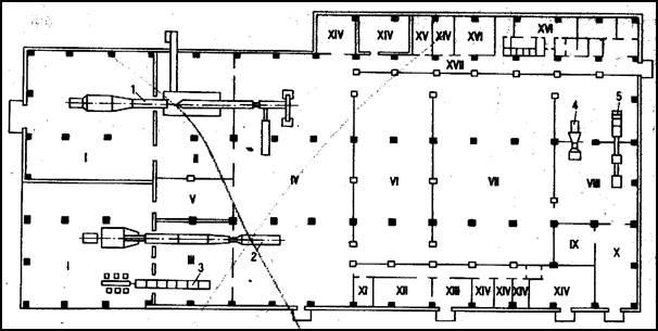
После удаления зеленых, поврежденных и загрязненных листьев кочаны шинкуют. Подготавливают капусту и другие виды сырья, вводимые в нее, на поточных линиях квасильных пунктов, оснащенных транспортерами и необходимыми машинами. Одна из таких линий показана на рисунке 1. Зачищают кочаны на столе 1. Отходы удаляют с помощью транспортеров 2
и 5. Подготовленные кочаны поступают в шинковальную маши-ну 6.
Измельченная капуста попадает на вибрационные сита, просеивается и передается на транспортер 7, а оставшаяся на ситах (пластинки кочерыги и крупные листья) снова поступает в шинковальную машину. Дозатор 8
распределяет чистую нашинкованную на корнерезке морковь. Соль предварительно просеивают и пропускают через маг-нитные установки. Нашинкованная капуста вместе с морковью и солью с наклонного транспортера 7 попадает на реверсионный конвейер 11
и
оттуда в приемные контейнеры. Последние уста-новлены по обе стороны реверсионного конвейера на платформах товарно-рычажных весов, оборудованных контактами. После за-полнения контейнера смесью шинкованной капусты, моркови и рсоли
площадка весов 14,
опускаясь, включает контакты электро-двигателя реверсионного конвейера, и он начинает двигаться в обратную сторону, заполняя второй свободный контейнер. Взвешенный контейнер электропогрузчиком 13
доставляют .к дошнику 10.
Сталкиватель погрузчика выдвигает вперед кожух контейнера без дна, и нашинкованная капуста падает в дошник, частично уплотняя находящуюся в нем продукцию. При запол-нении дошника капусту разравнивают железными лужеными, деревянными или из нержавеющей стали граблями с длинной ручкой. Утрамбовывают ее деревянными трамбовками.
Дошник заполняют капустой выше краев в виде конуса до 1 м. Затем капусту укрывают чистым полиэтиленовым полотном или марлей в два слоя и оставляют для осадки на 12...24 ч. После Поверхность разравнивают и добавляют новую порцию нашинкованной капусты до краев дошника, закрывают чистыми зелеными Листьями слоем 5см, прокипяченным полотном и накладывают подгнетный деревянный круг, надавливая его так, чтобы сок на 5 см закрывал поверхность капусты. Признаком начала брожения капусты служит легкое помутнение сока и появление на его поверхности пузырьков газов. Образующуюся при этом пену |удаляют.

Рис.1 Поточная линия квашения капусты:
1 — стол для удаления листьев; 2 и 5 — транспортеры отходов; 3 — бункер отходов; 4 — транспортер; 6 — шинковальная машина; 7 — наклонный транспортер; 8 — Дозатор моркови; 9 — дозатор соли; 10 — дошник; 11 — реверсионный конвейер; 12 — контейнер; 13 — электропогрузчик; 14 — вес.
В некоторых квасильно-засолочных цехах вместо винтовых прессов применяют водно-солевой гнет. После самоуплотнения капусты (2 ч) сверху накладывают полиэтиленовую пленку тол-щиной 150...200 мкм, размером на 0,8м больше диаметра дош-ника. На пленку ровным слоем насыпают поваренную соль из расчета 80кг на Ют капусты и постепенно, по мере оседания капусты (но не ниже 20см от верхнего края дошника), нали-вают водопроводную воду — 500...600 л. Вода плотно прижимает пленку к стенкам дошника, создавая надежные анаэробные условия для ферментации капусты. Перед вскрытием дошника для реализации капусты солевой раствор откачивают в свободный резервуар. Раствор и полиэтиленовую пленку используют многократно. Преимущества водно-солевого гнета заключаются в том, что он надежен и прост в эксплуатации, требует меньше трудовых и материальных затрат, сокращает по сравнению с винтовым прессом (гнетом) общие потери на 5...7 %.
Для совершенствования технологии и снижения потерь, улучшения санитарного состояния при квашении капусты в дошники рекомендуют помещать вкладыш из нестабилизированных полиэтиленовых пленок низкой плотности (марок А и Б). Вкладыш заполняют шинкованной капустой выше краев на 50 см, разравнивают и в центре делают углубление 20...30 см. Для герметичности верхний шов вкладыша профильным замком соединяют с покрышкой (или соединяют сварочным аппаратом). По центру покрышки предварительно монтируют штуцер с обратным клапаном, который соединяют со шлангом. С помощью вакуумного насоса постепенно откачивают воздух до разрежения 300 мм.
При температуре 18...22°С за 5...7 сут образуется молочная кислота (0,7...1 %). При таких условиях квашение заканчивается за неделю. Продукт во избежание перекисания охлаждают. Для этого капусту часто перекладывают из дошников в бочки и через шпунтовое отверстие заливают соком. Затем отверстие закрывают, а бочки отправляют в холодильные камеры.
При квашении капусты, солении овощей, мочении плодов используют контейнеры ЕС-200 с полиэтиленовыми вкладышами (рис. 2). Капусту доставляют в квасильный цех в контейнерах 2
Электропогрузчиком 1
контейнеры устанавливают на контейнероопрокидыватель 3,
с которого капуста поступает на ленточный транспортер 4
зачистки, где вручную снимают верхние зеленые, грязные и поврежденные листья, обрезая кочерыгу вровень с кочаном или высверливают ее. Отходы удаляют по транспортерам, а очищенные кочаны при помощи скребкового транспортера 5 подают в шинковальную машину 6.
Высота последней позволяет установить здесь контейнер 7
с полиэтиленовым вкладышем для заполнения шинкованной капустой и морковью.

Рис. 2. Механизированная линия квашения капусты в контейнерах ЕС-200:
1 — электропогрузчик; 2, 7, 13 — контейнеры; 3 — контейнероопрокидыватель; 4 — ленточный транспортер; 5 — скребковый транспортер; 6 — шинковальная машина; 8 — дозатор соли; 9 — дозатор моркови; 10 — дозатор подачи закваски молочнокислых бактерий; // — устройство прессования и вакуумирования капусты; 12 — вакуум-насос; 14 — весы; 15 — резервуар закваски из молочнокислых бактерий;
I— вода,
II — пар.
Морковь моют, очищают и подают в дозатор 9,
из которого она поступает на измельчение в овощерезку. Заполненный солью дозатор 8
устанавливают в верхней части транспортера подачи шинкованной капусты и моркови.
В контейнер ЕС-200 одновременно поступают все компоненты. Капуста орошается закваской из молочнокислых бактерий с помощью распыляющих форсунок (из расчета 4 л на контейнер). Затем контейнер электропогрузчиком подают к устройству // прессования шинкованной капусты. Оно состоит из металлического диска, жестко прикрепленного к потолку квасильного цеха, вакуум-насоса ВНН-1,5М и зажима горловины полиэтиленового вкладыша, прижим которого обеспечивает герметичность в соединении с диском. Электропогрузчиком контейнер с капустой поднимают вверх, закрепляют на диске полиэтиленовый вкладыш, включают вакуум-насос 12.
Капуста уплотняется, на ее поверхности появляется сок. После этого вакуум-насос выключают, освобождают от зажима горловину вкладыша и опускают контейнер вниз. Горловину вкладыша продевают в зазор между средними планками решетки-гнета, которую укладывают поверх спрессованной капусты и закрепляют фиксаторами.
Затем контейнер помещают в камеру ферментации, где выдерживают 3...4 сут при температуре 24...26°С до накопления в капусте молочной кислоты 0,6 %. В результате брожения горловина полиэтиленового вкладыша заполняется капустным соком, препятствующим проникновению в продукцию вредной микрофлоры.
После активной ферментации капусты полиэтиленовые вкладыши герметизируют и электропогрузчиком контейнеры перевозят в охлаждаемое хранилище. Хранят контейнеры при температуре 0±1 °С штабелями в четыре—шесть ярусов. После реализации порожние контейнеры возвращают для повторного использования. Такая технология предусмотрена в квасильно-засолочном цехе (рис. 84), где квашеной продукции вырабатывают 500 т, соленой 250 т в год (типовой проект 814—2—2.13.87).
В квашеной капусте первого сорта массовая доля поваренной соли должна составлять 1,2...1,8 %, титруемая кислотность (в пересчете на молочную кислоту) 0,7...1,3 %. Капуста должна быть сочной, упругой, хрустящей при раскусывании, светло-соломенного цвета с желтовато-зеленоватым оттенком, с ароматом, характерным для квашеной капусты, и ароматом приправ. Вкус — приятный, кисловато-солоноватый, без горечи и постороннего привкуса. Наилучшая температура хранения квашеной капусты 0...2 °С.
-
Рис. 3. План квасильно-засолочного цеха производительностью 750 т в год:
1 — линия подготовки капусты; 2 — линия подготовки огурцов и томатов; 3 — линия подготовки зелени; .4 — линия фасования вашеной капусты; 5 — линия фасованна соленых огурцов и томатов;
I — сырьевая площадка;
II — отделение подготовки капусты;
III — отделение подготовки огурцов-и томатов; IV — квасильно-засолочное отделение; V — отделение приготовления контейнеров; VI — ферментационное отделение; VII — охлаждающая камера; V
III
— отделение фасования;
IX
— камера хранения готовой продукции; Х — экспедиция; XI — кладовая специй; XII — отделение приготовлений солевого раствора; X
III —
кладовая сол; XIV — служебные помещения; XV — отделение приготовления закваски; XVI — бытовые помещения; XVII — коридор.
При подготовке сырья, приправ, пряностей нормируемые потери составляют (% к зачищенному сырью): для капусты белокочанной свежей 8, моркови 16,6; клюквы и брусники 10; яблок 3; перца стручкового сладкого 25; поваренной соли 1. Зеленые капустные листья, очистки от моркови, свеклы и другие отходы квасильно-засолочного цеха используют на кормовые цели. Потери возрастают, если удаляют кочерыгу; при высверливании на станке они составляют 10,8 %, при вырезке ножом — 13 % массы зачищенной капусты.
Технология соления огурцов и томатов.
Партии сырья сортируют по качеству (сортам) и калибруют по размеру. Томаты сортируют также по степени зрелости. Огурцы калибруют на корнишоны (до 50 мм, 51...70 и 71...90 мм); мелкие 91...110 мм; средние 111...120 и крупные 121...140 мм.
Технологические требования к огурцам, предназначенным для соления и маринования, включают показатели качества, например: размер, форма—правильная, цилиндрическая, удлиненно-овальная; поверхность — гладкая, опушенная, допустима мелко и среднебугорчатая; цвет—однородный, зеленый или темно-зеленый; консистенция — плотная, хрустящая; вкус — характерный, без горечи; отношение длины плода к его диаметру — не менее 2,8; отношение семенной камеры к диаметру плода — 0,6. Кожица должна быть тонкой, негрубой. Содержание сухих веществ (по рефрактометру) не менее 4...5 %, Сахаров не менее 2,5 %. Таким требованиям отвечают огурцы сортов Нежинский местный. Нежинский 12, Донской 175, Парад, Витязь, Конкурент, Кустовой, а также гибриды Fi Великолепный, Дельфин, Садко, Сигнал 235 и др.
При солении огурцов используют разнообразные рецепты. Почти во все из них входят: укроп—3...4 %; хрен —
0,5... 0,8; чеснок—0,25..,.0,6; перец горький свежий—0,1...0,15 или сушеный—0,03%. В некоторых рецептурах используют эстрагон -0,5...0,8 %, листья петрушки — 0,5, черной смородины — 1...2,5 % и др.
Технологические требования к сортам томатов, предназначенным для соления и маринования, включают следующие показатели качества; форма—однородная, удлиненная, округлая; размер—для удлиненной длина 36...70 мм, диаметр 25. .40, для округлых 30...40 мм; поверхность — гладкая; место прикрепления плода—8.., 10 мм2
; число камер—две-три; консистенция—мясистая без пустот; цвет — однородный, ярко-красный, без зеленовато-желтого пятна; вкус — гармоничный, с характерным ароматом. Семена не должны превышать 0,7 % массы плода. Со держание сухих веществ (по рефрактометру) не менее 5,5 %; витамина С не менее 25 мг%; ликопина не менее 4,2 мг%; рН 4,2...4,4. отношение сахара к кислоте не менее 7. Томаты, отвечающие перечисленным требованиям, используют для консервирования.
Рецептуры соления томатов разнообразны. Обычно добавляют укроп—1,5...2,5, чеснок—0,3...0,4 %. Хрен вводят значительно реже—0,3...0,6 %. Часто используют перец горький—0,1...0,15 и листья смородины—1...2.5 %. Ограниченно применяют смеси майорана, базилика, чабера и кориандра—до 0,5%.
После сортирования огурцы и томаты поступают на мойку. Сильно загрязненные "плоды и зеленцы замачивают 30...40 мин в ваннах с чистой проточной холодной водой. Затем их моют на моечных машинах и перемещают транспортерами к подготовленной таре. Иногда процесс завершают ополаскиванием под душем. Пряности хорошо промывают и нарезают на кусочки длиной не более 8 см; хрен (листья или коренья) после мытья и очистки измельчают на корнерезке (лапша или кружочки). У чеснока обрезают донце и шейку, промывают и делят его на зубки.
Подготовленные бочки взвешивают. На дно бочки кладут треть порции полагающихся компонентов. Затем заполняют огурцами или томатами до половины, после кладут вторую треть пряностей и заполняют бочку доверху. Сверху укладывают оставшиеся пряности так, чтобы купорочное дно плотно надавливало на их верхний слой. .Затем вставляют купорочное дно и осаживают обручи. Сразу после этого через шпунтовое отверстие вводят приготовленный рассол и для быстрого начала брожения и накопления молочной кислоты (0,3...0,4 %) оставляют их на 1...2 сут на бродильной площадке.
Естественная убыль массы при солении огурцов при ферментации составляет 4...7 %, в зависимости от сорта и условий хранения, После ферментации бочки доливают рассолом и плотно закрывают шпунтовое отверстие пробкой, положив на нее кусочек полотна или мешковины.
Бочки маркируют и отправляют на склад. Дальнейшее брожение проходит при низких положительных температурах. В таких условиях оно идет медленно и в огурцах не образуются пустоты в результате разрыва тканей под действием выделяющихся при брожении газов. При хранении на льду огурцы готовы через 50...60 сут, в обычных хранилищах (подвалах) через 30 сут.
Концентрация рассола зависит от условий хранения. Если огурцы хранят в подвалах, количество соли увеличивают на 1 % Учитывают и размеры огурцов. Так, для крупных концентрация рассола больше 8 %, средних 7, мелких б %. Рассол готовят на специальных станциях. Соль растворяют до получения концентрированного раствора, затем разводят его до нужной концентрации При перекачивании раствор пропускают через мешочные фильтры. Рабочий рассол в бочки подается самотеком. Вода жесткостью 20...35 мг.экв/л и содержанием солей железа не более 0,3 мг/л — лучшая для приготовления рассола. Массовая доля поваренной соли в рассоле должна составлять 2,5...3,5 %, титруемая кислотность (в пересчете на молочную) — 0,6...1,2 %. По консистенции огурцы должны быть крепкими, с плотной мякотью, с недоразвитыми водянистыми, некожистыми семенами, хрустящие. Вкус — солоновато-кисловатый, с ароматом и привкусом пряностей.
Аналогично солят и томаты. Красные и розовые плоды помещают в бочонки или бутыли вместимостью соответственно 50 или 5 л. В соленых томатах (красных и розовых) массовая доля поваренной соли должна составлять 2...3,5 %; титруемая кислотность — 0,8... 1,2 %. Плоды должны обладать мягкой, не расползшейся консистенцией, кисловато-солоноватым вкусом с ароматом и привкусом пряностей.
При солении огурцов, томатов, арбузов, перцев, мочении яблок также применяют полиэтиленовые вкладыши. Заполненные овощами с пряностями контейнеры с вкладышами взвешивают отмечают массу брутто, нетто и дату засолки. На ферментационной площадке в них укладывают и фиксируют решетку-гнет, заливают продукцию рассолом и выдерживают ферментационный период. После окончания ферментации контейнеры визуально проверяют на герметичность. Доливают рассол до полного покрытия решетки-гнета слоем 3...4 см, затем герметизируют вкладыш. Герметизированные контейнеры с соленой продукцией перевозят в охлаждаемые хранилища и устанавливают в четыре—шесть ярусов. Реализуют продукцию в тех же контейнерах или в фасованном виде. В последнем случае требуется специальная линия.
8. Свеклосахарное производство.
Из общего ежегодного количества произведенного в России сахара примерно две трети приходится на свекловичный.
Характеристика сырья
Сахарная свекла
- двулетнее растение семейства маревых. В первый год после высеивания семян образуется сочный корнеплод, содержащий сахарозу как запасное питательное вещество. Убирают свеклу в конце первого года развития, когда в корнеплоде накапливается наибольшее количество сахарозы - состояние технической спелости. Для уборки используют свеклоуборочные комбайны: при этом теряется около 20 % корнеплодов, свекла сильно травмируется. Приемку свеклы
сахарные заводы осуществляют в соответствии с ГОСТ 17421-82, оговаривающим состояние свеклы, а также с учетом сахаристости и загрязненности корнеплодов. Хранят свеклу
в кагатах, имеющих форму трапеции и размещенных на специально подготовленных площадках - кагатных полях. Оптимальные температура внутри кагатов 0-4 градуса и относительная влажность 90 % поддерживаются за счет активного вентилирования.
Химический состав сахарной свеклы
Сахарная свекла (100 кг)
/ \
Свекловичный сок (93 кг) Мякоть (7 кг)
/ | \ / \
Сахароза Растворимый Вода Нерастворимый Связанная
(16,5 кг) несахар(2,5 кг) (74 кг) несахар(4,5 кг) вода(2,5 кг)
Переработка свеклы и получение диффузионного сока
Сахарная свекла с кагатного поля или бурачной
(бетонированная емкость для выгрузки свеклы железнодорожной или автомобильной доставки) по гидротранспортеру
подается в завод при соотношении свекла:вода=1:7. В процессе транспортировки осуществляется отделение ее от примесей на камне- и ботвосоломоловушках.
Разделение основано на разной плотности свеклы и примесей. Окончательное отмывание свеклы производится в моечных машинах
, после чего она ополаскивается чистой хлорированной водой и взвешивается. Для выделения сахарозы из свеклы ее изрезывают в стружку на центробежных или дисковых свеклорезках.
Качество свекловичной стружки оценивается по длине 100 г ее (оптимальной считается длина 12-15 м) и количеству брака (неразрезанных гребешков, мезги, частиц короче 1 см). Экстрагирование сахарозы
из свекловичной стружки осуществляют в диффузионных аппаратах
за счет противоточной обработки горячей водой. При этом сахароза и растворимые несахара переходят (диффундируют) в воду, в результате чего их концентрация в стружке понижается, а в воде увеличивается - движущая сила процесса. Свекловичный сок находится в вакуолях клеток, окруженных слоем протоплазмы, которая пропускает воду, но не пропускает растворенных в ней веществ. Для извлечения сахарозы необходимо разрушить протоплазму клеток путем прогрева стружки до температуры 60-70 градусов: при более высокой температуре начинают переходить в сок высокомолекулярные соединения. Процесс экстрагирования сахарозы подчиняется основному закону диффузии Фика
S=-DF(C-c)t/x,
где S - количество растворенной сахарозы, продиффундировавшей через слой растворителя; С - концентрация сахарозы в стружке; с - концентрация сахарозы в растворе; t - длительность процесса; x - толщина слоя (длина пути диффундирования); F - поверхность экстрагирования; D - коэффициент диффузии, зависящий от температуры процесса и природы экстрагируемого вещества. Проводят экстрагирование сахарозы на непрерывнодействующих диффузионных установках наклонных шнековых или колонных. Оптимальным для осуществления процесса диффузии можно считать режим температура 70-74 градуса; длительность 60-70 мин; расход экстрагента 100 % к массе стружки; выход обессахаренной стружки 70-80 %; потери сахарозы в жоме 0,3-0,4 %. Обессахаренная стружка (жом)
непосредственно или после высушивания используется на корм скоту.
Очистка диффузионного сока и получение сиропа
В диффузионный сок переходит 98 % сахарозы и 80 % растворимых несахаров; его чистота (отношение массы сахарозы к сухому веществу, выраженное в процентах) составляет 86-88 %. Все содержащиеся в диффузионном соке несахара препятствуют получению кристаллической сахарозы и увеличивают потери сахарозы в мелассе - конечном отходе сахарного производства. Задача сокоочистительного отделения
состоит в максимальном удалении несахаров и части влаги, получении светлого прозрачного сиропа, пригодного для выкристаллизовывания сахарозы. Диффузионный сок, выходящий из аппарата, представляет собой мутную жидкость темно-серого цвета, содержащую 3-5 г/л мезги и имеющую слабокислую реакцию (рН 5,8-6,4). Для освобождения его от мезги используют ротационные мезголовушки;
нейтрализацию и осветление сока осуществляют путем обработки известью в виде известкового молока (раствора Са(ОН)2
плотностью 1,19 г/см3
). Добавление извести осуществляют в два этапа - предварительная и основная дефекации. Преддефекация
предусматривает постепенное увеличение рН сока за счет противоточного введения в него известкового молока в количестве 0,25 % CаО. Под действием иона кальция
коагулируют и осаждаются коллоидные вещества сока - белки, пектины, красящие вещества; осаждаются соли некоторых органических (щавелевой, лимонной, оксилимонной, яблочной, винной, уксусной) и минеральных (серной и фосфорной) кислот; под действием иона гидроксила
удаляются катионы магния, железа, алюминия на счет образования нерастворимых гидроокисей. Сок осветляется, приобретает желто-зеленую окраску, рН его увеличивается до 10,8-11,6. В процессе предварительной дефекации осаждается 60 % всех несахаров, удаляемых в процессе очистки, формируется структура осадка с оптимальными свойствами. Для улучшения структуры осадка и повышения эффективности удаления несахаров целесообразно возвращать на преддефекацию суспензию сока 2 сатурации. Основная дефекация
предназначена для разложения под действием ионов гидроксила и высокой температуры
редуцирующих веществ, солей аммония, амидов, белковых и пектиновых веществ, омыления жиров. Продуктами реакции являются кальциевые соли соответствующих органических и минеральных кислот. Разложение белка и пектина нежелательно, так как продукты распада являются растворимыми и не удаляются из соков; разложение азотистых небелковых соединений и редуцирующих веществ препятствует образованию окрашенных соединений, ухудшающих качество сахара. На реакции разложения расходуется не вся известь, большая часть ее остается в соке в виде осадка. При низких температурах растворимость извести повышается. I сатурация.
Сок после дефекации обрабатывают сатурационным газом, содержащим 28-32 % СО2
- сатурация. При этом протекает реакция по уравнению:
Са(ОН)2
+ СО2
= СаСО3
+ Н2
О.
Образующийся карбонат кальция обладает коллоидными свойствами и имеет развитую активную адсорбционную поверхность, на которой адсорбируются несахара диффузионного сока.
В процессе сатурирования рН снижается, но нельзя его уменьшать ниже 10,8-11,0, так как при этом значении осаждена большая часть несахаров на преддефекации: при более низком значении рН они перейдут в раствор. После сатурирования сок направляется на отстаивание или фильтрование
с целью удаления осадка карбоната кальция и адсорбированных на нем несахаров. Фильтрованный сок направляется на 2 сатурацию, а фильтрационный осадок обессахаривается и выводится с производства. 2 сатурация.
Повторная обработка сатурационным газом осуществляется с целью максимального удаления ионов кальция
. Допускается введение перед 2 сатурацией СаО в количестве 0,25-0,30 % к массе сока для дополнительной адсорбционной очистки. Конечное рН сока 2 сатурации 9,0-9,5; сок фильтруется, осадок направляется на преддефекацию. Сульфитация.
Фильтрованный сок 2 сатурации подвергается сульфитации - обработке сульфитационным газом, содержащим 10-12 % SO2
. При этом снижается рН сока до 8,5-8,7, уменьшается его вязкость. Основное назначение сульфитации
- снижение цветности сока за счет блокирования сернистым газом хромофорных групп окрашенных соединений с превращением их в бесцветные лейкосоединения и стерилизация. Сульфитированный сок фильтруют и направляют на сгущение. Получение сиропа.
Удаление воды из сока осуществляют в пятикорпусной выпарной установке
, в которой реализуется принцип многократного использования тепла и пара,
то есть пар, полученный при выпаривании воды из сока в первом корпусе, направляется в качестве греющего во второй корпус. При этом от первого корпуса к последнему снижаются температура и давление греющего пара, температура кипения сока, увеличиваются концентрация и цветность. Высокие температура и давление пара в первом корпусе обеспечиваются потенциалом греющего пара (подается ретурный пар с паровой турбины при температуре 132 градуса и давлении 0,3 МПа); низкая температура кипения и разрежение в последнем корпусе поддерживаются за счет подачи соковых паров из этого корпуса на барометрический конденсатор. В процессе сгущения протекают химические реакции
разложения сахарозы и редуцирующих веществ, азотистых соединений, образования красящих веществ; происходит отложение накипи на поверхности теплообмена выпарных аппаратов и изменение рН сока. Если на основной дефекации недостаточно полно проведены реакции разложения редуцирующих и азотистых веществ, то они продолжаются на выпарной станции. Продуктами реакции являются красящие вещества, которые перейдут в готовую продукцию. При несоблюдении оптимального режима очистки сока в нем остается много кальциевых солей органических и минеральных кислот, которые при сгущении сока откладываются в виде накипи. Сок сгущают в выпарной установке до массовой доли сухих веществ 60-65 %, удаляя из него 100-115 % воды по массе. Полученный сироп сульфитируют, фильтруют на дисковых фильтрах с предварительным нанесением фильтровального порошка перлита или кизельгура
и направляют на кристаллизацию.
Получение кристаллического сахара и переработка оттеков
Назначение кристаллизации
- максимальное выделение в кристаллическом виде сахарозы, содержащейся в сиропе. В зависимости от чистоты сиропа необходимо выбрать число ступеней кристаллизации: при чистоте ниже 90 % - две ступени; выше 90 % - три. Сироп наряду с сахарозой содержит несахара, неудаленные в процессе очистки сока и вновь образовавшиеся в процессе сгущения. При выкристаллизовывании сахарозы образуется смесь кристаллов и межкристального раствора (утфель): несахара будут накапливаться в межкристальном растворе. Несахара затрудняют кристаллизацию сахарозы, увеличивая вязкость растворов. При определенном соотношении сахарозы и несахаров процесс кристаллизации становится неосуществимым.
Трехпродуктовая схема кристаллизации сахарозы
Утфель 1 продукта
уваривают в вакуум-аппарате
из смеси сиропа и клеровки желтого сахара. Процесс уваривания состоит из четырех этапов: сгущение сиропа до перенасыщенного состояния (метастабильная зона перенасыщения, К=1,20-1,25); образование центров кристаллизации ("заводка кристаллов") за счет введения тонко размолотой сахарной пудры; наращивание кристаллов до оптимального размера; окончательное сгущение и спуск утфеля из вакуум-аппаратов. Длительность уваривания утфеля 1 180-210 мин, температура 70-75 градусов, концентрация кристаллов сахарозы в утфеле 50-55 %, массовая доля сухих веществ 92-92,5 %. Кристаллы сахара отделяют от межкристального раствора центрифугированием,
при этом образуются первый оттек ("зеленый"), а после промывки кристаллов горячей артезианской водой - второй оттек ("белый"). Кристаллы сахара, имеющие влажность 0,8-1,0 %, инерционным конвейером
подаются в сушильное отделение. Утфель второго продукта
уваривают из первого и второго оттеков утфеля 1 в течение 300-330 мин до массовой доли сухих веществ в утфеле 93 %, центрифугируют с получением желтого сахара второй кристаллизации и общего оттека. Утфель третьего продукта
уваривают из оттека утфеля второго, затем добавляют аффинационный оттек. Длительность уваривания 420-840 мин, массовая доля сухих веществ 93,5-94,0 %. За счет концентрирования несахаров в утфеле последней кристаллизации скорость выкристаллизовывания сахарозы снижается. Для более полного выделения сахарозы вводят дополнительно кристаллизацию охлаждением. Утфель последнего продукта из вакуум-аппаратов направляют в приемную мешалку, а затем в мешалки-кристаллизаторы, в перемешивающие устройства которых подается холодная вода в противотоке к утфелю. Проходя через батарею мешалок-кристаллизаторов утфель за 36-48 часов охлаждается на 30 градусов, что способствует переходу части сахарозы из межкристального раствора в кристаллы. Перед центрифугированием утфель последнего продукта подогревают на 6-8 градусов для снижения вязкости межкристального раствора. В процессе центрифугирования утфеля последнего получают желтый сахар и мелассу. По существующей технологии дальнейшее обессахаривание мелассы нецелесообразно из-за высокого содержания несахаров. Меласса
является отходом сахарного производства, содержащим около 50 % сахарозы; выход мелассы 5-6 % к массе перерабатываемой свеклы. Кристаллы желтого сахара последней кристаллизации содержат на поверхности пленку мелассы, которая снижает их чистоту. Для повышения чистоты желтый сахар смешивают с разбавленным первым оттеком утфеля 1. Этот процесс называют аффинацией,
а полученную массу - аффинационной
. Аффинационную массу центрифугируют с отбором аффинированного желтого сахара и аффинационного оттека, который направляют на уваривание утфеля последнего. Аффинированный желтый сахар и желтый сахар второй кристаллизации растворяют соком 2 сатурации до массовой доли сухих веществ 65-70 % (клеровка
), смешивают с сиропов после выпарной установки, сульфитируют, фильтруют и направляют на уваривание утфеля 1 кристаллизации.
Двухпродуктовая схема кристаллизации сахарозы
По этой схеме утфель 1 кристаллизации
уваривают из смеси сиропа с клеровкой и второго оттека утфеля 1, центрифугируют с отбором двух оттеков: первый направляют на уваривание утфеля 2, второй возвращают "на себя". Утфель второй кристаллизации
(последний) уваривают из части первого оттека утфеля 1 и аффинационного оттека, проводят кристаллизацию охлаждением и центрифугируют с отбором желтого сахара и мелассы. Желтый сахар
аффинируют разбавленным первым оттеком утфеля 1, центрифугируют, растворяют соком 2 сатурации и смешивают с сиропом после выпарной установки.
9. Производство картофельного крахмала.
В промышленности крахмал получают из технического картофеля, содержащего много крахмала, мало белка, сахара, клетчатки, устойчивого при хранении. Примерный химический состав картофеля:
Картофель (100 кг)
/ \
Сухие вещества(25 кг) Вода(75 кг)
/ / / \
Крахмал Зола Азотистые орган.в-ва Безазот.органич.в-ва
(18кг) (1кг) (2кг) (4 кг)
Технологическая схема производства крахмала основана на его нерастворимости в воде, высокой плотности и малом размере частиц. Картофель
из буртов
, в которых от хранится, или железнодорожных вагонов подают в завод гидротранспортером
, в котором он одновременно частично отмывается от грязи. В процессе транспортировки от картофеля отделяются тяжелые и легкие примеси
. Окончательно картофель отмывается в моечных машинах в противотоке степлой водой, расход которой составляет 400 % по массе картофеля. Измельчают картофель пилочными картофелетерками
. Цель измельчения - максимальное вскрытие клеток картофеля для наибольшего извлечения крахмала; характеризуется коэффициентом измельчения - отношение свободного крахмала к общему, составляет около 93 %. Для лучшего измельчения от картофельной кашки отделяют часть суспензии крахмала, а оставшуюся массу измельчают повторно. В полученном крахмальном молочке содержится клеточный сок картофеля,
который быстро окисляется и темнеет под воздействием окислительных ферментов (из аминокислоты тирозина под действием фермента полифенолоксидазы образуются окрашенные вещества - меланины). Кроме того, в соке могут развиваться микроорганизмы. Клеточный сок необходимо отделить на центрифугах, предварительно обработав картофельную кашку сернистой кислотой для предотвращения нежелательных процессов. На большинстве заводов клеточный сок не отделяют, так как это дорогостоящая операция. Для выделения свободного крахмала
картофельную кашку подвергают промывке на ситах
различных конструкций - сотрясательных, дуговых и других. Обработку проводят последовательно 3-5 раз, промывную воду подают в противотоке. Отмытую мезгу, содержащую не менее 3 % свободного крахмала, направляют на корм скоту. Крахмальное молоко
после отделения мелкой мезги содержит растворимые примеси и мелкую мезгу. Соковую воду с растворенными примесями отделяют на непрерывнодействующих шнековых осадительных центрифугах. Крахмал после центрифуг подвергают рафинированию
для выделения из него мелкой мезги. Для этого его разбавляют водой и обрабатывают на ситах с шелковой сеткой не менее N46: мелкую мезгу промывают до содержания крахмала не более 5 % и реализуют на корм скоту, а крахмальное молоко с сит промывки поступает на разбавление кашки после терки. Для окончательной промывки
крахмала его обрабатывают на системе гидроциклонов:
при этом нижним сходом идет суспензия очищенного крахмала, а верхним - жидкая фракция с легкими примесями. Обработку осуществляют в три ступени: после третьей стадии крахмал выходит практически чистым. После этого крахмал обезвоживается и направляется на получение сухого крахмала. Сырой картофельный крахмал вырабатывают
марки А влажностью до 40 % и марки Б с влажностью до 52 %. В зависимости от степени очистки крахмал подразделяют на три сорта: 1, 2, и 3.
10. Сушка фруктов и овощей.
Правильно высушенные фрукты и овощи должны быть красивыми, вкусными и упругими, после набухания водой очень схожими со свежими плодами, а потери ценных питательных веществ должны быть наименьшими.
В домашних условиях сушат фрукты и овощи при благоприятной погоде на солнце, на плите, в духовке, на радиаторах центрального отопления или малых сушилках, которые нетрудно сделать. Наиболее удобными для сушки являются решетки - деревянные или металлические рамки, выполненные густым плетением из прутиков, проволоки или пластмассы, чтобы к ним мог поступать воздух также и с нижней стороны. Если плетение из обычной проволоки, решетки необходимо накрыть редкой тканью, чтобы сохнущие плоды не касались железа.
При сушке в духовке можно применять плетение из пластмассы только на внутренних сторонах рамки. Сушка на жести не очень выгодна, так как вода из сохнущих плодов испаряется лишь с верхней стороны; жесть надо застелить пергаментной бумагой. В то же время в продаже имеется специальная жесть с малыми отверстиями (перфорированная) для сушки фруктов.
Сушка на солнце
Фрукты и овощи можно сушить на солнце при теплой и сухой погоде в безпыльной среде. На ночь, однако, надо убирать в места, которые защищены от росы. Часто сочетают сушку на солнце с сушкой в духовке - плоды на солнце подсушивают или досушивают.
Сушка в духовке
Для сушки в духовке пригодна духовка электрическая или духовка в печи на твердом топливе; газовая духовка годна лишь в предположении, что нагреваемый объем духовки полностью отделен от горелки, так как продукты горения газа содержат большое количество водяного пара, который при сушке нежелателен. При сушке в духовке важно отводить воздух насыщенный водяным паром; для этого в большинстве случаев приоткрывают дверцу духовки.
При сушке плодов в электрической духовке включают самый малый нагрев; больший нагрев включают после частичной усушки плодов. При сушке контролируют температуру в духовке термометром и регулируют необходимую степень подачи тепла, чаще всего теплоту уменьшают перестановкой решеток на другую удаленность от источника тепла.
Сушка на радиаторах центрального отопления
Мелкие кусочки фруктов можно во время отопительного сезона сушить также на радиаторах на решетках, которые изготовлены по размерам верха радиаторов. Решетки кладут прямо на радиаторы или подложку, например, соответствующий слой газет.
Сушка в домашней сушилке
Если вы сушите большое количество фруктов или овощей каждый год, то для облегчения и ускорения сушки можно сделать маленькую домашнюю сушилку.
Она может подогреваться теплым воздухом над плитой или собственными инфракрасными лампами, или, если она имеет высокие ножки, теплом из пропановой горелки.
Ящик для сушилки делают из металлических пластин (жести), переднюю стенку сушилки делают съемной, она служит для установки решеток в пазы, размещенные на двух боковых сторонах ящика. В нижней пластине ящика делают отверстия с заслонками для регулирования притока тепла. В верхней пластине сушилки делают отверстия для выхода воздуха и водяных паров.
Если сушилка обогревается теплым воздухом от плиты, приток тепла можно регулировать перестановкой сушилки на разные места плиты.
Сушилку, обогреваемую инфракрасными лампами, следует выложить изнутри алюминиевой фольгой, которая отражает лучи и возвращает их на высушиваемые плоды. Инфракрасные лампы помещают на боковые стены сушилки; инфракрасное излучение приводит к малым потерям воздуха и сухого вещества (просушенных частей плодов), но влагу из продуктов поглощает - окончательно высушивается и середина плодов.
Плоды, которые высохли, необходимо разложить на решетки тонким слоем и чаще переворачивать.
Подготовка плодов к сушке
Сушка основана на удалении воды из фруктов и овощей так, чтобы микробы в них если не уничтожались, то хотя бы не могли размножаться. Из плодов требуется испарить 80 - 90 % первоначального содержания воды.
Обычно сушат некоторые виды овощей, зеленую ботву (петрушки, укропа, любистока) и некоторые виды фруктов.
Свежие, здоровые фрукты и овощи хорошо промывают, очищают, удаляют косточки, сердцевину, остатки соцветий и плодоножки. Ботву высушивают на сите или на ткани, некоторые виды овощей (морковь, сельдерей, петрушка, кольраби и т.п.) крошат на мелкие кусочки или протирают на грубой терке и на короткое время погружают в кипящую воду. Светлые фрукты сразу же после очистки замачивают в подкисленной воде, чтобы они не потемнели. Фрукты можно обварить в растворе сахара, такие фрукты перед использованием легко набухнут и сохранят свою форму и цвет.
Температура сушки
Сначала плоды сушат при низких температурах; если сушить быстро при высоких температурах, поверхность сушеных плодов была бы закостенелая, пары бы не могли выйти из середины плодов, плоды бы большей частью потрескались и сок бы вытек. В дальнейшей фазе сушки можно температуру повысить, так как после частичного испарения воды нет предпосылок для растрескивания плодов.
Плоды досушивают при низких температурах (решетки переставляют в верхнюю часть сушилки или при благоприятной погоде на солнце). Фрукты сушат в начале и в конце при температуре около 50 - 60 o
C, главная сушка проходит при температуре 65 - 80 o
C. Овощи, которые отварили, сушат сначала при 75 - 80 o
C, потом при 65 - 70 o
C. Овощную ботву и ароматические растения сушат при 55 o
C, чтобы не потерять ароматические вещества.
Хранение сушеных фруктов и овощей
Просушенные плоды следует при хранении беречь от насекомых и влажности. Для этого их надо хранить в сухом прохладном месте, сложенными в мешочки из плотной ткани, целлофана, бумаги или в коробки. Если при хранении сушеных плодов появляются изменения (например, во влажной кладовой) переложить их в закрывающиеся сосуды, например, в стеклянные банки. Банки следует наполнять в сухой, прохладной среде.
Сушеные овощи и фрукты надо периодически осматривать, нет ли там различных насекомых, чаще всего моли, их личинки пожирают и загрязняют сушеные плоды. Плоды, подвергшиеся нападению, перебирают, устраняют поврежденные, а неповрежденные как можно скорее используют. Плесневелые плоды не используют, чтобы не повредить здоровье.
Подготовка сушеных плодов к использованию
Сушеные фрукты замачивают на несколько часов в воде, чтобы они набухли. Сушеные овощи сначала кладут набухать в холодную воду, затем разваривают до мягкого состояния в несоленой воде.
11. Замораживание.
Подготовленные с учетом специфики сырья овощи и плоды перед замораживанием подвергают еще некоторым воздействиям. Для сохранения натурального цвета и вкуса плодов при длительном хранении и после дефростации, а также уменьшения потери витамина С (аскорбиновой кислоты) их предварительно обрабатывают антиокислителями (аскорбиновой, лимонной и дегидрооксималеиновой кислотами). Например, половинки абрикосов 30 мин выдерживают в 4 %-м растворе аскорбиновой кислоты и 0,1 %-м поваренной соли. При замораживании целых плодов абрикосы и персики 1,5 ч соответственно выдерживают в 7 %-м и 0,1 %-м растворах. Некоторые плоды и ягоды замораживают в 20...60 %-м сахарном сиропе.
После отекания избытка раствора антиокислителя продукты укладывают в картонные коробки, выложенные целлофаном, а также в полиэтиленовые или целлофановые пакеты и направляют на замор.i/кивание. Температура в морозильной камере
—36 °С. При замерзании плодов лед образуется не в самих клетках, а в межклеточных пространствах. В начальной стадии процесс происходит быстрее, чем в дальнейшем. При температуре —15 °С в лед превращается около 79% содержащейся в плодах воды.
В замороженных плодоовощных продуктах сохраняются все пищевые качества. В них лишь инвертируется сахароза, в некоторых случаях кислотность увеличивается, в других снижается, количество дубильных веществ резко уменьшается. Некоторые плоды, особенно с большим содержанием дубильных веществ (рябина, терн, кизил), после замораживания и оттаивания становятся слаще, менее терпкими.
Для приготовления замороженных овощных смесей используют горошек зеленый, фасоль стручковую, капусту цветную и кочанную, картофель, свеклу, морковь, коренья белые (петрушку, пастернак, сельдерей), томаты, репчатый лук, перец сладкий, зелень (укроп, листья петрушки и сельдерея) и др. Быстрым замораживанием готовят гарнирный картофель — однородные по размеру брусочки картофеля с гладкой поверхностью сечением не менее 30 мм. Технологическая схема производства гарнирного картофеля включает следующие операции: мойку, сортирование клубней по размеру, взвешивание, очистку (паровую или щелочную), инспекцию (дочистку), резку, сортирование резаного картофеля, бланширование паром при температуре 90...95 °С (3...5 мин), удаление избытка влаги подсушиванием (обдувание воздухом), замораживание при температуре минус 40 °С (8...12 мин) в скороморозильном аппарате P3-ACI—II, фасо-вание, упаковывание и закладку на хранение (рис. 85).
Хранят замороженные продукты при температуре не выше—18 °С, а в некоторых случаях при —20 °С и ниже. Относительная влажность воздуха 95...98 %. Оптимальный режим хранения замороженной продукции поддерживают весь период — от выхода из скороморозильного аппарата до реализации. Кратковременное хранение быстрозамороженных плодов, упакованных в "мелкую тару, допустимо при температуре не выше —15 °С.

Рис. 85. Технологическая линия производства замороженного гарнирного картофеля:
1, 4, 12, 13, 14 -
транспортеры; 2 — автоматические весы с бункером-накопителем; 3 — загрузочная ванна; 5 — паровая очистительная машина; 6 — моечная машина; 7 — инспекционный транспортер; 8 — резательная машина; 9 — сортировочная машина; 10 — бланширователь; 11 — охладитель; 13 — скороморозильный аппарат; 15 — бункер-накопитель; 16 — фасовочный автомат.
12. Оборудование для переработки и хранения овощей
Линия по переработке томатов
Технологическая линия разработана с учетом необходимости максимально сохранить органолептические характеристики и "физическую" целостность перерабатываемого продукта.
Оборудование для переработки овощей
| Наименование продукции
|
Марка (обозначение)
|
Краткая техническая характеристика (основные параметры)
|
Цены в условных единицах
|
| Моечно-сушильный агрегат
|
А9-КМ2С
|
Для мойки и сушки стеклобанок 0,5-1,0 л. Производительность, банок/час 10000.
|
8082
|
| Вакуум-выпарная установка
|
Л4-КВУ-70
|
Для получения томатной пасты производительностью, кг/час 2900 по сырью.
|
114796
|
| Оборудование по переработке зеленого горошка
|
|
Линия консервирования зеленого горошка. Производительность, т/час 2. Энергопотребление на 1 т. продукта, кВт 3,0.
|
11480
|
| Автомат дозировочно-наполнительный
|
Б4-КДН-16
|
Для объемного фасования зеленого горошка в цилиндрические консервные банки и наполнение их заливкой по ГОСТ 15842-83. Производительность, банок/мин: от 160 до 320. Точность дози-ровки по объему, % ±3,0. Установленная мощность, кВт 1,1.
|
4974
|
| Гомогенизатор овощной (роторный)
|
Р3-КИК
|
Гомогенизация фруктовых и овощных пюре, детского питания. Производительность, г/час 10000.
|
5800
|
| Малогабаритная сушильная установка
|
МСУ
|
Для сушки - овощей, фруктов, грибов, ягод, лекарственных растений. Мощность 11,5 кВт. Габаритные размеры, мм 3322х1850х1800.
|
893
|
| Мини-сушилка электрическая
|
А1-ЛСВ
|
Для сушки жидких пищевых продуктов. Производительность, кг/час 3,5.
|
9184
|
| Автомат дозировочно-наполнительный
|
ДН1-1-160-2
|
Для наполнения металлических и стеклянных банок жидкими пищевыми продуктами. Фасуются: сиропы для компотов, мари-надные заливки, томатные заливки (до 12% сухих веществ), фруктовые, ягодные и овощные соки, растительные масла. Производительность, банок/мин 50-100. Установленная мощ-ность, кВт 1,1. Диапазон дозировки, мл до 1000. Масса автомата, кг 1180.
|
4974
|
| Автомат дозировочно-наполнительный
|
ДН2-01-160-2
|
Для наполнения металлических и стеклянных банок жидкими пищевыми продуктами. Фасуются: томатная заливка, расти-тельные масла. Производительность, банок/мин 50-100. Диапазон дозировки, мл до 100. Габаритные размеры, мм 1550х1355х1750. Масса автомата, кг 1200.
|
5383
|
| Автомат дозировочно-наполнительный
|
Б4-КДН-22
|
Для фасования в консервную тару вместимостью от 0,5 до 1,0 л пюреподобных продуктов, смесей крупноизмельченных овощей (5-7 мм), пюреобразных продуктов и обеденных блюд: морковь раздробленная (40%) в яблочном пюре; смесь резанных овощей и перловой крупы (91%) в говяжьем жире и томатной пасте; со-ус острый и прочее. Производительность, банок/мин.
|
4974
|
| Автомат дозировочно-наполнительный
|
ДН3-63(евробут.)
|
Для наполнения металлических и стеклянных банок жидкими пищевыми продуктами. Фасуются – соусы фруктовые, соусы томатные, сгущенные молокопродукты, томат-паста, майонез, икра овощная. Производительность, банок/мин 63-125. Установленная мощность, кВт 1,1. Масса, кг 1380-1500.
|
4974
|
| Автомат дозировочно-наполнительный
|
ДН3-1-125-2
|
Для наполнения металлических и стеклянных банок жидкими пищевыми продуктами. Фасуются: соусы фруктовые, соусы то-матные, сгущенные молокопродукты, томат-паста, майонез, икра овощная. Производительность, банок/мин 63. Установленная мощность, кВт 1,1. Диапазон дозировки, мл до 1000. Масса, кг 1380.
|
9184
|
| Автомат дозировочно-наполнительный
|
ДН1-1-250-2
|
Для наполнения металлических и стеклянных банок жидкими пищевыми продуктами. Фасуются: сиропы для компотов, мари-надные заливки, томатные заливки (до 12% сухих веществ), фруктовые, ягодные и овощные соки, растительные масла. Производительность банок/мин 80-160. Установленная мощность, кВт 1,1. Диапазон дозировки, мл до 1000. Масса, кг 1180.
|
4974
|
| Автомат дозировочно-наполнительный
|
ДН2-03-250-2
|
Для наполнения металлических и стеклянных банок жидкими пищевыми продуктами. Фасуются: томатная заливка, расти-тельные масла, майонез и сгущенное молоко. Производительность, банок/мин 80-160. Диапазон дозировки, мл от 80 до 320. Габаритные размеры, мм 1550х1355х1750. Масса, кг 1300.
|
9184
|
| Наполнитель
|
ДН1-3-63
|
Для наполнения банок жидкими пищевыми продуктами на 3-литровую банку и сменным комплектом на 1-литровую банку.
|
2168
|
| Агрегат фасовочно-укупорочный
|
Ж7-КНЗ-1
|
Для наполнения стеклянных банок пюреобразными и жидкими пищевыми продуктами и закупоривание их металлическими крышками, а также жестяными крышками типа III-66/4П ("Твист") за ГОСТ 25749-83. Типоразмеры обрабатываемых банок за ГОСТ 5717- 81 I-82-500; I-82-650; I-82-800; I-82-1000; I-82-2000; I-82-3000; I-58-250; I-68-350. Производительность, банок/мин от 6 до 15. Установленная мощность, кВт 1,5. Габаритные размеры, мм 980х840х1650. Масса, кг 530.
|
4082
|
| Машина для закатывания стеклобанок
|
А9-КЗД
|
Для укупоривания стеклобанок 0,25-3 л. Производительность, бан/час 960.
|
1224
|
| Закатка полуавтомат
|
З-РПС
|
Для закрутки металлическими крышками стеклянных банок 0,5-3,0 л.
|
1531
|
| Автоклав вертикальный
|
Б6-КАВ-4
|
Для стерилизации консервов. Полезный объем четырех корзин,м3 1,14.
|
3497
|
| Автоклав вертикальный
|
Б6-КАВ-2
|
Для стерилизации консервов. Полезный объем одной корзины, м3 1,07.
|
2360
|
| Автоклав вертикальный однокорзиночный
|
А9-КСО
|
Для стерилизации плодоовощных, мясных и рыбных консервов в стеклянной и металлической таре.
|
1913
|
| Автоклав вертикальный двухкорзиночный
|
Б6-КА2-В2
|
Для стерилизации плодоовощных, мясных и рыбных консервов в стеклянной и металлической таре.
|
2400
|
| Автоклав горизонтальный
|
А9-КСТ
|
Вместимость для банки №8 3300 туб.
|
7270
|
Оборудование для упаковки и хранения
| Наименование продукции
|
Марка (обозначение)
|
Краткая техническая характеристика (основные параметры)
|
Цены в условных единицах
|
| Машина для выемки стеклянных бутылок из ящиков
|
БЗ-ОИ2А-1-02
|
Производительность, бутыл./час 6000 (в линию водки).
|
7620
|
| Машина для выемки стеклянных бутылок из ящиков
|
БЗ-ОИ2А-1-02-О6
|
Производительность, бутыл./час 6000 (в линию б/а напитков, минводы и пива).
|
8125
|
| Машина для выемки стеклянных бутылок с ящиков
|
БЗ-ОИ2А-1-08
|
Производительность, бутыл./час 6000 (в линию вина).
|
7572
|
| Машина для выемки стеклянных бутылок с ящиков
|
БЗ-ОИ2А-2-10
|
Производительность, бутыл./час 6000 (в линию шампанского).
|
10320
|
| Машина для выемки стеклянных бутылок с ящиков
|
БЗ-ОИ2А-2-02
|
Производительность, бутыл./час 12000 (в линию водки).
|
9978
|
| Машина для выемки стеклянных бутылок с ящиков
|
БЗ-ОИ2А-2-02-06
|
Производительность, бутыл./час 12000. (в линию б/а напитков, минводы и пива).
|
9978
|
| Машина бутыломоечная
|
БЗ-МБА-1,5
|
Для линий винно-водочных изделий. Производительность, бутыл./час 1500.
|
15313
|
| Машина бутыломоечная
|
Ш4-ВМ2-А-1,5
|
Производительность, шт/час 1650. Установленная мощность, кВт 6. Габаритные размеры, мм 1400х780х2100. Масса, кг 4050.
|
3061
|
| Машина бутыломоечная
|
БМ
|
Производительность, шт/час 1650. Габаритные размеры, мм 1740х1124х1940. Ванна: установленная мощность, кВт 1,1; габаритные размеры, мм 2100х925х1200. Масса, кг 1210.
|
1503
|
| Машина бутыломоечная
|
Б6-ВМГ-3
|
Для мойки бутылок. Производительность, бутылок/час 3000.
|
8164
|
| Машина бутыломоечная
|
БЗ-АММ-6
|
Для линий пива, минводы, б/а напитков, ликероводочной продукции. Производительность, бутыл./час 6000.
|
28135
|
| Машина бутыломоечная
|
БЗ-АМЕ-6
|
Для линий шампанского, тихих вин. Производительность, бутыл./час 6000.
|
31944
|
| Машина бутыломоечная
|
АММ-12
|
Для линий пива, минводы, б/а напитков. Производительность, бутыл./час 12000.
|
36540
|
| Машина для мойки
|
СП-60-2М
|
Для мойки стеклянной тары емкостью 0,5; 0,7; 1,0 литра. Производительность, бутыл./час 3000.
|
16904
|
| Машина для мойки
|
СП-72-М
|
Для мойки стеклянной тары емкостью 0,5; 0,7; 1,0 литра. Производительность, бутыл./час 6000.
|
17905
|
| Моечная машина
|
А9-КМ2-125
|
Для мойки жестяных банок. Производительность, бан/мин 125.
|
6122
|
| Моечная машина
|
А9-КМ1-125
|
Для мойки жестяных банок. Производительность, бан/мин 125.
|
5290
|
| Машина
|
БЗ-ОМВ-6
|
Для ополаскивания.
|
25457
|
| Ополаскиватель ручной
|
БЗ-АОР-0.5
|
Для ополаскивания.
|
435
|
| Ополаскиватель полуавтоматический
|
БЗ-АОП-0.5
|
Для ополаскивания.
|
2544
|
| Машина для сушки бутылок
|
БЗ-МСА
|
Для сушки бутылок.
|
5383
|
| Автомат разлива
|
Ж7-ДНП-3
|
Для разлива пищевых жидкостей, дозировки по объему 3000 бутыл./час.
|
4974
|
| Агрегат наполнительно-закаточный
|
АНЗ-7
|
Для разлива, подачи пробки. Производительность, бутыл./час 600.
|
4159
|
| Машина фасовочная
|
Л5-ВРА
|
Для разлива пищевых жидкостей. Производительность, бутыл./час 3000-6000.
|
15000
|
| Машина фасовочная
|
БЗ-АРБ-4
|
Для вина, водки, б/а напитков, пива, растительного масла. Производительность, бутыл./час 500.
|
5970
|
| Машина фасовочная
|
БЗ-ВРГ-6
|
Для линий водки по объему. Производительность, бутыл./час 6000.
|
20257
|
| Машина фасовочно-укупорочная
|
МК-ОФС
|
Для фасования жидких и пастообразных продуктов в готовые полимерные стаканчики и коробочки с закупоркой крышками. Производительность, кг/час от 75 до 750. Возможная установка 1-2 дополнительных дозаторов.
|
От 15306
|
| Машина фасовочно-укупорочная
|
БЗ-ВРБ/3-11
|
Для линий пива, минводы и б/а напитков. Производительность, бутыл./час 1500.
|
34890
|
| Машина фасовочно-укупорочная
|
БЗ-ФСА-1,5
|
Для линий винно-водочных изделий по объему. Производительность, бутыл./час 1500.
|
15743
|
| Машина фасовочно-укупорочная
|
БЗ-ВФА-6-20
|
Для сувенирных бутылок в линии водки. Производительность, бутыл./час 3000.
|
26486
|
| Машина фасовочно-укупорочная
|
БЗ-ВР2М/1-02... 07
|
Для линий разлива пиво-безалкогольных напитков в ПЕТ-бутылки. Производительность, бутыл./час 4500.
|
93997
|
| Машина фасовочно-укупорочная
|
БЗ-ВР2М/1
|
Для линий шампанского. Производительность, бутыл./час 4500.
|
106829
|
| Машина фасовочно-укупорочная
|
БЗ-ВРК/3
|
Для линий водки по уровню. Производительность, бутыл./час 6000.
|
40629
|
| Машина фасовочно-укупорочная
|
БЗ-ВФА-6
|
Для линий водки по объему. Производительность, бутыл./час 6000.
|
29249
|
| Машина фасовочно-укупорочная
|
БЗ-ВРБ/3
|
Для линий пива, минводы и б/а напитков. Производительность, бутыл./час 6000.
|
57189
|
| Машина фасовочно-укупорочная
|
БЗ-ВФФ-12
|
Для линий пива, минводы и б/а напитков. Производительность, бутыл./час 12000.
|
101211
|
| Машина фасовочно-укупорочная
|
Фасана 30/8
|
Для фасовки и закупоривания пива, минводы в стеклобутылки, л 0,33 и 0,5 по уровню. Производительность, бутыл./час 3750.
|
14512
|
| Машина фасовочно-укупорочная
|
Фасана
|
Для фасования и закупоривания пива, минводы в ПЕТ-бутылки емкостью, см3 500; 1000: 1500. Производительность, бутыл./час 3750.
|
27551
|
| Аппарат фасовочный
|
Ж7-АФ
|
Для фасования напитков газированных по уровню в ПЕТ-бу-тылки емкостью, см3 500; 1000; 1500; 2000. Производительность для ПЕТ-бутылок, бутыл./час 100-175. Занимаемая площадь, м2 0,36. Габаритные размеры, мм 600х600х1680. Масса, кг 255.
|
2294
|
| Питатель водяной
|
Ж7-ПВ-18
|
Для перекачивания воды и других жидкостей, м3 10-30.
|
249
|
| Питатель водяной
|
Ж7-ПВ-30
|
Для перекачивания воды и других жидкостей, м3 18-34.
|
249
|
| Комплект оборудования
|
|
Для упаковки жидких продуктов пробкою типа ТВИСТ-ОФФ.
|
104073
|
| Комплект оборудования
|
|
Для разлива ликероводочной продукции в сувенирные бутылки.
|
82262
|
| Комплект оборудования
|
|
Для упаковки вино-водочных изделий. Производительность, бутыл./час 1500.
|
52990
|
| Комплект оборудования
|
|
Для упаковки газированных напитков в ПЕТ-бутылку. Производительность, бутыл./час 500-600.
|
33346
|
| Комплект оборудования
|
|
Для разлива газированных напитков. Производительность, бутыл./час 1500.
|
66772
|
| Комплект оборудования
|
|
Для упаковки газированных напитков у ПЕТ-бутылки. Производительность, бутыл./час 4500.
|
262110
|
| Комплект оборудования
|
|
Для разлива вина и закупоривания корковой пробкой. Производительность, бутыл./час 6000.
|
134240
|
| Комплект оборудования
|
|
Для разлива и оформления резервуарного шампанского. Производительность, бутыл./час 6000.
|
268116
|
| Комплект оборудования
|
|
Для упаковки б/а напитков, минводы и пива. Производительность, бутыл./час 6000.
|
151594
|
| Комплект оборудования
|
|
Для упаковки ликероводочной продукции. Производительность, бутыл./час 6000.
|
157590
|
| Комплект оборудования
|
|
Для упаковки тихих вин. Производительность, бутыл./час 6000.
|
150359
|
| Машина для надевания колпачков
|
Ж7-ВМОК-3
|
Для колпачков типа "Винт" и "Алка". Производительность, бутыл./час 3000.
|
3052
|
| Машина закупороч-ная корковой пробкой
|
БЗ-ВУБ-6-10
|
Для линий вина. Производительность, бутыл./час 6000.
|
25200
|
| Установка
|
А1-ВУП
|
Для закупоривания бутылок емкостью, см3 330, 500, 700 поли-этиленовыми охватывающими пробками. Производительностью, бутыл./час 7000.
|
3673
|
| Автомат укупорочный
|
Л5-ВУВ
|
Для колпачков типа "Алка". Производительность, бутыл./час 6000.
|
6000
|
| Автомат укупорочный
|
Л5-ВУЛ
|
Для винтовых колпачков. Производительность, бутыл./час 6000.
|
15600
|
| Машина укупорочная
|
Ж7-УМТ-6
|
Для укупорки бутылок и банок крышкой типа ТВИСТ-ОФФ. Производительность, шт./час 6000. Габаритные размеры, мм 2500х1130х2130. Масса, кг 1070.
|
20408
|
| Машина укупорочная
|
БЗ-АПК-1
|
Укупоривание: винт, "Алка", ПЕТ-колпачок. Производительность, бутыл./час 500.
|
2043
|
| Машина укупорочная
|
БЗ-ВУБ-6
|
Для линий водки. Производительность, бутыл./час 6000.
|
16526
|
| Машина закаточная
|
Ж7-МЗ
|
Для укупоривания пробками ПЕТ-бутылок емкостью 500;1000; 1500; 2000 см3. Производительность под ПЕТ-бутылку емкостью 1500 см3, бутыл./час 125. Занимаемая площадь, м2 0,58. Габаритные размеры, мм 765х765х1820. Масса, кг 100.
|
1488
|
| Машина закаточная
|
Ж7-ВМЗ-1
|
Для закупоривания стеклянных бутылок. Производительность, бутыл./час 1200.
|
3233
|
| Устройство
|
БЗ-ПАМ.А
|
Для нанесения клея на этикетку.
|
482
|
| Устройство для нанесения клея
|
Л5-ВУК
|
Производительность, шт./час 4000. Масса, кг 700.
|
250
|
| Машина этикетировочная
|
Л5-ВЭЮ
|
Для наклеивания корпусной этикетки, контрэтикетки и кольеретки. Производительность, бутыл./час 7800.
|
48000
|
| Машина этикетировочная
|
БЗ-ЭМА
|
Производительность, бутыл./час 3000-6000.
|
6789
|
| Машина этикетировочная
|
Л5-ВЭН
|
Для наклеивания круговой этикетки. Производительность, бутыл./час 2000-6000.
|
8000
|
| Машина этикетировочная
|
Л5-ВЭЯ
|
|
30000
|
| Машина этикетировочная
|
Л5-ВЭЛ
|
Для наклеивания корпусной этикетки, контрэтикетки и кольеретки.
|
8980
|
| Машина для укладки стеклянных бутылок в ящики
|
БЗ-ОУ2А-1-02-06
|
Производительность, бутыл./час 6000 (в линию б/а напитков, минводы и пива).
|
13362
|
| Машина для укладки стеклянных бутылок в ящики
|
БЗ-ОУ2А-1-08
|
Производительность, бутыл./час 6000 (в линию вина).
|
8523
|
| Машина для укладки стеклянных бутылок в ящики
|
БЗ-ОУ2А-2-10
|
Производительность, бутыл./час 6000 (в линию шампанского).
|
11534
|
| Машина для укладки стеклянных бутылок в ящики
|
БЗ-ОУ2А-2-02
|
Производительность, бутыл./час 12000 (в линию водки).
|
11427
|
| Машина для укладки стеклянных бутылок в ящики
|
БЗ-ОУ2А-2-02-06
|
Производительность, бутыл./час 12000 (в линию б/а напитков, минводы и пива).
|
9282
|
| Устройство учета
|
БЗ-ОМ2-Г/6
|
Для учета ящиков.
|
533
|
| Автомат фольговочный
|
Л5-ВРМ/5
|
Для обрамления фольгой шейки бутылки, укупоренной пробкой с проводом (шампанское). Производительность, бутыл./час 6000. Габаритные размеры, мм 2165х1265х2145. Масса, кг 3810.
|
7000
|
| Машина визуальной инспекции
|
БЗ-ВРК/5
|
Для визуальной инспекции бутылок. Производительность, бутыл./час 6000.
|
10680
|
| Машина
|
В6-ВИА
|
Для контроля пищевых жидкостей в бутылках емкостью от 250 до 800 см3. Определение целостности и герметичности их закупоривания. Производительностью, бутыл./час 2600-3300, 4660-6600. Направление движения цепи – по часовой стрелке.
|
1912
|
| Машина
|
В6-ВИБ
|
Для контроля пищевых жидкостей в бутылках емкостью от 250 до 800 см3. Определение целостности и герметичности их заку-поривания. Производительность, бутыл./час 2600-3300; 4660-6600. Направление движения цепи - против часовой стрелки.
|
1912
|
| Автомат
|
Л5-ВАК
|
Для изготовления алюминиевых колпачков. Производительность, бутыл./час 24000.
|
3000
|
| Устройство
|
БЗ-ВЗБ
|
Для подачи кроненпробок.
|
2600
|
| Вибробункер
|
Л5-ВБК
|
Для колпачков типа "Алка". Производительность, бутыл./час 6000.
|
1000
|
| Устройство подачи колпачков
|
БЗ-ВРК/4
|
Для подачи полиэтиленовых и алюминиевых колпачков.
|
4000
|
| Полуавтомат упаковочный
|
БЗ-ТУК 07.000
|
Для упаковки бутылок из полимерных материалов в пакет из термоусадочной пленки.
|
5307
|
| Автомат упаковочный
|
БЗ-ТУК
|
Для упаковки бутылок из полимерных материалов в пакет из термоусадочной пленки. Производительность, пакетов/час 400. Масса, кг 1200.
|
12171
|
| Вакуумная упаковочная машина
|
Л5-ВУМ
|
Для герметической вакуумной упаковки продуктов питания. Производительность, пакетов/час 100.
|
2541
|
| Машина упаковочная
|
Л5-ШУБ
|
Для упаковки единичных изделий в термосвариваемую пленку. Производительность, пакетов/мин 20-120.
|
16000
|
| Машина
|
А2-ШЗБА
|
Для заворачивания печенья в термосвариваемую пленку. Производительность, пачек/мин до 60. Установленная мощность, кВт 4,7. Габаритные размеры, мм 5000х2000х2000. Масса, кг 1750.
|
12755
|
| Пневмотранспортер
|
БЗ-ТП-3
|
Для ПЕТ-бутылок.
|
2357
|
| Бункер
|
БЗ-БП-3
|
Для ПЕТ-бутылок.
|
6084
|
| Машина выдувная
|
БЗ-ВВП-2-03
|
Для ПЕТ-бутылок. Производительность, бутыл./час 500-700.
|
16000
|
| Машина выдувная
|
БЗ-ВВП-2
|
Для ПЕТ-бутылок. Производительность, бутыл./час 1600.
|
85235
|
| Установка для групповой упаковки продукции в термоусадочную пленку
|
МК-УПК-1
|
Для упаковки разнообразных готовых товаров (в т.ч. расфасо-ванных в стекло, жесть, полиэтилен) во всех областях промыш-ленности. Производительность, упак./час 200-500.
|
3316
|
| Установка для упаковки хлебобулочных изделий
|
МК-УПК-2
|
Для упаковки в термоусадочную пленку (полимерную или полипропиленовую) хлебобулочных и искусственных изделий. Производительность, пакетов/час 700-800.
|
2168
|
| Насос шестеренчатый
|
П6-ППВ
|
Производительность, м3/час 30. Установленная мощность, кВт 15. Габаритные размеры, мм 1625х560х555. Масса, кг 450.
|
1037
|
| Устройство транспортное
|
Бар-транс-3000
|
Для перемещения стеклянных бутылок. Производительность, бутыл./час 3000.
|
4387
|
| Подъемник для меж-этажного транспорти-рования бутылок
|
П6-ВТ2-П
|
Производительность, бутыл./час 3000-19800. Установленная мощность, кВт 2,2. Габаритные размеры, мм 6100х700х8800. Масса, кг 2105.
|
5223
|
| Транспортер
|
БЗ-ТРЯ-12
|
Для линий вино-водочных изделий. Производительность, бутыл./час 1500.
|
4272
|
| Транспортер
|
БЗ-ВРШ-6/3
|
Для линий б/а напитков, минводы и пива, водки, вина, шампанского. Производительность, бутыл./час 6000.
|
8483
|
| Устройство транспортное
|
Бар-транс-1000
|
Для перемещения стеклянных бутылок. Производительность, бутыл./час 3000.
|
2347
|
| Термотуннель с автономным управлением
|
А2-ШТЕ
|
Производительность, кор./мин. 20 (для коробки 200 мм). Установленная мощность, кВт 12,2. Габаритные размеры, мм 2650х800х1500. Масса, кг 530.
|
3827
|
Холодильное оборудование
Холодильные машины серии "Frigomeccanica МК" предназначены для охлаждения пищевых жидкостей с помощью промежуточного хладоносителя (этиленгликоля) через пластинчатый теплообменник. Машина охлаждает с помощью фреона хладоноситель, который циркулирует по замкнутому контуру и через пластинчатый теплообменник отбирает тепло у пищевой жидкости. Холодильная машина представляет собой моноблочную систему, в которой установлены холодильные агрегаты с холодильными контурами, накопительная емкость, насос и система циркуляции для хладоагента.
В состав каждого из контуров входят:
· компрессор герметичного типа, работающий на фреоне R22;
· испаритель с сухим расширением;
· воздушный кондесатор, состоящий из батареи медных труб с вентиляторами;
· расширительный термостат;
· фильтр на всасывающей магистрале компрессора;
· указатель уровня фреона и наличия влаги;
· защитные реле по низкому и высокому давлению, дифференцальное реле давления масла;
· противоморозный термостат.
  
Компрессор холодильного контура герметичный. Электродвигатель компрессора оснащен внутренней защитой от электрических и тепловых перегрузок. Смазка обеспечивается зубчатым насосом. Каждый компрессор оборудован ТЭНом, нагревающим картер во избежании конденсации паров хладоносителя при простое. Все агрегаты установлены на резиновых опорах во избежании вибрации корпуса.

Вентиляторы оснащены алюминиевыми крыльчатками и закрыты стальной сеткой. Вентиляторы прикреплены через резиновые антивибраторы. Узел динамически уравновещен перед сборкой. Вентиляторы оснащены защитой от электрических перегрузок.
Система оснащена устройствами защиты по низкому и высокому давлению газа, по дифференциальному давлению масла, по протоку и температуре хладоносителя. Контроль осуществляется автоматически -микропроцессорным контроллером.
Конденсатор состоит из батарей медных труб. Соединения между отдельными частями холодильной машины выполнены медными трубами, при сварке соединений использован припой с высоким содержанием серебра.
Содержание
На главную страницу Содержание
13. Рецепты заготовки и переработки овощей для хранения
Цветная капуста. Хорошо созревшие головки цветной капусты можно сохранить при температуре 0° С и относительной влажности воздуха 90-95% в течение 2-3 месяцев. Капуста осеннего сбора хранится лучше летних.
Для хранения отбирают зрелые головки, листья слегка обрезают или оставляют, укладывают в ящики, выстланные полиэтиленовой пленкой, и накрывают этой же пленкой сверху.
Лучше всего сохраняется капуста в полиэтиленовых мешочках из тонкой пленки. Капусту очищают от листьев, кладут в мешочки по 1—2 головки, завязывают и укладывают в ящики. Используют для этой цели и толстую пищевую пленку, но в этом случае с обеих сторон мешка вырезают несколько отверстий диаметром 8-10 мм. Так цветная капуста летних сборов хранится 35-40 дней, осенних — 50-70 дней.
Многие огородники применяют способ «осенней установки» цветной капусты в парниках или хранилищах, что позволяет значительно удлинить срок потребления капусты в зимний период. Целые растения с корнями плотно устанавливают, корни пересыпают песком и обильно поливают, поднимая вверх листья. Это делается поздней осенью до наступления заморозков. Отбирают сильные здоровые растения с диаметром головок около 5 см. В течение всего периода хранения таких растений поддерживают температуру на уровне 2-4° С при относительной влажности 85-90%.
Брюссельская капуста не боится заморозков, они даже улучшают вкус. Поэтому убирают ее после первых заморозков. Лучше всего хранить целые растения, отделенные головки хранить значительно хуже. Температура хранения от -2 до 3° С.
В городских условиях хранить брюссельскую капусту можно только без дополнительной переработки, в морозилке холодильника в полиэтиленовых мешочках.
Кольраби. Для хранения пригодны только очень поздние сорта осенних сборов. Берут целые здоровые стеблеплоды. Листья и корни удаляют, оставляя только часть стебля в верхней части стеблеплода. Кольраби хранится при температуре 0-1° С и относительной влажности воздуха 95%, Чтобы стеблеплоды не подняли при хранении, их пересыпают влажным песком и укладывают пирамидой. Хранят в ящиках с вкладышами из полиэтиленовой пленки.
Один из способов хранения кольраби — сушка. Стеблеплоды кольраби тщательно промыть, очистить от кожицы и затем разрезать на тонкие полоски. Бланшировать в кипящей воде 2-4 мин. и сразу охладить в холодной воде и обсушить. Разложить на сита и сушить при температуре 60-75° С в духовке.
Сушеная кольраби — прекрасная добавка к овощным супам. Сушеную кольраби хранить в плотно закрытых банках в темном месте.
БЕЛОКОЧАННАЯ КВАШЕНАЯ
На 10 кг шинкованной капусты- — 250 г соли, 300 г моркови.
Для квашения используется капуста поздних сортов, созревшая, с плотными кочанами, желательно крупных размеров, с малым количеством покрывающих зеленых листьев, непригодных для засола.
Капусту подготавливают следующим образом: освобождают от зеленых листьев, моют холодной проточной водой, разрезают на несколько частей для удобства шинкования и на деревянной разделочной доске шинкуют острым ножом с длинным лезвием, получая стружку шириной до 5 мм, оставляя кочерыжку. Для шинкования можно использовать специальное устройство— шинковку.
В городских условиях удобнее всего квасить капусту в эмалированной посуде: ведрах и кастрюлях больших размеров, а также в стеклянных банках пяти- и трехлитровой емкости.
Нашинкованную капусту соединяют с морковью, натертой на крупной терке или нарезанной тонкими кружочками. В первом случае морковь отдает больше своего сока и впоследствии делает капусту розоватой. Во втором — капуста сохраняет свой цвет.
Капусту солят (вразброс) и слегка перетирают руками, соединяя ее с морковью.
Кроме моркови для запаха и вкуса добавляют по желанию семена тмина — 2 ст. ложки на десятилитровое ведро капусты. Часто добавляют клюкву или бруснику — 200 г на то же количество капусты.
Подготовленную капусту частями укладывают в емкость, уминая толкушкой или руками. И так слой за слоем. Если выделившегося рассола слишком много, то его сливают. В емкости должно быть такое количество капусты, чтобы на нее можно было положить кусок чистой белой ткани, а сверху деревянный кружок по диаметру емкости, а на него гнет. При этом рассол должен покрывать кружок. Вместо кружка можно использовать фаянсовую большую плоскую тарелку. В качестве гнета используется гранитный булыжник, хорошо промытый и ошпаренный крутым кипятком. Ни в коем случае не должны быть: камень из песчаника, изделия из чугуна, меди и других металлов. Концы ткани должны быть убраны вовнутрь емкости. Емкость в тазике прикрыть чем-либо от пыли и поставить вблизи батареи парового отопления. Лучшей температурой для брожения считается от 15 до 22° С. За процессом брожения нужно следить. Через некоторое время (в зависимости от температуры) рассол начинает пузыриться, образовывая пену, и стремится выйти наружу. Нужно снять груз, кружок и ткань, снять излишнюю пену и заостренной деревянной чистой палочкой или ножом с длинным лезвием прокалывать в нескольких местах до дна 2 раза в день для удаления газов.
После окончания процесса брожения капуста оседает и приобретает освежающий кисловато-соленый вкус. Готовую капусту переносят в холодное место, продолжая держать ее под гнетом. Наилучшие условия для хранения создаются при температуре 0-2° С. При более низких температурах при длительном хранении капуста делается мягкой и принимает бежеватый цвет, хотя при этом не теряет витамин С, которого много в рассоле.
В городских условиях, несмотря на балконы и лоджии, трудно сохранить капусту до весны в ее первоначальном виде. В этом поможет консервирование методом пастеризации.
БЕЛОКОЧАННАЯ КАПУСТА КВАШЕНАЯ, ПАСТЕРИЗОВАННАЯ
Капусту пастеризуют через 10-15 дней, когда процесс квашения закончится, т. е. она готова к употреблению.
Отделить капусту от рассола и плотно уложить в банки, желательно с винтовыми крышками.
Рассол подогреть до 80° С и залить в банки. Он должен составлять 1/5 от емкости. Пастеризовать банки при температуре воды 85-90° С: пол-литровые банки — 8-10 мин., литровые—10-15 мин. Посуду с большей емкостью брать не рекомендуется. По окончании пастеризации банки немедленно укупорить.
Хранить в прохладном месте. Периодически проверять, т. к. от недостатка рассола капуста может начать портиться. При этом верхний потемневший слой снять и, залив рассолом, укупорить. При закладке капусты в банки для стерилизации остается лишний рассол, который, на всякий случай, сохранить в холодильнике в восьмисотграммовой или литровой банке. Это единичный случай. В основном капуста хорошо сохраняется, не теряя своих первоначальных качеств.
БЕЛОКОЧАННАЯ КАПУСТА, КВАШЕННАЯ В БАНКАХ
Подготовленную для квашения капусту поместить в трех- или пятилитровую банку и утрамбовать. Она должна заполнить банку до «плечиков». На верхний слой капусты поместить кусок чистой ткани, края которой опустить внутрь банки. Сверх ткани крестообразно положить дощечки, которые должны сохранять плотность капусты. На них поставить груз в виде закрытой банки с солью. Сверху банку прикрыть от пыли, поставить в тазик вблизи парового отопления или другом теплом месте для ускорения брожения, время от времени прокалывая палочкой, удаляя газ. Готовую капусту перенести в холодное место.
БЕЛОКОЧАННАЯ КВАШЕНАЯ КАПУСТА «ТРЕХДНЕВКА»
Рассол: на 1 л воды — 1 ст. ложку соли, 1 ст. ложку сахара.
Капусту рубить или шинковать, перемешивая с тертой на крупной терке морковью, без соли. Плотно уложите в трехлитровую банку и залить горячим рассолом. Прикрыв банку, поставить в миску, так как во время брожения рассол будет вытекать. Капусту периодически протыкать заостренной палочкой для удаления газа. Через 3 дня капуста будет готова. Хранить в холодном месте.
Для засола нужно брать огурцы поздних сортов, хорошо вызревшие, но не переросшие. Наилучшая длина плода 8-15 см. Огурцы перед засолкой перебирают, отбраковывая больные, поврежденные и уродливые. Затем моют очень тщательно в тазу, освобождая от земли, мусора, и под холодной проточной водой. Если огурцы сильно загрязнены или собраны не в день переработки, то их замачивают на 5—6 ч. Можно обдать огурцы кипятком, и тогда они сохранят ярко-зеленую окраску. Перезревшие желтые огурцы ни в один вид заготовки не годятся.
Рассол готовят из воды и соли, желательно крупного помола. Вода должна быть чистой, лучше всего из колодца или скважины, без химических городских добавок. Поэтому, по возможности, делать заготовки на зиму лучше в сельской местности. Имеет значение и жесткость воды: огурцы, засоленные в природной воде, получаются всегда хрустящими.
Концентрация рассола зависит от размера огурцов: 5-6% соли для мелких (50-60 г на 1 кг огурцов) и 7-9% для крупных (70-90 г на 1 кг). При составлении рецептов для соления, маринования, консервирования берется средний процент — 6%, то есть 60 г соли на 1л воды, ввиду того, что величина плодов не оговаривается.
При добавлении в рассол уксуса либо уксусной эссенции (соответственно 100 г и 25 г на 1л воды) огурцы сохраняются дольше обычного. Этот метод рационален при приготовлении огурцов для долгого хранения.
Из пряностей обычно применяют лавровый лист, перец черный горький и душистый, гвоздику в том случае, если огурцы не консервируют, а оставляют в «незакрытом» виде. Эти пряности предохраняют рассол от плесени.
Для консервирования огурцов применяется следующий набор зеленых культур и прочих добавок.
На трехлитровую банку огурцов следует класть: 1-2 головки чеснока, 50 г укропа, по 8 листьев черной смородины и вишневых листьев, 1 небольшой лист хрена или часть его (кладут на дно банки), 1 стебель эстрагона или 2 стебля базилика, 2 щепотки молотого перца (при 6%-ном растворе соли на 1 л воды). Раньше клали листья дуба (2-3 листа), но практика показала, что дубовые листья способствуют закисанию.
В общей сложности пряная зелень не должна превышать 5-6% от веса огурцов. Она укладывается частично на дне, в середине банки, заполняя пустоты, образуемые при укладке огурцов, и сверху в небольшом количестве, т. к. банка заполняется огурцами не выше «плечиков».
В тех случаях, когда огурцы подвяленные или крупные (случай нежелательный для консервирования), добавляется уксус для длительного хранения, как указано выше, в рассол добавляется сахар (до 1% к весу сырья, что составляет приблизительно 1-2 ст. ложки сахара без верха).
Если банки с огурцами стоят в прохладном месте, то для усиления процесса брожения к огурцам добавляют немного листьев белокочанной капусты.
Огурцы солят обычным способом в ведрах, больших эмалированных кастрюлях, но все же удобнее хранить заготовки в стеклянных банках, т. к. они не требуют ухода и хорошо сохраняются.
ОГУРЦЫ, СОЛЕННЫЕ В БОЛЬШОЙ ПОСУДЕ
На 10 кг огурцов — 350 г укропа (стебли с соцветиями, семенами), 20 г чеснока, 60 г хрена (листья;
помещаются на дно емкости), горсть листьев черной смородины.
Для рассола: на 1 л воды — 60 г соли крупного помола.
На дно эмалированного ведра или большой кастрюли положить подготовленную пряную зелень, а на нее слоями уложить огурцы. Если они не одинакового размера, то в нижние ряды поместить более крупные огурцы. Для лучшего просаливания у таких огурцов срезается плодоножка с небольшим количеством мякоти и огурец прокалывается в нескольких местах заостренной палочкой. У более мелких огурцов срезается плодоножка с незначительной частью мякоти. В среднюю часть емкости заложить пряную зелень (1/3 от подготовленной для засола) и уложить остальные огурцы, но не до самого верха, оставив место для оставшейся зелени, и затем наложить кружок, несколько заглубив его в емкость. Залить рассолом, приготовленным заранее. Если рассол не покрывает кружок, то наложить на него небольшой груз, чтобы огурцы не всплывали.
После 2-3-дневной выдержки при комнатной температуре емкость закрыть чистой тканью и поставить на хранение при температуре 0-3° С. При более высокой температуре огурцы закисают, размягчаются, рассол мутнеет, что недопустимо. Правильно приготовленные огурцы должны быть твердыми и хрустящими.
Если случится так, что при соблюдении всех правил рассол испортится, станет мутным и тягучим, тогда рассол следует слить, огурцы тщательно промыть холодной водой, дать ей стечь. После обработки огурцы плотно уложить в хорошо промытую и ошпаренную кипятком посуду, залить свежим, более крепким рассолом со специями (лавровый лист, черный перец), накрыть чистой тканью и наложить чистый деревянный кружок с грузом.
Хранить такие огурцы следует при температуре 5° С. В любом случае при появлении плесени на поверхности рассола ее следует немедленно удалять, иначе огурцы быстро начнут размягчаться и приобретут неприятный вкус и запах.
Чтобы рассол предохранить от плесени и помутнения, на него насыпают измельченные сушеные листья хрена и строганный корень хрена. Или положить в рассол холщовый мешочек с горошинами черного перца (5 г на 1 л рассола). Листья дуба, применяемые при солении огурцов, употреблять не следует, так как практика показала, что они способствуют закисанию продукта.
ОГУРЦЫ, СОЛЕННЫЕ В СТЕКЛЯННЫХ БАНКАХ
На 10 кг огурцов — 300-350 г укропа, 60 г листьев хрена, горсть черной смородины. Для рассола: на 1 л воды — 60 г соли крупного помола.
Так как в городских условиях трудно держать ведро или другую большую емкость с огурцами, огурцы приходится солить и консервировать в банках. Укупоренные стеклянные банки с огурцами не требуют низких температур при хранении, удобны для потребления. Откупоренную банку можно хранить в холодильнике, брать огурцы по мере надобности.
Лучше всего солить огурцы в трехлитровых банках, не прибегая к стерилизации. Некрупные, одинаковые по размеру огурцы, хорошо промытые в проточной воде, уложить на пряную зелень (лист хрена, укроп), положенную на дно банки. Наполнить банку огурцами, переслаивая их пряной зеленью, и залить кипящим рассолом. Банки прикрыть крышками, прокипяченными заранее, и оставить на 7-10 дней при комнатной температуре (на полу в «дальнем углу») для брожения, после чего добавить (по мере надобности) рассол (можно холодный, но прокипяченный). Укупорить.
Если в процессе брожения появится пена, то ее следует аккуратно снимать чистой ложкой. Преимущество такого способа еще и в том, что огурцы, засоленные точно по рецепту, получаются высококачественными и сохраняются даже при комнатной температуре.
ОГУРЦЫ СОЛЕНЫЕ СТЕРИЛИЗОВАННЫЕ
На 1 кг соленых огурцов — 10 г сухих семян укропа или тмина, 5 г зелени эстрагона, 2 зубчика чеснока, 5 г семян горчицы. Для добавки рассола: на 1 л воды. — 60 г соли.
Если огурцы засолены в большой емкости еще в конце лета, а в городе нет возможности хранить их при плюсовой температуре, то огурцы можно хранить в трехлитровых закатанных банках. Для этого просоленные огурцы промыть, дать стечь воде и, уложив в подготовленные банки, залить процеженным рассолом.
Стерилизовать банки в кипящей воде: пол-литровые — 5-10 мин., литровые и двухлитровые—10-15 мин., трехлитровые—15-20 мин. Укупорить.
До стерилизации огурцов можно в рассол положить сухую пряную зелень эстрагона, семена укропа, тмина, горчицы, дольки чеснока. Можно положить и свежую пряную зелень, если она есть.
ОГУРЦЫ СОЛЕНЫЕ ПРЯНЫЕ
На 10 кг огурцов — 20 г свежего острого перца, 30 г чеснока. 50 г корня хрена, 50 г зелени эстрагона, 30 г зелени укропа, 5 г сушеных листьев майорана.
Для рассола: на 10 л воды — соль в зависимости от величины, огурцов: для засола мелких огурцов — 500-550 г, среднего размера — 600-650 г, для крупных — 700-800 г соли.
Эстрагон придает огурцам очень приятный запах и способствует сохранению зеленой окраски. Солить огурцы обычным способом.
СУХОЙ ЗАСОЛ ОГУРЦОВ
В этом случае огурцы не моют, а только тщательно протирают тканью, после чего укладывают в банку вертикально и как можно плотнее. Дно банки покрыто солью. Лучше всего использовать эмалированную кастрюлю. Ряды огурцов можно пересыпать мелко нарезанным свежим укропом. Затем огурцы засыпать солью так, чтобы заполнить все пустоты между ними. Все слои огурцов, особенно последний, тщательно засыпать. Кастрюлю или другую емкость закрыть, завязать, чтобы не съехала крышка, и убрать в холодное место.
Засоленные таким образом огурцы почти полностью сохраняют аромат, не теряют упругости.
Перед употреблением в пищу их следует сутки выдержать в холодной воде, часто меняя ее.
ОГУРЦЫ СВЕЖЕПРОСОЛЕННЫЕ
Для рассола: на 1 л воды — 60 г соли крупного помола.
Огурцы приготавливать в небольшой таре, так как рассчитаны они на скорое употребление. Лучше брать двухлитровую банку с широкой горловиной или эмалированную кастрюлю.
На дно емкости положить лист хрена, стебли укропа, 1-2 листа черной смородины, 2-3 зубчика чеснока. Огурцы не более 7 см длиной, более крупные разрезать, тщательно вымыть, срезать плодоножку с небольшой частью мякоти, сделать небольшие проколы острием ножа в двух-трех местах и уложить в емкость слоями, перекладывая пряной зеленью и зубчиками чеснока. Верхним слоем должна быть зелень. Залить рассолом комнатной температуры. Для скорого употребления залить горячим рассолом, что активизирует процесс. Рассол должен покрывать верхний слой зелени. Если огурцы засаливаются в кастрюле, то можно положить тарелку, чтобы огурцы не всплывали. Закрыть кастрюлю крышкой и поставить в прохладное место. В жарком помещении огурцы могут испортиться.
Если засол производится в банках, то верхний слой держится толстыми стеблями укропа, упирающимися в «плечики» банки. Банки накрыть легкими крышками или плотной тканью.
Огурцы будут готовы к употреблению через 3-4 дня. Когда огурцы долго находятся в рассоле, то сверху появляется плесень. Это значит, что огурцы уже засолились. Чтобы избавиться от плесени, нужно рассол профильтровать через ткань. Пряную зелень промыть. Огурцы осмотреть и отбраковать размякшие. Они обычно бывают в верхней части посуды. Оставшиеся огурцы поместить в вымытую посуду. Процеженный рассол с промытой зеленью вскипятить, остудить и влить в кастрюлю или банку с огурцами. Прикрыть.
ОГУРЦЫ КОНСЕРВИРОВАННЫЕ
На трехлитровую банку огурцов: лист хрена или часть его, 1-2 головки чеснока, по 8 листьев черной смородины и вишни, 50 г укропа с соцветиями, можно взять 1 стебель эстрагона или 2 стебля базилика, 2-3 листа листовой горчицы, т. е. по вкусу хозяйки.
Для маринада: на 1 л воды — 60 г соли, 30-40 г сахара, 3-4 ст. ложки 9%-ного уксуса, 6-8 горошин черного перца, 2 лавровых листа, кусочек корицы.
На дно трехлитровой банки, подготовленной для консервирования, укладывается пряная зелень: лист хрена или часть его, 2 зубчика чеснока, по 2 листа смородины и вишни, небольшой стебель укропа, а на них 2 ряда огурцов. Если огурцы отличаются по размеру, то более крупные помещаются в нижнюю часть банки, слегка прокалываются острием ножа в нескольких (3-4) местах на глубину примерно в 5 мм. Банку уложить огурцами до «плечиков», заполняя пустоты между огурцами мелким луком, чесноком и пряной зеленью, стараясь разместить так, чтобы было красиво на вид. Консервы должны быть не только вкусными, но и красивыми. Последний слой огурцов должен быть покрыт зеленью и пряностями, оставшимися после залива банок маринадом. Банки не надо забивать под самую крышку. Выше «плечиков» банки должен быть только маринад. Огурцам необходимо «дышать». Зелень не должна превышать норму, указанную в рецепте (5-6% от веса огурцов). Банки с огурцами и зеленью залить горячим (или кипящим) маринадом до верха, прикрыть подготовленными крышками и приступить к процессу консервирования. Можно консервировать двумя способами: методом стерилизации в кипящей воде или методом многоразового розлива.
1-й способ.
Стерилизация в кипящей воде. В большую емкость (кастрюлю, ведро, бачок), на дне которой должна находиться подставка, поместить банку (или банки). Вода в емкости должна быть теплой, примерно 40-60° С, для ускорения процесса консервирования. Воду довести до кипения. Стерилизация начинается с момента закипания воды. Стерилизовать литровые банки—10-15 мин., трехлитровые—15-20 мин. При прогревании нужно следить за цветом огурцов. Если их окраска из ярко-зеленого перешла в оливковый цвет, значит, температура в банке достигла 67-70° С, прогревание следует прекратить, банки немедленно укупорить, перевернув вверх дном до полного охлаждения.
2-й способ.
Пряности заложить на дно банки. Банки заливают 3 раза с выдержкой 5-15 мин. Сначала 2 раза заливают банки кипятком, а в третий раз маринадом, рассолом или другой заливкой и сразу укупориваются. Этот метод называется методом многоразового розлива.
При третьем розливе в банку лучше всего заливать маринад, сразу укупорить и, укутав в одеяло, перевернуть банки вверх дном до охлаждения. Хранить в темном месте.
Собирают плоды в сухую погоду. Помидоры сортируют по величине и укладывают в один-два ряда в небольшие ящики, картонные коробки, на полки стенных шкафов с учетом созревания, т. к. крупные плоды созревают быстрее. Помидоры последних сборов хранятся гораздо хуже, чем собранные раньше.
Плоды не созревшие и молочной (бланжевой) спелости, т. е. большего срока созревания, хранят при температуре 10-15° С в сухом месте. Влажность способствует загниванию плодов.
Зрелые красные плоды могут храниться в холодильнике около 25-30 дней при температуре 0-2° С. Все помидоры, уложенные на хранение, должны лежать плодоножками вверх.
Если осенью отобрать зеленые здоровые помидоры, каждый плод обернуть бумагой и уложить в корзину, как указано выше (можно и в ящик), то при температуре 11-13° С в темном месте помидоры сохраняются до января месяца.
Сушка помидоров мало распространена, между тем это очень вкусный и питательный продукт. Зрелые плоды средней величины с мясистой мякотью тщательно моют и разрезают пополам поперек плодов. Разрезанной частью кладут вверх, укладывают на разделочных досках или ситах. Подвяливают на солнце, затем сушат в духовке при температуре 50-60° С, а досушивают при 80° С. Плотно укладывают в банки с винтовой пробкой.
ПОМИДОРЫ СОЛЕНЫЕ
Для засолки в десятилитровой посуде: на 7 кг помидоров—50 г укропа, лист хрена, веточки эстрагона, листья вишни и черной смородины, 4 головки чеснока.
Для рассола: на 10 л воды — 800 г соли; для крупных помидоров — на 10 л воды — 900 г соли. Соль лучше брать крупного помола.
Солят бурые и спелые помидоры, но обязательно раздельно. Их перебирают, удаляют плодоножки, поврежденные и мятые плоды, моют и укладывают рядами в подготовленную тару, перекладывая специями. Затем заливают рассолом.
Для засолки зрелых и крупных плодов рассол делают более крепким. Залитые рассолом помидоры накрывают кружком, на который кладут легкий груз, чтобы не всплывали. Хранят в прохладном помещении. Через 40— 50 дней помидоры готовы.
ПОМИДОРЫ МАРИНОВАННЫЕ
Для маринада: на 1 л воды — 50 г сахара, 60 г соли, 30 г 9%-ного уксуса, лист (или часть его) хрена, стебли укропа, 4-5 зубчиков чеснока. Для более острого маринада брать 60 г 7%-ного уксуса, 6 горошин черного перца, 3 шт. гвоздики.
Маринуют помидоры средних размеров и мелкие с плотной мякотью, толстой кожицей, различной степени зрелости: бурые, розовые, красные.
Помидоры должны быть обязательно сортированы по размеру и степени зрелости. Мелкие (если они не мелкоплодные), перезревшие, подмороженные, с признаками болезни или очень крупные отбраковываются.
Подготовленные помидоры моют в холодной воде, слегка прокалывают в области плодоножек и укладывают строго по окраске и размерам в стеклянные банки как можно плотнее. При плотной укладке в литровую банку входит 950 г мелких или среднего размера плодов и 350 г заливки. При укладке помидоров на дно банки кладут лист (или часть его) хрена, зубчики чеснока, нарезанные стебли укропа, горошки черного или душистого перца, гвоздику и заливают горячим маринадом.
Для приготовления заливки берут воду, растворяют в ней при прогревании сахар, соль, уксус, который добавляется в заливку после снятия ее с огня.
Маринад должен покрывать помидоры.
Зеленые или бланжевые помидоры ввиду их плотной мякоти рекомендуется перед укладкой в банки бланшировать в кипящей воде в течение 1—2 мин. Розовые и красные плоды предварительной горячей обработки не требуют. После заливки помидоров маринадом банки прикрыть подготовленными крышками и стерилизовать в кипящей воде: пол-литровые банки—25 мин., литровые — 30 мин., трехлитровые — 40 мин.
ПОМИДОРЫ, МАРИНОВАННЫЕ С ОГУРЦАМИ
Для маринада: на 1 л воды — 60 г соли, 50 г сахара, 1 ст. ложка уксусной эссенции, лист хрена, укроп, чеснок, молотый красный перец.
Маринуют вместе помидоры и огурцы средних размеров. Отсортированные овощи промывают в проточной воде и дают ей стечь. Подготавливают пряную зелень, отбраковывая пожелтевшие части растений, корни и т. п., очищают зубчики чеснока, мелкие головки лука (до 2 см) и тщательно моют, дают слегка просохнуть.
В трехлитровые банки на дно кладут лист хрена или часть его корня, зубчики чеснока (частично), нарезанный стебель укропа, а затем слоями помидоры и огурцы. Первый слой — огурцы. Образовавшиеся пустоты заполнить дольками чеснока, мелкими луковицами, зонтиками и небольшими веточками укропа, листьями черной смородины и вишни. Лист дуба, так часто упоминаемый в рецептах, добавлять нельзя, т. к. он приводит к закисанию консервов.
Желательно положить эстрагон или базилик. Щепотка молотого красного перца или очень маленький кусочек острого красного перца (5х5 мм) придаст маринаду остроту. Помидоры перед закладкой слегка наколоть в области плодоножек, что предохранит их от трещин на кожице. Маринад вскипятить с солью и сахаром и в конце добавить уксус.
Подготовленные банки залить полностью маринадом, прикрыть прокипяченными крышками и стерилизовать в кипящей воде: литровые банки—30 мин., трехлитровые—40 мин., поставив в воду при 60° С.
Укупорить, перевернуть, охладить. При консервировании можно применить метод многократного розлива.
ТОМАТНЫЙ СОК
Берут свежие зрелые помидоры, моют, вырезают поврежденные части, нарезают дольками и слегка отжимают сок. Вылить отжатый сок в эмалированную посуду, которую сверху обвязать марлей, и на нее положить нарезанные помидоры. Сок довести до кипения и через 3-4 мин., когда помидоры распарятся, протереть их;
через редкое сито. Затем смешать пюре с соком, подогреть до 85° С и вылить в горячие банки или бутылки.
Стерилизовать в кипящей воде: пол-литровые банки и бутылки—30 мин., литровые—40 мин. Укупорить.
Помидоры после дозаривания для приготовления сока непригодны.
ПОМИДОРЫ ОЧИЩЕННЫЕ В ТОМАТНОМ СОКЕ
На 1 л томатного сока — 20 г соли, 10 г сахара, 1,5 г лимонной кислоты. На 1 литровую банку — 500-600 г помидоров.
С помидоров снять кожицу. Для этого их нужно бланшировать в кипящей воде в течение 1-2 мин., после чего быстро остудить в холодной воде 3-5 мин.
Подготовленные помидоры уложить в стерилизованные банки и залить горячим томатным соком, который готовят из отбракованных (перезрелых) плодов. Их режут, кладут в кастрюлю и, помешивая, кипятят 5-10 мин. Горячими протирают через дуршлаг или сито. Сок снова нагревают и заливают им очищенные помидоры. Залитые банки с помидорами накрыть крышками и стерилизовать в слабо кипящей воде: пол-литровые банки—15 мин., литровые—20 мин., после чего их укупорить, перевернуть вверх дном до остывания.
Хранить банки при комнатной температуре в темном месте.
ПОМИДОРЫ НАТУРАЛЬНЫЕ
На 1 литровую банку — 500-600 г помидоров.
Для рассола: на 1 л воды — 30 г соли, 1—2 г лимонной кислоты, 10 г сахара.
Для консервирования отобрать спелые, с хорошей окраской, плотные и одинаковые по размеру помидоры. Консервировать можно с кожицей и без кожицы. В этом случае помидоры ошпарить кипятком и, остудив холодной водой, кожицу снять. Помидоры с кожицей наколоть в области плодоножки.
Подготовленные помидоры плотно уложить в банки и залить кипящей водой. Выдержать 5-10 мин., воду заменить свежей кипящей водой и выдержать то же время. В третий раз залить кипящим рассолом и сразу укупорить. Банки укутать в ватное одеяло в перевернутом вверх дном виде (для дополнительного прогревания крышек) и оставить до полного охлаждения банок.
Если помидоры не очень крупные, то достаточно одной заливки водой и затем рассолом.
Технологию приготовления розлива смотрите в разделе "Консервирование методом многократного розлива".
ПОМИДОРЫ «ЛЮБИТЕЛЬСКИЕ»
На 1 литровую банку — 500-600 г помидоров, 12 зубчика чеснока, 5-10 г пряной зелени: укропа, петрушки, сельдерея, базилика или любого другого по усмотрению.
Для рассола: на 1 л воды — 35 г соли, 1-2 г лимон> ной кислоты, 15 г сахара.
На дно подготовленных банок поместить зубчики чес нока, пряную зелень. Технология приготовления, как в предыдущем рецепте.
ИКРА ИЗ ОТБРАКОВАННЫХ СПЕЛЫХ ПОМИДОРОВ
На 1 кг помидоров — 300 г репчатого лука, 100 г растительного масла, соль, молотый перец по вкусу.
Поврежденные помидоры, слегка прихваченные морозом или вялые, обработать, помыть, дать стечь воде и запечь в духовке.
Печеные помидоры пропустить через мясорубку, добавить соль, перец, обжаренный на растительном масле репчатый лук. Все хорошо размешать и переложить в стерилизованные банки на 3/4 их емкости. Залить банки до горлышка горячим томатным соусом, накрыть крышками и стерилизовать в течение 60 мин. Укупорив, поставить вверх дном, охладить.
ИКРА ИЗ МЕЛКИХ ЗЕЛЕНЫХ ПОМИДОРОВ
На 1 кг помидоров — 3-4 моркови среднего размера, 2-3 головки лука, 2-3 сладких перца, 2-3 небольших лавровых листа, 1—2 ст. ложки острого томатного соуса или томатной пасты, 100-150 г растительного масла, черный молотый перец, соль, сахар по вкусу.
Мелкие темно-зеленые помидоры, не пригодные ни в одном виде заготовок, можно употребить, сделав икру следующим образом. Помидоры перебрать, отбраковывая с пятнами, с различными повреждениями, слишком вялые. Срезать плодоножку с самой темно-зеленой частью помидоров. Тщательно промыть и сполоснуть. Пропустить через мясорубку. Полученную массу откинуть на дуршлаг или сито и дать стечь ненужному соку. Тем временем подготовить овощи: морковь, репчатый лук, сладкий перец. Морковь натереть на крупной терке и обжарить на растительном масле. Репчатый лук разрезать и пассеровать в масле. Сладкий перец разрезать вдоль на части, нашинковать и обжарить на масле. Все овощи соединить в кастрюле вместе с помидорной массой. Соединив, посолить, поперчить, добавить сахар по вкусу. Потушить в течение 15—20 мин. на небольшом огне, помешивая. Положить лавровый лист и томатный острый соус, все перемешать и тушить до готовности. Употреблять как закуску.
САЛАТ ИЗ ЗЕЛЕНЫХ ПОМИДОРОВ КОНСЕРВИРОВАННЫЙ
1-й способ. На 3 кг зеленых помидоров — 1,5 кг моркови, 1,5 кг репчатого лука, 100 г соли.
Для заливки: 300 г растительного масла, 300 г 9%-ного уксуса, 300 г сахара, 5-6 горошин черного перца, 5-6 лавровых листа.
Подготовить овощи. Помидоры нарезать мелкими дольками, морковь натереть на крупной терке, репчатый лук нарезать тонкими кружочками. Овощи соединить, посолить, размешать и оставить на 10-12 ч.
После выдержки слить излишки жидкости из салатной массы, влить в нее горячий маринад. Все тщательно перемешать и варить 30 мин. после закипания, осторожно помешивая. В подготовленные банки выложить горячий салат, укупорить и укутать в одеяло до остывания вверх дном. Хранить в холодном месте.
2-й способ. На 1 кг помидоров — 0,5 кг репчатого лука.
Для маринада: на 1 л воды — 60-100 г 9%-ного уксуса, 20 г сахара, 60 г соли, по 6—10 горошин черного перца и зерен горчицы (за неимением ее можно заменить лавровым листом).
Подготовленные помидоры средней величины бланшировать 2-3 мин. в кипящей воде, остудить в холодной и сразу снять кожицу. Очищенные плоды нарезать тонкими пластинками. Репчатый лук очистить, бланшировать 2-3 мин. в кипящей воде (можно вместе с помидорами) и остудить в холодной, нарезать кольцами.
На дно подготовленных банок поместить черный перец горошком и зерна горчицы (можно заменить лавровым листом). Лук и помидоры уложить в банки и залить кипящим маринадом, недоливая 2 см до края банок. Маринад должен покрывать овощи.
Пастеризовать при 85° С: пол-литровые банки—20-25 мин., литровые—30-35 мин. Укупорить.
ПОМИДОРЫ ЗЕЛЕНЫЕ МАРИНОВАННЫЕ
Для маринада: на 1 л воды. — 60 г соли, 50 г сахара, 40 г 9%-ного уксуса, для более острого — 60 г 9%-ного уксуса, 6 горошин черного перца, лавровый лист, часть листа хрена, стебель укропа, 2-3 зубчика чеснока.
Зеленые помидоры средних размеров бланшировать в течение 3-5 мин. в кипящей воде и остудить в холодной. Наколоть в области плодоножки и поместить в банки с зеленью или кусочком корня хрена, зубчиками чеснока, нарезанным стеблем укропа. Залить горячим маринадом и консервировать методом многоразового розлива, при надобности подогревая маринад. При последнем (третьем) заливе банок следует их сразу укупорить, проверить на герметичность и укутать одеялом до охлаждения в перевернутом виде.
КЕТЧУП
На 5 кг помидоров — 1 стакан измельченного лука, 160-200 г сахара, 30 г соли, 1 стакан 9%-ного уксуса, по 1 ч. ложке черного перца, гвоздики, горчичного семени, кусочек корицы, 1/2 ложки семян сельдерея.
Помидоры, нарезанные дольками, вместе с измельченным луком распарить в кастрюле под крышкой. Протереть через сито. Полученный сок уварить наполовину. Пряности положить в марлевый мешочек и опустить в кипящую массу.
Добавить соль, сахар, уксус и варить еще 5-7 мин., после чего пряности вынуть, а готовый кетчуп разлить в бутылки и укупорить.
КЕТЧУП С БАЗИЛИКОМ И СЕЛЬДЕРЕЕМ
На 2 кг спелых помидоров — 2 луковицы, 1 яблоко, 3/8 л 9%-ного уксуса, 125 г сахара, соль, 1 ст. ложка сухого или 2 ветки свежего базилика, 2 ветки сельдерея с листьями, 1/2 ч. ложки молотого перца, 3 гвоздики.
Помидоры опустить в кипящую воду. Вынуть и снять кожицу, разрезать пополам и удалить семена. Лук и яблоко мелко нарубить. Уксус с сахаром и пряностями довести до кипения. Помидоры, яблоко и лук положить в маринад и варить 45 мин., часто помешивая. Готовую массу в горячем виде залить в банки или бутылки и укупорить.
ПОМИДОРЫ В ЖЕЛЕ
На 1 литровую банку заливки — 400 г воды, 1/2 небольшой луковицы, по 1/2 ст. ложки соли и сахара. 3-4 горошины душистого перца, 1 ст. ложка желатина, 1 стакан кипяченой воды.
На дно литровой банки положить половинку небольшой луковицы, 2-3 горошины душистого перца и наполнить банку до «плечиков» разрезанными на четыре части твердыми розовыми помидорами. Залить кипящим рассолом, оставив место для желатина, приготовленного заранее, и тут же влить в банку. Стерилизовать 20 мин. Укупорить.
Приготовление желатина. Желатин на 30-40 мин. замочить в кипяченой воде, довести до кипения, но не кипятить и тут же влить в банки (рецепт рассчитан на 6 литровых банок).
ПРИПРАВА ИЗ ПОМИДОРОВ С ЧЕСНОКОМ
На 1,5 кг спелых мясистых помидоров — 100 г чеснока, соль, сахар по вкусу.
Подготовленные помидоры измельчить ножом. Очищенные дольки чеснока измельчить или натереть на мелкой терке. Соединить и размешать. Добавить соль и сахар, перемешать. Поместить в пол-литровые банки по «плечики» и прикрыть крышками.
Пастеризовать при температуре 85° С (но ни в коем, случае не доводить до кипения, иначе продукт может испортиться) в течение 15-20 мин. После укупорки укутать в одеяло, банки перевернуть для дополнительного прогрева крышки. Крышки должны быть стеклянными или пластмассовыми.
Банки хранить в холодильнике.
АДЖИКА
1-й способ.
На 3 кг красных помидоров — 1 кг сладкого перца, 300 г чеснока, 150 г острого красного перца, 400 г хрена, 0,3 л столового 1%-ного уксуса, 2 ст. ложки сахара, соль.
Подготовленные овощи пропустить через мясорубку с мелкой решеткой, выложить в эмалированную кастрюлю, добавить соль (по вкусу), сахар, уксус и тщательно перемешать.
На слабом огне прогреть массу до 60° С, постоянно помешивая, переложить в небольшие банки и укупорить. Хранить в прохладном месте.
2-й способ.
На 3 кг красных помидоров — по 500 г лука. сладкого перца, слив или яблок (очищенных), моркови, 10 стручков острого перца, 200 г чеснока, 100 г сахара, 1 ст. ложка соли, 0,5 л подсолнечного масла.
Овощи подготовить, из слив вынуть косточки, пропустить через мясорубку горький перец с семенами, добавить масло, соль, сахар. Варить на слабом огне З ч., постоянно помешивая. Разложить в банки в горячем виде и укупорить. Банки поставить вверх дном и укрыть до остывания. Хранить в прохладном месте.
3-й способ.
Красный острый перец без семян и чеснок пропустить через мясорубку вместе с зеленью укропа, петрушки, кориандра, сельдерея. Добавить соль (половину от полученной массы), тщательно перемешать, разложить в небольшие баночки и закрыть крышками.
Пропорции овощей и зелени по усмотрению. Для смягчения можно острый перец заменить сладким и уменьшить количество соли.
ПРИПРАВА К БОРЩУ
Для нее берут в равном количестве помидоры и сладкий перец. Подготовленные овощи пропустить через мясорубку, посолить по вкусу. Довести до кипения и варить 1-2 мин., не больше. Снять с огня и тут же разложить в подготовленные небольшие банки и закрыть полиэтиленовыми крышками. Стерилизация не требуется. Приправа прекрасно сохраняется в холодном месте всю зиму. В борщ добавляют как обычный томат, но вкус у нее острее и ароматнее.
Помидоры и сладкий перец — в равном количестве, соль по вкусу.
СУПОВАЯ ЗАПРАВКА
На 1 кг помидоров — 1 кг моркови, 1 кг репчатого лука, 600 г сладкого перца, по 300 г зелени укропа и петрушки. 800 г соли.
Морковь натереть на крупной терке, мелко нарезать зрелые, но твердые красные помидоры, репчатый лук нарезать кольцами, сладкий перец, очищенный от сердцевины, разрезать вдоль на четыре части и нашинковать, зелень укропа и петрушки измельчить. Все соединить в большой эмалированной емкости и, добавив соль, тщательно перемешать. Уложить, плотно набивая в стерилизованные банки, и закрыть стеклянными или полиэтиленовыми крышками. Хранить в темном и прохладном месте, лучше в холодильнике.
Чтобы из баклажанов ушла горечь, нужно промытые, очищенные и нарезанные (или надрезанные в 2-3 местах) плоды перемешать с солью и дать постоять не менее 30 мин., затем промыть холодной водой и отжать, или подержать в растворе соли 15-20 мин. (на 1л воды—1 столовая ложка соли) и затем отжать.
Если баклажаны старые, то нужно удалить из них семена, разрезав каждый вдоль, а затем на 5 мин. опустить в кипящую воду.
Для сохранения формы плода его лучше не отжимать руками, а спрессовать между двумя разделочными досками, расположенными наклонно, с гнетом и дать горькому соку стечь.
Больше всего полезных веществ сохраняется в печеных баклажанах, кроме того, они вкуснее и лучше усваиваются, чем жареные и отварные.
БАКЛАЖАНЫ СОЛЕНЫЕ
На 10 кг баклажанов — 500 г соли или залить баклажаны соленым раствором — на 1 л воды — 6070 г соли, зелень и пряности по вкусу.
1-й способ. Хорошо вызревшие, но не перезревшие баклажаны среднего размера нарезать примерно на 2/3 их длины. Плотно уложить в кастрюлю или банку, перекладывая зеленью и посыпая каждый ряд солью. Когда баклажаны дадут сок, наложить гнет. Неделю держать при комнатной температуре, а затем поставить в прохладное место. Можно залить баклажаны соленым раствором (60 г соли на 1 л воды) и добавить зелень (эстрагона, базилика, хрена), кусочки корицы и гвоздику.
Баклажаны будут готовы к употреблению через 1-1,5 месяца.
2-й способ. Подготовленный насыщенный солевой раствор (чтобы в воде не тонуло куриное сырое яйцо) довести до кипения и опустить в него баклажаны со срезанными чашелистиками. Варить под крышкой (от кастрюли меньшего размера), придавив ее грузом, пока баклажаны не будут легко протыкаться вилкой.
Вынуть шумовкой и разложить по одному на разделочную доску. Каждый баклажан аккуратно разрезать вдоль от широкого конца к узкому, но не до конца. Поместить под пресс на 5-7 ч. После указанного времени каждый баклажан раскрыть и обильно посыпать черным молотым перцем, толченым чесноком и снова закрыть.
Плотно уложить в эмалированную посуду и залить рассолом (оставить от первоначального). Добавить черный перец горошком и лавровый лист по усмотрению и вскипятить. Остудить. Сверху покрыть чистой тканью, накрыть деревянным кружком или большой плоской фаянсовой тарелкой и положить груз. Накрыв от попадания пыли и т. п., поставить в прохладное место. Через 1-1,5 месяца баклажаны будут готовы к употреблению.
БАКЛАЖАНЫ КОНСЕРВИРОВАННЫЕ
На 1 литровую банку заливки — 20 г соли, 3 ст. ложки уксуса (солить и вливать уксус в данном количестве в каждую банку) и добавить воду, приблизительно 50 г, в зависимости от плотности уложенных баклажанов.
Спелые, без чашелистиков баклажаны запечь в духовке на среднем огне до готовности, т. е. до мягкости. Проверить вилкой. Вместо запекания можно отварить в воде в течение 20-25 мин. Для удаления горечи положить баклажаны под пресс и оставить на 15-20 ч. (на ночь).
Подготовленные к консервированию баклажаны уложить в банки, оставив место для заливки на 1 см ниже «плечиков» банки. Залить баклажаны и стерилизовать, поставив в воду, нагретую до 60° С, и с момента закипания воды выдерживать банки: пол-литровые—60-70 мин., литровые — 70-80 мин. После стерилизации банки немедленно укупорить и охладить.
БАКЛАЖАНЫ ЖАРЕНЫЕ
На 10 кг баклажанов—200 г горького стручкового перца (не сушеного). 0,5 кг сладкого перца, 0,5 л растительного масла, 0,5 л 9%-ного уксуса, 1 стакан крупной соли, 20 горошин душистого перца, 10 лавровых листов, пучок петрушки, 200 г чеснока.
Подготовленные баклажаны отварить в соленой воде (уйдет на это У стакана соли), пока не станут мягкими. Разрезать их вдоль и уложить под пресс. Через 5 ч. вынуть, разрезать еще на четыре части и обжарить в растительном масле с обеих сторон. Обжаренные баклажаны сложить в большую посуду и дать им остыть. За это время приготовить соус: сладкий и горький перец вместе с чесноком пропустить через мясорубку, добавить остальную соль, уксус, специи, остатки масла. Баклажаны уложить в банки слоями, немного поливая каждый соусом. Залить им же сверху и стерилизовать 1520 мин. Банки лучше взять небольшие—литровые, пол-литровые. После стерилизации банки укупорить металлическими крышками.
БАКЛАЖАНЫ ФАРШИРОВАННЫЕ В МАРИНАДЕ
Для маринада: на 3 л воды — 3 ст. ложки уксуса, 500 г соли.
Для 1 кг фарша: 800 г моркови, 40 г корня сельдерея, 40 г корня петрушки, 100 г лука, 20 г соли, стебли сельдерея или петрушки.
1-й способ.
У баклажанов средних размеров, хорошо вымытых и с отрезанными чашелистиками, сделать 3-4 горизонтальных разреза, но не до конца. Удалить горечь, как указано в предыдущем рецепте. Опустить баклажаны на 3 мин. в подсоленный кипяток. Когда остынут, наполнить баклажаны фаршем, закладывая его в разрезы. Для лучшего сохранения формы фаршированного баклажана разрезы лучше делать с двух сторон поочередно.
Для фарша нужно морковь нарезать соломкой и обжарить, очищенные корни сельдерея и петрушки мелко нарезать и тоже обжарить. Отдельно обжарить нарезанный кольцами лук. Все соединить, слегка посолить.
Каждый фаршированный баклажан обвязать стеблями сельдерея или петрушки (если нет нужных длинных стеблей, то можно воспользоваться белыми нитками, которые необходимо убрать перед подачей на стол), чтобы начинка не вываливалась наружу.
Баклажаны уложить в трехлитровые банки, залить маринадом, укупорить и поставить в прохладное место.
2-й способ.
Со стерилизацией. Баклажаны вымочить в подсоленной воде, промыть и слегка обжарить в растительном масле. На каждом баклажане сделать продольный разрез, куда поместить фарш, после чего уложить баклажаны в банки и залить томатом. Для заливки томатный сок или разбавленный водой томат-пюре уварить до консистенции соуса. Можно добавить стручок острого
красного перца.
Стерилизовать литровую банку 1 ч. 20 мин. с момента закипания воды. Банки укупорить и хранить в холодном месте.
БАКЛАЖАНЫ В ТОМАТНОМ СОУСЕ
На 5 литровых банок — 4,8 кг баклажанов, 170 г репчатого лука, 2 кг помидоров для соуса (можно использовать покупной томатный соус, разведенный водой до нужной консистенции), 120 г сахара, 90 г соли, 80 г зелени петрушки, сельдерея, по 10 горошин черного и душистого перца, 200 г растительного масла.
Подготовленные свежие баклажаны нарезать кружками шириной 10-20 мм, сложить в дуршлаг, посыпать солью и оставить на 20 мин., а затем обжарить на растительном масле с двух сторон до золотистого цвета.
В литровую банку уложить примерно 600 г обжаренных баклажанов, добавить 400 г томатного соуса, прокипяченного со специями, накрыть крышками и стерилизовать при слабом кипении воды: литровые банки 120 мин., пол-литровые — 90 мин.
БАКЛАЖАННАЯ ЗАКУСКА
На 1 кг баклажанов — 500 г моркови, 500 г лука, 1 кг помидоров, 500 г сладкого перца, соль, молотый черный перец по вкусу.
Лук, морковь, сладкий перец нашинковать и по отдельности пережарить на растительном масле. Нарезанные небольшими кубиками баклажаны, не очищенные от кожицы, посолить и оставить на 20 мин., пролить водой. Помидоры мелко нарезать.
Все овощи смешать, посолить, поперчить и тушить 20-30 мин. Фасовать в горячем виде, укупорить и укутать в ватное одеяло до остывания.
БАКЛАЖАНЫ СОТЭ
На 1 кг баклажанов — 100-150 г сладкого перца, 150 г помидоров, 100 г сливочного масла, 100 г растительного масла, соль, зелень.
Молодые, очищенные от чашелистиков баклажаны нарезать кружочками толщиной 1-1,5 см, слегка посолить и обжарить в смеси сливочного и растительного масла .до золотистого цвета. Помидоры мелко нарезать, обжарить, соединить с мелко нарезанным сладким перцем, посолить.
На блюдо разложить кружочки баклажанов, ложкой на каждый кружочек положить смесь помидоров с перцем. Готовое блюдо подавать горячим, посыпанным измельченной зеленью петрушки или другой зеленой приправой.
Подается как самостоятельное блюдо или как гарнир к мясу.
БАКЛАЖАНЫ С ЧЕСНОКОМ
На 500 г баклажанов — 100 г сметаны, 100 г майонеза, 100 г растительного масла, 2 ст. ложки муки, 3-4 зубчика чеснока, соль, зелень петрушки, укропа, другая пряная зелень.
Молодые баклажаны нарезать кружочками, обвалять в муке, обжарить с двух сторон до золотистой корочки в растительном масле, положить в глубокую сковороду, слегка посолить, залить сметаной, смешанной с майонезом, запечь в духовке. Готовое блюдо посыпать тертым чесноком и измельченной зеленью.
БАКЛАЖАННАЯ ИКРА
1-й способ.
На 1 кг баклажанов — 500 г красных помидоров, 400 г репчатого лука, молотый черный перец и соль по вкусу, растительное масло по мере надобности.
Подготовленные баклажаны разрезать на кружки толщиной в 1 см и обжарить в масле с двух сторон и мелко порубить. По отдельности обжарить нарезанный репчатый лук до золотистого цвета и нарезанные небольшими кубиками спелые (но не очень мягкие) красные помидоры. Обжаренные овощи тщательно перемешать, добавить соль и черный молотый перец по вкусу. Смесь нагреть в кастрюле до кипения и расфасовать горячей в банки. Банки покрыть прокипяченными крышками и стерилизовать: пол-литровые — 75 мин., литровые — 100 мин. Укупорить. Хранить в холодном месте.
2-й способ.
На 1 кг баклажанов — 300 г сладкого перца, 300 г моркови. 200 г репчатого лука. 2 ст. ложки томата-пюре, растительное масло по мере надобности, перец молотый, соль по вкусу.
Баклажаны разрезать вдоль на 2 половинки, посыпать срезы солью и оставить на 20-30 мин., после чего промыть холодной водой. Нарезать небольшими кубиками. Морковь натереть на крупной терке, репчатый лук и сладкий перец нарезать кубиками.
Овощи по отдельности обжарить в растительном масле и соединить в посуде. Тщательно перемешать, добавив к массе молотый черный перец и соль по вкусу. Посуду закрыть крышкой и поставить в духовку на средний огонь на 15-20 мин. За 5 мин. до окончания тушения в овощи добавить 2 столовых ложки томатного пюре. Перемешать, прогреть в духовке. В горячем виде икру расфасовать в банки и стерилизовать: пол-литровые — 30 мин., литровые — 60 мин. Укупорить. Хранить в холодном месте.
Молодые несозревшие кабачки не могут лежать длительное время. В холодильнике при температуре 0-3° С они сохраняют свои качества в течение 10-12 дней.
Кабачки сортов «Цуккини», «Цукеша» (темно-зеленого цвета с «рисунком» в виде светлых полос или крапинок), а также сорт «Золотистый» ярко-желтого цвета хорошо сохраняются всю зиму, если их держать в прохладном месте комнаты, на полу.
КАБАЧКИ КОНСЕРВИРОВАННЫЕ
На 1 литровую банку — 600 г кабачков, 100-150 г сладкого перца, 6-8 зубчиков чеснока, по 5-6 горошин перца черного и душистого, 15-20 г укропа.
Для заливки: 0,4 л воды, 30-35 г соли, 50-60 г 5%-ного уксуса.
Свежие, плотные, с недозревшими семенами кабачки длиной до 15 см и диаметром до 3,5 см тщательно моют, дают стечь воде, отрезают плодоножку и режут на кружочки толщиной 1,5-2 см. Укроп моют и нарезают на кусочки длиной до 5 см. Перец стручковый сладкий разрезают на четвертинки вдоль. Дольки чеснока очищают и режут на пластинки.
В подготовленные банки укладывают зелень и специи, затем кабачки и перец и вливают заливку на 1,5см ниже верха горлышка банки. Кипятить заливку с уксусом не следует, т. к. при этом уксусная кислота улетучивается. Банки прикрывают крышками и стерилизуют в течение 10-12 мин. литровые банки, 14-15 мин. — трехлитровые (с момента закипания воды). Затем немедленно укупоривают и охлаждают, перевернув банки.
Кабачки можно консервировать и без сладкого перца. Консервированные кабачки используют как гарнир к мясным и рыбным блюдам, как закуску, при приготовлении салатов и винегретов.
КАБАЧКИ КОНСЕРВИРОВАННЫЕ ПО-УКРАИНСКИ
На 5 литровых банок — 8,5 кг кабачков, 270 г масла для обжарки, 260 г растительного масла, добавляемого в банки, 80 г чеснока, по 40 г зелени петрушки и укропа, 60 г соли, 300 г столового уксуса.
Молодые кабачки диаметром не более 5-6 см тщательно моют, отрезают плодоножки и режут кружками толщиной 1,5-2 см. Обжаривают в растительном масле до золотистого цвета и охлаждают. Чеснок мелко нарезают и хорошо растирают, зелень чеснока тоже режут кусочками длиной 2 см. На дно подготовленных банок наливают масло и уксус, насыпают соль, добавляют зелень и чеснок, затем плотно укладывают обжаренные кабачки. Банки, заполненные кабачками, накрывают крышками и стерилизуют: пол-литровые—20-25 мин, литровые — 40 мин. и укупоривают.
КАБАЧКИ ЖАРЕНЫЕ
На 1 кг кабачков — 100 г растительного масла, 1 яйцо, 1/2 стакана сметаны. 2-3 ст. ложки муки, соль.
1-й способ.
Молодые кабачки помыть, отрезать плодоножку, нарезать кружками 1,5-2 см, посолить по вкусу, взбить куриное яйцо, обмакнуть в него ломтики, обвалять в муке и обжарить в растительном масле с двух сторон до румяной корочки. Затем их заливают сметаной с небольшим количеством горячей воды или бульона и ставят в посуде с закрытой крышкой на 10-15 мин. на средний огонь в духовку.
2-й способ.
Кабачки, нарезанные кружочками толщиной 1 см, жарить на горячей сковороде в растительном масле подсоленными, но без панировки, с двух сторон до готовности и подавать в горячем виде со сметаной или сметанно-томатным соусом как дополнение ко второму блюду или как отдельное блюдо.
КАБАЧОК, ФАРШИРОВАННЫЙ МЯСОМ И РИСОМ
На кабачок весом 1,5 кг — 400-500 г молотого жирного мяса, 1 стакан риса, отваренного до полуготовности, 1-2 луковицы, 50 г маргарина или жира, 1 стакан сметаны, соль, молотый перец по вкусу.
Крупный кабачок очистить от кожицы, разрезать поперек на две равных половины. Ложкой выбрать семена и слегка посолить снаружи и внутри. Заполнить фаршем. Смазать посуду (лучше всего латку-гусятницу) маргарином и положить кабачок, стараясь как можно плотнее соединить половинки. Сверху полить сметаной и поставить в довольно горячую пуховку, 200-225° С, не закрывая крышкой. Временами по мере надобности переворачивать для равномерного прогревания и подрумянивания.
Когда кабачок будет достаточно мягким (проверить вилкой), посуду покрыть крышкой и уменьшить нагретость плиты до 150° С. Довести до готовности. Подавать горячим, положив целиком на блюдо и разрезав на порционные куски и полив сметаной. Блюдо украсить помидорами свежими или маринованными. Подать кетчуп или острый томатный соус.
КАБАЧОК, ФАРШИРОВАННЫЙ ОВОЩАМИ
На кабачок весом 1,5 кг—300 г моркови, 50 г капусты, 2 луковицы, 100 г растительного масла, 1 стакан сметаны, жир, зелень петрушки, укропа, соль, молотый перец.
Подготовка кабачка, технология приготовления — по предыдущему рецепту, кроме фарша.
Фарш: морковь натереть на крупной терке. Капусту и лук — мелкими кусочками. Все овощи по отдельности поджарить на растительном масле и соединить, добавив мелко нарезанные листья петрушки, укроп. Посолить, поперчить. Наполнить фаршем кабачок.
КАБАЧКИ, ТУШЕННЫЕ С КОТЛЕТНЫМ ФАРШЕМ
На 5-6 молодых кабачков или один крупный — 200 г маргарина, масла или любого жира, 800 г котлетного фарша, 1 стакан сметаны. 2 ст. ложки пшеничной муки или панировочных сухарей, перец, соль.
Для фарша: 600 г молотого любого мяса, 200 г намоченного в молоке или воде белого хлеба и отжатого, 1-2 луковицы, спассерованные на растительном масле, соль, молотый перец по вкусу.
Молодые кабачки нарезать кружочками, слегка посыпать мукой и обжарить с двух сторон. В кастрюлю, обмазанную изнутри маслом или жиром и посыпанную панировочными сухарями, положить слой мясного котлетного фарша, на него слой кабачков и таким образом заполнять кастрюлю.
Залить сметаной или томатно-сметанным соусом, добавив в сметану томатной пасты (разбавленной) или томатного соуса. Тушить в духовке на среднем огне до готовности.
КАБАЧКИ С ТВОРОГОМ
Для начинки: 200 г взбитого творога, для добавки 50 г сметаны, 3 яйца, соль, молотый перец, тертый сыр.
6 молодых кабачков разрезать вдоль и вынуть сердцевину. Слегка посолить и на каждую половинку положить начинку из творога, посыпать тертым сыром и, разложив на смазанный растительным маслом противень, запекать в горячей духовке в течение 25 мин.
КАБАЧКИ, ЗАПЕЧЕННЫЕ С СЫРОМ В ДУХОВКЕ
Для соуса: 1 ст. ложка сливочного или растительного масла, 1 ст. ложка муки, 1/2 стакана сметаны, соль.
Подготовленные молодые кабачки (у крупных кабачков убрать мякоть с семенами) нарезать кружочками или разрезать их на половинки, обжарить на растительном Масле. Предварительно лучше панировать мукой. Выложить на смазанный противень или сковороду, залить сметанным соусом, посыпать тертым сыром и запечь в духовке до образования румяной корочки.
КАБАЧКИ ВО ФРИТЮРЕ
Молодые кабачки нарезать очень тонкими кружочками и зажарить в очень горячем растительном масле (во фритюре) до золотистого цвета. Готовые кабачки вынуть шумовкой, слегка посолить и подать к столу горячими.
КАБАЧКИ, ЗАПЕЧЕННЫЕ С ПОМИДОРАМИ
Молодые кабачки нарезать кружочками толщиной в 1 см, обвалять в муке, обжарить, уложить слоями в невысокую кастрюлю, смазанную маслом или жиром, чередуя кабачки с тонко (приблизительно 5 мм) нарезанными помидорами и кусочками брынзы или мелко нарезанным сыром. Полить растопленным маслом и запечь в духовке.
КАБАЧКИ, ТУШЕННЫЕ В БУЛЬОНЕ
На 500 г подготовленных кабачков —1-2 луковицы средней величины, 1—2 ст. ложки сливочного масла, 1 сваренное вкрутую яйцо, 1 стакан мясного бульона, 1/2 стакана томатного соуса, 50 г шпика, 50 г тертого сыра, соль, зелень укропа, петрушки.
Любой по спелости кабачок очистить и нарезать небольшими кубиками и вместе с луком, нарезанным кусочками, потушить в мясном бульоне. Потушенные кабачки заправить томатным соусом, маслом, посолить по вкусу, посыпать рубленым яйцом и тертым сыром, добавить жареный шпик и запечь в духовке, поставив туда на 10 мин., при среднем огне.
При подаче на стол посыпать зеленью укропа, петрушки.
КАБАЧКОВАЯ ИКРА
1-й способ.
На 1 кг кабачков — 300 г красных помидоров, 300 г репчатого лука, молотый черный перец по вкусу, растительное масло по мере надобности.
Подготовленные кабачки нарезать на кусочки или кружки толщиной в 1 см, обжарить с двух сторон на растительном масле и мелко порубить. По отдельности обжарить нарезанный репчатый лук до золотистого цвета и нарезанные небольшими кубиками помидоры.
Обжаренные овощи соединить в кастрюле, добавить Соль и молотый черный перец, тщательно перемешать и, поставив на огонь, довести до кипения. Расфасовать по банкам в горячем виде и стерилизовать: пол-литровые банки—75 мин., литровые—100 мин. Укупорить. Хранить в холодном месте.
2-й способ.
На 1 кг кабачков — 200 г моркови, 100150 г репчатого лука, 2-3 зубчика чеснока, 2-3 ст. ложки томат-пюре, по 2-3 стебля петрушки и укропа, молотый черный перец, соль, сахар по вкусу, растительное масло по мере надобности.
Подготовленные кабачки нарезать мелкими кубиками или порубить сечкой и обжарить.
Лук измельчить вместе с кабачками или мелко порезать. Морковь натереть на мелкой терке. Все обжарить Чеснок растереть с солью. Зелень петрушки и укроп;
измельчить. Все овощи соединить и перемешать, добавив в массу молотый перец и соль по вкусу.
Кастрюлю с овощами поставить на огонь и прокипятить на среднем огне 4—5 мин., помешивая. Добавите томат-пюре, сахар, тщательно соединив при помешивании с овощной массой, и дать прогреться 2-3 мин.
Горячую икру разложить в подготовленные банки и сразу, прикрыв крышками, стерилизовать: пол-литровые банки—75 мин., литровые—90 мин. Укупорить. Хранить в прохладном месте.
ИКРА КАБАЧКОВАЯ ИЗ ОТВАРЕННЫХ КАБАЧКОВ
На 1 кг кабачков — 80 г репчатого лука, 40 г растительного масла, 5 г сахара, 5 г соли, 1 ч. ложка 9%-ного уксуса, по 2-3 стебля петрушки и укропа, по 1,5 г молотого и душистого перца.
Молодые кабачки вымыть и обрезать с обеих сторон и нарезать кружками толщиной 1-1,5 см. Поместить в кастрюлю и на слабом огне в небольшом количестве воды уварить при постоянном помешивании до половины первоначального объема. Лук нарезать пластинками или кольцами и обжарить в подсоленном масле до золотистого цвета. Зелень петрушки и укропа измельчить, чеснок растереть с солью. В уваренные кабачки добавить остальные компоненты, тщательно перемешать и уложить в стерилизованные банки, накрыть крышками и стерилизовать в кипящей воде: пол-литровые банки— 70 мин., литровые — 80 мин.
Список литературы
- Наместников А. Ф. Консервирование плодов и овощей в домашних условиях. М., «Пищевая промышленность», 1976.
- Сабуров Н. В. и Антонов М. В. Хранение и переработка плодов и овощей. М., Сельхозиздат, 1958.
- Трисвятский Л. А. и др. Хранение и технология сельскохозяйственных продуктов. М.: Агропромиздат, 1991.
- Волкинд И. Л. Промышленная технология хранения картофеля, овощей и плодов. – М.: Агропромиздат, 1988.
- Дьяченко В. С. Хранение картофеля, овощей и плодов. – М.: Агропромиздат, 1987.
- Момот В. В., Балабанов В. В. Механизация процессов переработки и хранения овощей и плодов. – М.: Агропромиздат, 1988.
- Орлов Н. П. Производство, хранение и реализация солёно-квашеных овощей и плодов. – Киев: Урожай, 1989.
- Скрипников Ю. Г. Прогрессивная технология хранения и переработки плодов и овощей.- М.: Агропромиздат, 1989.
- Широков Е. П., Полегаев В. И. Хранение и переработка плодов и овощей. – М.: Агропромиздат, 1989.
|