| ПОЯСНИТЕЛЬНАЯ ЗАПИСКА К КУРСОВОМУ ПРОЕКТУ
на тему:
“Поверочный тепловой расчет парового котла Е-420-13,8-560 (ТП-81) на сжигание Назаровского бурого угля ”
1. Общие положения
Тепловой расчет
котельного агрегата может быть конструкторским или поверочным.
Поверочный расчет котлоагрегата производится для известной конструкции котлоагрегата из заданного состава топлива. Задачей расчета является определение экономичности котла, проверка надежности работы, определение температуры греющей и нагреваемой среды по газоходам котла. Необходимость поверочного расчета может быть вызвана также реконструкцией котла с целью повышения его производительности и экономичности.
Поверочный расчет существующей конструкции котла производится не только для номинальной, но и для частичных нагрузок, что необходимо для проведения гидравлических и других расчетов.
Особенность поверочного расчета заключается в том, что представляется возможность первоначальной найти расход топлива, так как неизвестен КПД агрегата, в частности, потеря тепла с уходящими газами. Это потеря зависит от температуры уходящих газов, которая может быть определена только в конце расчета. Приходится предварительно задаваться температурой уходящих газов, а по окончании расчета определять истинное ее значение, а также значение КПД и расход топлива.
Конструкторский расчет выполняется при создании нового типа котлоагрегата для определения размеров радиационных и конвективных поверхностей нагрева, обеспечивающих номинальную производительность котла при заданных параметрах пара.
Исходные данные для теплового расчета. Расчетное задание для поверочного расчета должно содержать следующие сведения:
· Чертежи котельного агрегата
· Конструктивные характеристики топки и поверхностей нагрева
· Гидравлическую схему котла
· Тип топлива
· Производительность котла и параметры по первичному пару, температуру питательной воды, давление в барабане
· При наличии промежуточного перегрева – расход и параметры вторичного пара на входе и выходе.
· Величину непрерывной продувки (%)
· Температуру холодного воздуха
Температура уходящих газов за котлоагрегатом выбирается по условиям эффективного использования тепла топлива и расходом металла на хвостовые поверхности нагрева.
Методы, последовательность и объем поверочного теплового расчета
Существует два метода поверочного расчета: метод последовательных приближений и метод параллельных расчетов.
Метод последовательных приближений.
Расчет выполняется в следующей последовательности: по принятой температуре уходящих газов рассчитывают воздухоподогреватель и определяют температуру уходящего воздуха; рассчитывают топку с определением температуры газов на выходе из топки, пароперегреватель и водяной экономайзер, определяют температуру уходящих газов и сравнивают с принятыми температурами уходящих газов и горячего воздуха. Расхождение допускается +/- 10 град. По температуре уходящих газов и +/- 40 град. По температуре уходящего воздуха, после чего дают рекомендации по расчету.
Метод параллельных расчетов.
Расчет ведут параллельно на три температуры, чтобы искомая величина находилась в пределах задаваемых величин. Затем графически определяют истинное значение искомой величины температуры уходящих газов.
Таким образом, принимают значение температуры уходящих газов и ведут параллельно три расчета в следующем порядке: воздухоподогреватель, топка, пароперегревательные и экономайзерные поверхности, расположенные по ходу газов.
При наличии двухступенчатых воздухоподогревателе и экономайзеров после определения расхода топлива рассчитывают первые ступени воздухоподогревателя и экономайзера, вторую ступень воздухоподогревателя, затем топку и т.д. Последним рассчитывают экономайзер второй ступени или пароперегреватель.
Конвективные поверхности нагрева также рассчитывают методом параллельных расчетов. Для графоаналитического решение уравнений теплового баланса и теплопередачи для каждой из трех температур уходящих газов принимают два значения температуры газов на входе в рассчитываемую поверхность и определяют значение температуры рабочей среды. Таким образом, число параллельных расчетов каждой поверхности равно шести.
После этого расчетную невязку баланса определяют по формуле:
. Величина невязки не должна превышать 0,5%.
По данным теплового расчета составляют сводную таблицу, в которой для каждой поверхности нагрева указывают тепловосприятие, температуру и энтальпию на входе и выходе омывающих их сред, коэффициент теплопередачи и размеры поверхностей нагрева.
2. Краткое описание Котельного агрегата Е-420-13,8-560 (ТП-81)
Котельный агрегат ТП-81, Таганрогский котельный завод (ТКЗ) однобарабанный, с естественной циркуляцией, предназначен для получения пара высокого давления при сжигании пыли сухих каменных углей. Котельный агрегат ТП-81 спроектирован для сжигания черемховского каменного угля. Позже он был реконструирован для сжигания азейского бурого угля. В настоящее время на котле сжигаются бурые угли других месторождений, таких, как мугунский, (Иркутская область), ирша - бородинский, рыбинский, переясловский и др., (Красноярский край).
Котел спроектирован для работы с параметрами:
- номинальная производительность Dка
420 т/час = 116,67 кг/с
- рабочее давление в барабане Рб
= 15,5 МПа
- рабочее давление на выходе из котла (за ГПЗ) Рпп
= 13,8 МПа (+
5)
- температура перегретого пара tпп
= 565(+
5),°С (550±5)
- температура питательной воды tпв
= 230, °С
- температура горячего воздуха tгв
= 400,°С
- температура уходящих газов υух
= 153-167, °С
- минимальная нагрузка при номинальных параметрах пара 210 т/час
Допускается кратковременная работа котла с tПВ
=160°С при соответствующем снижении паропроизводительности котла.
Компоновка котла выполнена по П-образной схеме. Топочная камера размещена в первом (восходящем) газоходе. В поворотном газоходе расположен пароперегреватель, во втором, нисходящем газоходе, расположены в рассечку водяной экономайзер и воздухоподогреватель - двухступенчатая компоновка хвостовых поверхностей нагрева.
Водяной объем котла 116м3
Паровой объем котла 68 м3

 1-барабан; 2-топочная камера; 3-пылеугольная горелка; 4-холодная воронка; 5-аппарат для твердого шлакоудаления; 6-конвективная петля; 7-ширма; 8-тупени конвективного пароперегревателя; 9-паросборный коллектор; 10-экономайзер; 11-воздухоподогреватель; 12-выносной сепарационный циклон; 13 - дробеструйная установка
Топочная камера и экраны
Топочная камера
призматической формы, полностью экранирована трубами 60х6,0 мм с шагом 64 мм. Материал – сталь 20. Степень экранирования топки X=96,4%. Фронтовой и задний экраны в нижней части образуют скаты «холодной воронки». В верхней части топки трубы заднего экрана образуют «аэродинамический козырек», который улучшает аэродинамику топки и частично затеняет ширмы пароперегревателя от прямого излучения факела. Ширмы установлены на выходе из топки.
Аэродинамический козырек образует выступ в топку с вылетом 2000 мм. 50% труб заднего экрана посредством развилок имеют вертикальные участки. В трубах установлены шайбы диаметром 10 мм. Благодаря дроссельным шайбам, основная масса пароводяной смеси проходит через гнутые обогреваемые участки труб.
Экранные панели подвешены к металлоконструкциям потолочного перекрытия за верхние камеры и имеют возможность свободно расширяться вниз.
В верхней и нижней частях топочной камеры трубы экранов подключены к сборным коллекторам.
Для уменьшения влияния неравномерного обогрева на циркуляцию, все экраны разбиты на 18 контуров циркуляции (панели), которые имеют самостоятельные верхние и нижние коллекторы.
Задний и фронтальный экраны имеют по 6 панелей каждый, боковые экраны - по 3 панели. Две крайние панели заднего и фронтальный экранов состоят из 40 параллельно включенных труб, четыре средние панели - из 33 труб.
Две крайние панели боковых экранов состоят из 37 параллельно включенных труб, средняя панель из 36 труб.
Потолок топки и поворотного газохода экранирован трубами потолочного радиационного пароперегревателя.
Конструктивные характеристики топочной камеры
| Форма топки
|
Призма
|
| Объем топки, м3
|
2240
|
| Напряжение топочного объёма, кВт/м3
|
139,56
|
| Поверхность нагрева топки, м2
|
1186
|
| Степень экранирования,%
|
96, 4
|
| Ширина в свету, мм
|
14260
|
| Глубина в свету, мм
|
7424
|
| Высота топки (расчетная), мм
|
23460
|
| Тип, количество и расположение горелок
|
Вихревые, прямоточно-улиточные, 12 шт.
Однорядное, встречное
|
| Диаметр и материал труб, мм
|
60х6, ст. 20
|
Жесткость и прочность топочной камеры обеспечивается установленными по периметру подвижными поясами жесткости, которые связывают все экранные трубы котла в единую систему. Пояса жесткости размещены через каждые 3 м по высоте.
Обмуровка на котле многослойная облегченного типа. В районе топочной камеры она выполнена натрубной и при тепловом расширении труб перемещается в месте с этими трубами.
Конструкция обмуровки следующая: на экранные трубы накладывается слой огнеупорного бетона на объемной металлической сетке, затем идут слои совелитовых плит и наружный слой уплотнительной обмазки, также наносимый на металлическую сетку. Обмуровка к экранам крепится с помощью шпилек, приваренных к экранным трубам.
Обдувка радиационных поверхностей нагрева предусмотрена устройствами аппаратов водяной обдувки системы «Джет». Аппараты расположены в зоне наиболее интенсивного шлакования экранов: на отметке 10.00 м и 16.00 м по два аппарата слева и справа. Удаление шлака из топки производится через устье «холодной воронки» в водяные ванны непрерывного механического шлакоудаления.
Водоопускная система выполнена из труб диаметром 159х12 мм. Пароотводящие трубы диаметром 133х10 мм. Из чистого отсека барабана котловая вода по водоопускным трубам поступает в нижние коллекторы фронтового, заднего и боковых экранов.
В котельном агрегате была принята трехступенчатая схема испарения. В настоящее время котлы переведены на 2-х ступенчатую схему.
Фронтальный и задний экраны включены в чистый отсек барабана. Они образуют первую ступень испарения.
Вторая ступень испарения - блоки боковых экранов - состоит из двух групп параллельно включенных выносных циклонов (426х35 мм) каждая группа состоит из двух циклонов.
Для выравнивания солесодержания в отсеках I и II ступени испарения установлены четыре перебросные трубы диаметром 76х6 мм (по две трубы на каждую сторону).
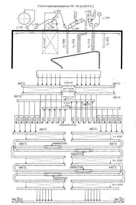
Пароперегреватель
На котле установлен радиационно-конвективный пароперегреватель. Радиационная часть пароперегревателя выполнена виде потолочного пароперегревателя и полурадиационных ширмовых поверхностей, расположенных в котле. Конвективные поверхности пароперегревателя расположены в горизонтальном газоходе котла.
Схема движения пара по пароперегревателю следующая: пар из барабана котла по 12 трубам ø133 10 мм подводится к трем входным камерам потолочного пароперегревателя, откуда по 236-ти трубам направляется в холодный пакет КПП I, состоящий из 118 сдвоенных змеевиков, пройдя противоточно эти змеевики пар поступает во входную камеру крайних ширм. Лобовые 1,5 петли холодного пакета выполнены из стали 12ХМФ. Пройдя крайние ширмы пар поступает в выходные камеры крайних ширм, откуда по четырем трубам справа и слева поступает в две камеры регулятора перегрева первой ступени, где наряду с охлаждением осуществляется переработка пара из правых крайних ширм в левые средние ширмы, и наоборот.
Пройдя 8 средних ширм, пар попадает в выходные камеры этих ширм, откуда по 4 трубам справа и слева направляется во входные камеры крайних прямоточных частей “горячего пакета”, из которых каждый состоит из 29 пакетов змеевиков (по 3 петли в каждом пакете).
Пройдя крайние пакеты, пар поступает в камеры регуляторов перегрева II-ой ступени, в которых одновременно с охлаждением осуществляется еще один переброс из правой крайней части в левую среднюю, и наоборот. Выйдя из камер регуляторов перегрева IIой ступени, пар поступает во входные камеры средней части горячих пакетов, каждый из которых состоит из 30 пакетов змеевиков (по 3 петли в каждом пакете), и пройдя их прямотоком пар поступает в выходные камеры, откуда по 8 перепускным трубам ø133 77 мм поступает в паросборную камеру.
Барабан котла и сепарационные устройства
Котел ТП-81 имеет один барабан с внутренним диаметром 800 мм, изготовленный из листовой ст. 16ГНМ, толщина стенки барабана - 92 мм, длина цилиндрической части –16200 мм. Барабан установлен на двух роликовых опорах, обеспечивающих его свободное удлинение при нагревании. В середине цилиндрической части барабан жестко прикреплен к металлоконструкциям котла. Барабан предназначен для разделения пароводяной смеси на пар и воду и организации барботажной промывки пара питательной водой. Питательная вода, подогретая в водяном экономайзере до температуры 320-340°С, поступает по восьми трубам диаметром 133х10 мм в чистый отсек барабана под слой котловой воды. Для предотвращения термических напряжений в стенке барабана водоподводящие трубы снабжены защитными рубашками.
В барабане котла питательная вода разделяется на два потока: большая часть вводится в водяное пространство, а меньшая (10-15% питательной воды), по 4-ем соединительным трубам (через питательный коллектор диаметром 133х4 мм) поступает на промывочное устройство. Барботажно - промывочное устройство представляет собой горизонтальный дырчатый щит, который состоит из 44-х промывочных листов с отверстиями диаметром 5 мм. На эти листы непрерывно поступает питательная вода.
Листы имеют бортик, в результате чего поддерживается постоянный уровень питательной воды. Избыток питательной воды по сливным коробам поступает в чистый отсек – под уровень котловой воды. Пароводяная смесь из экранов местными коробами подводится к циклонам, которые расположены внутри барабана вдоль боковых стен (12/58 штук (диаметр 315 мм)). В циклонах происходит «гашение» кинетической энергии пароводяной смеси и основная сепарация пара от воды.
Пар из фронтального и заднего экранов поступает в 46 циклонов чистого отсека, а пар боковых экранов сепарируется в 12-и циклонах. Для того чтобы пар из циклонов не попадал в опускные трубы, под ними установлены так называемые «корыта».
Отделившийся в корпусе циклонов пар поднимается вверх и проходит через дырчатый щит где отдает питательной воде растворенные в нем соли. Промывочная вода поступает под уровень котловой воды барабана. После промывки пара питательной водой, он проходит через пластинчатый сепаратор, где происходит вторичная (тонкая) сепарация пара. Для равномерного отвода пара по всей длине барабана в верхней его части расположен потолочный дырчатый щит, который также состоит из 44-х листов.
Сепарационными устройствами второй ступени испарения являются выносные циклоны (426х36 мм, сталь20). В верхней части циклона имеется перфорированный пароприемный потолок, в нижней части расположена крестовина, которая препятствует образованию воронок в опускных трубах.
Пар из циклонов по двум трубам диаметром 133х10 мм поступает под промывочный дырчатый щит первой ступени испарения для промывки. Из водяного объема циклонов предусмотрена непрерывная продувка котловой воды.
Пароперегреватель.
По характеру тепловосприятия пароперегреватель радиационно-конвективного типа и делится на радиационную, полурадиационную и конвективную части. Схема пароперегревателя котла ТП-81 представлена на рис. 8.4.
Радиационная
часть - потолочные трубы (диаметром 38х4 мм материал сталь 20), полностью закрывающие верх топки и конвективного газохода.
Полурадиационная
часть - ширмы, расположенные над аэродинамическим козырьком на выходе из топки.
Конвективные
поверхности пароперегревателя размещены в горизонтальном газоходе - три ступени.
Пар из барабана поступает в потолочный пароперегреватель, экранирует потолок топки, горизонтального газохода, поворотной камеры, возвращается, делает большую петлю на входе в опускной газоход (эта петля является первой частью КПП 1) и поступает на вход в ширмовый пароперегреватель (- 2 ступень пароперегревателя) проходит противотоком средние ширмы и поступает в пароохладитель 1 ступени. Далее с перебросом слева на право пар противотоком проходит крайние ширмы и поступает во входные коллекторы пароперегревателя первой ступени - вторая часть КПП 1. После КПП 1 расположена вторая ступень впрыска. Опять, с перебросом слева на право пар поступает во входные коллекторы третьей ступени пароперегревателя, проходит его также прямотоком и поступает во входные коллекторы пароохладителя третьей, ступени, после чего пар подается на вход четвертой, последней ступени пароперегревателя, проходит ее прямотоком и подается в выходные коллекторы. Откуда пар по двенадцати трубам поступает в паросборную камеру с двумя противоположными выходами.
Таким образом, по ходу пара пароперегреватель условно делится на пять частей
- потолочный пароперегреватель с конвективной петлей (1-я часть конвективного пароперегревателя);
- ширмовый пароперегреватель (20 ширм из V - образных труб), каждая ширма - 33 трубы с шагом 40 мм, материал- сталь 12Х1МФ, диаметром 32х4 мм;
- три ступени конвективного пароперегревателя (1,3 и 4 ступени)
Для уменьшения тепловых перекосов предусмотрена трехкратная переброска пара по ширине газохода.
Первая часть КПП 1 расположена в рассечке ширмового пароперегревателя.
Вторая часть КПП 1 - за пакетами ширмового пароперегревателя.
Третья и четвертая ступени пароперегревателя расположены за второй частью КПП 1 выполненным по прямоточной схеме относительно газов.
Пароперегреватель двухпоточный по пару (с независимым регулированием температуры пара в каждом потоке). Каждая ступень регулирования выполняется в виде двух камер пароохладителей впрыскивающего типа, с диаметром - 325 мм.
Для впрыска используется собственный конденсат, получаемый в четырех конденсаторах, расположенных на отметке барабана котла.
Конденсация насыщенного пара, поступающего из барабана, производится питательной водой после первой ступени ВЭ в установке для приготовления собственного конденсата.
После конденсаторов питательная вода поступает во вторую ступень ВЭ (по 4-м трубам диаметром 159х12 мм, материал сталь 20).
Образовавшийся конденсат собирается в сборнике конденсата и одной трубой (диаметр 133х10 мм, материал сталь 20) направляется к сниженному узлу впрыска, а затем (по 6-ти трубам) - к пароохладителям.
Потолочный пароперегреватель. Из барабана котла по 12-ти трубам (диаметром 108х9 мм) пар поступает во входные камеры потолочного пароперегревателя. Последний экранирует потолок топки, горизонтального газохода и поворотной камеры.
Потолочный пароперегреватель состоит из 174 параллельно включенных змеевиков (трубы змеевиков диаметром 38х4 мм, сталь 20, камеры диаметром 219х26 мм). Шаг между трубами 40 и 80 мм, поверхность нагрева 870 м2
(с конвективной петлей).
Змеевики потолочного пароперегревателя за 3-ей ступенью конвективного пароперегревателя образуют конвективную петлю (1-ая часть КПП).
Ширмовый пароперегреватель
Из выходных камер потолочного пароперегревателя пар поступает во входные смешивающие коллектора «холодных ширм» (по 6-ти трубам диаметром 159х16 мм).
Далее пар поступает во входные коллектора 10-ти «холодных ширм» (10 труб диаметром 133х10 мм).
Каждая ширма- это 33 параллельно включенных змеевика (диаметр 32х4 мм, сталь 12Х1МФ).
Диаметр входного и выходного коллектора ширм 159х16 мм, поверхность нагрева «холодных ширм» 312м2
.
Из выходных коллекторов ширм пар поступает в пароохладитель №1 (по 10-ти трубам диаметром 133х10 мм), - где происходит снижение температуры перегретого пара и первая переброска пара по ширине газохода.
Из выходного коллектора пароохладителя пар поступает во входные смешивающие коллекторы «горячих ширм» (по 6-ти трубам диаметром 156х16 мм) и дальше - в выходные коллекторы «горячих ширм» (по 10-ти трубам диаметром 133х10 мм).
Поверхность нагрева «горячих ширм» - 312м2
.
Диаметр выходного коллектора - 273х26 мм.
Конвективный пароперегреватель
Из ширмового пароперегревателя пар поступает в конвективный пароперегреватель (по 6-ти трубам диаметром 156х16 мм) первой, затем второй, третьей и четвертой ступеней КПП.
С целью уменьшения тепловой и гидравлической неравномерности конвективная часть разделена на три последовательно включенные ступени, которые расположены в горизонтальном соединительном газоходе. Каждая ступень состоит из 174 пакетов параллельно включенных змеевиков, расположение змеевиков – коридорное с поперечным шагом 80 мм и продольным шагом 60 мм.
Диаметры труб:
Первая ступень (2 часть КПП 1) - 32х5 мм;
Вторая ступень (3 часть КПП) - 32х5 мм;
Третья ступень (4 часть КПП) - 32х6 мм;
Материал труб сталь 12Х1МФ.
Для выравнивания температуры пара по ширине газохода в пароохладителях №2 и №3 (после первой и второй ступеней КПП), осуществляется переброс пара по ширине газохода.
Площадь поверхности нагрева: 1 ступень - 800 м2
; 2 ступень - 1340 м2
; 3 и 4 ступеней - по 1025 м2
.
Максимальная температура металла в обогреваемой зоне не должна превышать значений указанных в таблице.
Регулирование температуры перегретого пара
Для регулирования температуры перегретого пара предусмотрена схема с 3-мя последовательно включенными впрыскивающими пароохладителями.
Расчетное снижение температуры перегретого пара составляет:
1 впрыск - 6 °С; 2 впрыск - 11 °С; 3 впрыск - 2 °С
Температура перегрева для пароперегревателя возрастет при:
- увеличении нагрузки,
- снижении температуры питательной воды,
- увеличении избытка воздуха в топке,
- переходе на сжигание более влажного топлива,
- шлаковании экранных труб,
- затягивании факела в верх топки,
- - при переходе на сжигание более влажного топлива.
В связи с тем, что пароперегреватель котла ТП-81 имеет обширную конвективную часть, большое влияние на температуру перегретого пара оказывает величина избытка воздуха в топке.
Водяной экономайзер. Расположен в конвективной шахте (опускной газоход). Компоновка 2-х ступенчатая.
По ходу газов первой идет 2-ая ступень – поверхность нагрева 870 м2
, а затем, (после воздухоподогревателя 2 ступени); идет 1-я ступень - поверхность нагрева 2580м2
.
Водяной экономайзер крепится на пустотелых балках, охлаждаемых воздухом от дутьевого вентилятора.
Для охлаждения водяного экономайзера в период пусков предусмотрена линия рециркуляции ВЭ - барабан, соединяющая входные коллекторы экономайзера с водяным пространством барабана котла.
Между выходными коллекторами 1- ой ступени и входными коллекторами 2-ой ступени смонтирована дренажная линия (опорожнение 2-ой ступени экономайзера).
Шаги труб, мм (S1
x S2
): 1 ступень - 80х49; 2 ступень - 85х60
Живое сечение по газам, м2
: 1 ступень - 36,8; 2 ступень - 34,0
Живое сечение по воде, м2
: 1 ступень - 0,212; 2 ступень - 0,100
Поверхности нагрева м2
: 1 ступень - 2580; 2 ступень – 870
Водяной экономайзер изготовлении из труб диаметром 25х3,5, материал труб сталь 20; двухступенчатая компоновка хвостовых поверхностей нагрева, т.е. пакеты водяного экономайзера и воздухоподогревателя установлены в «рассечку».

Схема пароперегревателя котла ТП-81
Воздухоподогреватель
трубчатый, двухступенчатый. По ходу газов первой идет 2-ая ступень воздухоподогревателя поверхность нагрева которой 9180 м2
, диаметр труб 51х1,5 мм, сталь 3. За 2-ой ступенью воздухоподогревателя следует I ступень водяного экономайзера, а далее - 1 ступень воздухоподогревателя с поверхностью нагрева 19800 м2
, диаметр труб 40х1,5 мм сталь3.
Весь воздухоподогреватель изготовлен в виде отдельных секций, состоящих из труб, скрепленных трубными досками: верхняя ступень имеет 12 секций, нижняя - 24 секции.
Первая по ходу воздуха ступень выполнена шестипоточной по газу и воздуху и четырехходовой по воздуху. На рис. 8.5. представлена компоновка воздухоподогревателя котла ТП-81.
Вторая ступень - двухпоточная по газу и воздуху и одноходовая по воздуху.
Шаги труб, мм (S1
x S2
)
1-я ступень 62х40,5
2-я ступень 78х51
Живое сечение по газам, м2
1-я ступень 17,8
2-я ступень 21,5
Живое сечение по воздуху, м2
1-я ступень 25,1
2-я ступень 21,8

Упрощенная схема воздухоподогревателя котла ТП-81
1-вход воздуха; 2-трубные секции; 3-перепускной короб между нижними и верхними секциями первой ступени ВП; 4-короб, направляющий воздух из первой ступени во вторую; 5-трубные секции второй ступени ВП
3. Исходные данные для расчета
Метод последовательных приближений;
Топливо: Итатское месторождение, Канско-Ачинского бассейна.
=130 0
С; =230 0
C; =30 0
C
Расчетные характеристики камерных топок при Д≥75т/ч при сжигании твердых топлив.
Таблица 1.
| Вид
Топочного
устройства
|
Топливо
|
Коэффиц.
избытка
воздуха на выходе из топки -
|
Допустим.
тепловая нагрузка объема по услов. горения
( )
|
Потеря тепла от хим. недожога

|
Потеря тепла от механичес. недожога

|
Доля уноса золы из топки, 
|
| Камерная
топка с тв. удалением
шлака.
|
Бурый уголь
|
1,20
|
185
|
0
|
0,5-1
|
0,95
|
Присосы воздуха по газоходам: 
∆αпп
=0,01; ∆αвэ
=0,02(на каждую ступень);
∆αвп
=0,03(на каждую ступень);
∆αт
=0,05; ∆αпл
=0,04
Расчет объемов воздуха и продуктов сгорания
Расчет объемов воздуха и продуктов горения ведется на 1 кг рабочего топлива (твердого и жидкого) или на 1 м3
газового топлива, при нормальных условиях (0 0
С и 101,3 кПа).
Теоретический объем сухого воздуха, необходимого для полного сгорания топлива при α=1 для твердого и жидкого топлив определяется по формуле Vн
о,в
=(cr
+ 0,375∙sr
)+0,265hr
– 0,0333∙or
;
Теоретические объемы продуктов горения (при α=1) для твердых и жидких топлив: = 0,0186∙(cr
+0,375∙ sr
);
= 0,79Vн
о,в
+0,008∙Nr
;
= 0,111∙ hr
+0,0124∙Wr
р
+0,0161∙ Vн
о,в
;
Vн
о,г
= + +
;
Расчет действительных объемов продуктов сгорания по газоходам котла при избытке воздуха α >1 ведется по формулам: (сведены в табл. 5.)
Объем водяных паров
Объем дымовых газов
Объемные доли 3-х атомных газов
Безразмерная концентрация золы в дымовых газах, кг/кг
μзл
= ;
где аун
- доля золы топлива, уносимой газами.
Масса продуктов сгорания, кг/кг
;
Расчет теоретических объемов воздуха и продуктов сгорания для барандатского угля:
Vн
о,в
=(cr
+ 0,375∙sr
)+0,265hr
– 0,0333∙or
=
0,0889∙(29,55+0,375∙0,65)+0,265∙3,86-0,0333∙19=3,038864;
= 0,0186∙(cr
+0,375∙ sr
)= = 0,0186∙(29,55+0,375∙0.65)= 0,55416;
= 0,79Vн
о,в
+0,008∙Nr
=0,79∙3,038864+0,008∙0,64= 2,40582;
= 0,111∙ hr
+0,0124∙Wr
р
+0,0161∙ Vн
о,в
= 0,960986;
Vн
о,г
= + +
=0,55416+2,40582+0,960986=3,920966;
Энтальпия воздуха и продуктов сгорания (α=1) определяется по формулам:
· для воздуха: Io
в
= Vн
о,в
∙(С )в
· для дымовых газов:
Io
г
= VRO
∙(С )СО
+Vн
о,
N
∙(С )N
+Vн
o
,
H
O
∙(С ) H
O
,
· для золы:
Энтальпия продуктов сгорания при избытке воздуха α>1 определяется по формуле: Iг
= Io
г
+ (α -1) ∙ Io
в
+ Iзл
,
Расчет теоретических и действительных значений энтальпий сведен в таблицу. 6.
4. Расчет тепловой баланс и КПД котла
Составление теплового баланса котельного агрегата заключается в установлении равенства между поступившим в агрегат количеством тепла, называемым располагаемым теплом, и суммой полезно использованного тепла и тепловых потерь. На основании теплового баланса вычисляется КПД и необходимый расход оплива.
По рекомендации расчет теплового баланса ведем в форме
Таблица 3
| №
п/п
|
Наименование величины
|
Обозна-
чение
|
Размер-
ность
|
Формула или обоснование
|
Расчет
|
| 1
|
Располагаемое тепло топлива
|
Qр
р
|
кДж/кг
|
Qр
р
≈ Qн
r
|
13030
|
| 2
|
Температура уходящих газов
|

|
0
С
|
Принята предварительно
|
130
|
| 3
|
Энтальпия уходящих газов
|
IУХ
|
кДж/кг
|
Таблица.2.
|
869,7
|
| 4
|
Температура холодного воздуха
|
t0
ХВ
|
0
С
|
Задана.
|
30
|
| 5
|
Энтальпия холодного воздуха
|
I0
ХВ
|
кДж/кг
|
Таблица. 2.
|
165,328
|
| 6
|
Потери тепла:
от химического недожога
|
q3
|
%
|
[табл. 3.1.]
|
0
|
| 7
|
от механического недожога
|
q4
|
%
|
[табл. 3.1.]
|
0,5
|
| 8
|
в окружающую среду
|
q5
|
%
|
[ рис. 4.1.]
|
0,4
|
| 9
|
с уходящими газами
|
q2
|
%
|
|
4,758
|
| 10
|
Доля золы в шлаке
|
а Ш Л
|
-
|
(1-аун
)
|
0,05
|
| 11
|
Температура сухого шлака
|
t Ш Л
|
0
С
|
6000
С
|
600
|
| 12
|
Энтальпия золы
|
I
зл
|
кДж/кг
|
Форм3.3
|
38,836
|
| 13
|
Потеря с физическим теплом шлаков
|
q6
|
%
|

|
0,0157
|
| 14
|
Сумма тепловых потерь
|
Σqпот
|
%
|
q2
+q3
+ q4
+q5
+q6
|
5,67
|
| 15
|
Коэффициент полезного действия котельного агрегата (брутто)
|

|
%
|
100- Σqпот
|
94,3
|
| 16
|
Давление перегретого пара за котельным агрегатом
|
РПП
|
МПа
|
Задано
|
13,8
|
| 17
|
Температура перегретого пара
|
t ПП
|
0
С
|
Задано
|
560
|
| 18
|
Энтальпия перегретого пара
|
iПП
|
кДж/кг
|
Задано
|
3489,5
|
| 19
|
Температура питательной воды
|
t ПВ
|
0
С
|
Задано
|
230
|
| 20
|
Энтальпия питательной воды
|
iПВ
|
кДж/кг
|
Задано
|
990,2
|
| 21
|
Тепло, полезно используемое в котельном агрегате
|
Q КА
|
кДж/кг
|

|
1095,546
|
| 22
|
Полный расход топлива
|
B
|
(кг/с)
|

|
24,74
|
| 23
|
Расчетный расход топлива
|
Bp
|
(кг/с)
|
|
24,62
|
| 24
|
Коэффициент сохранения тепла
|
|
-
|

|
0,996
|
Для данной марки и модификации котла достаточно одного слагаемого из формулы:
=
,
где -количество выработанного перегретого пара, кг/с;
- удельная энтальпия перегретого пара, кДж/кг;


После расчета теплового баланса приступаем к расчету воздухоподогревателя первой ступени.
5
. Конвективная шахта
Конвективная шахта представляет собой опускной газоход с размещенными в ней в рассечку, водяным экономайзером и трубчатым воздухоподогревателем. Низкотемпературные поверхности нагрева имеют двухступенчатую схему расположения. Кубы водяного экономайзера и воздухоподогревателя имеют «горячий» каркас и с основным каркасом не связаны. Такая конструкция дает возможность осуществить приварку этих блоков друг к другу. Сплошная заварка всех сочленений блоков устраняет присосы воздуха и повышает тем самым экономичность котла. Тепловое расширение конвективной шахты происходит снизу вверх, стык между верхними пакетами воздухоподогревателя и верхним водяным экономайзером уплотняется линзовым компенсатором.
Расчет первой ступени трубчатого воздухоподогревателя
Расчет трубчатого воздухоподогревателя I
Таблица 4
| № п/п
|
Наименование величины
|
Обозначение
|
Размерность
|
Формула или обоснование
|
Расчет
|
| 1
|
Диаметр труб
|
d
|
мм
|
По конструкт. характеристикам
|
40×1,5
|
| 2
|
Шаги труб
- поперечный
- продольный
|
S1
S2
|
мм
|
По конструкт. характеристикам
|
60
40,5
|
| 3
|
Относительные шаги
- поперечный шаг
- продольный шаг
|
σ1
σ2
|
мм
мм
|
S1
/d
S2
/d
|
1,55
1,0125
|
| 4
|
Число труб в ряду:
- поперек хода
- по ходу воздуха
|
Z1
Z2
|
шт.
шт.
|
По конструктивным характеристикам
|
156
35
|
| 5
|
Живое сечение для прохода газов
|

|
м2
|
Характер.
|
17,8
|
| 6
|
Живое сечение для прохода воздуха
|

|
м2
|
Характер.
|
9,31
|
| 7
|
Поверхность нагрева
|
H
|
м2
|
Характер.
|
12315
|
| 8
|
Температура уходящих газов
|

|
˚С
|
Принята с последующим уточнением
|
130
|
| 9
|
Энтальпия
|
I//
ух
|
кДж/кг
|
I – табл.
|
833.4155
|
| 10
|
Температура газов на входе в ВП
|

|
˚С
|
Принимается с последующим уточнением
|
250
|
300
|
| 11
|
Энтальпия
|
I/
вп
|
кДж/кг
|
табл. 6
по α//
эк
1.3
|
1434.1
|
1728.42
|
| 12
|
Температура холодного воздуха
|
tхв
|
˚С
|
Задана
|
30
|
| 13
|
Энтальпия
|
Iхв
|
кДж/кг
|
табл. 6
|
112,845
|
| 14
|
Тепловосприятие ступени по балансу
|
Qб 1,2
|
кДж/кг
|
φ(I/
- I//
+ ΔαI0
хв
)
|
603,7
|
896,1
|
| 15
|
Присос воздуха в топку
|
ΔαT
|
-
|
таблица 3.2[1]
|
0,05
|
| 16
|
Присос воздуха в пылесистему
|
Δαпл
|
-
|
таблица 3.2[1]
|
0,04
|
| 17
|
Отношение количества горячего воздуха к Vн
o
,хв
|
βгв
|
-
|
αT
- ΔαT
- Δαпл
|
1,15
|
| 18
|
Коэффициент избытка воздуха на выходе из ВП
|
β//
вп
|
-
|

|
1,05
|
| 19
|
Энтальпия горячего воздуха на выходе из ступени
|
I//
гв
|
кДж/кг
|

|
683,5
|
934,6
|
| 20
|
Температура горячего воздуха на выходе из ступени
|
t//
гв
|
˚С
|
табл. 6
|
124,026
|
169,59
|
| 21
|
Средняя температура воздуха
|
t
|
˚С
|

|
78,5
|
99,8
|
| 22
|
Средняя температура газов
|

|
˚С
|

|
190
|
215
|
| 25
|
Средняя скорость газов
|
Wг
|
м/с
|

|
11,46
|
12,1
|
| 26
|
Коэффициент теплоотдачи с газовой стороны
|
α2
|

|
рисунок 5.6[1]
|
38
|
40
|
| 27
|
Средняя скорость воздуха
|
Wв
|
м/с
|

|
4,03
|
4,27
|
| 28
|
Коэффициент теплоотдачи с воздушной стороны
|
α1
|

|
рисунок 5.5[1]
|
48,45
|
49,82
|
| 29
|
Коэффициент использования поверхности нагрева
|
ξ
|
-
|
таблица 5.5[1]
|
0,85
|
| 30
|
Коэффициент теплопередачи
|
k
|

|

|
19,95
|
18,86
|
| 31
|
Температурный напор на входе газов
|
Δt/
|
˚С
|
/
- t//
|
125,9
|
130,41
|
| 32
|
Температурный напор на выходе газов
|
Δt//
|
˚С
|
//
- t0
хв
|
100
|
| 33
|
Температурный напор при противотоке
|
Δtпрот
|
˚С
|

|
112,95
|
115,2
|
| 34
|
Больший перепад температур
|
τб
|
˚С
|
t//
- t/
|
94,026
|
139,59
|
| 35
|
Меньший перепад температур
|
τм
|
˚С
|
/
- //
|
120
|
170
|
| 36
|
Параметр
|
Р
|
-
|

|
0,545
|
0,629
|
| 37
|
Параметр
|
R
|
-
|

|
0,78
|
0,82
|
| 38
|
Коэффициент
|
ψ
|
-
|
П. 5.3 рис. 5.15 [1]
|
0,65
|
0,65
|
| 39
|
Температурный напор
|
Δt
|
˚С
|
ψ Δtпр
|
73,41
|
74,88
|
| 40
|
Тепловосприятие по уравнению теплопередачи
|
QT
|
кДж/кг
|

|
1178
|
1136
|
Из графического уточнения расчетных величин ВП-I (рис. 3) определили значения температур уходящих газов =340˚С и температуру горячего воздуха на выходе из ступени t//
гв
=203˚С Qб
уточ
=1100кДж/кг
Расчет первой ступени водяной экономайзер
Расчет первой ступени водяного экономайзер
| № п/п
|
Наименование величины
|
Обозначение
|
Размерность
|
Формула или обоснование
|
Расчет
|
| 1
|
Диаметр труб
|
dн
/dвн
|
мм
|
По конструкт. характеристикам
|
25×3,5
|
| 2
|
Шаги труб
- поперечный
- продольный
|
S1
S2
|
мм
|
По конструкт. характеристикам
|
80
49
|
| 3
|
Живое сечение для прохода газов
|
Fr
|
м2
|

|
36,8
|
| 4
|
То же для воды
|
fв
|
м2
|

|
0,212
|
| 5
|
Относительные шаги
- поперечный шаг
- продольный шаг
|
σ1
σ2
|
-
-
|
S1
/d
S2
/d
|
3,2
1,96
|
| 6
|
Число рядов труб в змеевике
|
Z2
|
-
|
По конструкт. характеристикам
|
228
|
| 7
|
Число змеевиков
|
Z1
|
-
|
По конструкт. характеристикам
|
114
|
| 8
|
Поверхность нагрева
|
H
|
м2
|
Πdln

|
2580
|
| 9
|
Температура газов на выходе из ступени
|

|
˚С
|
Из расчета ВП-I
|
340
|
| 10
|
Энтальпия газов на выходе
|
I//
ЭК
|
кДж/кг
|
Табл.. по α//
эк
|
1968,96
|
| 11
|
Теплосодержание воды
|
i/
эк
|
кДж/кг
|
i – S табл. [2]
|
990,21
|
| 12
|
Температура воды на входе в экономайзер
|
t/
эк
|
˚С
|
задана
|
230
|
| 13
|
Температура газов на входе в экономайзер
|

|
˚С
|
Принимается с последующим уточнением
|
400
|
450
|
| 14
|
Энтальпия газов на входе
|
I/
эк
|
кДж/кг
|
табл. 6
по α//
вп=1,28
|
2329,76
|
2540,2
|
| 15
|
Тепловосприятие ВЭКпо балансу
|
Qб
|
кДж/кг
|
φ(I/
- I//
+ Δαэк
I0
хв
)
|
361,08
|
533,8
|
| 16
|
Теплосодержание воды на выходе
|
i//
эк
|
кДж/кг
|
i/
эк
+ Qб

|
1064,9
|
1100,6
|
| 17
|
Температура воды на выходе из ступени
|
t//
эк
|
˚С
|
при Рэк
=11,5 МПа
|
245,5
|
253,06
|
| 18
|
Температурный напор на входе газов
|
Δt/
|
˚С
|
/
- t//
эк
|
154,5
|
196,94
|
| 19
|
Температурный напор на выходе газов
|
Δt//
|
˚С
|
//
- t/
=349-215
|
110
|
| 20
|
Средний температурный напор
|
Δt
|
˚С
|

|
131,63
|
149,4
|
| 21
|
Средняя температура газов
|

|
˚С
|

|
370
|
395
|
| 22
|
Средняя температура воды
|
t
|
˚С
|

|
237,75
|
241,53
|
| 23
|
Температура загрязненной стенки
|
tЗ
|
˚С
|
t + 25
|
262,75
|
266,53
|
| 24
|
Суммарная объемная доля трехатомных газов и водяных паров
|
rn
|
-
|
таблица 5
|
0,317
|
| 25
|
Средняя скорость газов
|
Wг
|
м/с
|

|
7,58
|
7,87
|
| 26
|
Коэффициент теплоотдачи конвекцией
|
αК
|

|
рисунок 5.5
стр. 53 [1]
|
30,25
|
29,4
|
| 27
|
Эффективная толщина излучающего слоя
|
S
|
м
|

|
0,157
|
| 28
|
∑ поглощательная способность
|
Pn
S
|
МПа×м
|
rn
* S*0,1
|
0,00497
|
| 29
|
Коэффициент ослабления лучей трехатомными газами
|
kr
|
1/ МПа
|
k0
r
× rn
k0
r
– рисунок 5.11[1]
(24 и 23)
|
37
|
35
|
| 30
|
Коэффициент теплоотдачи излучением
|
αл
|

|
рис. 5.9
|
4
|
4,5
|
| 31
|
Коэффициент тепловой эффективности
|
ψ
|
-
|
п. 5.3 табл. 5.2
|
0,7
|
| 32
|
Коэффициент теплопередачи
|
k
|

|
ψ(αК
+ αл
)
|
23,97
|
23,73
|
| 33
|
Тепловосприятие ступени по уравнению теплопередачи
|
QT
|
кДж/кг
|

|
532,324
|
Из графического уточнения расчетных величин ВЭК-I(рис. 5) найдем значение уходящих газов на входе в ВЭК-I и значение температуры питательной воды на выходе из ВЭК-I: =392 t//
эк
=243С; Qб
уточ
=330кДж/кг
Расчет второй ступени воздухоподогревателя
Двухступенчатая компоновка воздухоподогревателя позволяет подогреть воздух до 350-450 ˚С. Сущность этой схемы заключается в увеличении температурного напора на горячем конце воздухоподогревателя в результате переноса его горячей (второй) ступени в область более высокой температуры продуктов сгорания. Это позволяет сохранить температуру уходящих газов на достаточно низком уровне. Температура газов перед второй ступенью воздухоподогревателя задается из условия обеспечения надежности работы верхней трубной доски. Она должна быть не выше =550-5800
С.
Таблица 6. Расчет воздухоподогревателя второй ступени
| № п/п
|
Наименование величины
|
Обозначение
|
Размерн-ость
|
Формула или обоснование
|
Расчет
|
| 1
|
Диаметр труб
|
d
|
мм
|
По конструкт. характеристикам
|
51
1,5
|
| 2
|
Шаги труб
- поперечный
- продольный
|
S1
S2
|
мм
|
По конструкт. характеристикам
|
78
51
|
| 3
|
Относительные шаги
- поперечный шаг
- продольный шаг
|
σ1
σ2
|
мм
мм
|
S1
/d
S2
/d
|
1,5
1
|
| 4
|
Число труб в ряду:
- поперек хода
- по ходу воздуха
|
Z1
Z2
|
шт.
шт.
|
По конструктивным характеристикам
|
| 5
|
Общее количество труб
|
n
|
шт.
|

|
| 6
|
Живое сечение для прохода газов
|

|
м2
|

|
21,5
|
| 7
|
Живое сечение для прохода воздуха
|
fв
|
м2
|

|
21,8
|
| 8
|
Поверхность нагрева
|
H
|
м2
|
Πdln=
3,14*0,04*3,4*
*12598
|
9180
|
| 9
|
Температура уходящих газов
|

|
˚С
|
Из расчета ВЭ-I
|
392,5
|
| 10
|
Энтальпия
|
I//
ух
|
кДж/кг
|
табл. 6
|
2239,68
|
| 11
|
Температура газов на входе в ВП
|

|
˚С
|
Принимается с последующим уточнением
|
450
|
500
|
| 12
|
Энтальпия
|
I/
вп
|
кДж/кг
|
табл. 6
|
2513,5
|
2812,65
|
| 15
|
Тепловосприятие ступени по балансу
|
Qб 1,2
|
кДж/кг
|
φ(I/
- I//
+ ΔαI0
хв
)
|
276,9
|
573,07
|
| 19
|
Коэффициент избытка воздуха на выходе из ВП
|
β//
вп
|
-
|
βгв
+ 
|
1,065
|
| 20
|
Энтальпия горячего воздуха на выходе из ступени
|
I//
гв
|
кДж/кг
|

|
1377,6
|
1671,52
|
| 21
|
Температура горячего воздуха на выходе из ступени
|
t//
гв
|
˚С
|
табл. 6
|
245,09
|
296
|
| 22
|
Средняя температура воздуха
|
t
|
˚С
|

|
224,045
|
249,5
|
| 23
|
Средняя температура газов
|

|
˚С
|

|
421,25
|
446,2
|
| 26
|
Средняя скорость газов
|
Wг
|
м/с
|

|
13,8
|
14,3
|
| 27
|
Коэффициент теплоотдачи с газовой стороны
|
α2
|

|
рисунок 5.6[1]
|
41,82
|
41,58
|
| 28
|
Средняя скорость воздуха
|
Wв
|
м/с
|

|
6,65
|
6,99
|
| 29
|
Коэффициент теплоотдачи с воздушной стороны
|
α1
|

|
рисунок 5.5 [1]
|
90,24
|
92,15
|
| 31
|
Коэффициент теплопередачи
|
k
|

|

|
24,3
|
24,4
|
| 32
|
Температурный напор на входе газов
|
Δt/
|
˚С
|
/
- t//
|
204,91
|
204
|
| 33
|
Температурный напор на выходе газов
|
Δt//
|
˚С
|
//
- t0
хв
|
189,5
|
| 34
|
Температурный напор при противотоке
|
Δtпрот
|
˚С
|

|
197,35
|
197
|
| 35
|
Больший перепад температур
|
τб
|
˚С
|
t//
- t/
|
42,09
|
93
|
| 36
|
Меньший перепад температур
|
τм
|
˚С
|
/
- //
|
57,5
|
107,5
|
| 37
|
Параметр
|
Р
|
-
|

|
0,23
|
0,36
|
| 38
|
Параметр
|
R
|
-
|

|
0,732
|
0,86
|
| 39
|
Коэффициент
|
ψ
|
-
|
П. 5.3 рис. 5.15 [1]
|
0,65
|
| 40
|
Температурный напор
|
Δt
|
˚С
|
ψ Δtпр
|
128,3
|
128,05
|
| 41
|
Тепловосприятие по уравнению теплопередачи
|
QT
|
кДж/кг
|

|
1163,43
|
1165,9
|
Из графического уточнения расчетных величин ВП-II (рис. 7) определили значения температур уходящих газов =500 Стемпературу горячего воздуха на выходе из ступени t//
гв
=177,5 С, Qб
уточ
=573,07 кДж/кг
Расчет водяного экономайзера второй ступени
Температура газов на входе во вторую ступень водяного эокономайзера не должна быть выше 600-650 °С(из условий надежности работы змеевиков). ВЭК-II выполнен двух заходным и двух поточным.
Таблица 7. Расчет водяного экономайзера второй ступени
| № п/п
|
Наименование величины
|
Обозначение
|
Размерность
|
Формула или обоснование
|
Расчет
|
| 1
|
Диаметр труб
|
dн
/dвн
|
мм
|
По конструкт. характеристикам
|
25
3,5
|
| 2
|
Шаги труб
- поперечный
- продольный
|
S1
S2
|
мм
|
По конструкт. характеристикам
|
85
60
|
| 3
|
Живое сечение для прохода газов
|
Fr
|
м2
|

|
34
|
| 4
|
То же для воды
|
fв
|
м2
|

|
0,1
|
| 5
|
Относительные шаги
- поперечный шаг
- продольный шаг
|
σ1
σ2
|
-
-
|
S1
/d
S2
/d
|
3,4
2,4
|
| 6
|
Число рядов труб в змеевике
|
Z2
|
-
|
По конструкт. характеристикам
|
| 7
|
Число змеевиков
|
Z1
|
-
|
| 8
|
Поверхность нагрева
|
H
|
м2
|
Πdln

|
870
|
| 9
|
Температура газов на выходе из ступени
|

|
˚С
|
Из расчета ВП-II
|
500
|
| 10
|
Энтальпия газов на выходе
|
I//
ЭК
|
кДж/кг
|
табл. 6
|
2813
|
| 11
|
Теплосодержание воды
|
i/
эк
|
кДж/кг
|
i – S табл. [2]
При Р=11,5МПа
|
969,5
|
| 12
|
Температура воды на входе в экономайзер
|
t/
эк
|
˚С
|
Из расчета ВЭ-I
|
243
|
| 13
|
Температура газов на входе в экономайзер
|

|
˚С
|
Принимается с последующим уточнением
|
550
|
650
|
| 14
|
Энтальпия газов на входе
|
I/
эк
|
кДж/кг
|
I – табл. 5
по α//
вп
|
3105,9
|
3695,2
|
| 15
|
Тепловосприятие экономайзера по балансу
|
Qб
|
кДж/кг
|
φ(I/
- I//
+ Δαэк
I0
хв
)
|
295,6
|
882,4
|
| 16
|
Теплосодержание воды на выходе
|
i//
эк
|
кДж/кг
|
i/
эк
+ Qб

|
1030,6
|
1151,9
|
| 17
|
Условная темперетура воды на выходе из ступени
|
t//
эк
|
˚С
|
i – S табл. [2]
|
377,6
|
438,2
|
| 18
|
Температурный напор на входе газов
|
Δt/
|
˚С
|
/
- t//
эк
|
172,4
|
211,8
|
| 19
|
Температурный напор на выходе газов
|
Δt//
|
˚С
|
//
- t/
|
257
|
| 20
|
Средний температурный напор
|
Δt
|
˚С
|

|
212,13
|
233,95
|
| 21
|
Средняя температура газов
|

|
˚С
|

|
525
|
575
|
| 22
|
Средняя температура воды
|
t
|
˚С
|

|
310,3
|
340,6
|
| 23
|
Температура загрязненной стенки
|
tЗ
|
˚С
|
t + 25
|
370,3
|
400,6
|
| 28
|
Средняя скорость газов
|
Wг
|
м/с
|

|
9,9
|
10,5
|
| 29
|
Коэффициент теплоотдачи конвекцией
|
αК
|

|
рисунок 5.5
стр. 53 [1]
|
71,76
|
76,26
|
| 30
|
Эффективная толщина излучающего слоя
|
S
|
м
|

|
0,211
|
| 31
|
∑ поглощательная способность
|
Pn
S
|
МПа×м
|
rn
* S*0,1
|
0,007
|
| 32
|
Коэффициент ослабления лучей трехатомными газами
|
kr
|
1/ МПа
|
k0
r
× rn
k0
r
– рисунок 5.11[1]
(33и31)
|
9,5
|
10,15
|
| 34
|
Коэффициент поглощения частиц кокса
|
kк
μк
|
1/ МПа
|
Принимаем для бурого угля
|
0,1
|
| 37
|
Коэффициент теплоотдачи излучением
|
αл
|

|
рис. 5.9 = αН
αл
= αН
×а

|
70,98
|
75,44
|
| 39
|
Коэффициент тепловой эффективности
|
ψ
|
-
|
п. 5.3 табл. 5.2[1]
СаО=33%
|
0,65
|
0,65
|
| 43
|
Коэффициент теплопередачи
|
k
|

|
ψ(αК
+ αл
)
|
92,8
|
98,6
|
| 44
|
Тепловосприятие ступени по уравнению теплопередачи
|
QT
|
кДж/кг
|

|
696,2
|
815,8
|
Из графического уточнения расчетных величин ВЭ-II (рис. 9) определим значения температур уходящих газов =644Си температуру питательной воды на выходе из ступени t//
ПВ
=420,6СТепловосприятие экономайзера по балансу Qб
уточ
=812,5 кДж/кг
После расчета ВЭК-II приступаем к расчету топочной камеры.
Расчет теплообмена в топочной камере
Расчет топки
| № п/п
|
Наименование величины
|
Обозначение
|
Размерность
|
Формула или обоснование
|
Расчет
|
| 3
|
Температура горячего воздуха
|
tгв
|
˚С
|
Из расчета ВП-II
|
295
|
| 4
|
Энтальпия горячего
воздуха
|
I//
гв
|
кДж/кг
|
табл. 6
|
1130
|
| 5
|
Тепло, вносимое в топку с воздухом
|
Qв
|
кДж/кг
|
(αТ
-ΔαТ
-Δαпл
)I0
гв
+ +(ΔαТ
+Δαпл
)I0
хв
|
3110,6
|
| 6
|
Полезное тепловыделение в топке
|
Qт
|
кДж/кг
|
|
16088,2
|
| 7
|
Теоретическая температура горения
|
а
|
˚С
|
табл. 6 при
Qт
= Iа
по α//
Т
|
2051
|
| 8
|
Относительное положение максимума температур
|
XГ
|
-
|
XГ
= hГ
/HТ
|
0.219
|
| 9
|
Коэффициент
|
М
|
-
|

|
0,4805
|
| 10
|
Температура газов на выходе из топки
|

|
˚С
|
принята ориентировочно по t1
золы
|
1000
|
| 11
|
Энтальпия
|
I//
Т
|
кДж/кг
|
табл. 6
|
7150,6
|
| 12
|
Произведение
|
РnS
|
МПа×м
|
rn
* S*0,1
(S = 5,67)
|
2,24
|
| 13
|
Средняя суммарная теплоемкость продуктов сгорания
|
(VC)ср
|

|

|
8,5
|
| 14
|
Коэффициент ослабления лучей
|
| 15
|
- трехатомными газами
|
kr
|
1/ МПа
|
k0
r
× rn
k0
r
=2,1(рисунок 5.11 [1])
|
2,31
|
| - золовыми частицами
|
kзл
μзл
|
1/ МПа
|

|
0,57
|
| - частицами кокса
|
kк
μк
|
1/ МПа
|
табл. 7.3 [1]
|
0,1
|
| Эффективная толщина излучающего слоя
|
S
|
м
|

|
6.79
|
| 16
|
Оптическая толщина
|
k
|
-
|
kr
+ kзл
μзл
+ kк
μк
|
2,98
|
| 17
|
Критерий Бугера
|
Bu
|
-
|
kPS
|
2,03
|
| 18
|
Коэффициент тепловой эффективности экранов
|
ψэф
|
-
|
п. 7.6 таблица 7.4 [1]
|
0,45
|
| 19
|
Коэффициент
|
β
|
-
|
п. 7.6 [1]
|
0,8
|
| 20
|
Коэффициент учитывающий загрязнения ширм
|

|
-
|
ξ×β
|
0,36
|
| 22
|
Средний коэффициент тепловой эффективности
|
ψср
|
-
|

|
0,45
|
| 23
|
Температура газов на выходе из топки
|

|
˚С
|

|
1050
|
| 24
|
Энтальпия
|
I//
Т
|
кДж/кг
|
табл. 6
|
7551,6
|
| 25
|
Количество тепла воспринятого в топке излучением
|

|
кДж/кг
|

|
8536,6
|
| 26
|
Средняя тепловая нагрузка лучевоспринимающей поверхности нагрева
|

|
кВт/м2
|

|
177.2
|
| 27
|
Теплонапр. Топочного объема
|
|
кВт/м3
|

|
143,21
|
6.
Расчет пароперегревателя

Расчет радиационного пароперегревателя
Радиационный пароперегреватель рассчитываемого котла закрывает потолок топки и потолок горизонтального газохода. Поэтому приращение энтальпии пара в РПП составляет, кДж/кг,

Удельное приращение тепла в отдельных частях РПП определим по формулам:

Количество воды идущее на впрыск:

Среднее тепловое напряжение поверхности топочной камеры


Таблица 8. Расчет КПП I
| Наименование величины
|
Обозначение
|
Размерность
|
Формула или обоснование
|
Расчет
|
| Диаметр труб
|
d
|
мм
|
По конструктивным характеристикам
|
32*5
|
| Живое сечение для прохода газов
|

|
м2
|
По конструктивным характеристикам
|
58,8
|
| Живое сечение для прохода пара
|

|
м2
|
По конструктивным характеристикам
|
0,198
|
| Средний поперечный шаг труб
|
S1
|
мм
|
По конструктивным характеристикам
|
80
|
| Средний продольный шаг труб
|
S2
|
мм
|
По конструктивным характеристикам
|
58,6
|
| Эффективная толщина излучающего слоя
|
S
|
мм
|
|
0,192
|
| Относительный поперечный шаг
|

|
-
|
|
2,5
|
| Относительный продольный шаг
|

|
-
|
|
1,83
|
| Поверхность нагрева
|
H
|
м2
|
По конструктивным характеристикам
|
1323
|
| Температура газов на выходе из ступени
|

|
°С
|
Из расчета ВЭ
|
644
|
| Энтальпия газов на выходе
|

|
кДж/кг
|
Таблица 5
|
3660,1
|
| Теплосодержание пара на входе в ст.
|

|
кДж/кг
|
Из расчета впрыска I
|
3062,9
|
| Температура пара на входе в ступень
|

|
°С
|
Из расчета впрыска I
|
420
|
| Температура газов на входе в ступень
|

|
°С
|
Принимается
|
700
|
| Энтальпия газов на входе в ступень
|

|
кДж/кг
|
Таблица 5
|
3825
|
| Тепловосприятие ступени по балансу
|

|
кДж/кг
|

|
760,9
|
| Теплосодержание пара на выходе из ступени
|

|
кДж/кг
|
|
3237,4
|
| Температура пара на выходе из ступени
|

|
°С
|
Таблицы воды и водяного пара
|
472
|
| Температурный напор на входе газов
(прямоток)
|

|
°С
|

|
280
|
| Температурный напор на выходе газов
(прямоток)
|

|
°С
|

|
| Средний темп. напор при прямотоке
|

|
°С
|

|
| Средняя температура газов
|
J
|
°С
|

|
| Средняя температура пара
|
t
|
°С
|

|
| Средняя скорость газов
|

|
м/с
|

|
| Коэффициент теплоотдачи конвекцией
|

|

|
[5, рисунок 3]
|
| Средний удельный объем пара
|
u
|
м3
/кг
|
Таблицы воды и водяного пара
|
| Средняя скорость пара
|

|
м/с
|

|
| Коэффициент теплоотдачи от стенки пару
|

|

|
[5, рисунок 6]
|
| Температура загрязненной стенки
|
tз
|
°С
|
t + 100
|
| Суммарная толщина оптического слоя
|
Pn
S
|
МПа
|

|
| Коэффициент ослабления лучей трехатомными газами
|
kг
|

|
[5, рисунок 11], k
|
| Коэффициент ослабления лучей золовыми частицами
|
kзл
·μзл
|

|

|
| Оптическая толщина
|
Bu
|
-
|
(kг
+ kзл
· зл
+ kk
· k
)·p·S
|
| Коэффициент теплоотдачи излучением
|

|

|
[5, рисунок 8]
|
| Поправка на излучение газовых объемов
|

|

|
|
| Коэффициент теплоотдачи
|
k
|

|

|
| Тепловосприятие ступени по уравнению теплопередачи
|

|
кДж/кг
|
|
Из графического уточнения расчетных величин КПП-I vопределим значения температур уходящих газов =669 Си температуру питательной воды на выходе из ступени t//
ПВ
=455СТепловосприятие экономайзера по балансу Qб
уточ
=525 кДж/кг
Таблица 13. Расчет КПП II
| Наименование величины
|
Обозначение
|
Размерность
|
Формула или обоснование
|
Расчет
|
| Диаметр труб
|
d
|
мм
|
По конструктивным характеристикам
|
32*5
|
| Живое сечение для прохода газов
|

|
м2
|
По конструктивным характеристикам
|
46,2
|
| Живое сечение для прохода пара
|

|
м2
|
По конструктивным характеристикам
|
0,198
|
| Средний поперечный шаг труб
|
S1
|
мм
|
По конструктивным характеристикам
|
80
|
| Средний продольный шаг труб
|
S2
|
мм
|
По конструктивным характеристикам
|
60
|
| Эффективная толщина излучающего слоя
|
S
|
мм
|
|
0,198
|
| Относительный поперечный шаг
|

|
-
|
|
2,5
|
| Относительный продольный шаг
|

|
-
|
|
1,875
|
| Поверхность нагрева
|
H
|
м2
|
По конструктивным характеристикам
|
1340
|
| Температура газов на выходе из ступени
|

|
°С
|
Из расчета КПП 1
|
669
|
| Энтальпия газов на выходе
|

|
кДж/кг
|
Таблица 5
|
3689
|
| Теплосодержание пара на входе в ст.
|

|
кДж/кг
|
Из расчета впрыска I
|
3186?1
|
| Температура пара на входе в ступень
|

|
°С
|
Из расчета впрыска I
|
455
|
| Температура газов на входе в ступень
|

|
°С
|
Принимается
|
900
|
1000
|
| Энтальпия газов на входе в ступень
|

|
кДж/кг
|
Таблица 5
|
5100
|
5723?3
|
| Тепловосприятие ступени по балансу
|

|
кДж/кг
|

|
1407
|
2028
|
| Теплосодержание пара на выходе из ступени
|

|
кДж/кг
|
|
3509
|
3651
|
| Температура пара на выходе из ступени
|

|
°С
|
Таблицы воды и водяного пара
|
569
|
624
|
| Температурный напор на входе газов
(прямоток)
|

|
°С
|

|
445
|
545
|
| Температурный напор на выходе газов
(прямоток)
|

|
°С
|

|
100
|
45
|
| Средний темп. напор при прямотоке
|

|
°С
|

|
272,5
|
295
|
| Средняя температура газов
|
J
|
°С
|

|
784,5
|
834,5
|
| Средняя температура пара
|
t
|
°С
|

|
512
|
539,5
|
| Средняя скорость газов
|

|
м/с
|

|
9,4
|
9,9
|
| Коэффициент теплоотдачи конвекцией
|

|

|
[5, рисунок 3]
|
84,24
|
85,6
|
| Коэффициент теплоотдачи от стенки пару
|

|

|
[5, рисунок 6]
|
1980
|
2079
|
| Температура загрязненной стенки
|
tз
|
°С
|
t + 100
|
537
|
564,5
|
| Суммарная толщина оптического слоя
|
Pn
S
|
МПа
|

|
0,006
|
| Коэффициент ослабления лучей трехатомными газами
|
kг
|

|
[5, рисунок 11], k
|
8,91
|
8,25
|
| Коэффициент ослабления лучей золовыми частицами
|
kзл
·μзл
|

|

|
0,65
|
| Коэффициент теплоотдачи излучением
|

|

|
[5, рисунок 8]
|
14,35
|
18,43
|
| Поправка на излучение газовых объемов
|

|

|
|
23,09
|
28,53
|
| Коэффициент теплоотдачи
|
k
|

|

|
69,8
|
74,2
|
| Тепловосприятие ступени по уравнению теплопередачи
|

|
кДж/кг
|
|
1035,2
|
1191,4
|
Из графического уточнения расчетных величин КПП-II определим значения температур уходящих газов =827 Си температуру питательной воды на выходе из ступени t//
ПВ
=532СТепловосприятие экономайзера по балансу Qб
уточ
=966,7 кДж/кг.
Таблица 13. Расчет КПП III
| Наименование величины
|
Обозначение
|
Размерность
|
Формула или обоснование
|
Расчет
|
| Диаметр труб
|
d
|
мм
|
По конструктивным характеристикам
|
32*6
|
| Живое сечение для прохода газов
|

|
м2
|
По конструктивным характеристикам
|
46,2
|
| Живое сечение для прохода пара
|

|
м2
|
По конструктивным характеристикам
|
0,198
|
| Средний поперечный шаг труб
|
S1
|
мм
|
По конструктивным характеристикам
|
80
|
| Средний продольный шаг труб
|
S2
|
мм
|
По конструктивным характеристикам
|
60
|
| Эффективная толщина излучающего слоя
|
S
|
мм
|
|
0,192
|
| Относительный поперечный шаг
|

|
-
|
|
2,5
|
| Относительный продольный шаг
|

|
-
|
|
1,875
|
| Поверхность нагрева
|
H
|
м2
|
По конструктивным характеристикам
|
1025
|
| Температура газов на выходе из ступени
|

|
°С
|
Из расчета КПП 1
|
827
|
| Энтальпия газов на выходе
|

|
кДж/кг
|
Таблица 5
|
4704
|
| Теплосодержание пара на входе в ст.
|

|
кДж/кг
|
Из расчета впрыска I
|
3412,6
|
| Температура пара на входе в ступень
|

|
°С
|
Из расчета впрыска I
|
532
|
| Температура газов на входе в ступень
|

|
°С
|
Принимается
|
1100
|
1200
|
| Энтальпия газов на входе в ступень
|

|
кДж/кг
|
Таблица 5
|
6422
|
7075
|
| Тепловосприятие ступени по балансу
|

|
кДж/кг
|

|
1713
|
2363
|
| Теплосодержание пара на выходе из ступени
|

|
кДж/кг
|
|
3805,4
|
3954,5
|
| Температура пара на выходе из ступени
|

|
°С
|
Таблицы воды и водяного пара
|
683,5
|
743
|
| Температурный напор на входе газов
(прямоток)
|

|
°С
|

|
568
|
668
|
| Температурный напор на выходе газов
(прямоток)
|

|
°С
|

|
143,5
|
84
|
| Средний темп. напор при прямотоке
|

|
°С
|

|
356
|
376
|
| Средняя температура газов
|
J
|
°С
|

|
963,5
|
1013,5
|
| Средняя температура пара
|
t
|
°С
|

|
608
|
637,5
|
| Средняя скорость газов
|

|
м/с
|

|
11,1
|
11,6
|
| Коэффициент теплоотдачи конвекцией
|

|

|
[5, рисунок 3]
|
91,8
|
104,3
|
| Коэффициент теплоотдачи от стенки пару
|

|

|
[5, рисунок 6]
|
2178
|
2326,5
|
| Температура загрязненной стенки
|
tз
|
°С
|
t + 100
|
633
|
662,5
|
| Суммарная толщина оптического слоя
|
Pn
S
|
МПа
|

|
0,006
|
| Коэффициент ослабления лучей трехатомными газами
|
kг
|

|
[5, рисунок 11], k
|
7,6
|
6,9
|
| Коэффициент ослабления лучей золовыми частицами
|
kзл
·μзл
|

|

|
0,65
|
| Коэффициент теплоотдачи излучением
|

|

|
[5, рисунок 8]
|
21,4
|
28,13
|
| Поправка на излучение газовых объемов
|

|

|
|
29,1
|
38,2
|
| Коэффициент теплоотдачи
|
k
|

|

|
78,6
|
92,6
|
| Тепловосприятие ступени по уравнению теплопередачи
|

|
кДж/кг
|
|
1164,95
|
1449,6
|
Из графического уточнения расчетных величин КПП-III определим значения температур уходящих газов =902 Си температуру питательной воды на выходе из ступени t//
ПВ
=568СТепловосприятие экономайзера по балансу Qб
уточ
=505 кДж/кг.
Проверка расчёта


 
 

|12300,32– 12975|×100%/12300,32 = 4,6%
На этом расчет котла считается законченным.
Выводы по расчету:
При сжигании в котле непроектного вида топлива советую внести следующие конструктивные изменения:уменьшить поверхность нагрева ВЗП-II в 2 раза.
Список используемой литературы
1. Сорокина Л.А., Федчишин В.В., Кудряшов А.Н., «Котельные установки и парогенераторы»: Учебное пособие. – Иркутск: Издательство ИрГТУ, 2002. – 148 с
2. Александров А.А., Григорьев Б.А., «
Таблица теплофизических свойств воды и водяного пара»: Справочник. Рек. Гос. Службой стандартных справочных данных. Издательство МЭИ, 1999 - 168 с.
3. Сорокина Л.А., Федчишин В.В., Кудряшов А.Н., «Котельные установки и парогенераторы. Поверочный расчет котельного агрегата Е-160-9,8-540 (БКЗ-160-100Ф) на угле Переясловского месторождения»: Учебное пособие для курсового и дипломного проектирования. – Иркутск, 2004. – 91 с.
|