МИНИСТЕРСТВО СЕЛЬСКОГО ХОЗЯЙСТВА
РОССИЙСКОЙ ФЕДЕРАЦИИ
Федеральное государственное образовательное учреждение высшего пРофессионального образования
российский государственный аграрный университет –
МСха имени К.А. Тимирязева (ФГОУ ВПО ргау - МСХА имени К.А. Тимирязева)
Кафедра хранения, переработки и товароведения
продукции растениеводства
Курсовая работа
по дисциплине: «Технология хранения и переработки продукции растениеводства».
Тема: «Технология послеуборочной обработки зерна и семян озимой ржи в Московской области»
Исполнитель: студент Осипов Ю.С группа 403
Руководитель работы: Мякиньков А.Г.
Руководитель работы (подпись)
Дата защиты:
Оценка:
Москва, 2009
Оглавление
Введение.3
1. Требования к погодным условиям и районы возделывания.4
2. Озимая рожь как объект переработки.7
3. Требования государственных стандартов на озимую рожь.9
4. Общие вопросы технологии послеуборочной обработки.11
5. Расчётная часть. 18
6. Требования к зернохранилищам и типы зернохранилищ.25
Заключение.31
Список литературы.. 32
Введение.
Озимая рожь – одна из важнейших продовольственных культур нашей страны. Из ржаной муки выпекают разнообразные сорта хлеба, обладающие высокими вкусовыми качествами (минский, бородинский, заварной, украинский, рижский и др.) и содержащие полноценные белки и витамины В1
, В2
В6
, РР, Е. По калорийности ржаной хлеб значительно превосходит пшеничный, хотя и уступает ему по переваримости и усвояемости. Многим людям, особенно страдающим полнотой, лучше питаться ржаным хлебом, чем белым. Институт питания АМН РФ рекомендует включать в рацион питания большинства групп населения страны от общей нормы суточного потребления хлеба 16–18% ржаного.
Ржаное зерно используют на кормовые цели. Из растений приготовляют сенную муку, силос, сенаж, зеленый корм, сено. Зерно ржи имеет и техническое значение. Его применяют в винокуренной и крахмалопаточной промышленности. Ржаную солому широко применяют в быту для поделки матов, корзин, шляп, ее также используют как ценный подстилочный материал в животноводстве. Из ржаной соломы делают бумагу, получают целлюлозу, лигнин и другие материалы.
В мироном земледелии рожь занимает 9,5 млн. га, что составляет всего лишь 4,6% площади, которую занимает пшеница. Из европейских стран значительные площади ржи имеются в Польше – 1,58 млн. га и Германии – 728 тыс. га. В странах – экспортерах зерна посевы ржи незначительны.
В Западной Европе рожь некогда была главным хлебом для населения большинства стран региона. Ныне ее посевы сузились. В результате длительной конкуренции она сохранила свои позиции лишь в условиях, не вполне благоприятных для пшеницы: на бедных, особенно на песчаных, землях в зонах прохладного климата, то есть в северных или предгорных районах. Единственный пищевой продукт массового потребления – ржаной хлеб быстро вытесняется из рациона питания западноевропейского населения. В настоящее время в западных странах на продовольствие используется меньше ржи, чем на корм. Но эта тенденция ее превращения из продовольственной культуры в кормовую рассматривается как результат воздействия на зерновую отрасль со стороны правительств, поддерживающих производство этой культуры путем чрезвычайно высоких цен с таким расчетом, чтобы фермеры не разорялись и не покидали эти земли, пригодные для возделывания из зерновых культур только озимой ржи.
В нашей стране с ее суровыми климатическими условиями культура ржи играла и будет играть существенную роль в экономике, а следовательно, и в питании населения. В России сосредоточены самые большие площади посевов ржи в мире – 3,5 млн. га. Основные посевы сосредоточены в Средневолжском, Центральном, Волго-Вятском районах, а также в Центральном Черноземы и Западной Сибири.
Средняя урожайность ржи в мире 2,22 т/га, в России 1,83 т/га; самая высокая – в Германии (5,0 т/га)
1. Требования к погодным условиям и районы возделывания.
Озимая рожь выносливая и малотребовательная культура. Она отличается высокой холодостойкостью; по данным Д.Н. Прянишникова, озимая рожь даже в бесснежные зимы может переносить в зоне узла кущения морозы до 250
С. Высокая холодостойкость позволяет расширять ее посевы в юго-восточных и восточных районах, высевать озимую рожь в малоснежных районах Сибири и Казахстана, где морозы нередко достигают 400
С и более. Такая зимостойкость объясняется тем, что при своевременном посеве рожь осенью до наступления морозов приобретают должную закалку, которой растения в наибольшей степени обладают в фазе кущения.
Рожь обладает высокой засухоустойчивостью, чему способствует использование осенних осадков, сильное развитие корневой системы еще с осени.
Семена ржи прорастают при 1–2°
С тепла, всходы появляются через 4–7 дней после посева, в зависимости от влажности почвы, температуры, глубины заделки семян. Рожь обычно дает 4–6 плодоносящих стеблей на одно растение, хотя при благоприятных условиях может выбросить до 50 стеблей, но они обычно позднее появляются и не образуют нормального колоса. Кущение в основном заканчивается осенью. Длина вегетационного периода у ржи составляет 260–270 дней в южных районах и 360 дней и более в северных. Период от появления всходов до колошения у озимой ржи наиболее продолжительный. Цветение начинается через 10–12 дней после колошения и продолжается 10–15 дней. Озимая рожь обычно созревает на 8–10 дней раньше озимой пшеницы.
К почвам озимая рожь не очень требовательна. Она дает хорошие урожаи на песчаных и суглинистых почвах, а при соответствующем уходе даже на заболоченных почвах. Но максимальные урожаи ее получают на плодородных черноземах. Озимая рожь сильно реагирует на внесение удобрений.
Озимая рожь обладает сравнительно высокой пластичностью, благодаря которой она широко распространена во всех зонах России. Имеющиеся различные экологические группы и сорта озимой ржи существенно различаются по своим требованиям к почве и климату и соответственно к приемам их возделывания.
Рост развитие озимых состоят из двух больших циклов, разделяемых между собой в разных зонах Нечерноземной полосы длительным периодом (от 4 до 7 мес.) вынужденного покоя, обусловленного климатическими факторами. Первый цикл начинается осенью и заканчивается прекращением осенней вегетации. Второй цикл начинается с возобновлением вегетации весной и заканчивается плодоношением и отмиранием растений.
За первый цикл у озимых формируются главным образом вегетативные органы, выполняющие важнейшие функции питания и обмена, а второй цикл характеризуются в основном формированием генеративных органов. В течение осеннего периода при благоприятных условиях интенсивно растут листья, вегетативные побеги и корневая система, в конусе нарастания проходят процессы органогенеза, в растении накапливаются пластические вещества на период зимовки, отлагающиеся в значительном количестве в узлах кущения.
Отношение к почвенным условиям
.
Озимая рожь отличается от других культур меньшей требовательностью к почве. Благодаря мощной корневой системе, лучшей усвояющей ее способности полнее использует питательные вещества почвы, например, трудно растворимые соединения фосфора.
Озимая рожь менее требовательна к почве, чем другие зерновые культуры. Она широко распространена на подзолистых почвах Нечерноземной зоны и на легких суглинистых. Корневая система ржи (в сравнении с другими зерновыми) лучше усваивает питательные вещества из труднорастворимых соединений. Например, озимая рожь лучше, чем пшеница, использует фосфорную кислоту, особенно из труднорастворимых соединений фосфора.
Озимую рожь широко возделывают на подзолистых, легких супесчаных и легких суглинистых почвах, а также на почвах с повышенной кислотностью (рН 5,3). Легкие супесчаные почвы часто называют «ржаными», так как рожь удается хорошо (Брянская область). Однако лучшими почвами для ржи считаются черноземы. Таким образом, озимую рожь можно успешно возделывать как на подзолистых почвах севера, так и на южных черноземах.
Озимая рожь хорошо отзывается на окультуривание почвы и на вносимые удобрения.
Рожь менее чувствительна к кислотности почвы, она дает сравнительно хорошие урожаи при рН 5. Но снижение кислотности весьма положительно сказывается на перезимовке урожайности озимой ржи.
На переувлажняемых и тяжелых почвах озимая рожь страдает от вымокания, а в годы с поздним сходом снега также сильнее повреждается от выпревания.
Таким образом, на большинстве почв Нечерноземной полосы можно успешно возделывать озимую рожь. При этом на тяжелых и переувлажняемых почвах необходимо соблюдать специфические требования в обработке почв, способах посева и ухода за растениями в осенний и весенний периоды, способствующих устранению избыточной влаги.
Отношение к климатическим условиям
.
Климат более освоенной части Нечерноземной полосы характеризуется как умеренно теплый и влажный. Погодные условия здесь складываются по-разному под влиянием различных атмосферных явлений. К основным факторам, оказывающим большое влияние на рост и развитие озимых культур, относятся: обеспеченность растений влагой в период посева и развития всходов, температурно-водный режим в период закалки озимых осенью, снежный покров и температура в зимний период, температура и влага в фазы колошения и цветения и при наливе зерна.
Однако в Нечерноземной полосе, особенно в восточных районах, за ряд лет в июле – августе бывает мало осадков. Поэтому из-за сухости почвы задерживается развитие всходов, что отрицательно сказывается на последующем развитии озимых, в том числе на подготовке их к зимовке. Но это вполне можно преодолеть путем правильной подготовки почвы к посеву, обеспечивающей сбережение влаги.
В дальнейшем, вплоть до прекращения осенней вегетации, озимые хорошо обеспечены влагой, но запасы ее по зонам бывают различные.
2. Озимая рожь как объект переработки.
Под технологическими свойствами зерна следует понимать совокупность физических свойств, обусловливающих поведение сырья в процессе его переработки.
Мукомольные технологические свойства зерна характеризуют следующие показатели: общий выход муки (количество муки, выраженное в процентах к количеству переработанного зерна); извлечение крупок и дунстов, полученных при измельчении зерна в дранном процессе, выраженное в процентах к количеству переработанного зерна; степень вымола оболочек – минимальное количество частиц эндосперма, оставшихся не отделёнными от оболочек; протяжённость технологического процесса (количество систем); расход энергии на выработку 1 т муки.
Эти показатели находятся в прямой зависимости от свойств самого зерна: стекловидности, зольности, цвета, твёрдости, выравненности, натуры.
По внешнему виду и строению зерно ржи сходно с зерном пшеницы, хотя имеются и существенные различия. Зерно ржи более длинное, узкое, бывают и короткие зёрна. Зерновка у основания заострённая, на верхнем конце тупая.
Основной частью зерна являются углеводы. Среди углеводов первое место занимает крахмал
(56-64 %), остальные углеводы – сахара, дикстрины, гелицеллюлоза и пентозаны
составляют около 10 %. Крахмал играет большую роль в технологии приготовления ржаного теста и хлеба. Он сосредоточен в эндосперме зерна и находится там в виде крахмальных зёрен различных размеров.
Крахмал ржи клейстеризуется легче чем пшеницы. При температуре 62,5˚С крахмальные зёрна сильно набухают, теряют свойственную им форму и деформируются.
Зерно ржи содержит большое количество сахаров. Содержание редуцирующих сахаров в зерне ржи составляет около 0,3 %, сахарозы – около 5 %. Суммарное количество сахаров 7-8 %.
Содержание клетчатки
в зерне ржи составляет 2-3 %. В зерне клетчатка распределена неравномерно, наибольшее количество сосредоточено в оболочках зерна.
Особенностью углеводного комплекса зерна ржи является содержание в нём растворимых полисахаридов. Этим обусловлено наличие в зерне ржи большого количества водорастворимых веществ – от 12 до 17 %. В состав ржи входит 1,5-5 % слизи
(гумми), которые представляют собой гидрофильные вещества, поглощающие до 8 объёмов воды, что придаёт зерну ржи повышенную эластичность, которая усложняет дробление зерна при размоле. Наличие большого количества слизи отражается на качестве хлеба, так как в тесте не образуется связной клейковины.
Поэтому ржаной хлеб имеет меньшую пористость мякиша и большую влажность.
В зерне ржи содержится в среднем белков меньше, чем в пшенице. Белковые вещества обладают повышенной растворимостью в воде (около 30 %). В меньшей степени они растворяются в спиртовых растворах. Содержание белка
в зерне ржи колеблется от 8 до 18 %. Среднее содержание белка 12 %. Наличие белка в зерне ржи зависит от сорта, района произрастания, почвенно-климатических условий, агротехники и т.д. В пищевом отношении белок зерна ржи является полноценным. В составе белков зерна содержатся аминокислоты.
Белки в мучнистом ядре зерна ржи распределены неравномерно. Содержание белка возрастает от центральной части ядра к периферии. Наиболее богат белками зародыш.
Содержание жира
колеблется в пределах от 1,8 до 2,1 %. Наибольшее количество его находится в зародыше. В состав зерна входит от 1,5 до 2,2 % минеральных веществ, которые распределены неравномерно. Наибольшее количество их сосредоточено в зародыше, алейроновом слое и оболочках, а наименьшее – в эндосперме. В зерне ржи содержатся витамины В1
, В2
, РР
и др. В зародыше имеется витамин Е
и провитамин А
. витамин В1
(тиамин)
находится в основном в зародыше и алейроновом слое. Тиамина в зерне содержится в среднем 4,8 мг/кг, рибофлавина
1,5-2,9 мг/кг. Низшие сорта ржаной муки содержат больше витаминов, поэтому хлеб из обойной муки более питательный.
Химический состав отдельных частей зерна ржи показывает, что в пищевом отношении не все части зерна одинаково полноценны. В состав оболочек ржи входят: клетчатка, минеральные вещества, пентозаны и незначительное количество азотистых веществ. Алейроновый слой богат клетчаткой, минеральными веществами, пентозанами, белками и жиром. Зародыш содержит наибольшее количество сахара, белка, жира, минеральных веществ, ферментов и витаминов. В состав эндосперма входят: весь крахмал, большая часть растворимых углеводов и белковых веществ и небольшое количество пентозанов, клетчатки и жира.
3. Требования государственных стандартов на озимую рожь.
Производство сельскохозяйственной продукции будет экономически эффективным, если одновременно с его расширением повысится качество получаемой продукции. О качестве, степени зрелости и пригодности сельскохозяйственной продукции для последующего использования можно судить по признакам и показателям товарного качества. Качество товара может быть определено только при помощи норм.
Стандарт
является документом, где определены нормы, которым должен соответствовать высококачественный продукт.
Для обеспечения сохранности доброкачественного зерна и проведения расчётов установлены базисные и ограничительные кондиции. Базисными кондициями
называют нормы качества, к которым привязана цена на зерно, продаваемое (сдаваемое) государству колхозами и совхозами. На зерно, которое по качеству превышает нормы базисных кондиций, производятся надбавки к цене (бонификация), а на зерно по качеству ниже базисных кондиций – скидки с цены (рефакции).
Ограничительными или предельными кондициями
называют минимальные нормы качества зерна, устанавливаемые для обеспечения продажи государству доброкачественного зерна.
На зерно ржи действует два стандарта: ГОСТ 16990-88 «Рожь продовольственная. Требования при заготовках», ГОСТ 16991-88 «Рожь для переработки на солод в спиртовом производстве».
В действующих стандартах рожь продовольственная классифицируется на типы и подтипы, в зависимости от ботанических особенностей и района произрастания:
· 1 тип - рожь озимая северная. Делится на 5 подтипов: прикамская, поволжская, центральночернозёмная, сибирская, северо-западная;
· 2 тип - рожь южная. Делится на два подтипа: украинская и северокавказская.
· 3 тип – рожь яровая. На подтипы не делится.
Стандарт на рожь заготовляемую предусматривает деление на две группы. Первая группа
– зерно, соответствующее базисным кондициям, вторая группа
– зерно, соответствующее ограничительным кондициям.
В соответствии с базисными кондициями в зависимости от района произрастания влажность зерна
должна быть не более 14,5 %, натура
715 г/л, сорной и зерновой примесей
не должно быть более 1 %. Зараженность вредителями
не допускается. По ограничительным кондициям допускается более высокая влажность зерна ржи 19 %, содержание сорной примеси до 5 %, зерновой до 15 % и зараженность клещом.
По стандарту рожь для переработки на солод на типы не делится. На солод поставляют рожь всех типов и смесь типов. Зерно должно быть здоровым, не гревшимся, обладать энергией прорастания не менее 92 % на пятый день. Натура должна быть не менее 685 г/л, влажность не выше 15,5%. Содержание сорной и зерновой примесей не более 5 %, в том числе сорной не более 2 %. Зерно не должно иметь затхлого, солодового и плесневелого запахов.
Рожь подразделяют по числу падения на 4 класса:
| Наименование показателя |
Норма для класса |
| 1 |
2 |
3 |
4 |
| Число падения, с |
> 200 |
200-141 |
140-80 |
< 80 |
А также рожь подразделяют на две группы качества без учёта числа падения:
1. Рожь 1, 2 и 3 класса предназначена для переработки в муку;
2. Рожь 4 класса – для кормовых целей и для переработки в комбикорма.
В соответствии с ГОСТом 16990-88 требования к качеству заготовляемого и поставляемого к переработке зерна ржи остаются жесткими. Ограничительная норма для поставляемого зерна предусматривает наличие зерновой смеси сорной примеси не более 2 %, а для заготовляемого – 5 %. Поставляемое зерно может содержать испорченных зёрен не более 1 %, куколя – 0,5 %, минеральной примеси – 0,3 %, вредных примесей – 0,2 % (спорыньи – 0,05 %, горчака ползучего и вязеля разноцветного – 0,1 %). А на наличие таких примесей как гелиотроп, триходесма седая, софора лисохвостная, термопсис ланцетный (мышатник) не допускается. Даже такое незначительное содержание вредных примесей (0,2 %) снижает качество готового продукта – муки. В процессе послеуборочной обработки, особенно при наличии таких вредных примесей как спорынья, головня, зерно, поражённое нематодой, вязель разноцветный, горчак ползучий, плевел опьяняющий, гелиотроп опушённоплодный, а также трудноотделимых примесей (костёр ржаной, марьянник полевой, редька дикая, рожки спорыньи) потеря ржи с отходами неизбежна. А чтобы повысить натуру зерна и хлебопекарные качества муки, некоторые потери даже целесообразны, особенно мелкой фракции ржи. Отходы в последующем можно использовать на фураж, но в зависимости от наличия и названия примесей желательно подвергнуть их ещё дополнительной обработке, чтобы не вредить животным.
4. Общие вопросы технологии послеуборочной обработки.
Различают две основные технологии послеуборочной обработки зерна и семян: 1. Поточная технология.
2. Цеховая технология.
Поточная технология
подразумевает, что зерно, поступившее на ток претерпевает ряд последовательных операций обработки. При этом обработка идёт в потоке, поэтому общая производительность должна быть примерна одинакова по каждой операции.
Цеховая технология
предусматривает сплошную обработку зерна и семян, то есть все операцию протекают одновременно.
Применяем поточную технологию
для курсовой работы.
Рассмотрим каждую конкретную операцию поточной технологии послеуборочной обработки зерна и семян озимой ржи в Московской области.
1. Предварительная очистка.
Предварительная очистка
зерна является вспомогательной операцией, цель которой – увеличить сыпучесть зерновой массы и выделить из неё тяжёлые и мелкие фракции примесей. Предварительная очистка снижает количество сорной примеси примерно на 50% и снижает влажность зернового вороха, что приводит к увеличению сохранности зерна до выполнения последующих операций обработки.
Требования к операции.
Предварительной очистке подвергается продовольственное зерно после уборки. Желательно, чтобы разрыва между операциями не было. Например, при влажности 25% и температуре 25°С зерновой ворох должен пройти предварительную очистку не позднее чем через сутки. С увеличением влажности и температуры допустимый срок временного хранения сокращается. Зерновой ворох при проведении предварительной очистки необходимо разделить на две фракции: сорные примеси, составляющие 50% всех посторонних примесей, и обработанное зерно с оставшимися мелкими трудноотделимыми примесями, масса которых не должна превышать 0,2% общей массы переработанного материала. Не допускается наличие примесей длиной более 50 мм, а всех посторонних включений должно быть не более 5%. Поступление полноценного зерна в отходы не должно превышать 0,05% общей массы зерна основной культуры.
Оборудование, применяемое для предварительной очистки зернового вороха.
Для предварительной очистки используются самопередвижные и стационарные ворохоочистители. К самопередвижным относятся такие ворохоочистители, как ОВП-20 и ОВС-25. К стационарным ворохоочистителям относят МПО-50, ЗД-10.
Выберем для нашего случая самопередвижной ворохоочиститель ОВС-25.
Очиститель ОВС-25 относится к машинам воздушно-решетного типа.
Машина состоит из следующих рабочих органов
: загрузочного транспортера, приемной камеры с воздушной частью, двух решетных станов, отгрузочного транспортера, механизмов привода и самопередвижения, автоматического устройства загрузки машины.
Технологический процесс
: при следовании машины вдоль бурта скребковый транспортер забирает зерновой ворох и транспортирует его к распределительному шнеку приемной камеры. На выходе из камеры ворох делится делителем на две равные части, которые входят в воздушные каналы. В каналах воздушный поток отделяет от зерна легкие примеси и уносит их из машины пневмотранспортом. Примеси несколько тяжелее осаждаются в отстойной камере. Затем, обе части зерна, очищенные от легких примесей, по отдельным каналам направляются на верхний и нижний решетные станы. Процесс очистки зерна на этих станах идет равноценно и сводится к следующему.
Зерно, освобожденное от легких примесей, попадает на решето, где разделяется примерно пополам. Мелкие примеси, и мелкое зерно проходят через отверстия этого решета, а оставшаяся часть зерна и крупные примеси попадают на второе решето. Зерно, прошедшее через решето, поступает на следующее решето, а затем на нижнее решето.
Сквозь отверстия верхних решет проходят тяжелые мелкие примеси, семена сорняков, дробленое и щуплое зерно.
Зерно, прошедшее через отверстия верхнего решета, попадает на скатную доску и по ней скатывается в приемник, где находится зерно, сошедшее с нижнего решета. Очищенное зерно из этого приемника, поступает на отгрузочный транспортер, а затем в кузов транспортного средства. Отходы, отделенные от зерна решетами, а также примеси из отстойной камеры, поступают в шнек фуражных отходов.
2. Первичная очистка.
Первичная очистка - это одна из основных операций послеуборочной обработки семян, цель которой является – довести зерно по чистоте до требований стандарта.
Требования к операции.
Зерновой ворох, поступающий на первичную очистку, должен иметь влажность не выше 18%, а посторонних примесей не более 5%. После прохождения через машины первичной очистки зерновой ворох разделяется на три фракции: очищенное зерно, фуражные отходы и примеси. При этом допускается наличие полноценных зёрен в фуражных отходах не более 1,5%, а в примесях – 0,05% массы полноценного зерна. Очищенное зерно должно отвечать требованиям базисных кондиций на продовольственное зерно, кроме тех случаев, когда необходима доочистка на специальных машинах из-за наличия трудноотделимых примесей.
Оборудование, применяемое для первичной очистки зернового вороха.
Наиболее распространёнными машинами для первичной очистки зернового вороха являются зерноочистительные машины ЗВС-20, ЗВС-20А, ОЗС-50 и др.
Выберем для нашей технологии зерноочистительную машину ЗВС-20А.
Очистка зернового вороха в этой машине осуществляется воздушным потоком и решётами. Машина выделяет из зернового материала мелкие и сорные примеси.
Основные рабочие органы
: воздушная часть с приёмной камерой, осадочной камерой и вентилятором; решётная часть с механизмом очистки решёт, сварная рама и приводные механизмы, передающие движение рабочим органам.
Технологический процесс:
зерновой материал, подлежащий очистке, поступает в приёмную часть питающего устройства, оттуда шнеком распределяется по ширине воздушной камеры, где из общей массы выделяются лёгкие примеси. Щуплые зёрна основной культуры, которые поднимаются воздушным потоком и осаждаются в отстойной камере, через приёмник лёгких примесей выводятся наружу. После воздушной очистки зерновой материал, распределённый на две равные части, поступает на верхний и нижний решётные станы, которые работают параллельно. Все фракции, кроме подсева, лотками выводятся в приёмники семян, размещённые сзади каждого стана. Подсев выводится специальными течками в сторону.
3. Вторичная очистка зернового вороха.
Вторичная очистка или сортировкаприменяется после проведения первичной очистки при подготовке семенного материала, или в случае необходимости выделения трудноотделимых примесей из партии продовольственного зерна. Сортировка отличается от всех видов очистки тем, что при ее проведении из зерновой массы помимо примесей выделяется зерно II сорта, неполноценное в семенном отношении.
Требования к операции.
К операции предъявляются следующие требования: количество полноценных семян, попадающих во все виды отходов не должно превышать 1%, в зерно II сорта и при триеровании - не более 3% в каждом случае. Общее дробление семян допускается в пределах 1%. Влажность и содержание сорной примеси в зерне, поступающем на обработку, должны быть менее 18% и 3% соответственно
Оборудование, применяемое для вторичной очистки зернового вороха.
Для проведения этой операции используются воздушно-решетные машины типа СВУ
с паспортной производительностью 5 т/ч, триерные блоки, пневмосортировальные столы,горки и т.п.
4. Сушка.
Сушка зерна – наиболее ответственный этап послеуборочной обработки. Нарушения процесса сушки могут привести к потерям семенных, технологических и семенных свойств. Сушка зернового материала – наиболее затратная операция.
Требования к операции.
Сушку в специальных сушилках проводят в том случае, если материал не был доведён до кондиционной влажности вентилированием при временном хранении (если оно имело место). Предельную температуру теплоносителя при сушке выбирают в зависимости от начальной влажности зерна, вида культуры, целевого назначения. Зерно влажностью до 20% включительно сушат за один пропуск через сушилку. При влажности выше 20% необходимы два пропуска и более. Для семян высокой влажности необходимо применять ступенчатые режимы сушки. В первые пропуски семян температуру теплоносителя понижают. По мере уменьшения влажности семян и повышения их устойчивости к нагреву температуру теплоносителя увеличивают. Более выгодно подавать на сушку зерно одинаковой первоначальной влажности, предварительно подготовленное в бункерах активного вентилирования. В различных видах сушилок за один пропуск должен происходить съём влаги в размере 5-10%.
Сушку зерна проводят круглосуточно, а если возникает необходимость перерыва, то после выключения топочного устройства зерно вентилируют до его охлаждения. Полное использование технических возможностей машин предусматривает поддержание стабильной температуры теплоносителя и семян на предельно возможных значениях в данных условиях и максимальном расходе теплоносителя (но без нарушений качественных показателей); непрерывную работу контрольно-измерительной аппаратуры, обеспечивающей автоматизацию процесса сушки; полное сгорание топлива, достигаемое правильной регулировкой системы питания и подачи воздуха.
Травмирование зерна механизмами машин при сушке не должно превышать 0,25%.
Оборудование, применяемое для сушки зерна и семян.
На европейской части России наиболее распространены камерные, шахтные и барабанные сушилки. Используются и рециркуляционные сушилки.
Рассмотрим основные особенности зерносушилок.
Шахтные сушилки
состоят из двух шахт, которые имеют равную вместимость и вертикальную норию. Обычно их монтируют на постоянном фундаменте. Принцип действия: зерно под действием собственного веса проходит через сушилку. Подача горячего воздуха осуществляется снизу вверх. После сушки зерно подаётся в специальные охлаждающие камеры. Шахтные сушилки рассчитаны на партии в 8 и 16 тонн зерна. Для продовольственного и семенного зерна режимы сушки различны. Так при сушке продовольственного зерна за один цикл удаляется 5-6% влаги и производительность составляет 8-16 тонн/час, в то время как у семенного зерна удаляется 3-4% влаги при производительности 4-8 тонн/час. Для сушки зерна в шахтных сушилках необходима предварительная очистка от соломы и шелухи для предотвращения возгорания.
Барабанные сушилки
по производительности и удалению влаги за один цикл (5-6% продовольственное зерно и 3-4% семенное) не уступают шахтным. Основные конструктивные элементы сушилки: топка, барабан, камера охлаждения. Ось барабана оснащена металлическими пластинами. Они заставляют зерно двигаться по горизонтальной спирали. Барабанные сушилки отличаются компактностью. Благодаря этому они легко транспортируются. Но, не смотря на это, чаще всего они применяются в качестве стационарных.
Камерные сушилки
занимают значительную площадь. Подача зерна осуществляется механическим способом. У сушилок данного типа имеется воздуховод. Они состоят из двух камер с перфорированным полом. Зерно насыпается слоем, не превышающим 80 см. В противном случае зерно может плохо просушиться. Процесс сушки заключается в продувании зерна воздухом, который может быть немного подогрет. В сушилку загружается первый слой, затем после его высыхания второй. И так далее. До полного заполнения силоса зерном. Для наполнения силоса зерном и удаления слоя равной толщины существует специальное оборудование. Для равномерного удаления влаги в сушилке имеются встроенные шнеки для перемешивания зерна в процессе сушки. Влага удаляется за одну загрузку до сухого состояния зерна.
Итак, выберем для нашей культуры шахтную сушилку СЗШ-16.
Основные рабочие органы:
сушилка СЗШ 16 состоит из топки, работающей на жидком топливе, двух параллельно расположенных сушильных шахт с выпускными устройствами (коробами), двух выносных охладительных колонок, вентиляторов, воздуховодов, диффузоров, норий и зернопроводов.
Технологический процесс:
СЗШ-16 имеет две шахты, расположенные на общей станине на расстоянии 1 м. Каждая шахта состоит из двух секций, в которых установлены четырёхгранные короба. Агент сушки попадает из топки в пространство между шахтами, являющееся диффузором. Охлаждение зерна производится в отдельно поставленных охладительных колонках. В зависимости от начальной влажности и назначения партии шахты включаются в технологическую схему последовательно или параллельно. При параллельной работе исходная зерновая масса загружается в обе шахты, а при последовательной – в одну. Подсушенное зерно в одной шахте поступает в охладительную колонку, а из неё в другую шахту. Сушилка имеет топку металлической конструкции. Конструкция выпускного аппарата обеспечивает непрерывный выпуск зерна малыми порциями и периодически большими. Для контроля за уровнем зерна в шахте установлены сигнализаторы. Выпуск зерна осуществляется непрерывно. В начале работы сушилки выходит недосушенное зерно, которое вторично подаётся в шахту.

Рис.2 Схемы сушилки СЗШ - 16:
а - со стороны вентилятора; б - со стороны топки; 1 - топочный блок; 2,13 - патрубки; 3,4 - диффузоры; 5 - сушильный бункер; 6,7 - нории; 8 - влагомер; 9 - охладительная колонка; 10 - течки; 11 - станина охладительных колонок; 12 - бункер; 14 - пол; 15 - обшивка; 16 - лестница; 17 - выхлопная труба; 18 - камеры сушилки; 19 - переходник; 20 - вентилятор; 21 - станина корпуса сушилки.
5. Активное вентилирование.
В период массового поступления зерна на ток вслед за предварительной очисткой зерновой ворох обычно приходится временно хранить в отведённых для этого местах, так как пропускная способность сушильных установок меньше, чем очистительных машин. Для лучшей сохранности
влажного зерна, а также его подсушивания применяют активное вентилирование холодным или подогретым воздухом. Активное вентилирование позволяет сократить время сушки по сравнению с естественной сушкой в буртах и повысить качество зерна и семян, избежать дополнительного травмирования их при механическом проветривании.
Активное вентилирование – это процесс принудительного продувания неподвижной зерновой массы подогретым или охлаждённым воздухом.
Требования к операции.
Главное требование при временном хранении зерна и семян – сохранение (или даже улучшение) их товарных и посевных качеств. Это требование может быть соблюдено если исходная влажность зернового вороха не превышает 24%. При более высокой влажности зерновой материал направляют на сушильные установки или пересыпают один раз в двое суток. При использовании тепловентиляционного оборудования разница между температурой зерна и воздуха не должна превышать 10°С. Не допускается при этом повторное использование подогретого воздуха. Травмирование зерна при прохождении через оборудование не более 0,2%. При хранении зерна необходимо ежедневно замерять температуру зерна в основных точках ёмкости и при нё повышении принимать меры по охлаждению материала. Круглосуточно можно вентилировать семена, имеющие влажность свыше 21% при относительной влажности воздуха не выше 95%. При более высокой влажности воздуха необходимо периодическое вентилирование в течение 1-1,5 ч (интервал 4-6 ч). Если семенной материал не прошёл периода послеуборочного дозревания, его не следует охлаждать ниже 3-5°С, во избежание снижения посевных качеств. Вентилирование эффективно тогда, когда разница между температурой зерна и воздуха не менее 7°С. Активное вентилирование рекомендуется проводить только тогда, когда при этом не будет происходить увлажнение зерна. Для охлаждения 1 тонны зернового материала до температуры наружного воздуха рекомендуемый объём воздуха составляет 2000 м3
. При активном вентилировании зерна должна соблюдаться равномерность подачи воздуха, то есть зерно рекомендуется выравнивать на установке.
Оборудование, применяемое для активного вентилирования зерна и семян.
На сегодняшний день широкое распространение получили следующие виды установок активного вентилирования: стационарные (СВУ-1, СВУ-2, СВУ-3, СВУ-63), напольно-переносные (со сплошным щитовым настилом, двухрядные, с распределительными коробами), телескопические (ТВУ-2), трубные вертикальные (ПВУ-1), бункера активного вентилирования (К-878, БВ-25, БВ-40), и аэрожелоба.
Рассмотрим более подробно бункер активного вентилирования БВ-25.
Основные рабочие органы:
вертикальный цилиндр диаметром 3080 мм с конусообразным дном, цилиндрический воздухораспределитель, конусный распределитель зерна для равномерной загрузки зерном, воздухораспределительная труба имеет подвижный поршень, подвешенный на трос с лебедкой, уровень зерна в бункере фиксируется грузиками и флажком, воздух подогревается в электрокалорифере, установленном около всасывающего отверстия вентилятора, подающего воздух в бункер. Для регулирования выпуска зерна в нижней части бункера устроено регулировочное кольцо с изменяющейся шириной кольцевой щели. Бункер оборудован двумя пробоотборниками, измерительным преобразователем уровня зерна и тремя регуляторами влажности ВДК.
5. Расчётная часть
Таблица 1.
Исходные данные
| Культура |
Озимая рожь |
| Область возделывания |
Московская область |
| Площадь возделывания, га |
600 |
| Урожайность, т/га |
2 |
| Уборочная влажность, % |
26 |
| Сроки уборки, дн |
8 |
| Сорная примесь, % |
6 |
| Зерновая примесь, % |
16 |
Расчёт зерна продовольственного назначения.
1. Произведём расчёт необходимого количества комбайнов, считая, что производительность одного комбайна составляет 10 га/смена.
Расчёт проведём по формуле:
Где K– количество комбайнов, шт;
S– площадь возделывания культуры, га;
8 – срок уборки, дн;
Пр
– производительность одного комбайна, га/смена.
Для уборки посевов 600 га озимой ржи нам понадобится 8 комбайнов «Дон-1500».
2.
Выполним расчёт количества зерна, поступающего на ток каждый день по формуле:
Где K – количество комбайнов, шт;
ПР
– производительность одного комбайна, га/смена;
У – урожайность культуры, т/га
3. Предварительная очистка.
3.1. Определим эксплуатационную производительность зерноочистительной машины ОВС-25. Расчёт произведём по формуле:
Где KЭ
– коэффициент эквивалентности, учитывающий особенности культуры, для ржи KЭ
= 0,9;
K1
– коэффициент, учитывающий исходную влажность зерна, K1
= 0,7;
K2
– коэффициент, учитывающий исходную засорённость зерна,
K2
= 0,86;
ПП
– паспортная производительность машины, т/час. Паспортная производительность ОВС-25: ПП
= 25т/ч.
Для ускорения процесса возьмём два ворохоочистителя ОВС-25, тогда ПЭ
составит приблизительно 27 т/час.
3.2 Определим время работы двух ворохоочистителей ОВС-25, используя формулу:
3.3 Расчёт убыли массы зерна после предварительной очистки.
По формуле:
Где УП
– искомый процент убыли массы зерна после проведения предварительной очистки;
С – количество сорной примеси, %;
0,05 – допустимое количество полноценных зёрен в отходе, %.
Теперь по пропорции:
определим массу убыли зерна, она равна 4,88 т.
Таким образом, после проведения предварительной очистки мы имеем 160 т – 4,88 т = 155,12 т.
4. Сушка.
4.1 Расчёт фактической массы партии в перерасчёте на плановую единицу сушки.
Массу просушенного зерна в плановых тоннах для всех типов сушилок рассчитывают по формуле
Где МПЛ
– масса просушенного зерна в плановых тоннах;
МФ
– физическая масса сырого зерна, поступившего на сушилку, т;
КВ
, КК
– коэффициенты перерасчёта массы зерна в плановые единицы соответственно в зависимости от влажности зерна до и после сушки и культуры.
4.2 Расчёт времени работы шахтной зерносушилки СЗШ-16
По формуле
Таким образом, надобность бункеров активного вентилирования отпадает, так как сушилка будет успевать обрабатывать зерновой материал менее чем за сутки, значит, нам не нужно временно хранить зерно.
4.3 Расчёт массы зерна после сушки.
Расчёт проведём по формуле:
Где М2
– искомая масса зерна после сушки;
М1
– масса зерна до сушки, т;
W1
и W2
– соответственно влажность зерна до и после сушки, %.
То есть при сушке теряется 155,12 – 135 = 20,12 т. Значит, на первичную очистку пойдёт 135 т зерна.
5. Первичная очистка.
5.1 Расчёт эксплуатационной производительности машины первичной очистки ЗВС-20А.
Расчёт проведём по той же формуле, какой пользовались в пункте 3.1.
5.2 Время работы ЗВС-20А
5.3 Убыль массы
Сорная примесь 1%;
Зерновая примесь 8%;
В отход 1,5%;
Итого 10,5%
По пропорции
найдем массу убыли зерна при первичной очистке, она составляет 14,2 т. Таким образом, после первичной очистки мы имеем 135т – 14,2 = 120,8 т.
В результате проведения первичной очистки получено
продовольственного зерна,
в отход пошло (160т – 120,8т) · 8 = 313,6 т.
.
6. Вторичная очистка (машина СВУ – 5).
6.1 Убыль массы
Сорная примесь 2%;
Зерновая примесь 8%;
Отход при дроблении 1%;
Отход при триеровании 3%;
Отход семян второй категории 10%;
Итого 24 %.
На вторичную очистку в первый день послеуборочных работ поступит 120,8 т, рассчитаем убыль массы по пропорции: ,
она составит 29 т. Таким образом, после проведения вторичной очистки мы имеем 120,8 – 29 = 91,8 т.
Расчёт зерна семенного назначения
Таблица 2.
Данные для расчёта
| Культура |
Озимая рожь |
| Область возделывания |
Московская область |
| Площадь возделывания, га |
600 |
| Норма высева семян, млн/га |
6 |
| Масса 1000 зерен, г |
30 |
| Влажность зерна, % |
14 |
| Страховой фонд, % |
15 |
| Натура продовольственных семян, г/л, масса, т |
650 (842,2 т) |
| Натура семенного материала, г/л, масса, т |
700 (124,2 т) |
| НСВУ-5
, г/л, масса отходов, т |
600 (16,95 т) |
| НСВУ-5,
II
сорт,
г/л, масса отходов, т |
550 (12,05 т) |
| НЗВС-20А,
г/л, масса отходов, т |
500 (14,2 т) |
| НОВС-25,
г/л, масса отходов, т |
300 (4,88 т) |
1.
Расчёт массы семян, необходимых для посева на 1 га.
По пропорции:
находим эту массу, и она составляет 180000 г = 180 кг.
2.
Вычислим массу семян, необходимых для посева 600 га:
3.
Найдём необходимое количество семян для посева на площади 600 га с учётом страхового фонда:
Оно составляет 124,2 т.
Вывод:
Итак, в результате послеуборочной обработки, мы получили 966,4 – 124,2 = 842,2 т продовольственных семян и 124,2 т семенного материала.
91,8 т. семенного материала будет получено по результатам первого дня послеуборочной обработки и 124,2 – 91,8 = 32,4 т – по результатам второго (после вторичной очистки). То есть, всё зерно, полученное в первый день, пойдёт на семена и 32,4 т зерна пойдут на семена во второй день. В последующие дни послеуборочной обработки вторичная очистка проводиться не будет.
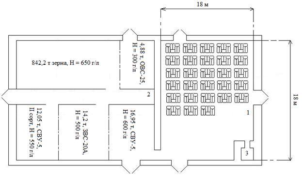
Для хранения зерна будем использовать зерносклад. Семенное и продовольственное зерно будем хранить раздельно. Семенное зерно хранится в мешках, а продовольственное – в насыпи.
Рассчитаем количество мешков для зерна семенного назначения. Масса одного мешка составляет 50 кг (0,05т), а размеры 90х45 см. Значит, в хранилище будет уложено 124,2 т / 0,05 т = 2484 мешка с семенным материалом.
Высота насыпи для зерна озимой ржи влажностью 14% составляет 3 м, а высота штабеля 10 мешков.
В настоящее время специализированные и универсальные хранилища сроят по типовым проектам различной ёмкости (500, 1000, 1500, 2000т и др.).
В подавляющем большинстве случаев все хранилища – секционные. Как правило, ёмкость одной секции составляет 500т в пересчёте на пшеницу, а размеры 18х18 м. Секция ёмкостью 500 т обычно подразделяется на 6 подсекций размерами 6х6 м и центральным проходом с такими же параметрами. Мешки будем укладывать тройником (рис. 2).
Для нас подходит универсальное зернохранилище с горизонтальными полами ёмкостью 1500 т.

Рис.2 Схема расположения мешков тройником.

Рис. 3 Схема размещения зерна в хранилище
1 – секция хранения семенного материала; 2 – секции хранения продовольственного зерна и отходов; 3 – помещение для хранения тары.
Мешки укладываются штабелями тройником, длина штабеля 2,7 м, ширина 1,35 м. Расстояние между штабелями 0,7 м, расстояние от штабеля до стен составляет 0,9 м и 0,5 м.
6. Требования к зернохранилищам и типы зернохранилищ.
Требования, предъявляемые к зерноскладам.
Необходимые качества зерна при длительном хранении могут быть обеспечены только в правильно устроенных зерноскладах, требования к которым вытекают из свойств зерна.
Зерносклады любого типа обычно строят неотапливаемыми, без чердачных перекрытий. В них максимально должны быть устранены причины, вызывающие болезни зерна: они должны быть сухими, чистыми, хорошо вентилироваться, недоступными для грызунов, птиц, насекомых и других вредителей зерна и тщательно защищены от проникания в них атмосферных осадков, поверхностной и грунтовой влаги.
Внутренняя планировка зерноскладов, конструкция, форма и размеры емкостей для хранения зерна (закромов, бункеров, отсеков или силосов), их размещение в хранилищах должны обеспечивать свободный подход к зерну для наблюдения за его состоянием и возможность внутрискладской обработки зерна во время, хранения. В зерноскладах должны быть возможны очистка, осмотр и дезинсекция отдельных частей здания, внутреннего, оборудования и здания в целом. Внутренняя поверхность стен зерноскладов должна быть без щелей, трещин, в которых могли бы гнездиться амбарные вредители.
Технологические процессы, связанные с эксплуатацией зерноскладов (загрузка, выгрузка, обработка, перемещение зерна и др.), должны быть полностью механизированы с применением как стационарных, так и передвижных механизмов и с максимальным использованием принципа самотека зерна.
Необходимо, чтобы полезный объем зерносклада максимально использовался для загрузки зерном и стоимость здания на 1 т хранимого зерна была бы наименьшей.
Виды зерноскладов.
В зависимости от способов хранения зерна зерносклады подразделяются на следующие типы:
закромные
, где зерно хранят в отдельных емкостях — закромах (отсеках);
напольные
, где зерно хранят насыпью на горизонтальном или наклонном полу, а семенное зерно — в таре на горизонтальном полу;
комбинированные
, в которых зерно хранится насыпью на полу и в отдельных емкостях — бункерах или закромах;
бункерные
, в которых зерно хранится в отдельных бункерах.
Типовые проекты зерноскладов разрабатывают на различную вместимость. Зерносклады, строящиеся в хозяйствах, просты по своей конструкции, для их строительства широко используют местные материалы.
На хлебоприемных пунктах, где сосредоточивается большое количество зерна, и на предприятиях, связанных с переработкой зерна (мельницы, комбикормовые заводы и др.), строят зерновые склады большой вместимости, которые решаются в сборных конструкциях.
Способы хранения и высота насыпи зерна в складах
. Зерно большей частью хранят насыпью. В таре (мешках) хранят лишь некоторые партии зерна семенного назначения, а также семена с хрупкой структурой оболочек.
Чтобы рациональнее использовать зерносклады и удешевить хранение зерна, необходимо наиболее полно использовать его вместимость, максимально увеличивая высоту насыпи. Предельно допустимая высота насыпи зерна в складах определяется состоянием зерна, его целевым назначением, техническим состоянием и видом склада, а также предполагаемым сроком хранения и временем года.
Продовольственное и фуражное зерно, сухое пли средней сухости, прошедшее стадию послеуборочного дозревания и хорошо очищенное от примесей, можно хранить в напольных и закромных зерноскладах слоем до 5 м, а в напольных зерноскладах с наклонными полами, оборудованных механизмами, обеспечивающими механизированную загрузку, разгрузку и обработку зерна, — слоем до 10 м.
Сухое семенное зерно влажностью не выше 14% в целях сохранения всхожести семян и энергии их прорастания хранят россыпью на полу либо в бункерах и закромах насыпью высотой 2...3 м, либо в таре (мешках) штабелями высотой в 6—8 рядов, причем меньшую высоту насыпи или штабеля при всех прочих равных условиях назначают для семян масличных культур, а также для проса, риса, гороха и кукурузы, как уже указывалось, менее устойчивых при хранении, чем пшеница и рожь. Если зерносклад оборудован активной вентиляцией, высоту насыпи семенного зерна увеличивают до 5 м. В складах бункерного или силосного типа, оснащенных комплексной механизацией, допускается наибольшая высота насыпи для семян пшеницы, ржи, ячменя, овса и гречихи с влажностью на 1,5... 2% ниже критической — 30 м, а для семян риса, проса и гороха— 15 м.
Зерно влажностью более 16...17%, не прошедшее послеуборочное дозревание и, следовательно, имеющее пониженную стойкость, в зависимости от времени года и температуры зерна можно хранить насыпью небольшой высоты — 1...1,5 м.
На высоту насыпи влияет также предполагаемый срок хранения зерна. Если зерно закладывают для кратковременного хранения, то высоту насыпи можно увеличить. При длительном хранении следует назначать меньшую высоту насыпи. Высоту насыпи зерна можно изменять также в зависимости от времени года, увеличивая ее на холодный период и снижая с наступлением теплой погоды.
Механическое оборудование зерноскладов.
Для механизации загрузки, разгрузки, перемещения и подработки зерна в зерноскладах применяют следующие стационарные и передвижные механизмы:
· ленточные нории (называемые также элеваторами или самотасками) для вертикального подъема зерна;
· ленточные стационарные конвейеры для перемещения зерна в горизонтальном направлении или под углом;
· передвижные конвейеры для погрузочно-выгрузочных операций преимущественно при напольном хранении зерна;
· самоподаватели для загрузки конвейеров при напольной насыпи зерна;
· винтовые конвейеры, или шнеки для транспортирования зерна на близкие расстояния;
· самотечные зернопроводы для перемещения зерна сверху вниз под действием силы тяжести;
· зерноочистительные машины и сепараторы, предназначенные для очистки зерна от органических и неорганических посторонних примесей.
Закромные и напольные зерносклады.
Закромные зерносклады наиболее удобны для раздельного хранения относительно небольших партий зерна различного качества и назначения. Эти хранилища в первую очередь пригодны для сортового и семенного зерна, которое должно храниться невысоким слоем по сортам и категориям в условиях, исключающих возможность смешивания рядом лежащего зерна.
Закромные и напольные зерносклады строят преимущественно в виде прямоугольных в плане зданий.
Для образования закромов склад внутри разгораживают перегородками из чистых досок на отделения, которые и являются простейшими закромами. Все закрома устраивают одинаковой вместимости, так как это позволяет унифицировать размеры элементов и деталей для их изготовления. В случае необходимости вместимость каждого закрома может быть уменьшена или увеличена путем установки дополнительных перегородок или снятием их.
Вместимость отдельных закромов для хранения семенного зерна принимают не более 25 т при предельно допустимой высоте загрузки зерна в них 3 м. Вместимость закромов для хранения продовольственного и фуражного зерна не ограничивается.
Закрома располагают группами в 2...4 ряда с образованием между ними продольных проходов, предназначенных для загрузки и разгрузки зерна, а также поперечных проходов с непосредственными выходами наружу. Ширину продольных проходов принимают в зависимости от габаритов механизмов, предназначенных для перемещения и обработки зерна, но не менее 2 м. Ширина поперечных проходов —1,5 м и расстояния между ними не более 18 м.
В зерноскладах для продовольственного и фуражного зерна крайние продольные ряды закромов размещают у наружных стен, которые могут служить и стенами закромов. В хранилищах для семенного зерна закрома располагают на расстоянии от наружных стен, равном не менее 500 мм, чтобы предохранить семенное зерно от увлажнения конденсатом.
Для хранения определенного количества семенного затаренного зерна в зерноскладах предусматривают площадки, на которых зерно хранят в мешках штабелями высотой по 6...8 рядов; ширина проходов между штабелями: основных (разгрузочных) продольных 2 м, поперечных 1,5 м и вспомогательных (для осмотра) 0,7 м.
В необходимых случаях в зависимости от местных условий, режима и срока хранения зерна, климатических условий района строительства и применяемых средств механизации к зерноскладам для семенного зерна пристраивают навесы для воздушной сушки и проветривания зерна или открытые площадки для воздушно-солнечной сушки и теплового обогрева семян. Предусматривают также изолированное помещение для хранения тары и инвентаря.
В напольных складах зерно засыпают на пол. Высота насыпи зависит от состояния зерна и обычно не превышает у стен 2,5 м, а посередине склада 5 м. Разработаны типовые проекты зерноскладов из местных материалов с увеличенной высотой насыпи — у стен 4,5 м, а посередине 7 м. Расстояние от верха насыпи зерна до низа несущих конструкций покрытия принимают равным 500 мм, угол наклона насыпи зерна — 25°, а угол наклона крыши — 26°30'.
Если требуется раздельное хранение небольших партий зерна разных культур и видов, площадь склада перегораживают передвижными щитами высотой 2,5 м на закрома — отсеки любой вместимости.
Закромные и напольные склады рассчитываются на эксплуатацию их с применением передвижных машин (передвижных транспортеров, самоподавателей и т. п.) или средств стационарной механизации. В первом случае принимают и отпускают зерно через распашные ворота, которые устраивают по продольным сторонам склада через каждые 18 м. В складах, где загружают и выгружают зерно при помощи стационарных механизмов, предусматривают двое ворот в разных концах склада.
Все ограждения зерносклада — стены, покрытия, а также и полы—должны быть выполнены очень тщательно, чтобы в здание не проникали атмосферные осадки, почвенная и поверхностная влага.
Стены зерноскладов
предпочтительно делать каменными массивными, так как в таких зданиях легче предохранить зерно от заражения вредителями.
Наружные каменные стены напольных и закромных зерновых складов, если они одновременно служат стенами закромов и воспринимают горизонтальное давление зерна, делают ступенчатой конструкции с увеличением толщины книзу и с усилением контрфорсами. При этом предусматривается надежная связь между конструкциями крыши (мауэрлат, стропильные ноги) и стенами в результате установки металлических анкеров и хомутов.
Кирпичные стены ступенчатой конструкции с контрфорсами делают на растворе марки 10 в верхней части толщиной в 1 кирпич (250 мм), в средней части — в полтора кирпича - (380 мм), в нижней, где горизонтальное давление зерна больше, в 2 кирпича (520 мм). С внутренней стороны швы кирпичных стен расшивают, а затем стены белят известью. Контрфорсы выкладывают одновременно со стенами из того же материала, что и стены. Стены зерноскладов могут быть выполнены также из других каменных материалов — шлакобетонных и бетонных камней марки М 50, ракушечника марки 25, бутового камня марки 200. Стены из шлакобетонных камней и ракушечника оштукатуривают с двух сторон известковым раствором и белят известью.
Стены закромов делают каркасной сборно-разборной конструкции из досок толщиной 40... 50 мм. Соединяют их треугольным шпунтом и забирают в пазы стоек или в пазы, образованные брусками 50x50 мм, прибитыми к стойкам. Чтобы зерно не протекало из одного закрома в другой, доски необходимо плотно пригонять.
Для большей герметичности закрома целесообразнее крепить доски стенок к стойкам прижимными рейками и болтами.
Внутренний каркас зерноскладов состоит из двух рядов стоек, связанных в продольном направлении подстропильными прогонами или схватками из двух пластин, врубаемых в стойки с двух сторон. Стойки связаны с наслонными стропилами горизонтальными ригелями. Такие связи обеспечивают жесткость деревянного каркаса и устойчивость стоек, которые используют для крепления к ним стенок закромов и помимо вертикальных нагрузок воспринимают также горизонтальное давление зерна.
В складах для напольного хранения зерна расстояния между стойками внутреннего каркаса в продольном направлении принимают равными 6,2 м, что позволяет использовать для прогонов стандартный лес длиной 6,5 м. В поперечном направлении склад делится на три пролета: два крайних по 4,5 м и средний 11 м. При таком членении пролетов в складе обеспечивается возможность маневренности для передвижных средств механизации и устройства рациональной системы стропил.
Полы в зерноскладах
должны иметь низкую теплопроводность, исключающую возможность образования на их поверхности конденсата, и должны быть защищены от проникания через них в зерновую массу грунтовой капиллярной влаги. Кроме того, полы в зерноскладах должны допускать возможность передвижения по ним применяемых передвижных механизмов, служащих для перемещения и обработки зерна, и удобства подбора зерна с их поверхности. Наиболее полно этим требованиям отвечают асфальтобетонные полы без применения дегтей и дегтевых мастик.
При глубоком уровне стояния грунтовых вод и достаточно плотных грунтах можно устраивать наклонный пол либо по всей площади зерносклада, либо только в его средней части. Тогда обеспечивается полный или частичный самотек зерна в тоннель на конвейер, которым зерно выгружается из склада.
Если зерно хранят в таре, под штабелями укладывают сплошные дощатые щиты. Полы в навесах для воздушной сушки и проветривания зерна, а также на открытых площадках для воздушно-солнечной сушки и теплового обогрева семян устраивают асфальтовые или грунтобетонные.
С особой тщательностью в зерноскладах должна быть выполнена кровля, поскольку сохранность зерна зависит от ее водонепроницаемости и непродуваемости. Чтобы избежать задувания снега и пыли, кровли из асбестоцементных волнистых листов среднего и обыкновенного профиля делают по сплошному дощатому настилу с прокладкой слоя рулонного кровельного материала, уложенного насухо с проклейкой стыков мастикой.
Для защиты стен зерносклада от увлажнения атмосферными осадками кровли должны иметь свесы не менее 700 мм. Под свесом крыши независимо от материала кровли устраивают плотно примыкающий к ней и к стенам карниз для защиты хранилища от птиц.
Зерносклады рекомендуется проектировать без окон. Естественное освещение во время работы в складах обеспечивается через открытые ворота. В случае необходимости устройства в зерноскладах оконных проемов их заполняют пустотелыми стеклоблоками или армированным стеклом. При обычном остеклении оконные проемы изнутри защищают мелкоячеистой проволочной сеткой или делают ставни, чтобы битое стекло не попало в зерно. Окна размещают во фронтонах и частично в верхней части продольных стен, свободной от зерновой насыпи.
Ворота в зерноскладах делают распашными. В зерноскладах с наклонными полами с полной выгрузкой зерна самотеком, а также в, зерноскладах, оборудованных аэрожелобами, предусматривают двое ворот, располагаемых в концах здания. Для сквозного проветривания в зерноскладах, предназначенных для хранения семян, устраивают двойные ворота. Наружные ворота, открывающиеся наружу, сплошные с одинарной обшивкой, а внутренние, открывающиеся внутрь или наружу хранилища, — сетчатые из металлической сетки с ячейками не более 12X12 мм. При проветривании наружные ворота оставляют открытыми, а сетчатые закрывают. Вместо внутренних ворот иногда устраивают деревянные съемные щиты, обшитые металлической сеткой. В зерноскладах, оборудованных системой вентиляции зерна, внутренние ворота или сетчатые щиты не обязательны. В зависимости от габаритов механизмов, предназначаемых для перемещения и внут-рискладской обработки зерна, размеры ворот принимают: шириной 1,5; 2; 2,5 и 3 м и высотой 2, 4 и 3 м.
Заключение.
Уборка озимой ржи урожайностью 20 ц/га на площади 600 га в Московской области проводилась 8 комбайнами «Дон-1500» в течение 8 дней. Был проведён комплекс технологических операций послеуборочной обработки зернового вороха. В процессе послеуборочной обработки использовались следующие машины:
· 2 зерноочистительные машины ОВС-25;
· шахтная зерносушилка СЗШ-16;
· машина первичной очистки ЗВС-20А;
· машина вторичной очистки СВУ-5.
В итоге было получено 842,2 т продовольственных семян и 124,2 т семенного материала. Зерно семенного назначения будем хранить в мешках (2484 мешка), а продовольственное – насыпью (высота насыпи 3 м). Для хранения полученного зерна подойдёт зернохранилище с горизонтальными полами ёмкостью 1500 т.
Список литературы
1. Колесниченко Г.С., Личко Н.М., Петровская В.А и др. Методические указания к курсовому проекту, М.., Изд-во РГАУ - МСХА имени К.А. Тимирязева 1990.
2. Курдина В.Н., Личко Н.М., Практикум по хранению и переработке сельскохозяйственных продуктов, М.., «Колос» 1992.
3. Курдина В.Н., Лесник Б.В., Трисвятский Л.А, Хранение и технология сельскохозяйственных продуктов, М.., «Колос» 1983.
4. Личко Н.М. Стандартизация и сертификация продукции растениеводства. М., «КолосС» 2003.
5. Баздырев Г.И., Объектов М.Г., Филатов В.И., Агробиологические основы производства, хранения и переработки продукции растениеводства, М.., «Колос» 1999.
6. Баздырев Г.И., Объектов М.Г., Филатов В.И. Практикум по агробиологическим основам производства, хранения и переработки продукции растениеводства, М.., «КолосС» 2002.
7. Личко Н.М., Мякиньков А.Г., Попов Н.А, Поморцева Т.И, Технология хранения и переработки продукции растениеводства: Рабочая тетрадь. Изд-во РГАУ - МСХА имени К.А. Тимирязева 2009.
8. http://bse.sci-lib.com
9. http://www.fadr.msu.ru/rin/crops/rye7.htm
10. http://www.apk-soft.ru
11. http://www.apt.kirov.ru
12. http://ru.all-biz.info/buy/goods/?group=1000978
13. http://belagromech.basnet.by/
14. http://www.works.tarefer.ru
15. Кожуховский И.Е., Зерноочистительные машины. М.., Машиностроение, 1974.
|