питания ЭБПП
Помещение (цех), в котором производится изготовление ЭБПП характеристики:
- Площадь помещения S = 48 м2
;
- Параметры помещения: 8 x 6 x 5 м;
- Высота помещения h = 5;
- Этаж - 3;
- Общее количество этажей здания – 4;
- Количество работающих человек – 8;
- Напряжение сети – 220/380 В;
- Частота сети – 50 Гц;
Тип сети – 4-x проводная 3-х фазная ;
Режим нейтрали – глухозаземленная.
Согласно «Инструкции проектирования зданий и помещений для ЭВМ», на одного работника приходится 6 м 2
и 20 м 3
объема от общей площади помещения.
Люди, работающие в помещении, вместе с оборудованием образуют систему Человек – Машина – Среда (ЧМС).
Элементами системы ЧМС являются:
Приведем структурную схему “Ч-М-С” на рисунке 5.1.
При производстве ЭБПП возникает негативный фактор, связанный с выделением паров из ванн с расплавленным припоем.

Рисунок 1 – Структурная схема системы ЧМС
Анализируя схему системы “Человек–Машина–Среда”, (рис. 1), делаем вывод, что на данном производстве могут наблюдаться следующие явления:
а) отравление парами вредных веществ;
б) ожоги открытых участков кожи;
в) недостаточная освещенность рабочей зоны.
Наиболее вероятный вредный физический фактор - недостаточная освещенность рабочей зоны.
Качественное освещение способствует улучшению работоспособности.
В дипломном проекте производится расчет общего искусственного освещения помещения.
Техника безопасности в цехе при изготовлении ЭБПП
На операции лужения и пайки меди применяется припой марки ПОС 61 ГОСТ 21931-76. Повышенная концентрация паров свинца является вредным для здоровья. Согласно ГОСТ 12.1.005-88 предельная допустимая концентрация (ПДК) свинца и его соединений в атмосфере рабочей зоны равна 0.01-0.005 мг/м3
. Агрегатное состояние - аэрозоль, класс опасности - I, также, свинец способен вызывать аллергические заболевания. На этой же операции применяются щелочесодержащие флюсы. Предельная концентрация их в атмосфере рабочей зоны равна 5 мг/м3
. Агрегатное состояние - аэрозоль, класс опасности - II. Данные вещества в производственных условиях оказывают преимущественно фиброзное воздействие.
При промывке ацетоном ПДК равна 200 мг/м3
.. Агрегатное состояние - пары и газы, класс опасности - IV, воздействие - аллергическое.
Для работы с припоем и флюсами предусматривается принудительная вытяжная вентиляция, расположенная в непосредственной близости от рабочего места (как правило, над ним). Для защиты от попадания капель припоя в глаза и исключения раздражения глаз парами флюса применяются специальные защитные очки в резиновой оправе, прилегающей к лицу.
Для работы с ацетоном применяется специальная защитная одежда в виде фартуков, рабочих халатов.
К этому комплексу средств защиты добавляется профилактическая работа по обеспечению безопасности труда, т.е. обучение безопасным методам труда, все виды инструктажа по технике безопасности, плакаты, а также использование индивидуальных средств защиты.
Расчет освещенности в цехе изготовления ЭБПП
Правильно спроектированное и выполненное освещение обеспечивает высокую работоспособность. Рассчитаем освещение цеха на участке пайки и монтажа. Для освещения помещения с размерами 6х8 м, высотой H=5 м использованы потолочные люминесцентные светильники типа УСЛ-35 с двумя люминесцентными лампами типа ЛБ-40. Затемнения рабочих мест нет. Категория зрительных работ 3. Контраст объекта с фоном классифицируется, как средний. Освещение искусственное. Целью расчета является определение необходимого количество и оптимального размещения осветительных приборов для обеспечения освещения рабочей зоны в соответствии с санитарными нормами, установленными СНиПII-4-79.
При расчете используем метод коэффициента использования светового потока.
Высота помещения H равна 5 м. Свес - расстояние от светильников до перекрытия - hс = 0,1 м. Высота, на которой находится расчетная поверхность, hр = 0,8 м. Коэффициент естественного освещения в расчете не учитываем, так как площадь окон меньше 25% от площади пола. Количество окон - 3.
Высота светильников над расчетной поверхностью Hр:
Hp
= H – hp - hc, (1)
Hp = 5 - 0,8 - 0,1 = 4,1 м.

Расстояние между соседними рядами люминесцентных ламп L:
, (2)
где = 1,4 – наивыгоднейшее отношение числа рядов к высоте подвеса светильников.

Расстояние от крайних рядов светильников до стены равно l:
, (3)

Число светильников определяется по формуле
, (4)
где Eн - нормируемая освещенность, Eн = 400 Лк;
Kз - коэффициент запаса, при условии чистки светильников не реже 2 раз в год, Kз = 1,5;
S - площадь помещения, S = 48 кв.м;
Z - коэффициент использования светового потока, Z = 1,2;
Ф - световой поток светильника;
nu - коэффициент, зависящий от индекса помещения и коэффициентов отражения светового потока от стен (Rc), потолка (Rп) и пола (Rp). Для данного помещения принимаем Rc=50%; Rn=70%; Rp=10%.
Индекс помещения
, (5)
где А - длина помещения, 8м;
В -ширина помещения, 6м;
Нр - высота подвеса светильников над рабочей поверхностью, 2,5м.

Из справочных данных [15] при i=1.6, nu=0,4.
Таким образом, необходимое количество светильников равно:
шт.
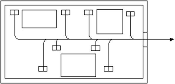
Согласно расчету - количество светильников - 10 шт. Размещение светильников в 2 ряда по 5 штук в каждом. На рисунке 2 показана схема размещения светильников.

Рисунок 2 - Схема размещения светильников
Производственная санитария и гигиена труда
Условия труда в помещении цеха в соответствии с ДНАОП 0.03-3.15 86 характеризуются IV санитарным классом производства. Цех по изготовлению ЛМ имеет следующие характеристики:
а) площадь на одного производственного рабочего составляет 6,9 м2
, что превышает минимальную норму 4,5м2
;
б) объем помещения на одного производственного рабочего 26 м3
, при установленной норме 15 м3
;
в) в цехе применяется искусственное освещение, при этом освещенность составляет не менее 400 лк, что соответствует СНиП II-4-79.
Рабочие места характеризуются следующими микроклиматическими условиями:
а) относительная влажность воздуха 40 - 60 %;
б) температура
в) интенсивность теплового излучения инструментами и оборудованием при площади восприятии телом человека не более 50 % равна 35 Вт/м2
;
г) скорость движения воздуха:
Данные условия отвечают требованиям ГОСТ 12.1.005-88 и поддерживаются системой водяного отопления по СП и ПП-33-75 и системой кондиционирования воздуха.
По эргономическим требованиям рабочие места соответствуют
ГОСТ 12.2.049-80.
Пожарная профилактика
Очень большое значение, для обеспечения безопасности, имеет противопожарная профилактика. Она предусматривает мероприятия по предупреждению и ликвидации пожаров, ограничению сферы распространения огня при возгорании, эвакуации людей и спасения имущества. Все эти мероприятия предусмотрены ГОСТ 12.1.004-91.
По пожарной безопасности производство ЕБПП относится к категории В, то есть в котором применяются горючие жидкости с температурой вспышки паров 61°С и выше. Степень огнестойкости дома – 2.
Для предупреждения пожаров от короткого замыкания, перегрузок и т.д, связанных с эксплуатацией электрооборудования, последнее следует правильно выбрать, установить и в дальнейшем соблюдать установленный режим эксплуатации электрических сетей, машин, аппаратов, а также электрических средств автоматизации и связи.
Согласно ГОСТ 12.1.004-91, цех размещаем в несгораемом помещении. Стены и перегородки выполнены из силикатного кирпича, проемы заполнены железобетонными переплетами с креплением стекол стальными шплинтами. Двери со стальными пустотелыми полотнищами при заполнении прослойки минеральной ватой. Расстояние до эвакуационного выхода 50 м. При выходе из цеха в тупиковый коридор максимальное расстояние до двери 10 м, при выходе наружу - не более 25 м. Ширина установленных двухстворчатых дверей на пути эвакуации равна 2.5 м при высоте 3 м. Путь эвакуации при пожаре разделяется на два потока, направленных к ближайшим выходам из цеха сборки, в направлении от очага пожара. Далее путь эвакуации пролегает к выходу из помещения на улицу согласно плану эвакуации, установленному в данном помещении.
К первичным средствам тушения пожаров относятся пожарные стволы, песок, углекислотные огнетушители (ОУ-2, ОУ-5, ОУ-8), которые очень эффективны и обеспечивают сохранность электронного оборудования (потому что углекислый газ обладает диэлектрическими свойствами). Для цеха из расчета на каждые 50 кв.м площади устанавливаем ОУ-8 - 1 шт., но для одного помещения не менее 2х штук.
Для обнаружения пожара в помещении устанавливают комбинированные тепловые и дымовые извещатели типа КИ-1, реагирующие на появление дыма и повышение температуры свыше 40 °C. Извещатели устанавливать в зонах наиболее вероятного загорания и в местах возможного скопления горячего воздуха и дыма, на пути следования конвекционных потоков продуктов горения. В одном помещении устанавливаем два извещателя.
Также проводим мероприятия по предупреждению пожара:
а) регулярный инструктаж персонала по технике безопасности;
б) категорически запретить использовать открытый огонь в цехе;
в) содержать в исправности средства пожаротушения.
Организационно-технические мероприятия по действию администрации и работников в случае возникновения пожара:
- Применение плакатов наглядной агитации по пожарной безопасности;
- На стене у входа находится схема эвакуации людей при возникновении пожара.
- Плановые инструктажи по пожарной профилактике.
Согласно СниП 2.01.02 – 85 [ ], для обеспечения оптимальных условий при эвакуации предусмотрен один выход с шириной двери 1,8 м. Ширина коридоров в доме - 3 м. Дополнительный эвакуационный выход в цех не нужен. Схема эвакуации людей при пожаре приведена на рисунке 5.3.

| Модуль уста-новки компо-нентов на ПП. |
|
Рисунок 3 – План эвакуации при пожаре
Карта условий труда приведена в таблице 1.
Таблица 5.1 – Карта условий труда
| Факторы производственной среды и трудового процесса |
Значение фактора (ПДК, ПДУ) |
3 класс-опасные и вредные условия, характер труда |
Продолжительность действия фактора, в % за смену |
| Норма |
Факт |
1ст |
2ст |
3ст |
| 1. Шум, дб |
58 |
52 |
- |
- |
- |
70 |
2.Неионизирующие излучения, В/м:
- промышленной частоты
|
-
|
-
|
-
|
-
|
-
|
80
|
| - радиочастотного диапазона |
- |
- |
- |
- |
- |
90 |
| 3.Ренгеновское излучение, мкр/час |
- |
- |
- |
- |
- |
73 |
4.Микроклимат:
- температура воздуха, Сº
|
22-24 |
25 |
- |
- |
- |
100 |
| - скорость движения воздуха м/с |
0,1 |
- |
- |
- |
| -относительная влажность % |
40-60 |
52 |
- |
- |
- |
100 |
| 5.Атмосферное давление |
760 |
760 |
- |
- |
- |
100 |
| 6.Освещение: естественное, % |
2 |
2 |
- |
- |
- |
63 |
| - искусственное, лк |
400 |
<400 |
x |
| 7.Тяжесть труда: |
| - мелкие стереотипные движения кистей и пальцев рук(количество тис. за смену) |
40 |
40 |
- |
- |
- |
80 |
| - рабочая поза(пребывание в наклонном положении в течении смены), % |
25 |
25 |
- |
- |
- |
85 |
| - наклоны корпуса (раз за смену) |
100 |
100 |
- |
- |
- |
3-5 |
| - перемещение в прост-ранстве, км за смену |
10 |
0,6 |
- |
- |
- |
13 |
8.Напряженность труда
а) внимание:
- продолжительность сосредоточения (в % от продолжительности системы)
|
75 |
85,4 |
- |
- |
- |
92 |
б) напряженность
анализаторов:
- зрение (категория работ)
|
средней точности |
высокой точности |
-
|
-
|
-
|
90
|
| - слух (разборчивость %) |
70 |
95 |
- |
- |
- |
95 |
в) эмоциональное и
интеллектуальное
напряжение
|
- |
- |
- |
- |
- |
85 |
| Общее количество факторов |
- |
- |
1 |
0 |
0 |
- |
ВЫВОДЫ
В разделе контрольной работе были исследованы опасные и вредные факторы производства, даны рекомендации по технике безопасности, производственной санитарии и пожарной безопасности.
ЛИТЕРАТУРА
1. Справочная книга по светотехнике. Под ред. Б. Айзенберга.–М.: Энергоатомиздат, 2003.–472 с., ил.
2. ДНАОП 0.00 – 1.31 – 99 Правила охорони працi пiд час експлуатацiї ЕОМ.
3. Долин П.А. Справочник по технике безопасности.-6-е изд., перераб. и доп. – М.: Энергоиздат,2004. – 824с.
|