| СОДЕРЖАНИЕ
ВВЕДЕНИЕ........................................................................................................ 4
1. Общая часть ................................................................................................. 5
1.1. Краткая характеристика санитарно-технических норм расхода воды............................. 5
1.2. Требования к качеству воды................................................................................................. 6
1.3. Правила выбора места заложения скважины...................................................................... 7
1.4. Зона санитарной охраны скважины..................................................................................... 8
2. Техническая часть...................................................................................... 10
2.1. Краткая характеристика условий проведения работ на участке................................ 10
2.2. Определение величины понижения уровня воды и динамического уровня при эксплуатации 11
2.3. Выбор и обоснование типа фильтра и расчет его параметров................................... 12
2.4. Выбор и обоснование способа бурения........................................................................ 13
2.5. Определение проектной глубины скважины............................................................... 14
2.6. Выбор и обоснование водоподъемного оборудования для эксплуатации и для проведения опытных работ............................................................................................................................. 14
2.7. Выбор и расчет конструкции скважины...................................................................... 16
2.8. Выбор бурового оборудования...................................................................................... 18
2.9. Выбор и расчет режимов бурения................................................................................. 19
2.10. Обоснование компоновок бурового снаряда............................................................... 20
2.11. Технология вскрытия и освоения водоносного горизонта......................................... 21
2.12. Технология и расчет параметров цементирования скважины................................... 22
2.13. Методика и выбор технических средств для проведения опытно-исследовательских работ в скважине....................................................................................................................................... 23
3. Анализ и выбор способа ликвидации поглощений промывочных жидкостей 25
СПИСОК ЛИТЕРАТУРЫ................................................................................ 28
Приложение...................................................................................................... 29
Введение
Подземные воды играют важную роль в развитии народного хозяйства. Объёмы потребления подземных вод в России как и во всём мире постоянно возрастают.
Эксплуатация подземных вод осуществляется главным образом буровыми скважинами, как наиболее эффективными и экономичными водозаборными сооружениями, а эффективность и экономичность во многом объясняется качеством проекта, в котором должно быть предусмотрено применение наиболее совершенных технических средств и технологии бурения с учётом интересов охраны и рационального использования природных ресурсов.
Основная цель курсового проектирования заключается в том, чтобы научиться пользоваться учебной, справочной, научно-технической литературой и другими источниками информации о современном достижении науки и практики с тем, чтобы в дальнейшем на высоком инженерном уровне решать вопросы техники и технологии сооружения скважин в практической деятельности.
Задачей курсового проектирования является закрепление и углубление теоретических знаний, использование этих знаний для решения конкретных задач.
1. Общая часть.
1.1. Краткая характеристика санитарно-технических норм расхода воды.
При проектировании скважин на воду и системы водоснабжения любого объекта прежде всего должно быть определено, сколько воды и какого качества необходимо подавать данному объекту.
Вода расходуется различными потребителями для самых разнообразных целей: а) хозяйственно-питьевые нужды населения; б) производственные нужды предприятий промышленности и сельского хозяйства; в) тушение пожаров.
Для ориентировочного определения расчетного расхода воды проектируемой разведочно-добывающей скважины можно использовать данные табл. 1.
Таблица 1
Расчетные нормы расхода воды [16]
| #G0Потребитель
|
Средне-
суточная норма потребления, л/сут
|
| Хозяйственно-питьевые нужды населенных пунктов (на 1 человека)
|
| Жилые дома без внутреннего водопровода
|
30-50
|
| Здания, оборудованные внутренним водопроводом и канализацией, без ванн
|
125-160
|
| То же, с ванными и местными водонагревателями
|
160-230
|
| То же, с центральным горячим водоснабжением
|
250-350
|
| Хозяйственно-питьевые нужды промышленных предприятий (на 1 человека в 1 смену)
|
| В цехах с тепловыделением более 82 Дж на 1 м/ч
|
45
|
| В остальных цехах
|
25
|
| Часовой расход на 1 душевую установку после смены
|
500
|
| Сельскохозяйственные нужды (на 1 голову)
|
| Коровы молочные
|
100
|
| Коровы мясные
|
70
|
| Быки и нетели
|
60
|
| Молодняк крупного рогатого скота в возрасте до 2 лет
|
30
|
| Телята в возрасте до 6 месяцев
|
20
|
| Жеребята в возрасте до 1,5 лет
|
45
|
| Лошади рабочие, верховые
|
60
|
| Лошади племенные
|
80
|
| Овцы взрослые
|
10
|
| Свиньи на откорме, ремонтный молодняк
|
15
|
| Свиноматки холостые, хряки-производители
|
25
|
| Свиноматки с поросятами
|
60
|
| Поросята отъемыши
|
5
|
| Куры
|
1
|
| Утки и гуси
|
2
|
| Кролики
|
3
|
| Примечание. Не указаны нормы водопотребления на производственные нужды промышленных и сельскохозяйственных предприятий, которые рассчитывают на основе технологических данных и зависят от профиля предприятия.
|
Количество воды на нужды местной промышленности, обслуживающей население, и неучтенные расходы допускаются дополнительно в размере 5-10% от суммарного расхода воды на хозяйственно-питьевые нужды населенного пункта.
Для определения общего суточного количества воды, необходимого для водоснабжения объекта, величину, полученную по нормам табл. 1, нужно умножить на коэффициент суточной неравномерности (1,1-1,3) и сложить с количеством воды, требуемым для восстановления противопожарного запаса.
Расход воды на противопожарные нужды зависит от числа жителей и характера застройки (табл. 2).
Таблица 2
Расходы воды на наружное пожаротушение
| #G0Число жителей в населенном пункте, тыс. чел.
|
Расчетное число одновременных пожаров
|
Расходы воды на наружное пожаротушение в населенном пункте в л/с при постройках
|
| |
|
одно- двухэтажных
|
трехэтажных и более
|
| 5000
|
1
|
10
|
10
|
| 10000
|
1
|
10
|
15
|
| 25000
|
2
|
10
|
15
|
| 50000
|
2
|
20
|
25
|
| 100000
|
2
|
25
|
35
|
| Примечание. Продолжительность тушения одного пожара 3 ч.
|
Количество воды, требуемое для противопожарных целей, должен обеспечивать неприкосновенный запас в резервуарах, который необходимо восстанавливать из скважины в течение следующего времени:
а) 24 ч - в населенных пунктах и на промышленных предприятиях с производством, отнесенным по пожарной опасности к категориям А, Б и В;
б) 36 ч - на промышленных предприятиях с производствами, отнесенными по пожарной опасности к категориям Г и Д;
в) 72 ч - в сельских населенных пунктах и на сельскохозяйственных предприятиях.
При определении часового дебита проектируемой разведочно-добывающей скважины следует считать продолжительность работы водопроводов для городов, больших поселков и крупных промышленных предприятий 20-22 ч/сут, а для средних и небольших объектов 8-12 ч/сут.
1.2. Требования к качеству воды
Качеством воды называется совокупность свойств воды, обусловленная в основном концентрацией содержащихся в ней компонентов.
В состав воды в виде различных химических соединений входят около 50 элементов, многие из которых содержатся в малых количествах, но также влияющих на ее свойства. Природные воды всегда содержат несколько компонентов. В зависимости от размера частиц, составляющих компоненты воды, различают:
1) растворенные компоненты, частицы которых находятся в состоянии молекулярной или ионной дисперсности (размер частиц менее 0,1 мкм); к ним можно отнести растворенные в воде газы (кислород, углекислый газ, сероводород, азот) а также катионы и анионы растворенных в воде солей кальция, магния, натрия, калия, хлора и др.
2) коллоидные компоненты, частицы которых находятся в состоянии высокой дисперсности (размер частиц 0,1-10 мкм). Эти компоненты могут быть органического и минерального происхождения. К органическим относятся гумминовые вещества и масла (масла попадают в воду со сточными водами), а к минеральным - кремниевая кислота (SiO2
), соединения металлов и др.;
3) грубодисперсные компоненты, имеющие размеры частиц больше 10 мкм. Эти компоненты могут быть:
а) всплывающие, их плотность меньше плотности воды; б) тонущие, плотность которых больше плотности воды; в) взвешенные, плотность которых близка к плотности воды.
При определении качества воды различают следующие свойства.
Физические: температура, запах, вкус и привкус, прозрачность, муть и осадок, взвешенные вещества, электропроводность.
Химические: активная реакция, щелочность, жесткость, сухой остаток, железо, сульфаты и хлориды, азотсодержащие вещества, окисляемость, сероводород, растворенный кислород, мышьяк, фтор, медь, цинк, марганец, свободная углекислота, кремниевая кислота.
Бактериологические: общее число бактерий, коли-титр, коли-индекс.
Качество питьевой воды, подаваемой централизованной хозяйственно-питьевой системой водоснабжения, регламентируется ГОСТом.
Состав и свойства воды при любом типе водоисточника, способе обработки воды и конструктивных особенностях водопроводной сети должны обеспечивать безопасность ее в эпидемиологическом отношении, безвредность химического состава и благоприятные органолептические свойства.
Вода, подаваемая потребителям, должна быть защищена от случайного или систематического загрязнения путем устройства зон санитарной охраны и герметичности водопроводных систем.
1.3. Правила выбора места заложения скважины.
При размещении водозаборных сооружений подземных вод следует отдавать предпочтение участкам:
а) расположенным вблизи места потребления воды; б) обладающим наибольшей водообильностью и допускающим забор потребного количества и надлежащего качества воды; в) обеспечивающим наиболее высокое положение динамического уровня в процессе эксплуатации; г) обеспечивающим возможность расширения водозабора на перспективу.
Водозаборы следует располагать на устойчивых (не оползневых) и незатопляемых участках, а при отсутствии таких - предусматривать мероприятия по защите водозаборов (обвалование, подсыпку и др.). Участки для расположения водозаборов должны быть выбраны таким образом, чтобы исключалась возможность загрязнения эксплуатируемых водоносных горизонтов бытовыми и промышленными сточными водами, газонасыщенными водами и водами с повышенной минерализацией, содержащими железо и марганец, из других водоносных горизонтов. Скважина должна быть защищена от попадания воды, служащей для охлаждения подшипников, компрессоров и сальников.
С целью защиты используемых подземных вод от загрязнения сточными водами животноводческих ферм и других объектов должна быть организована санитарная зона участков расположения водозаборов. Зона санитарной охраны для подземных источников состоит из двух поясов, в каждом поясе должен быть установлен особый режим.
Первый пояс - зона строгого режима - должен включать: а) источник в месте забора воды; б) водопроводные сооружения: насосные станции, запасные и напорные резервуары и т.д.
Границы первого пояса зоны санитарной охраны должны устанавливаться в зависимости от степени защищенности горизонтов с поверхности от загрязнения и гидрогеологических условий на определенном расстоянии (в м) от водозабора:
| #G0для надежно защищенных горизонтов
|
>30
|
| для незащищенных, недостаточно защищенных горизонтов
|
>50
|
Для одиночных подземных водозаборов, расположенных на территории объекта, исключающего возможность загрязнения почвы, расстояние от них до ограждения допускается уменьшать соответственно до 15 и 25 м.
Второй пояс зоны санитарной охраны - зона ограничения - должен включать:
а) источник, питающий данный водопровод;
б) бассейн питания водоисточника и его притока с границами по водоразделам, другие источники и грунтовые воды, которые могут оказать неблагоприятное влияние на качественный или количественный состав воды в водоисточнике;
в) окружающую территорию с населенными пунктами, фермами, зданиями, сооружениями и устройствами, оказывающими на источник определенное влияние.
На территории второго пояса запрещается:
располагать животноводческие фермы ближе чем на 300 м от границ первого пояса;
располагать стойбища и выпас скота ближе чем на 100 м от границы первого пояса.
Границы второго пояса определяют расчетом.
При выборе участков размещения и проектирования водозаборов подземных вод наряду с расчетами производительности водозаборов важнейшей задачей является оценка качества подземных вод и составление прогноза возможных изменений состава и свойств воды на весь период водопотребления.
1.4. Зона санитарной охраны скважины.
Особую опасность представляют загрязненные сточные воды в районах промышленных предприятий и на сельскохозяйственных территориях. Поэтому при прогнозах качества воды для проектируемого водозабора необходимо предусматривать в проекте мероприятия по их санитарной охране и предотвращению загрязнения подземных вод в районе размещения водозабора.
При проектировании, строительстве и эксплуатации скважин, добывающих грунтовые и артезианские воды, в соответствии со СНиП II.31-74 вокруг них необходимо проектировать зону санитарной охраны из двух поясов: I пояс - зона строгого режима; II пояс - зона ограничений.
В I пояс санитарной охраны включают участок проектируемой разведочно-добывающей скважины. Этот пояс представляет собой площадку радиусом 50 м, на которой производится планировка территории с отводом поверхностных вод за пределы пояса. Территорию I пояса зоны санитарной охраны ограждают забором.
II пояс зоны санитарной охраны, его размеры и конфигурацию в плане устанавливают в зависимости от глубины залегания водоносного грунта, степени его защищенности от проникновения бактериального загрязнения с поверхности земли, по данным гидрогеологических расчетов и согласно СНиП II.31-74. II пояс зоны санитарной охраны рассчитывают с использованием метода Е.Л. Минкина и данных санитарно-гидрогеологического обследования района.
Все расчеты по определению зоны санитарной охраны II пояса приведены в табл. 3.
Таблица 3
| #G0Урав-
нение прямой, точку пересе-
чения которой с грани-
цей зоны требу-
ется найти
|
Коорди-
наты точек пересе-
чения
|

|

|

|
определяется путем подстановки в уравнение прямой 
|
| |

|

|
=0,3
|
=1,2
|
=27
|
|
=0,3
|
=1,2
|
=27
|
=0,3
|
=1,2
|
=27
|
| =2
|
220
|
440
|
0,42
|
1,0
|
2,70
|
83
|
35
|
83
|
224
|
70
|
166
|
448
|
| =
|
195
|
195
|
0,65
|
1,35
|
2,37
|
83
|
54
|
112
|
147
|
54
|
112
|
197
|
| =0,5
|
168
|
84
|
0,70
|
1,38
|
2,10
|
83
|
58
|
115
|
174
|
29
|
58
|
87
|
| =0
|
130
|
0
|
0,75
|
1,28
|
1,50
|
83
|
62
|
106
|
124
|
0
|
0
|
0
|
| =-0,5
|
92
|
-46
|
0,60
|
1,10
|
1,20
|
83
|
50
|
91
|
100
|
25
|
46
|
50
|
| =-
|
65
|
-66
|
0,68
|
0,80
|
83
|
83
|
37
|
56
|
66
|
37
|
56
|
66
|
| =-2
|
39
|
-78
|
0,48
|
0,50
|
83
|
83
|
23
|
40
|
42
|
46
|
80
|
84
|
| Вверх по потоку
|
-
|
-
|
0,98
|
2,5
|
10
|
83
|
-
|
-
|
-
|
80
|
208
|
830
|
| Вниз по потоку
|
-
|
-
|
0,60
|
0,90
|
1
|
83
|
-
|
-
|
-
|
50
|
75
|
83
|
2. Техническая часть
2.1. Краткая характеристика условий проведения работ на участке.
Проектный геологический разрез по скважине.
| Наименование пород
|
Интервал, м
|
Мощность, м
|
Категория по буримости
|
абразивность
|
трещиноватость
|
| от
|
до
|
| 1. почвенно-растительный слой, плотные суглинки
|
0
|
18
|
18
|
II
|
-
|
Трещиноватость отсутствует
|
| 2. песок серый, мелкозернистый, плотный
|
18
|
40
|
22
|
I
|
| 3. глина серая, плотная
|
40
|
64
|
24
|
III
|
| 4. песок среднезернистый с мелкой галькой, обводнённый
|
64
|
80
|
16
|
Сильно-абразивные
|
| 5. глина серая, плотная с прослоями песков
|
80
|
140
|
60
|
-
|
| 6. известняк светло-серый с трещинами и кавернами, заполненными глиной
|
140
|
170
|
30
|
V
|
-Мало
абразивные
|
трещиноватые
|
| 7. известняк серый, местами окремнённый, трещиноватый, обводнённый, с глубины 200 м плотный
|
170
|
210
|
40
|
Таким образом, породы I и II категории по буримости следует бурить трёхлопастным долотом 3Л-346, породы III категории – трёхлопастным долотом 3Л-295, породы V категории – трёхшарошечным долотом 4В-140С.
2.2. Определение величины понижения уровня воды и динамического уровня при эксплуатации.
Величину понижения уровня воды в скважине для напорных вод при проведенной откачке с одним понижением можно определить по формуле Дюпюи [4]:
м, (1)
где S
1
– понижение уровня, принимается равным 1 м; Q
– проектный дебит, м3
/ч; q
– удельный дебит, м3
/ч.
Понижение уровня S
не должно превышать максимально допустимого понижения Smax
.
S
≤ Smax
(2)
Максимально допустимое понижение определяется по формуле
Smax
= 0,3 Нн.с
= 0,3*158=47,4 м. (3)
где Нн.с.
– высота непониженного столба жидкости в скважине.
=170-12=158 м, (4)
где Нк
– глубина залегания кровли водоносного горизонта, м; Нст
– статический уровень воды в скважине от поверхности земли, м.
Динамический уровень определяется по формуле
,
м. (5)
2.3. Выбор и обоснование типа фильтра и расчет его параметров.
Параметры рабочей части фильтра определяются проектным дебитом скважины мощностью водоносного горизонта и его фильтрационными свойствами, характеризуемыми коэффициентом фильтрации. Площадь фильтра, определяющая его водопропускную способность при допустимой скорости фильтрации воды, находится в зависимости от диаметра и длины рабочей части. В связи с этим, при расчете одну из этих величин (диаметр или длину) принимают, а другую находят по соответствующей формуле. При мощности водоносного горизонта до 10 м длину рабочей части принимают равной мощности водоносного горизонта, а диаметр определяют по формуле. При мощности водоносного горизонта более 10 м принимают диаметр фильтра и рассчитывают необходимую его длину. Во всех случаях диаметр каркаса фильтра должен быть не менее 100 мм, что обусловлено условиями его эксплуатации и ремонта.
Принимая водопропускную способность фильтра равной проектному дебиту, определяют необходимую площадь фильтра по формуле:
= = 0,264м2
, (6)
где Q – проектный дебит, м3
/сутки, vф
– допустимая скорость фильтрации, м/сутки, F – рабочая площадь фильтра, м2
.
Скорость фильтрации определяется по эмпирической формуле:
=65 =265,308 м/сутки, (7)
где Кф
– коэффициент фильтрации, м/сутки.
Если выразить рабочую площадь фильтра через его диаметр и длину, то формула (6) примет следующий вид:
, (8)
откуда
= = 0,06722 м=67,22мм (9)
где Дф
– диаметр фильтра, м; lф
– длина фильтра, м, которую мы принимаем равной мощности водоносного пласта.
Согласно рассчитанному значению диаметра фильтра выбираем табличное значение наружного диаметра фильтра 114 мм и подбираем тип фильтра Т-4Ф18 [1, с.46].
2.4. Выбор и обоснование способа бурения.
В практике бурения скважин на воду наиболее широкое применение получили следующие способы бурения: 1)вращательный с прямой промывкой; 2)вращательный с продувкой воздухом; 3)вращательный с обратной промывкой; 4)ударно-канатный.
Каждый из названных способов бурения имеет вполне определённые преимущества и недостатки, а следовательно, и рациональную область применения применительно к решению конкретных задач, а также к гидрогеологическим и другим условиям проведения работ.
В настоящие время основным способом бурения скважин является вращательное бурение с прямой промывкой, этот способ рекомендуется для бурения описанной выше скважины. Способ рекомендуется использовать при бурении в породах различной твёрдости на различные глубины, при применении испытателей пластов, опережающего способа опробования и на стадии поисково-разведочных работ, а также при применении способов закачивания скважин, исключающих кольматацию пласта.
Преимущества вращательного способа бурения:
1) высокие механические и коммерческие скорости бурения;
2) возможность бурения в породах различной твёрдости на различные глубины;
3) малая металлоёмкость конструкций скважин.
Недостатки вращательного способа бурения:
1) при бурении с глинистым раствором трудности качественного опробования водоносных пластов и их освоения, что приводит к снижению дебитов скважин, требует проведения длительных и сложных работ по разглинизации;
2) необходимость снабжения установок водой и качественной глиной;
3) трудности бурения в породах, содержащих валунно-галечниковые включения, в породах, поглощающих промывочную жидкость;
4) трудности организации работ в зимнее время при отрицательных температурах.
2.5. Определение проектной глубины скважины.
По выбранному значению диаметра фильтра пересчитываем его длину:
= = 17,69 м ≈18 м. (10)
Согласно значению мощности водоносного пласта, полная глубина скважины
Lскв.
= 170+18 = 188 м, так как мощность вышележащих пород 170 м.
Lнк.
= 40 м.
2.6. Выбор и обоснование водоподъемного оборудования для эксплуатации и для проведения опытных работ.
Погружные насосы предназначены для эксплуатационной откачки чистой воды из скважин. Наличие в откачиваемой воде даже незначительного количества песка и бурового шлама недопустимо. Поэтому перед установкой погружного насоса должна быть проведена откачка из скважины эрлифтом с производительностью, равной эксплуатационной или превышающей последнюю, до полного осветления воды.
Глубина погружения смесителя зависит от положения динамического уровня. Она определяется по формуле
H=k*h=2.5*14,8=37м (11)
где h – динамический уровень воды в скважине, м; k – коэффициент погружения, который по таблице 9.1([1],с 104)=2.5
V0
= h/c*lg(h(k-1)+10)/10) = 14,8/(13.1*lg[(14,8(2.5-1)+10)/10)]=1,85
м3
воздуха/ м3
воды (12)
где с(=13.1) – опытный коэффициент, зависящий от коэффициента погружения([1],с 299,таблица 67)
Тогда полный расход воздуха W = Q* V0
/60=1.85*70/60 = 2,16 м3
/мин (13)
(где Q – проектный дебит скважины,=70 м3
/ч)
Во время работы эрлифта давление воздуха может быть рассчитано по формуле:
P = 0.01[h(k-1)+5]=0.01[14,8(2.5-1)+5]=0,272 МПа (14)
Для данной эрлифтной установки используют компрессор марки ЗИФ-55Э, выбор которого произвела по рабочему давлению[1].
Согласно рассчитанному значению динамического уровня (формула 5) ,
м и заданному значению проектного дебита скважины Q = 70 м3
/ч по ГОСТу определяем насос 2ЭЦВ10-160-35 [1, с. 57]. Характеристики насоса:
1) число ступеней 4;
2) Q = 160 м3
/ч;
3) м;
4) N =22 кВт;
5) габариты: диаметр и длина (234 мм и 2040 мм);
6) масса 320 кг.
2.7. Выбор и расчет конструкции скважины.
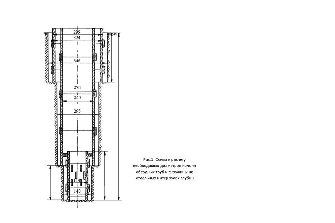
Необходимо произвести расчет необходимых диаметров колонн обсадных труб и скважины на отдельных интервалах глубин.
Определив диаметр фильтра, его конструкцию и способ установки, рассчитываем диаметр долота для бурения интервала скважины под фильтровую колонну
мм, (15)
где Д′д.ф.
– расчетный диаметр долота для бурения скважины под фильтровую колонну, мм; Дф.
– диаметр фильтра, принимаемый по максимальному размеру (диаметр муфты, диаметр проволочной обмотки или сетчатого покрытия, диаметр кожуха, корзин или блоков для гравийных и блочных фильтров), мм; δ – величина зазора между стенкой скважины и наружной поверхностью фильтра, мм. Величина зазора зависит от диаметра колонны и принимается в пределах 10–50 мм. Меньшие значения принимаются при меньших диаметрах колонны.
На основании расчетного диаметра принимают ближайший больший диаметр долота по ГОСТу. В данном случае диаметр долота принимаем равным 140мм[1]. Диаметр скважины принимается равным диаметру долота.
Рассчитывают внутренний диаметр эксплуатационной колонны по формуле
мм, (16)
где Д′э.в.
– расчетный внутренний диаметр эксплуатационной колонны, мм; Дд.ф.
– диаметр долота для бурения под фильтровую колонну, выбранный по ГОСТу; Δ – зазор между внутренней стенкой колонны и диаметром долота, принимается в пределах 5–10 мм в зависимости от диаметра долота (меньшие значения для меньших диаметров долот).
По ГОСТу на обсадные трубы в соответствии с расчетным внутренним диаметром эксплуатационной колонны принимается ее наружный диаметр и диаметр муфты.
Внутренний диаметр эксплуатационной колонны должен быть достаточным для размещения водоподъемного оборудования и обязательно проверяется по условию
, (17)
мм
где Дн.
– диаметр насоса; (выбранный насос по Q и Н), в – зазор на сторону между насосом и внутренним диаметром эксплуатационной колонны (указывается в технической характеристике насоса).
Следовательно, следует выбрать другой диаметр эксплуатационной колонны , мм.
Рассчитывают диаметр долота для бурения под эксплуатационную колонну по формуле
мм. (18)
где Дм.э .
= 270 мм – диаметр муфты эксплуатационной колонны, выбранной по ГОСТу [1, с.55].
По расчетному диаметру принимают ближайший большой диаметр долота по ГОСТу, в нашем случае Дд.э.
= 295 мм[ 1 ].
Рассчитывают внутренний диаметр направляющей колонны по формуле
мм. (19)
где Дд.э.
– диаметр долота для бурения под эксплуатационную колонну, принятый по ГОСТу, мм; Δ – зазор 5–10 мм.
По ГОСТу в соответствии с расчетным диаметром выбирают направляющую колонну и муфты. Диаметр муфты = 324 мм. Диаметр направляющей колонны =299, мм.
Рассчитывают диаметр долота для бурения под направляющую колонну по формуле
мм (20)
где Дм.н.
– диаметр муфты направляющей колонны, мм.
По ГОСТу выбираем диаметр долота под направляющую колонну = 346 мм
[ 1 ].
Конструкция скважины приведена на рисунке 1.

2.8. Выбор бурового оборудования.
Выбор бурового оборудования производится в соответствии с выбранным способом бурения и конструкцией скважины по техническим характеристикам. Буровая установка 1БА15В применяется для бурения роторным способом с прямой промывкой забоя вертикальных скважин для водоснабжения в районах, доступных автотранспорту.
Техническая характеристика буровой установки
Рекомендуемая глубина бурения, 500 м
бурильными трубами диаметром 73 мм
Рекомендуемые диаметры скважин:
Начальный 394 мм,
Конечный 194 мм.
Транспортная база Шасси МАЗ-500А
Мощность 105/108 л.с.
Частота вращения 1500/1700 об/мин
Удельный расход топлива 181/180 г/л∙с∙ч
Ротор:
проходное отверстие ротора 410 мм
число оборотов ротора в минуту:
I передача 65
II передача 130
III передача 245
Механизм подъёма – лебедка:
максимальное натяжение каната, кг 520
Скорость подъема талевого блока 0,2-1,39 м/с
Мачта складная:
высота от земли до оси кронблока 18 м.
подъём мачты гидродомкратом
Буровой насос НБ12-663-40 [2]
2.9. Выбор и расчет режимов бурения.
Режимы бурения для долота 3Л-346:
1) удельная нагрузка G0
= 0,7 кН/см.
Полная нагрузка Gд.н.
= G0
∙ Dд.н.
= 0,7 ∙ 34,6 = 24,22 кН. (21)
2) окружная скорость вращения v = 0,8 м/с.
Скорость вращения n = = = 44 об/мин. (22)
3) Промывка:
Удельный расход: q = 35 л/(см∙мин).
Полный расход Q = q∙Dд.н.
= 35 ∙ 34,6 = 1211 л/мин (23)
Режимы бурения для долота 3Л-295:
1) удельная нагрузка G0
= 0,7 кН/см
Полная нагрузка Gд.ф.
= G0
∙ Dд.э.
= 0,7 ∙ 29,5 = 20,65 кН (24)
2) окружная скорость вращения v = 0,6 м/с.
Скорость вращения n = = = 39 об/мин (25)
3) Промывка:
Удельный расход: q = 35 л/(см∙мин)
Полный расход Q = q∙Dд.э.
= 35 ∙ 29,5 = 737,7 л/мин (26)
Режимы бурения для долота 1У-295СЗГ:
1) удельная нагрузка G0
= 2 кН/см.
Полная нагрузка Gд.ф.
= G0
∙ Dд.э.
= 2 ∙ 14 = 28 кН. (27)
2) окружная скорость вращения v = 0,6 м/с.
Скорость вращения n = = = 39 об/мин (28)
3) Промывка:
Удельный расход: q = 25 л/(см∙мин)
Полный расход Q = q∙Dд.э.
= 25 ∙ 737,5 = 350 л/мин (29)
Режимы бурения для долота 4В-140С:
1) удельная нагрузка G0
= 2 кН/см.
Полная нагрузка Gд.ф.
= G0
∙ Dд.ф.
= 2 ∙ 14 = 28 кН (30)
2) окружная скорость вращения v = 0,6 м/с.
Скорость вращения n = = = 82 об/мин (31)
3) Промывка:
Удельный расход: q = 25 л/(см∙мин)
Полный расход Q = q∙Dд.ф.
= 25 ∙ 14 = 350 л/мин (32)
2.10. Обоснование компоновок бурового снаряда.
Часть бурового снаряда, состоящая из бурильных труб и их соединений, называется бурильной колонной.
Бурильные трубы (рис.2) применяются для спуска в буровую скважину и подъема породоразрушающего инструмента, передачи вращения, создания осевой нагрузки на инструмент (утяжеленные бурильные трубы), подвода промывочной жидкости к забою.

Рисунок 2.Бурильные трубы
Для бурения данной скважины на всем интервале будут использоваться трубы с высаженными наружу концами и муфты к ним диаметром 73 мм и толщиной стенки 11 мм [2].
На долото 4В-140С пласт серого известняка местами окремнённого, трещиноватого необходима нагрузка 2800 кг. Вес 1 м бурильной трубы равен 16,8 кг, глубина скважины составляет 188 м. Бурильные трубы создают нагрузку 188∙16,8=3158,4 кг.
Получается, что утяжеленные бурильные трубы, предназначенные для увеличения веса и жесткости нижней части бурильной колонны и создания необходимой осевой нагрузки на долото, не нужно использовать.
2.11. Технология вскрытия и освоения водоносного горизонта.
Глинистый раствор, играя положительную роль при бурении скважин, уменьшает проницаемость водоносного пласта на самом важном его участке - около скважины.
Промывку скважин глинистым раствором рекомендуется применять только высоконапорных пластов, представленных средне- и крупнозернистыми, а также гравелистыми песками. В слаботрещиноватых породах этот способ часто приводит к закупорке трещин пласта шламом с глинистой коркой.
Перед вскрытием пласта необходимо проверить оборудование, измерить длину воздушных и водоподъемных труб, проверить исправность муфт и резьбовых соединений. Трубы надо разместить рядом с буровой в порядке спуска их в скважину и полностью подготовить к спуску фильтр и надфильтровую трубу.
Если предполагается устройство гравийного фильтра, то на буровую завозят необходимое количество гравия.
Во вскрытии пласта должна участвовать вся бригада. Вскрывать водоносный пласт можно только после выполнения всего комплекса подготовительных мероприятий. Интервал между вскрытием пласта и освоением скважины не должен превышать 1 сут.
Если на буровой нет полного комплекта необходимого оборудования, то вскрывать пласт нельзя.
При вскрытии водоносных пластов, представленных неустойчивыми породами, глинистый раствор должен иметь определенную плотность, быть высококоллоидальным, тонкодисперсным и тиксотропным. Этим условиям больше всего отвечают бетонитовые глины, которые в настоящее время выпускаются в виде порошка.
При вскрытии пласта необходимо максимально сокращать время контакта глинистого раствора с фильтром и водоносной породой.
Слабосцементированные или рыхлые водоносные горизонты должны вскрываться следующим образом. После замены в скважине старого глинистого раствора на новый пласт разбуривают при средней скорости вращения инструмента и максимальной подаче бурового насоса. После вскрытия пласта до требуемой отметки проводят каротаж скважины, чтобы уточнить интервал установки фильтра. Затем опускают фильтр, монтируют оборудование для откачки и приступают к разглинизации скважины.
Основные параметры раствора (плотность, вязкость и фильтрация) следует выбирать такими, чтобы кольматирующие свойства раствора, глинизация пласта и его водоприводимость были минимальными.
При применении глинистого раствора с высокой плотностью для бурения скважин большого диаметра раствор обогащается шлаком, и на пласт действует большое гидростатическое давление, близкое к давлению разрыва пласта. Особенно это характерно для спуско-подъёмных операций, проводимых на высоких скоростях в сочетании с сальникообразованием.
Плотность раствора должна отвечать следующему условию:
< ρ < , (33)
Где - пластовое давление; H – глубина залегания пласта; ρ – плотность раствора; - давление разрыва пласта; и – коэффициенты запаса ( ≈1,05-1,1; ≈1,2-1,3;)
При вскрытии малонапорных водоносных пластов плотность раствора должна снижаться.
2.12. Технология и расчет параметров цементирования скважины.
Расчет параметров цементирования сводится к расчету объёма цементного раствора, необходимого для создания в затрубном пространстве цементного кольца и стакана внутри обсадной колонны. Цементируются 2 интервала:
V1
= [K (Dc
2
– D2
)hc
+ d2
h] = 1, 78 м3
(34)
Где, K – коэффициент, учитывающий увеличение объёма цементного раствора за счёт наличия трещин, каверн и разработки ствола скважины (принимаем равным 1,2);
Dc
= 0,346 – диаметр скважины, м;
D = 0,2985 – наружный диаметр обсадных труб, м;
hc
= 40 – высота цементируемого интервала, м;
d = 0,2825 –внутренний диаметр обсадных труб;
h=10 м – высота цементного стакана.
V2
= [K (Dc
2
– D2
)hc
+ d2
h] = 4,85 м3
(35)
Где, K – коэффициент, учитывающий увеличение объёма цементного раствора за счёт наличия трещин, каверн и разработки ствола скважины (принимаем равным 1,2);
Dc
= 0,295 – диаметр скважины, м;
D = 0,2445 – наружный диаметр обсадных труб, м;
hc
= 173 – высота цементируемого интервала, м;
d = 0,2285 –внутренний диаметр обсадных труб;
h=10 м – высота цементного стакана.
Общий объём цемента V=1,78 + 4,85 = 6,63 м3
.
2.13. Методика и выбор технических средств для проведения опытно-исследовательских работ в скважине.
Для очистки скважины, подготовки ее к постоянной эксплуатации, а также с целью определения производительности и основных гидрогеологических параметров водоносного горизонта проводят откачки. Их обычно ведут при нескольких понижениях до получения стабильного уровня воды в скважине. Первое понижение при откачке должно быть не менее 1м, третье – соответствовать максимальной производительности водоподъемника, второе – занимать промежуточное положение.
В процессе откачки необходимо наблюдать за уровнем воды в скважине, дебитом и температурой откачиваемой воды. При откачке эрлифтом понижение уровня (м) можно получить по показаниям манометра:
S = (p-p0
)/ρ q, м (19)
где р, р0
– пусковое и рабочее давление соответственно, Па; ρ – плотность воды, кг/м3
; q – удельный расход.
Дебит наиболее просто измерять объемным способом, при котором расход воды определяют путем наполнения емкости с известным объемом и точного фиксирования времени ее наполнения. Емкость должна наполняться не менее чем за 1 мин.
Температуру воды в скважине измеряют максимальными ртутными или самопишущими электрическими термометрами. [3]
Пробы воды подземных источников должны забираться из того водоносного горизонта, из которого намечается в будущем водозабор, а при существующем водозаборе (скважина, колодец, каптаж) - из источника, используемого для водоснабжения.
Пробы воды вновь сооруженных или долго бездействующих скважин должны отбираться после длительной откачки, выполненной до постоянного динамического уровня и полного осветления воды при производительности, равной или несколько большей запроектированной.
Перед отбором проб воды из скважины для анализа необходимо во всех случаях предварительно производить откачку в течение 24 ч.
Во всех случаях компоненты необходимо определять не дольше 3 сут, потому что пробы, доставленные позже, теряют свои свойства и анализ их делать бессмысленно, так как полученные результаты будут ненадежны.
Если проба не была законсервирована, то определение производят:
а) сразу же на месте отбора пробы или в лаборатории, если она находится вблизи места отбора пробы; б) как можно раньше, но не позже чем через 2 ч после взятия пробы; в) в тот же день, но не позже чем через 12 ч после отбора пробы.
Температура и pH воды очень быстро изменяются, так как газы, содержащиеся в воде, например кислород, двуокись углерода, сероводород или хлор, могут улетучиться из пробы или появиться в ней. Эти и подобные им вещества надо определять на месте отбора пробы или фиксировать.
Изменение равновесия системы (величины pH, содержания карбонатов, свободной двуокиси углерода) может вызвать изменение других компонентов, содержащихся в пробе. Некоторые компоненты могут выделиться в виде осадка или, наоборот, из нерастворимой формы перейти в растворимую - это относится особенно к солям железа, марганца, кальция.
В неконсервированной пробе обычно протекают различные биохимические процессы, вызванные деятельностью микроорганизмов. Нитраты могут восстановиться до нитритов, сульфаты - до сульфидов. Может измениться цвет, мутность и прозрачность воды. Некоторые компоненты могут адсорбироваться на стенках бутыли (медь, железо, кальций, алюминий, марганец, хром, цинк, фосфаты) или выщелачиваться из стекла или пластмассы бутыли (бор, кремний, натрий, калий).
Даты отбора пробы и начала анализа должны быть указаны в протоколе анализа. Следует принимать все меры для того, чтобы сократить время между отбором пробы и ее анализом.
3. Анализ и выбор способа ликвидации поглощений промывочных жидкостей
Для уменьшения или полного устранения явлений, связанных с неблагоприятными условиями бурения скважин с промывкой, прибегают к помощи специальных глинистых растворов. Специальные глинистые растворы, применяемые при борьбе с поглощением жидкости, имеют строго заданные параметры. Применяются такие растворы в осложнённых условиях, когда бурение с обычной промывочной жидкостью сопровождается потерей циркуляции.
Причинами потери циркуляции являются: наличие трещин, открытых пор и каверн, давление в которых меньше давления столба раствора в скважине. Основными оперативными методами борьбы с потерей циркуляции могут быть: снижение давления в скважине – понижением плотности раствора и увеличением сопротивлению движения раствора в пористой среде, увеличение вязкости и сопротивления сдвигу.
Одним из реагентов, обеспечивающим нужные качества раствору при борьбе с поглощением, является негашёная известь, употребляемая в виде так называемой «пушонки» Ca(OH)2
или в виде кусков. Добавка этого реагента понижает плотность и сильно повышает вязкость глинистого раствора в зависимости от концентрации 1-3%. Причём, с течением времени вязкость глинистого раствора увеличивается. На стенках пор, трещин и скважины быстро растёт толстая корка, закупоривающая трещины и поры. Аналогичное действие на раствор оказывает и цемент, только в меньшей степени. Это объясняется меньшей дисперсностью его частиц и меньшим содержанием CaO. Наиболее хорошие растворы для борьбы с поглощением получаются при добавке извести или цемента от 5 до 10 вес. %. Но при этом имеют место отрицательные явления: образуется толстая корка на стенках скважины, которая уменьшает сечение ствола; образуется сальник на буровом инструменте; снижается плотность, что нежелательно, если возможны выбросы и обвалы. При использовании извести в глиномешалку заливают на ¾ её объема воду и на ¼ объёма загружают известь. После тщательного перемешивания в глиномешалке, получается известковое молоко, которое сливают равномерной небольшой струёй в приёмный чан. Время истечения всего содержимого глиномешалки должно соответствовать времени, необходимому для полного круговорота глинистого раствора в скважине. Вводить известковое молоко необходимо заблаговременно, до встречи поглощающего пласта за 20-25 метров. В зависимости от интенсивности ожидаемого поглощения вязкость раствора доводится до 60-120 с (по СПВ-5). Расход извести достигает 60 кг на 1м3
раствора.
Чтобы избежать отрицательных явлений, связанных с применением извести, для борьбы с поглощением используют жидкое стекло. В этом случае на стенках скважины образуется более тонкая корка, а трещины и поры закупориваются гелевыми комками, которые получаются в глинистом растворе. Кроме того, при этом не происходит образование сальников, а плотность раствора повышается, что является положительным при возможных выбросах или обвалах. В противном случае плотность снижается добавлением к раствору воды. Жидкое стекло вливают тонкой струёй, направляя на специальною доску, укреплённую в желобе. При этом жидкое стекло, растекаясь по доске, попадает в циркулирующий раствор тонкой плёнкой, распределяясь в нем достаточно равномерно. С понижением температуры на забое скважины увеличивается расход жидкого стекла.
При отсутствии жидкого стекла или извести применяют цемент в количестве до 300 кг на 1 м3
глинистого раствора. Глиномешалку заполняют на 0,9 объёма водой и добавляют остальное количество цемента. После перемешивания цементное молоко выливается так же, как и при добавлении извести.
При борьбе с поглощением применяют бурый уголь (при большой глубине скважин и опасности прихвата инструмента). Расход бурого угля может составлять от 1 до 3 вес. % от количества глинистого раствора, в зависимости от требуемой вязкости.
Эффективным способом борьбы с поглощением жидкости за счёт уменьшения перепада давления является применение облегчённых глинистых растворов с пониженной плотностью. Получают такие растворы в основном двумя способами: химическим и механическим.
При химическом способе обычный глинистый раствор обрабатывается специальными химическими реагентами – пенообразователями, например, кератиновым клеем с жидким стеклом, детергентом и другими пенообразователями. Такие растворы имеют небольшую плотность, повышенную вязкость, хорошую удерживающую способность и являются достаточно стабильными.
В практике буровых работ нашёл широкое применение бескомпрессионный способ аэрации бесструктурных промывочных жидкостей. Обогащение пузырьками воздуха жидкости в этом случае происходит в процессе закачивания её насосом в скважину через аэратор – устройство эжекторного типа, через которое подсасывается воздух. В жидкость предварительно добавляется ПАВ. С помощью ПАВ можно аэрировать и обычную техническую воду или безглинистые растворы. Необходимое количество ПАВ для обработки промывочной жидкости может быть определено исходя из заданной концентрации:
, (20)
Q – количество ПАВ, т; V – объём обрабатываемой промывочной жидкости, м3
; K1 – заданная концентрация ПАВ, %; K2 – содержание активного вещества в ПАВ, %.
По мере эксплуатации жидкости (через 2-3 дня) её снова обрабатывают, так как концентрация ПАВ уменьшается вследствие адсорбции их частицами породы.
При механическом способе обработки глинистый раствор смешивается с газом в специальных смесителях-аэраторах. При этом используется насос и компрессор. Получение аэрированных жидкостей таким способом сложно, и жидкости не обладают хорошей стабильностью. Существует и бескомпромиссный способ аэрации промывочных жидкостей. В этом случае используют аэратор эжекторного типа. Он состоит из камеры смешения и насадки – сопла, через которое подается аэрируемый раствор. Плотность, получаемая при аэрации таким способом, зависит от количества прокачиваемой через аэратор жидкости в единицу времени, соотношения диаметров насадки и камеры смешения аэратора и величины противодавления в аэрационной системе. Рекомендуются следующие соотношения диаметров насадок и втулок камеры смешения: 6:10; 6:11; 7:11. Задаваясь значением плотности промывочной жидкости и зная величину противодавления, подбирают рациональное соотношение диаметров насадки и втулки камеры и режима работы аэратора. Определение плотности промывочной жидкости при борьбе с поглощением приближённо можно производить по формуле:
, (21)
Где - плотность облегченной жидкости; - плотность исходной (нормальной) жидкости; - глубина скважины, м; – высота столба жидкости в скважине при поглощении, м. Если поглощение не ликвидировано при новых параметрах промывочной жидкости, снижают её плотность против расчетной на 10-15%, снижают водоотдачу и повышают вязкость жидкости. И так, пока не будет ликвидировано поглощение.
Список литературы
1. В.П.Шестеров, В.А. Шмурыгин, И.Б. Бондарчук. «Сооружение, ремонт и эксплуатация водозаборных скважин». Издательство Томского политехнического университета, 2009.
2. Башкатов. Справочник «Бурение скважин на воду». Издательство «Недра», 1979.
3. Квашнин Г.П. «Технология вскрытия и освоения пластов». Издательство «Недра», 1987.
4. Башлык С.М., Загибайло Г.Т. «Бурение скважин». Москва «Недра», 1983.
5. «Бурение скважин и горно-разведочные работы». Методические указания. Издательство Томского политехнического университета, 1989.
6. «Бурение скважин». Методические указания. Издательство Томского политехнического университета, 2007.
7. «Бурение разведочных скважин». Методические указания. Издательство Томского политехнического университета, 2005.
|