Вступ
Залізничні дороги країни виконують велику частину вантажних і пасажирських перевезень, розміри яких, у силу об'єктивних обставин, безупинно зростають і для успішного освоєння їх необхідно вдосконалювати технічні пристрої й технологію роботи.
У цьому зв'язку станції й вузли є найважливішими елементами залізничного транспорту, на них розміщені парки колій, пасажирські й вантажні служби, локомотивне й вагонне господарство, пристрої енерго- і водопостачання, склади, будівлі, споруди й пристрої.
Довжина станційних колій становить приблизно 60% експлуатаційної довжини залізничних доріг.
Раціональний розвиток і сучасне технічне оснащення станції, а також чітка організація її роботи - найважливіша умова, яка забезпечує успішне виконання пасажирських і вантажних перевезень, прискорення оборотів вагонів і доставки вантажів і, як наслідок, гармонічний розвиток економіки регіону, що обслуговується. Також важливо помітити, що розвиток залізничної станції повинен здійснюватися як елемент єдиної транспортної системи, з урахуванням взаємодії залізничного транспорту з іншими місцевими видами транспорту й ув'язування із проектами розвитку регіону.
Вихідні дані до проектування:
Залізнична лінія 3 категорії з вантажонапруженістю потоку до 8 млн.т.км/рік із пропуском транзитом n –4 пар пасажирських й n –6 пар вантажних поїздів.
Тип рейок - Р50, стрілочні переводи в сортувальному парку - марки 1/6, в інших парках - 1/9.
Вагові норми поїздів та подач на перегонах, що примикають до станції: збірні Рсб = 3200 т, маршрутні Рм = 4000 т, 
Тяга й локомотив - тепловозна, 2ТЭ10М.
Річний вантажообіг підприємств зони обслуговування станції наведено нижче.
| Підприємство |
НПЗ |
ЦОФ |
Буд.індустрія |
ЛПП |
Бази |
Вантажообіг загальний,
млн. тон у рік
|
3,18 |
2,71 |
1,28 |
7,2 |
4,8 |
Прибуття вантажу в % від загального вантажообігу,  |
0,55 |
0,1 |
0,6 |
0,4 |
0,5 |
| Охоплення підприємств маршрутними перевезеннями |
по відправленню, mот
, % |
0,95 |
0,98 |
| по прибуттю, mпр
, % |
0,65 |
--- |
--- |
--- |
--- |
Структура зовнішнього вантажообігу підприємств в % дана в таблиці 1.
Таблиця 1
Структура зовнішнього вантажообігу підприємства в %
| Укрупнені групи вантажів |
Піприємство |
Рухомий склад |
| НПЗ |
ЦОФ |
Буд.індустрія |
ЛПП |
Бази |
вид |
Коєфіцієнт вікористання вантажопідйомності, |
| Прибуття |
| Тарно-штучні |
--- |
10 |
5 |
20 |
20 |
КВ |
0,8 |
| Контейнери |
--- |
10 |
5 |
30 |
30 |
ПЛ |
0,6 |
| Сипучі |
20 |
--- |
65 |
--- |
--- |
ПВ |
1,0 |
| Довгоміри |
5 |
30 |
10 |
15 |
30 |
ПВ |
0,9 |
| Наливні |
65 |
40 |
10 |
30 |
20 |
ЦС |
1,0 |
| Інші |
10 |
10 |
5 |
5 |
--- |
ПВ |
1,0 |
| Відправлення |
| Тарно-штучні |
--- |
2 |
50 |
45 |
40 |
КВ |
0,8 |
| Контейнери |
--- |
--- |
10 |
45 |
40 |
ПЛ |
0,6 |
| Сипучі |
--- |
98 |
30 |
--- |
--- |
ПВ |
1,0 |
| Довгоміри |
--- |
--- |
--- |
--- |
--- |
ПВ |
0,9 |
| Наливні |
95 |
--- |
--- |
--- |
20 |
ЦС |
1,0 |
| Інші |
5 |
--- |
10 |
10 |
--- |
ПВ |
1,0 |
1. Розрахунок обсягу роботи станції
Об’єм роботи станції складається з обслуговування транзитного й місцевого руху.
1.1 Визначення вантажо – і вагонопотоків станції
Загальний об’єм роботи станції дорівнює сумі вантажообігу всіх підприємств зони обслуговування станції, тобто:

Загальні річні вантажопотоки прибуття й відправлення підприємства визначають по рівнянню:

де
,
тут - % прибуття вантажу від загального вантажообігу, приймається по вихідним данним до проектування.
.
Тоді річні вантажопотоки відправлення підприємства визначають по рівнянню:

Для НПЗ вантажопотік у прибутті і відправленні:


Для вантажопотік у прибутті і відправленні:


Для буд.індустріїї вантажопотік у прибутті і відправленні:


Для ЛПП вантажопотік у прибутті і відправленні:


Для баз вантажопотік у прибутті і відправленні:


Результати розрахунків заносяться в таблицю по формі 2.
Таблиця 2.
| Підприємство |
Вантажообіг загальний, млн. тонн нарік |
Вантажообігу прибутті, млн. тонн нарік |
Вантажообіг у відправленні, млн. тонн нарік |
| НПЗ |
3,18 |
1,749 |
1,431 |
| ЦОФ |
2,71 |
0,271 |
2,439 |
| Буд.індустрія |
1,28 |
0,768 |
0,512 |
| ЛПП |
0,72 |
0,288 |
0,432 |
| Бази |
4,8 |
2,4 |
2,4 |
| Підсумок |
12,69 |
5,476 |
7,214 |
Вантажообіг підприємств
Для спрощення розрахунків всі вантажі розбиваються на групи по їхніх характеристиках, так, наприклад: сипучі, контейнери, тарно-штучні, наливні й т.д.
Річні вантажопотоки по групах вантажу у відправленні й прибутті знайдемо по рівнянням:
, і 
де - коефіцієнт, що враховує прибуття вантажу даної групи на підприємство приписане до станції,
- коефіцієнт, що враховує відправлення вантажу даної групи з підприємства приписаного до станції.
Від річного вантажообігу необхідно перейти до добового.
Добові вантажопотоки по укрупнених групах вантажів рівні (прибуття, відправлення):
, і ,
де – коефіцієнт що враховує нерівномірність прибуття вантажів на станцію,
– коефіцієнт що враховує нерівномірність відправлення вантажів зі станції .
Добові вагонопотоки укрупнених груп вантажів по прибуттю й відправленню рівні:
, і 
тут - вантажопідйомність вагона, приймається рівної 63 т.;
- коефіцієнт використання вантажопідйомності вагона прийнятий за даними таблиці 1
Розрахунки виконуємо для всіх підприємств й результати розрахунків зводимо у таблицю 3.
Таблиця 3.
Прибуття й відправлення вантажів на підприємства
| Підприємство |
Рід вантажу |
Вантажообіг річний, т |
Вантажообіг добовий, т |
Добова кількість вагонів |
Усього вагонів |
| Прибуття |
Відправлення |
Прибуття |
Відправлення |
Прибуття |
Відправлення |
кількість, шт |
тип |
| 1
|
2
|
3
|
4
|
5
|
6
|
7
|
8
|
9
|
10
|
| НПЗ |
Тарно-штучні |
--- |
--- |
--- |
--- |
--- |
--- |
--- |
КВ |
| Контейнери |
--- |
--- |
--- |
--- |
--- |
--- |
--- |
ПЛ |
| Насипні |
349800 |
--- |
1341,699 |
--- |
21,297 |
--- |
22 |
ПВ |
| Довгоміри |
87450 |
--- |
335,425 |
--- |
5,916 |
--- |
6 |
ПВ |
| Наливні |
1136850 |
1359450 |
4360,520 |
3910,747 |
69,215 |
62,075 |
132 |
ЦС |
| Інше |
174900 |
71550 |
670,849 |
205,829 |
10,648 |
3,267 |
14 |
ПВ |
| ЦОФ |
Тарно-штучні |
27100 |
48780 |
103,945 |
140,326 |
2,053 |
2,784 |
5 |
КВ |
| Контейнери |
27100 |
--- |
103,945 |
--- |
2,737 |
--- |
3 |
ПЛ |
| Насипні |
--- |
2390220 |
--- |
6875,975 |
--- |
109,142 |
110 |
ПВ |
| Довгоміри |
81300 |
--- |
311,835 |
--- |
5,499 |
--- |
6 |
ПВ |
| Наливні |
108400 |
--- |
415,781 |
--- |
6,599 |
--- |
7 |
ЦС |
| Інше |
27100 |
--- |
103,945 |
--- |
1,642 |
--- |
2 |
ПВ |
| Буд.індустрія |
Тарно-штучні |
38400 |
256000 |
147,288 |
736,438 |
2,922 |
14,612 |
18 |
КВ |
| Контейнери |
38400 |
51200 |
147,288 |
147,288 |
3,897 |
3,897 |
8 |
ПЛ |
| Насипні |
499200 |
153600 |
1914,739 |
441,863 |
30,393 |
7,014 |
38 |
ПВ |
| Довгоміри |
76800 |
--- |
294,575 |
--- |
5,195 |
--- |
6 |
ПВ |
| Наливні |
76800 |
--- |
294,575 |
--- |
4,676 |
--- |
5 |
ЦС |
| Інше |
38400 |
51200 |
147,288 |
147,288 |
2,338 |
2,338 |
5 |
ПВ |
| ЛПП |
Тарно-штучні |
57600 |
194400 |
220,932 |
559,233 |
4,384 |
11,096 |
16 |
КВ |
| Контейнери |
86400 |
194400 |
331,397 |
559,233 |
8,767 |
14,795 |
24 |
ПЛ |
| Насипні |
--- |
--- |
--- |
--- |
--- |
--- |
--- |
ПВ |
| Довгоміри |
43200 |
--- |
165,699 |
--- |
2,922 |
--- |
3 |
ПВ |
| Наливні |
86400 |
--- |
331,397 |
--- |
5,260 |
--- |
6 |
ЦС |
| Інше |
14400 |
43200 |
55,233 |
124,274 |
0,877 |
1,973 |
3 |
ПВ |
| Бази |
Тарно-штучні |
480000 |
960000 |
1841,096 |
2761,644 |
36,529 |
54,795 |
92 |
КВ |
| Контейнери |
720000 |
960000 |
2761,644 |
2761,644 |
73,059 |
73,059 |
147 |
ПЛ |
| Насипні |
--- |
--- |
--- |
--- |
--- |
--- |
--- |
ПВ |
| Довгоміри |
720000 |
--- |
2761,644 |
--- |
48,706 |
--- |
49 |
ПВ |
| Наливні |
480000 |
480000 |
1841,096 |
1380,822 |
29,224 |
21,918 |
52 |
ЦС |
| Інше |
--- |
--- |
--- |
--- |
--- |
--- |
--- |
ПВ |
Вагони, що прибувають на підприємства приходять на станцію в збірних і маршрутних поїздах, теж відбувається й у режимі відправлення.
За даними таблиці 3 визначається добова кількість вагонів у прибутті й відправленні на станцію й складається таблиця добового балансу вагонів за формою таблиці 4, з урахуванням подачі-відправлення порожніх вагонів.
Таблиця 4
Баланс вагонів на станції
| Підприємство |
Прибуття |
Відправлення |
| навантажені |
порожні |
навантажені |
порожні |
| ПВ |
КВ |
ПЛ |
ЦС |
ПВ |
КВ |
ПЛ |
ЦС |
ПВ |
КВ |
ПЛ |
ЦС |
ПВ |
КВ |
ПЛ |
ЦС |
| НПЗ |
36 |
- |
- |
69 |
- |
- |
- |
- |
3 |
- |
- |
62 |
33 |
- |
- |
7 |
| ЦОФ |
6 |
2 |
2 |
6 |
103 |
- |
- |
- |
109 |
2 |
- |
- |
- |
- |
2 |
6 |
| Буд.індустрія |
37 |
2 |
3 |
4 |
- |
12 |
- |
- |
9 |
14 |
3 |
- |
28 |
- |
- |
4 |
| ЛПП |
2 |
4 |
8 |
5 |
- |
7 |
6 |
- |
1 |
11 |
14 |
- |
1 |
- |
- |
5 |
| Бази |
48 |
36 |
73 |
29 |
- |
18 |
- |
- |
- |
54 |
73 |
21 |
48 |
- |
- |
8 |
Відповідно до загальноприйнятої методики, кількість вагонів укрупнених груп вантажів що прибувають і відправляються в маршрутному й збірному поїздах визначаються по формулах:
і ,
і 
де – коефіцієнт, що враховує охват підприємства маршрутними перевезеннями, приймається по таблиці 2.
При цьому кількість вагонів в одному збірному й одному маршрутному поїздах дорівнює:
,
,
де й - вагові норми збірного й маршрутного поїздів, які дорівнюють =3200 т й =4000 т
і - вага одного вагона брутто збірного і маршрутного поїздів; приймаємо й 
Кількість вагонів у маршрутному составі з порожніх вагонів становить 50 шт.
Кількість вагонів в одній подачі визначається:
,
Подачі можуть бути повні або неповні.
За результатами розрахунків складаються таблиці 5 й 6.
Виходячи з даних таблиць 5 й 6 складаються таблиці необхідні для розрахунку шляхового розвитку сортувального парку (таблиці 7 й 8) і підсумкова таблиця 9.
Таблиця 5
Прибуття на станцію
| Підприємство |
Рід вантажу |
Кількість вагонів на добу |
Маршрутні поїзди |
Збірні поїзди |
| навантажені |
порожні |
Кількість вагонів |
Кількість поїздів |
Кількість вагонів |
Кількість поїздів (вагонів) на добу |
Кількість подач(вагонів) |
| Усього |
Охоплених маршрутизацією |
навантажені |
порожні |
навантажені |
порожні |
навантажені |
порожні |
| 1
|
2
|
3
|
4
|
5
|
6
|
7
|
8
|
9
|
10
|
11
|
12
|
13
|
| НПЗ |
ПВ |
3 |
3 |
33 |
- |
- |
- |
- |
3 |
33 |
| КВ |
- |
- |
- |
- |
- |
- |
- |
- |
- |
| ПЛ |
- |
- |
- |
- |
- |
- |
- |
- |
- |
| ЦС |
62 |
59 |
7 |
47 |
- |
1 |
- |
15 |
7 |
| усього |
65 |
62 |
40 |
47 |
- |
1 |
- |
18 |
40 |
1(40) |
3(58) |
| ЦОФ |
ПВ |
109 |
107 |
- |
94 |
- |
2 |
- |
15 |
- |
| КВ |
2 |
2 |
- |
- |
- |
- |
- |
2 |
- |
| ПЛ |
- |
- |
2 |
- |
- |
- |
- |
- |
2 |
| ЦС |
- |
- |
6 |
- |
- |
- |
- |
- |
6 |
| усього |
111 |
109 |
8 |
94 |
- |
2 |
- |
17 |
8 |
--- |
2(25) |
| Буд.індустрія |
ПВ |
9 |
- |
28 |
- |
- |
- |
- |
9 |
28 |
| КВ |
14 |
- |
- |
- |
- |
- |
- |
14 |
- |
| ПЛ |
3 |
- |
- |
- |
- |
- |
- |
3 |
- |
| ЦС |
- |
- |
4 |
- |
- |
- |
- |
- |
4 |
| усього |
26 |
- |
32 |
- |
- |
- |
- |
26 |
32 |
1(40) |
3(58) |
| ЛПП |
ПВ |
1 |
- |
1 |
- |
- |
- |
- |
1 |
1 |
| КВ |
11 |
- |
- |
- |
- |
- |
- |
11 |
- |
| ПЛ |
14 |
- |
- |
- |
- |
- |
- |
14 |
- |
| ЦС |
- |
- |
5 |
- |
- |
- |
- |
- |
5 |
| усього |
26 |
- |
6 |
- |
- |
- |
- |
26 |
6 |
--- |
2(32) |
| Бази |
ПВ |
- |
- |
48 |
- |
48 |
- |
1 |
- |
- |
| КВ |
54 |
- |
- |
- |
- |
- |
- |
54 |
- |
| ПЛ |
73 |
- |
- |
- |
- |
- |
- |
73 |
- |
| ЦС |
21 |
- |
8 |
- |
- |
- |
- |
21 |
8 |
| усього |
148 |
- |
56 |
- |
48 |
- |
1 |
148 |
8 |
4(150) |
8(156) |
Таблиця 6
Відправлення зі станції
| Підприємство |
Рід вантажу |
Кількість вагонів на добу |
Маршрутні поїзди |
Збірні поїзди |
| навантажені |
порожні |
Кількість вагонів |
Кількість поїздів |
Кількість вагонів |
Кількість поїздів (вагонів) на добу |
Кількість подач(вагонів) |
| усього |
Охоплених маршрутизацією |
навантажені |
порожні |
навантажені |
порожні |
навантажені |
порожні |
| 1
|
2
|
3
|
4
|
5
|
6
|
7
|
8
|
9
|
10
|
11
|
12
|
13
|
| НПЗ |
ПВ |
36 |
23 |
- |
- |
- |
- |
- |
36 |
- |
| КВ |
- |
- |
- |
- |
- |
- |
- |
- |
- |
| ПЛ |
- |
- |
- |
- |
- |
- |
- |
- |
- |
| ЦС |
69 |
45 |
- |
45 |
- |
1 |
- |
24 |
- |
| усього |
105 |
68 |
- |
45 |
- |
1 |
- |
60 |
- |
1(40) |
3(60) |
| ЦОФ |
ПВ |
6 |
- |
103 |
- |
100 |
- |
2 |
6 |
3 |
| КВ |
2 |
- |
- |
- |
- |
- |
- |
2 |
- |
| ПЛ |
2 |
- |
- |
- |
- |
- |
- |
2 |
- |
| ЦС |
6 |
- |
- |
- |
- |
- |
- |
6 |
- |
| Усього |
16 |
- |
103 |
- |
100 |
- |
2 |
16 |
3 |
--- |
1(19) |
| Буд.індустрія |
ПВ |
37 |
- |
- |
- |
- |
- |
- |
37 |
- |
| КВ |
2 |
- |
12 |
- |
- |
- |
- |
2 |
12 |
| ПЛ |
3 |
- |
- |
- |
- |
- |
- |
3 |
- |
| ЦС |
4 |
- |
- |
- |
- |
- |
- |
4 |
- |
| Усього |
46 |
- |
12 |
- |
- |
- |
- |
46 |
12 |
1(40) |
3(58) |
| ЛПП |
ПВ |
2 |
- |
- |
- |
- |
- |
- |
2 |
- |
| КВ |
4 |
- |
7 |
- |
- |
- |
- |
4 |
7 |
| ПЛ |
8 |
- |
6 |
- |
- |
- |
- |
8 |
6 |
| ЦС |
5 |
- |
- |
- |
- |
- |
- |
5 |
- |
| Усього |
19 |
- |
13 |
- |
- |
- |
- |
19 |
13 |
--- |
2(32) |
| Бази |
ПВ |
48 |
- |
- |
- |
- |
- |
- |
48 |
- |
| КВ |
36 |
- |
18 |
- |
- |
- |
- |
36 |
18 |
| ПЛ |
73 |
- |
- |
- |
- |
- |
- |
73 |
- |
| ЦС |
29 |
- |
- |
- |
- |
- |
- |
29 |
- |
| усього |
186 |
- |
18 |
- |
- |
- |
- |
186 |
18 |
5(200) |
10(204) |
Таблиця 7
Кількість поїздів, що відправляють на кожне підприємство
| Підприємство |
Кількість вагонів що
йдуть у збірних поіздах,
|
Кільість
подач, Noi
|
Кількість
збірних поїздів,
|
| НПЗ |
58 |
1(40) |
3(58) |
| ЦОФ |
25 |
--- |
2(25) |
| Буд.індустрія |
58 |
1(40) |
3(58) |
| ЛПП |
32 |
--- |
2(32) |
| Бази |
156 |
4(156) |
8(156) |
| Усього |
329 |
6 |
18 |
Таблиця 8
Кількість поїздів, що відправляють на станцію з кожного підприємства
| Підприємство |
Кількість вагонів що
йдуть у збірних поїздах,
|
Кільість
подач, Noi
|
Кількість
збірних поїздів,
|
| НПЗ |
60 |
1(40) |
3(60) |
| ЦОФ |
19 |
--- |
1(19) |
| Буд.індустрія |
58 |
1(40) |
3(58) |
| ЛПП |
32 |
--- |
2(32) |
| Бази |
204 |
5(200) |
10(204) |
| Усього |
373 |
7 |
19 |
Таблиця 9
Состав поїздів на ділянці дільнична станція - підприємства.
| Підприємство |
Кількість поїздів |
| Прибуття |
Відправлення |
| Маршрутні |
Збірні
(подачі)
|
Маршрутні |
Збірні
(подачі)
|
| НПЗ |
1 |
1(3) |
1 |
1(3) |
| ЦОФ |
2 |
-(2) |
2 |
-(1) |
| Буд.індустрія |
- |
1(3) |
- |
1(3) |
| ЛПП |
- |
-(2) |
- |
-(2) |
| Бази |
1 |
4(8) |
- |
5(10) |
| Усього на дільнич. станції |
4 |
6 |
3 |
7 |
Усього на дільнич.станції
підприємства(подачі)
|
- |
18 |
- |
19 |
2.
Розрахунок шляхового розвитку станції
Шляховий розвиток станції повинен забезпечувати виконання на станційних коліях всіх операцій з вагонами, передбачених технологічним процесом, з неодмінним дотриманням безпеки руху.
При проектуванні шляхового розвитку розраховується шляховий розвиток сортувального парку, парків прийому, відправлення, а також виставочні й витяжні колії.
Парки прийому й відправлення розраховуються для роботи з поїздами відправлення в зовнішню мережу, виставочний і сортувальний - на роботу з вагонами збірних поїздів що йдуть зі станції на підприємства й у зворотному напрямку.
2.1 Розрахунок
шляхового
розвитку в парку прийому
Кількість колій у парку прийому визначається у відповідності зі спеціалізацією для транзитних - , збірних - і маршрутних - поїздів по формулам:
, і
де , , - час заняття колії відповідно транзитним, маршрутним і збірним поїздами, воно визначається по технологічних картах або по формулах наведених нижче;
, , - розрахунковий інтервал прибуття відповідно транзитного, маршрутного й збірного поїздів.
  
Час заняття колії транзитним (вантажним) поїздом дорівнює:
 ,
тут - час заняття маршруту при прийомі поїзда на станцію, (розраховується по формулі 1);
- час виконання операцій на приймально-відправних коліях по технологічному процесу, хв. Відповідно до нормативів на технологічну обробку поїзда при прийомі відводиться в межах хв, приймаємо 70 хв.
- середнє очікування шляху графіка, дорівнює половині інтервалу відправлення поїздів у цьому напрямку , хв;
- час заняття маршруту при відправленні поїзда від моменту приготування до звільнення маршруту;

Рисунок 1. Схема для розрахунку відстані і і визначення часу заняття поїздом горловини станції.
Мінімальний час заняття маршруту при прийомі поїзда розраховується за схемою, наведеної на рис. 1, а.
У момент відкриття вхідного сигналу поїзд повинен перебувати від нього на відстані гальмового шляху l
т
плюс відстань lВ
, що проходить поїзд за час , необхідний на сприйняття машиністом показань вхідного сигналу:
(1)
де - час установки маршруту і відкриття сигналу при електричній централізації стрілок приймаємо рівною 1,5хв.
- час сприйняття сигналу бригадою локомотива, приймаємо до разрохунків 0,1 хв.
- гальмівний колія, приблизно рівний 1,3 км.
- довжина горловини прийому плюс довжина состава (див.рис. 1):
м
де - середня швидкість входу поїзда на станцію, км/годину;
16,7 – переводний коефіцієнт для перекладу значення швидкості з км/годину в м/хв.
- довжина горловини прийому поїздів – відстань від вхідного сигналу до граничного стовпчика на колії прийому, при електричній тязі дорівнює – 650 м, при тепловозній тязі – 400 м.
- довжина поїзда, приймаємо м.
Відповідно:
(2)
де - час установки маршруту і відкриття сигналу, зазвичай хв.
- час від моменту відкриття сигналу до рушання, приймаємо хв.
- середня швидкість виходу поїзда із станції з урахуванням розгону, приймаємо = 24 км/годину
- відстань, яку проходить поїзд до моменту звільнення маршруту, приймаємо = 3600 м.

Середній розрахунковий інтервал орієнтування може бути визначений співвідношенням:

де й - кількість транзитних поїздів відповідно вантажних і пасажирських у розглянутому напрямку;
– коефіцієнт, що враховує нерівномірність руху поїздів;
– коефіцієнт знімання вантажних поїздів пасажирськими.
Час очікування графіка зазвичай дорівнює половині інтервалу в даному напрямі .
Розрахунковий інтервал рівний:

де - мінімальний інтервал проходження вантажних поїздів на заданій ділянці за умовами автоблокування.
Тоді хв.
Час заняття колії збірним поїздом по прибуттю рівний:
 
і час заняття колії маршрутним поїздом:
 
тут - час прибуття, відправлення і перестановки поїзда на витяжнуколію розвантажувального пристрою, приймається 3÷5 хв., для кожного з них, приймаємо хв;
- технологічний час обробки маршрутного й збірного поїздів (визначається по технологічних картах) середня величина обробки состава хв., хв.; приймаємо до рахрохунків хв, а хв.;
- додатковий час очікування відправлення або перестановки із-за неузгодженості маршрутів руху.

де - коефіцієнт резерву пропускної спроможності, рівний 1,15;

- максимальна пропускна спроможність залізничної лінії, обслуговуваною дільничною станцією, в парку прийому; для одноколійної ділянкипри автоматичному блокуванні.

де - середня швидкість руху на коліях дільничної станції;
км – довжина станційних колій для поперечного профілю(довжина складу плюс довжина горловини).
10,2 – коефіцієнт приймається при однопутной лінії.

Розрахунковий інтервал прибуття маршрутних ( ) і збірних ( ) поїздів визначимо по співвідношеннях:


де - коефіцієнт резерву пропускної спроможності, рівний 1,15;
Nм –кількість маршрутних поїздів;
Nс – кількість збірних поїздів;
N – cума маршрутних і збірних поїздів


Отриману кількість колій по приведеним вище формулам округлємо до цілого числа в більшу сторону.
А загальна кількість колій в парку прийому з урахуванням головного складе:

2.2 Розрахунок путнього розвитку в парку відправлення
Кількість колій в парку відправлення визначається таким же чином, як і вище було визначена кількість колій в парку прийому,тільки для умов відправлення транзитних, збірних і маршрутних поїздів.
Для транзитних маршрутів:

де - час заняття маршруту при прийомі поїзда на станцію,приймаємо = 3.59 хв (див. формулу (1));
- час заняття маршруту при відправленні поїзда від моменту приготування до звільнення маршруту, приймаємо = 10.98 хв (див. формулу (2));
- час виконання операцій на приймально-відправних коліях по технологічному процесу, і, хв. Відповідно до нормативів на технологічну обробкупоїзда при відправленні відводиться хв, до рахрохунків приймаємо =70 хв;
- середнє очікування колії графіка, дорівнює половині інтервалу відправлення поїздів в цьому напрямі, .
Для маршрутних поїздів час заняття у відправленні:

Для збірних поїздів час заняття у відправленні:
 
тут - час прибуття, відправлення поїзда, приймається 3 - 5 хв., для кожного з них, тоді приймаємо хв;
- технологічний час обробки маршрутного й збірного поїздів (визначається по технологічних картах) середня величина обробки состава хв., хв., до разрохунків приймаємо відповідно хв, а хв
- додатковий час очікування відправлення або перестановки із-за неузгодженості маршрутів руху.


тут - загальна кількість поїздів у відправленні.


де - час на перестановку поїздів;
- відстань від колій сортувального парку до колій парку відправлення, приймається по класу станції, орієнтовно км.;
км/годину - швидкість руху при маневрах.
Розрахункові інтервали відправлення рівні:
- для транзитних поїздів:

- для маршрутних поїздів:

- для збірних поїздів:

тут , - коефіцієнти що враховують завантаження колій і втрати часу по відправленню; по нормативах , .
=20, =3, =7 - відповідно кількість транзитних, маршрутних і збірних поїздів, що відправляються зі станції.
Кількість колій в парку відправлення визначається відповідно до спеціалізації для транзитних , збірних і маршрутних поїздів по формулах:
,
де , , - час заняття колії відповідно транзитним, маршрутним і збірним поїздами, визначається по технологічних картах або по формулах наведених нижче;
, , - розрахунковий інтервал прибуття відповідно транзитного, маршрутного і збірного поїздів.
; ;
Отримане розрахункове кількість колій округляється до найближчого цілого числа.
Загальна кількість колій в парку відправлення з урахуванням головного:
 
2.3 Розрахунок путнього розвитку в сортувальному парку
Сортувальний парк містить групу колій для розформування і формування поїздів.
Кількість колій сортувального парку можна визначити по формулі:

де - кількість колій в напівпарку розформування поїздів; - кількість колій в напівпарку формування поїздів; - кількість ходових колій.
Кількість
колій
для розформування п
о
їздів:
 
де - кількість колій для нагромадження вагонів певного підприємства; встановлюється для кожного підприємства з розрахунку:
, (3)
де - добове прибуття вагонів в збірних поїздах на i-ое підприємство;
- норма від знімання вагонів з одноїколії сортувального парку, приймаємо від добового прибуття вагонів.Згідно з [1], стр. 142 приймаємо = 75;
Кількість колій для нагромадження вагонів встановлюється для кожного підприємства з розрахунку приведеного у формулі(3). Проведені розрахунки зведені в таблиці 10.
Таблиця 10
| Підприємства |
К-ть вагонів в збірних поїздах |
К-ть
подач Noi
|
К-ть збірних
поїздів
|
Кількість колій (mп
) прийняте за розрахунками |
| НПЗ |
58 |
3 |
1 |
1 |
| ЦОФ |
25 |
2 |
- |
1 |
| Буд.індустрія |
58 |
3 |
1 |
1 |
| ЛПП |
32 |
2 |
- |
1 |
| Бази |
156 |
8 |
4 |
3 |
| РАЗОМ |
329 |
18 |
6 |
7 |
- кількість спеціальних колій, приймається однаколія на кожних 500 вагонів добового відправлення в збірних поїздах;
- кількістьдодаткових колій сортувального парку, що враховує нерівномірність перевезень при Nр
≤ 24 поїздів в добу , згідно з [1], стр. 144.
Кількість колій для формуванняп
оїздів
, що йдуть в зовнішню мережу, визначається по формулі:
 
де - кількість спеціальних колій, приймається 1 колія на кожних 500 вагонів добового відправлення в збірних поїздах;
- кількість основних колій, приймається виходячи з призначення формувань по співвідношенню:
(4)
де - нормативнекількість вагонів на 1 колію за добу, по відправленню
- добова кількість вагонів, що відправляються із станції на зовнішню мережу в збірних згідно з [1], стр. 144 n ≤ 250 n =100
Кількістьосновнихколій визначається відповідно до формули(4), проведені розрахунки приведені в табл.11
Таблиця 11
| Підприємства |
К-ть вагонів в збірних поїздах |
К-ть
подач Noi
|
К-ть збірних
поїздів
|
Кількість колій (mо
) прияняте за розрахунками |
| НПЗ |
60 |
3 |
1 |
1 |
| ЦОФ |
19 |
1 |
- |
1 |
| Буд.індустрія |
58 |
3 |
1 |
1 |
| ЛПП |
32 |
2 |
- |
1 |
| Бази |
204 |
10 |
5 |
3 |
| РАЗОМ |
373 |
19 |
7 |
7 |
- кількість додаткових колій сортувального парку, що враховує нерівномірність перевезень при N ≤ 24 поїздів в добу (див. [1]).
Таким чином, кількість колій сортувального парку :
=10+8+2=20
2.4 Розрахунок путнього розвитку виставкового парку і числа витяжних колій
Виставочний парк служить для нагромадження подач що надходять з підприємств на станцію, а у випадку зайнятості колій або їхнього ремонту в
парку відправлення з колій виставочного парку може виконуватись відправлення поїздів.
Число колій у виставочному парку дорівнює:
,
де – кількість головних або ходових колій, приймається одна колія.
Р – кількість подач, необхідних для накопичення поїздів до вагової норми у виставковому парку, приймаємо рівною 2.
Кількість витяжних колій в сортувальному парку визначається по числу сортувальних пристроїв і парків по приведеній нижче формулі:

де - число гірок на станції, приймаємо рівною 1
- кількість сортувальних парків, = 1
2.5 Розрахунок вантажних пристроїв
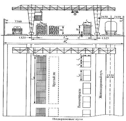
П'ять підприємств, що обслуговуються станцією, мають власне залізничне господарство - НПЗ, ЦОФ, ЛПП, Будівельна індустрія та Бази. Природно, що вантажі, що прибувають на їх адресу в збірних поїздах можуть передаватися безпосередньо на під'їзні колії цих підприємств. Але це в тому випадку, якщо вагони завантажені тільки їхнім вантажем. Але деяка частина вантажів як у відправленні так й у прибутті проходять через вантажні пристрої (склади) станції.
Вважаємо, що цілочисельна частина середнього числа вагонів одного адресата (у відправленні й прибутті) що йдуть у збірному составі буде обслуговуватися на станції без залучення вантажних пристроїв станції, а дробова частина, коли в одному вагоні втримуються вантажі різних адресатів - проходить через склади.
У цьому випадку доставка вантажів з підприємств на склади й у зворотному напрямку здійснюється як правило місцевими АТП.
Таким чином, на проектній станції для виконання вантажних операцій споруджують в основному покриті склади звичайного користування для тарно-штучних вантажів, криті й прості платформи для контейнерів і довгомірів, площадки для насипних вантажів і техніки різного призначення. На окремих площадках розташовують ємності для ГСМ й іншої рідкої продукції.
Вибір схеми вантажного двору здійснюється виходячи з конкретних умов у частині компонування станції і її взаємним розташуванням з населеним пунктом.
Для зручності розрахунків складів за даними таблиці 3 для укрупнених груп вантажів складається відомість вагонів збірних поїздів, що надходять на переробку через вантажний двір за формою таблиці 12.
2.5.1
Розрахунок площі і довжини критого складу для зберігання тарно-штучних вантажів:
Площі для переробки й складування тарно-штучних вантажів по прибуттю та відправленню:
(
5
)
деtxр
– термін зберігання вантажів, доба (2 сут – по прибуттю; 1,5 сут – по відправленню);
kпр
– коефіцієнт, що враховує розмір додаткової площі для проходів, проїздів і ін. ( kпр
= 1,5)
Рн
— середня кількість вантажу, що укладається на 1 м2
корисної площі складських приміщень (0,85 /м2
).
Qс
– добовий вантажообіг тарно-штучних вантажів, приймаємо Qс
=300т.
α = 1,2 - коефіцієнт нерівномірності прибуття ;
β = 0,25 - коефіцієнт, що враховує перевантаження вантажу, що прибуває, безпосередньо з вагону в автомобіль.
Таблиця 12.
Відомість вагонів збірних поїздів, що йдуть на переробку
через вантажний двір
| Група вантажів |
Вагони підприємств, що переробляються на вантажному дворі станції |
Вагонів за
добу
|
Тип вагона |
Розрахункова вантажопідйомність вагона, т |
Маса вантажу, т |
| НПЗ |
ЦОФ |
Буд.індустрія |
ЛПП |
Бази |
| приб |
отпр |
приб |
отпр |
приб |
отпр |
приб |
отпр |
приб |
отпр |
розрахунок |
факт |
| 1
|
2
|
3
|
4
|
5
|
6
|
7
|
8
|
9
|
10
|
11
|
12
|
13
|
14
|
15
|
16
|
| Тарно-штучні |
- |
- |
0,053 |
0,784 |
0,922 |
0,612 |
0,384 |
0,096 |
0,529 |
0,795 |
4,175 |
5 |
КВ |
50 |
250 |
| Контейнери |
- |
- |
0,737 |
- |
0,897 |
0,897 |
0,767 |
0,795 |
0,059 |
0,059 |
4,211 |
5 |
ПЛ |
38 |
190 |
| Насипні |
0,297 |
- |
- |
0,142 |
0,393 |
0,014 |
- |
- |
- |
- |
0,846 |
1 |
ПВ |
63 |
63 |
| Довгоміри |
0,916 |
- |
0,499 |
- |
0,195 |
- |
0,922 |
- |
0,706 |
- |
3,238 |
4 |
ПВ |
57 |
228 |
| Наливні |
0,215 |
0,075 |
0,599 |
- |
0,676 |
- |
0,260 |
- |
0,224 |
0,918 |
2,967 |
3 |
ЦС |
63 |
189 |
| Інші |
0,648 |
0,267 |
0,642 |
- |
0,338 |
0,338 |
0,877 |
0,973 |
- |
- |
4,083 |
5 |
ПВ |
63 |
315 |
Загальна площа складу по прибуттю і відправленню буде дорівнювати:
Довжина складу визначається по розрахунковій площі й типовій ширині приміщення. При ширині bск
= 18 м і розрахункової площі м2
загальна довжина складе:

У покритих складів улаштовують рампи шириною 3,2 м з боку залізничної колії й 1,7 м з боку під'їзду автомобілів.
Тоді загальна ширина складу складе: 18 + 3,2 + 1,7 = 22,9 м.
Щодоби під вивантаження в покритий склад прибуває з тарно-штучними вантажами:
вагонів
Оптимальне число подач і збирань:
подачі.
де - вартість 1 вагоно-години простою вагона, грн.;
- вартість 1 маневрової локомотиво-години, для локомотива ЧМЕЗ грн.
Визначимо необхідну довжину фронту вантажно-розвантажувальних робіт, як з боку залізничної колії, так і з боку під'їзду автомобілів.
Довжину фронту вантажно-розвантажувальних робіт з боку залізничної колії, необхідна для операції одночасно з усіма вагонами поданої групи (подачі) визначимо:

де — число вагонів, що подаються до фронту за добу;
– довжина фронту, займана одним вагоном, з урахуванням проміжків при розміщенні вагонів у дверей складу, обумовлені по процентному співвідношенню вагонів (роду й осности) у подачі, м (для орієнтовних розрахунків = 15 м).
– число подач, обумовлене формулою проф. И.Г. Тихомирова [14].
Довжина фронту з боку автомобільного транспорту при установці автомобілів уздовж складу визначимо :
м
де QС
– добовий вантажообіг, т;
αа
— коефіцієнт добової нерівномірності підвозу або вивозу вантажу автотранспортом, (αа
= 1,5);
- середня тривалість навантаження або розвантаження одного автомобіля, 0,5 год.;
- середнє завантаження одного автомобіля, 2 т;
Т – тривалість роботи вантажного двору, 24 години;
- фронт, необхідний для однієї машини, м., залежить від розташування автомобілів біля складу.
З порівняння =77,21 м, =37,5 м і = 14,4 м бачимо що загальна довжина трьох складів забезпечує необхідний фронт вантажно-розвантажувальних робіт як з боку залізничної колії, так і з боку під'їзду автомобілів. Взаємодія вантажної роботи станції з технічною, графіком руху поїздів і з роботою інших видів транспорту забезпечено, якщо сумарний час на виконання всіх вантажних операцій (вивантаження, перестановки, навантаження, переваження й ін.) у даному пункті Тгр дорівнює або менше інтервалу подачі на вантажний фронт.
ч
Коли простій вагонів на станції заданий, то число подач:

де — сумарний час, необхідний для виконання технічних операцій з місцевим вагоном (прибуття, розформування, подача, розміщення, об'єднання, збирання, нагромадження, формування, відправлення й ін.); згідно із хронометражними даними годин.
Якщо tПР
= 12 ч, то подач.
2.5.2 Визначення площі, довжини і ширина майданчика для переробки контейнерів двохконсольним козловим кран
ом
Площа контейнерного майданчика Fk
залежить від її місткості Еk
і площі , займаної одним контейнером, з урахуванням проходів і проїздів kпр
, м2
.

Загальна місткість контейнерного майданчика, контейнеромісць,

де - місткість площадок для переробки в середньому в добу контейнерів, відповідно, місцевих, транзитних і для нагромадження (при сортуванні) по призначеннях плану формування.
Для кожної категорії контейнерів, що переробляються, (місцевих км
, транзитних ктр
, тих що сортируються кс,
приймаємо км
=ктр
=кс
=12·2=24):
контейнер;
контейнери;
контейнери;
де ωк
— частка транзитних контейнерів, установлюваних на площадку під нагромадження (0,4);
Тн - розрахунковий строк зберігання контейнерів під нагромадженням Тн = 1 доба;
Площа, займана одним контейнером:
м2
З урахуванням того що коефіцієнт обліку проходів і проїздів приймаємо рівним КПР
= 1,5, корисна площа контейнерного майданчика для зберігання контейнерів складе:
м2
Ширіна площі залежить від прийнятого способу механізації (двохконсольний козловий кран) вантажопідйомністю 5 т з прольотом, =16 м (див. рис. 2):
м;
Довжина контейнерного майданчика:двохконсольного козлового крану:
м;
Довжину контейнерного майданчика необхідно зіставити з фронтом навантажувально-розвантажувальних робіт з боку залізничних колій і під'їзду автомобілів, обчислення проводяться аналогічно діям приведеним в пункті 2.5.1
Рисунок 2. Схема механізації переробки контейнерівкозловим краном
Потрібний фронт робіт:
- з боку залізничних колій:
м;
- з боку під'їзду автомобілів:
м
де - кількість контейнерів, що встановлюються на автомобіль; (довжина чотиривісного піввагона — 15 м).
Загальна ширина майданчика з урахуванням автомобільної дороги і залізничних колій складедвохконсольного козлового крану:
м (див. Рис.2)
2.5.3 Визначення складської площі для переробки і зберігання довгомірних вантажів (круглого лісу і пиломатеріалів), а також довжини і ширини майданчика при переробці лісових вантажів двохконсольним козловим краном
Корисна площа складу:
,м2
де — кількість штабелів (див. табл.12);
- площа, займана одним штабелем;
;
де — довжина;
— ширина одного штабелю.
Ширина штабеля при прийнятому способі укладання (див. рис. 3
) звичайно дорівнює довжині колоди (дошки), а довжина для круглого лісу – до 400 м, пиломатеріалів — подвоєній довжині дошки.
При довжині колоди 6 м і дошки 4 м площа одного штабеля круглого лісу (якщо довжина штабеля = 50 м):
м2
;
пиломатеріалів:
м2
.
Місткість штабеля залежно від його обсягу , щільності вантажу γ і коефіцієнта щільності укладання φ, т :
.
Об'єм штабелю круглого лісу, м3

Рисунок 3. Схема механізації переробки лісових вантажів козловим краном.
Об'єм штабелюпиломатеріалів, м3

де — довжина штабелю пиломатеріалів, м;
- довжина дошки і колоди;
Н — висота штабелю
h — висота подштабельного підстави.
При м; Н = 5 м; = 6 м; = 4 м и h = 0,2 м обсяг штабеля:
· круглого лісу:
м3
· пиломатеріалів:
м3
.
Місткість штабеля при γ = 0,56 т/м3
й φ= 0,6, відповідно:
т;
т;
Загальна необхідна площа складу
м2
При обладнанні площадки козловим краном із прольотом = 16 м її корисна ширина:
м
а довжина:
м
2.5.4
Визначення довжини і висоти підвищеної колії для вивантаження насипних вантажів з піввагонів і розрахування його місткості
Щодоби під вивантаження прибуває чотиривісних піввагонів, число подач-збирань їх на вантажний двір хпу
= 2.
Довжина розвантажувальної частини підвищеної колії, м,
,
де — довжина вагона;
а - величина, що враховує неточність установки всієї подачі на розвантажувальному фронті; приймається рівній довжині одного - трьох вагонів залежно від загальної довжини подачі.
Довжина розвантажувального фронту при довжині чотиривісного піввагона м.
м.
Висота підвищеної колії (див. рис. 4), м

де — число піввагонів, що розвантажують на одному місці (приймається рівним 2);
— маса вантажу в одному піввагоні, т ( = 60 т);
γ — щільність вантажу, т/м3
, для вугілля γ = 0,9 т/м3
;
φ - коефіцієнт заповнення відвала (0,8 - 0,9);
ρ — кут природного укосу, град (для насипних вантажів ρ = 450
).
м.
Приймаємо типову висоту підвищеної колії 3 м.
Довжина похилої частини підвищеної колії (при i = 20 %):
м.
Місткість складу по обидва боки підвищеної колії, т

де F — площа перетину вантажу у відвалі, м2
(див. рис. 4):

- ширина відвала, м (залежить від висоти підвищеної колії й кута природного укосу при = 3 м й ρ = 45°, );
φ - коефіцієнт заповнення відвала (φ =0,8).

Рисунок 4. Схема для визначення місткості складу у підвищенній колії
При м2
; м; γ = 0,85 т/м3
й φ = 0,80 місткість складу по обидва боки підвищеної колії складе
т
а маса вантажу в одній подачі:
т.
Як бачимо, місткість складу значно перевищує масу вантажу в одній подачі. Отже, до проектування приймаємо м.
2.5.5
Розрахунок площі і довжини критого складу для зберігання інших вантажів (тарно-штучних)
Площі для переробки й складування тарно-штучних вантажів по прибуттю та відправленню (по фромулі 5):
деtxр
– термін зберігання вантажів, доба (2,5доби – по прибуттю; 2доби – по відправленню);
kпр
– коефіцієнт, що враховує розмір додаткової площі для проходів, проїздів і ін. ( kпр
= 2)
Рн
— середня кількість вантажу, що укладається на 1 м2
корисної площі складських приміщень (0,85 т/м2
).
Qс
– добовий вантажообіг тарно-штучних вантажів, приймаємо Qс
=378 т.
α = 1,2 - коефіцієнт нерівномірності прибуття ;
β = 0,25 - коефіцієнт, що враховує перевантаження вантажу, що прибуває, безпосередньо з вагону в автомобіль.
Загальна площа складів по прибуттю і відправленню буде дорівнювати:
Довжина складу визначається за розрахунковою площею і типовою шириною приміщення. При ширині bск
= 18 м і розрахунковій площі м2
загальна довжина складе:
м.
У покритих складів улаштовують рампи шириною 3,2 м з боку залізничної колії й 1,7 м з боку під'їзду автомобілів.
Тоді загальна ширина складу складе: 18 + 3,2 + 1,7 = 22,9 м.
Оптимальне число подач і збирань:
подачі.
де - вартість 1 вагоно-години простою вагона, грн.;
- вартість 1 маневрової локомотиво-години, для локомотива ЧМЕЗ грн.
На підставі техніко-економічних розрахунків, згідно з (6):
подачі.
Визначимо необхідну довжину фронту вантажно-розвантажувальних робіт, як з боку залізничної колії, так і з боку під'їзду автомобілів.
Довжину фронту вантажно-розвантажувальних робіт з боку залізничної колії, необхідна для операції одночасно з усіма вагонами поданої групи (подачі) визначимо:
м
Довжина фронту з боку автомобільного транспорту при установці автомобілів уздовж складу визначимо :
м.
2.5.6 Розрахунок площі резервуару для наливних вантажів
Для наливних вантажів площа складу визначається по формулі:
(8)
де Qс
– добовий вантажообіг наливних вантажів;
tхр
- строк зберігання вантажів, 2 доби;
– коефіцієнт нерівномірності прибуття або відправлення вантажів;
– коефіцієнт, що враховує розміри додаткової площі, необхідні для проїздів, проходів й ін.;
рн
– норма навантаження на 1 м площі складу, т/м ; значення р приймається відповідно до відомчої Інструкції, звичайно для наливних вантажів р = 2,5 т/м ;
ρ – щільність ГСМ, звичайно приймається ρ = 0,93 т/м3
.
Площа складу-резервуару по прибуттю складе, згідно формулі(8):

Площа складу-резервуару по відправленню складе, згідно формулі(8):

Загальна площа складу по прибуттю і відправленню складе:

3. Розрахунок гірки середньої потужності
Для розформування й формування поїздів на проектній станції застосуємо гірку середньої потужності (далі ГСП), тому що розрахунок шляхового розвитку сортувального парку дав такі результати: число колій для розформування составів з урахуванням ходової колії – 10, число колій формування составів – 8.
3.1 Розрахунок висоти гірки
Висота гірки визначається різницею відміток між вершиною гірки й розрахунковою точкою найбільш важкої по опору підгіркової сортувальної колії (див. рис. 5
).
Розрахункова точка для гірок малої потужності від граничного стовпчика найбільш важкої для руху колії приймається на відстані 80 м.


Рисунок 5. Схема сортувальної гірки
де – розрахункова довжина від вершини гірки до розрахункової точки колії сортувального парку, вибирається по координатах (х) елементів горловини сортувального парку із плану парку, м.;
9 - сили опору кривих, включаючи перевідні, які представляють собою суму кутів повороту при русі відчеплення в градусах.
Відчеплення - група вагонів (2 і більше) одночасно розпускаються з гірки.
20n - питома робота сил опору на стрілочних хрестовинах, кгс/м;
n – число стрілочних переводів (СП) на маршруті скочування відчеплень на відстані ; n=4;
g' = 9,6 м/с - прискорення сили ваги з урахуванням обертових частин вагона; при масі вагона брутто 50, 70, 80 т ці значення відповідно рівні 9,48; 9,58; 9,6.
V0
– початкова швидкість відчеплення (м/с).
Початкова швидкість відчеплення для гірки малої потужності:
- середньої потужності – 1,5 м/с.
- основний питомий опір руху розрахункового поганого бігуна, приймаємо 5,7кгс/тс (див.Додаток 19);
- додатковий питомий опір руху від повітряного середовища, кгс/тс.
∑α =27
 - енергетична висота відповідної розрахункової швидкості розпуску состава, м;
-величина прискорення сили ваги вагона з урахуванням впливу інерції його обертових мас, м/с2
;
-коефіцієнт, що враховує вплив інерції обертових мас вагона;
n0
-число осей розрахункового бігуна, дорівнює 4;
q
— вага розрахункового вагона брутто, тс.
Висота ГСП повинна забезпечити прохід поганого бігуна при несприятливих умовах скочування до розрахункової точки самої важкої колії по опору руху, тому необхідно зробити попередні розрахунки деяких величин.
Розрахункова довжина від вершини гірки до розрахункової точки колії сортувального парку:
Lр= а+b+lрт
де а – відстань від вершини гірки до першої тормозної позиції. Вона складає 56 м;
b – довжина від першої тормозної позиції до граничного стовпчика розрахункового шляху. Приймаємо b=235 м;
lрт=80 м;
Тоді Lр= 56+235+80=371 м

тут результуюча швидкість від складової швидкості вітру й вагона, приймаємо 5 м/с;
t0
- температура повітря (за технічним завданням, приймаємо -20С°);
Сх – коефіцієнт повітряного опору, він дорівнює 1,46 (Додаток 19);
S – площа поперечного розрізу вагона, приймаємо S=9,7 м² (Додаток 19);
q – 9,81 м/с;
,
З огляду на всі розрахунки висота гірки, буде дорівнювати:

3.2 Проектування поздовжнього профілю сортувальної гірки
Схема проектування ГМП із рекомендованими величинами ухилів що показані на рис. 9.

Рисунок 9. Профіль гірки малої потужності.
l
cч
–
швидкісна частина; l
тп
– гальмова позиція; l
сз
– стрілочна зона; l
сл
– сортувальні лінії.
Насувна частина - відстань від ГС останнього СП передгіркової горловини парку прийому до ВГ, і її довжина звичайно приймається рівною 150 м, при цьому перед горбом гірки робиться підйом з ухилом 8...120
/00
.
У цілому довжина шляху перед гіркою становить:
м.
де - довжина состава, що підлягає розформуванню.
Схема профілю горба гірки показана на рис. 10.

Рисунок 10. Профіль горба гірки.
Тангенси сполучних кривих приймаються за умовну площадку на горбі гірки довжиною lу, яка дорівнює сумі довжин тангенсів:

З розрахунку висоти гірки відомо, що відстань від ВГ до першої розділової стрілки становить 3,37 м., при цьому гальмова позиція, розміщена між стиками рейок, займає 20,26 м [1, 3].
Тоді, на ділянку швидкісного спуска відводиться 24 м, а ділянка стрілочної зони (із плану) має довжину 96,03 м, і ділянка сортувальних колій - 50 м.
Сумарна необхідна потужність гальмових позицій спускної частини гірки визначається з формул:

де Ку – коефіцієнт збільшення необхідної потужності гальмових позицій спускної частини гірки, приймаємо Ку
= 1,2.

Використовуючи результати попередніх розрахунків одержимо:



Визначимо кількість сповільнювачів КНП-5 потужністю 1,2 мэн. в кожний для зупинки дуже гарного бігуна наприкінці першої гальмової позиції:
,
приймаємо 1.
Сумарна наявна потужність гальмових засобів ГМП із 1 гальмовою позицією повинна забезпечувати вхід дуже гарного бігуна на другу позицію, скочування, зупинку 4-хвісьового вагона, тому на 1-ої гальмовій позиції досить установити один сповільнювач КНП-5 потужністю 1,2 мэн.в.
4. Проектування станції
4.1 Вибір місця будівництва станції
Відповідно до заданих координат по карті масштабу 1:
5000 або 1:
2500 розташовуються підприємства зі станції примикання.
Розмір площадок приймається, км:
— ЦОФ та Бази 0,5 х 0,5
— НПЗ 1 х 1
— Буд.індустрія 1 х 1
— ЛПП 0,5 х 0,5
Виходячи з умов місцевості обираємо площадку для будівництва дільничної станції й виконуємо трасування залізничних колій від станції примикання УЗ до дільничної станції й до підприємств.
Граничний ухил при трасуванні під’їздних колій що з’єднують підприємства зі станцією залежить від маси поїздів, серії локомотивів що звертаються на цих ділянках, опору руху и може бути вирахуваний за наступною формулою:

де Fкр - розрахункове значення сили тяги локомотива, кгс або кН (див. Додаток 22
);
Q – розрахункова маса локомотива, т;
w’ - основний питомий опір руху локомотива, кгс/т;
при русі на ланковій колії:
,
тут V- розрахункова швидкість локомотива в режимі руху на розрахунковому підйомі без перегріву двигунів, км/годину.
P – маса поїзда брутто,т
w” - основний питомий опір руху вантажних вагонів, кгс/т.
при русі на ланковій колії

тут q0
- маса, що приходиться на вісь колісної пари, (q0
> 6 т).
Граничний ухил профілю колій 250
/00
.
На підставі порівняння 3 - 4 варіантів трасування вибирається найбільш прийнятний варіант розташування площадки, що і рекомендується для будівництва станції. Обраний оптимальний варіант розташування дільничної станції переноситься на кальку й виконується по двох поздовжніх профілях під'їзних колій до підприємств і до станції примикання, які даються в додатку до розрахунково-пояснювальної записки проекту нової станції.
Вибір місця будівництва проводиться в наступній послідовності:
- визначення напрямку проектованої лінії й складання схематичного поздовжнього профілю. Після визначення по вихідних координатах місцезнаходження підприємства й вибору декількох можливих площадок під станцію примикання будуються повітряні лінії, що з'єднують станцію примикання з проектованою станцією й дільничною станцією з підприємствами. Для обходу контурних і висотних перешкод по кожній повітряній лінії вибирають фіксовані точки, у результаті чого може виникнути кілька варіантів траси. Оцінюються повітряно-ламані лінії, вибирається оптимальний варіант і складаються поздовжні профілю в масштабі карти по головній і під'їзній коліях згідно обраним варіантом.
Побудова схематичного профілю виконується в наступній послідовності: на кальку переносять повітряно-ламану лінію, на яку за допомогою горизонталей виносять оцінки; розраховують план «кривих і прямих»; на кальці вписують кругові криві й переносять на них відмітки; роблять разграфку профілю й у масштабі карти виносять на профіль відстані, напроти яких проставляють чорні відмітки; спроектувати проектну лінію, визначити робочі оцінки й обчислити обсяги грабарств.
Розрахунок елементів кругових кривих виконують по обмірюваному куті повороту й обраному розділу кривої:

Розрахунок головних точок кривих і прямих ділянок траси виконують по формулах:
ВУi
ПК...
_ВУi
ПК... +
_ Li н
Тн. Дi .
+
НК i
ПК... - ВУi н
ПК...
ДО i
. Тi
КК i
ПК... НКi
ПК...
l1
= ПК х НК1
Кi
.
l2
= ПК х НК i+1
- ПК i
х НК i
ККi
ПК...
у даних формулах - прямі ділянки траси; - відстань між вершинами кутів повороту (ВУ).
Оцінку й вибір оптимального варіанта для пророблення виконують на основі таблиці 13.
Таблиця 13.
Основні показники порівняння варіантів
| № п/п |
Найменування |
Варіанти |
| 1 |
2 |
3 |
| 1. |
Сума подоланих висот, м туди назад |
| 2. |
Керівний ухил, 0
/00
|
| 3. |
Довжина елементів з керівним ухилом  |
| 4. |
Довжина площадок |
| 5. |
Довжина кривих і прямих ,км |
| 6. |
Відсотки кривих ,% |
| 7. |
Число кривих на 1 км кривих |
| 8. |
Максимальних радіус кривої, м |
| 9. |
Відсотки кривих з мінімальним радіусом |
| 10. |
Середній радіус кривих |
| 11. |
Кількість штучних споруджень |
| 12. |
Кількість грабарств, м3
|
| 13. |
Кількість перетинань із існуючими дорогами |
4.2 Проектування парків і горловини та розміщення основних пристроїв на станціях
Конструювання горловини і парків станції є найбільш трудомісткою частиною проекту. Тут враховуюємо наступні чинники:
· горловина має бути компактною і забезпечувати максимум паралельних пересувань при прийомі і відправленні поїздів, маневровій роботі;
· кількість стрілочних переводів, що укладаються на головних шляхах, має бути мінімальною;
· у кожній горловині сортувального парку проектуються витяжна колія і вихід на перегін зі всіх або частини колій;
· довжина витяжних колій повинна вміщати состави, що переробляються (з боку сортувальної гірки вона дорівнює довжині прийомо-відправних колій, з боку вантажного двору - половині довжини колій);
· з витяжних колій повинна забезпечуватися можливість виїзду маневрових локомотивів на всі колії станції;
· з території локомотивного господарства необхідно передбачати не менше двох виходів на станційні колії;
· у центральній горловині станцій подовжнього і напівподовжнього типів на двоколійних лініях слід передбачати укладання головного шляху в обхід локомотивного господарства, а також укладати колію в обхід локомотивного тупика у вихідній горловині зміщеного парку;
· для відчеплення несправних вагонів і переробки транзитних поїздів у вхідній горловині зміщеного парку слід проектувати витяжну колію завдовжки близько 300-350 м (1/3 довжини колій).
Згідно з «Руководством по проектированию железнодорожных станций» розташовуэмо основні пристрої на станції наступним чином:
П а с с а ж и р с ь к а б у д і в л я
– із зовнішньої сторони колій станції (бічного типу) на відстані не менш 20 м, а на нових лініях зі швидкостями руху більше 120 км/годину – не менш 25 м від осі найближчого головного шляху, як правило, з боку основної частини населеного пункту.
В а н т аж н и й д в і р
розміщаємо як правило з боку сортувального парку, у безпосередній близькості до нього.
Л о к о м о т и в н е г о с п о д а р с т в о
розміщаємо, , з боку протилежного пасажирському будинку, за межами основних горловин, у тім кінці станції, де змінювані локомотиви перетинають маршрути відправлення поїздів..
П р и с т р о ї д л я е к і п і р у в а н н я л о к о м о т и в і в
розміщуємо на станції що проектується з основним депо,на одній території з ремонтними пристроями, . Розвиток деповських колій передбачає можливість повороту локомотива.
П р и с т р ої д л я д о б о р у п і с к а й палива
локомотивами розміщуємо на приймально-відправних коліях.
В а г о н н е г о с п о д а р с т в о
розташовуємо на одній площадці з локомотивним господарством.
П у н к т и т е х н і ч н о г о о б с л у г о в у в а н н я…
(ПТО)
: на станції поздовжнього типу проектуємо два пункти технічного обслуговування, один із яких розміщуємо в районі вихідної горловини зміщеного парку.
С л у ж б у к о л і й н о г о г о с п о д а р с т в а
розташовуваємо в тих місцях, які дозволяють розміщенню колій, будинків й пристроїв для стоянки колійних машин і транспортних засобів, вивантаження й навантаження матеріалів верхньої будови колії й забезпечують можливість виїзду на головні шляхи і під'їзд до механічних майстерень.
4.3 Координування елементів станції
Для визначення положення в плані окремих елементів станції при будівництві підраховуємо координати всіх основних точок.
За вісь X приймаємо вісь I головної колії, що не скривлюється в межах станції, за вісь Y - вісь пасажирської будівлі, перпендикулярна осі X. Координуються центри стрілочних переводів (ЦСП), граничні стовпчики, вершини кутів повороту кривих, положення світлофорів, упорів, кінців платформ, складів, навалювальних майданчиків.
Координування проводимо в наступному порядку. Вісь пасажирської будівлі беремо за нуль. Координата X першого стрілочного переводу в парній і непарній горловині виходить простим вимірюванням по головній колії від осі пасажирської будівлі. Координування виконується з точністю до 0,01 м. Решта всіх координат обчислюємо згідно типовим розмірам по взаємному укладанню стрілочних переводів, відстаней від ЦСП до граничних стовпчиків і світлофорів.
5. Капітальні витрати на будівництво станції
Розрахунок витрат виконується по укрупнених витратних ставках і цінах на відповідний період часу. У зв'язку з постійним зростанням цін на нафту, газ і інші енергоносії зростають одиничні розцінки по видах робіт. До 2005 р. вони зросли в 40 разів в порівнянні з 1989 р., тому отриману підсумкову суму капітальних вкладень треба збільшити на коефіцієнт інфляції.
Територія, яку займатиме станція з урахуванням кюветов, резервних майданчиків, лісових насаджень, називається смугою відведення землі.
Вона складає 100 м в поперечному перетині і відкладається від головного шляху по обидві сторони. Довжина майданчика станції може обмежуватися вхідними сигналами. Капітальні витрати розраховуються по земляних роботах, укладанні станційних колій, споруді контактної мережі, пристроях автоматики, телемеханіки і зв'язки, будівництву пасажирської будівлі, платформ, складського господарства і інших об'єктів. У таблиці 20
приведені основні види робіт і одиничні витратні ставки. У переліку не враховані витрати на будівництво водопроводу, каналізації, очисних споруд, підстанції, ліній зв'язку і ін. пристроїв, складових більше 20 % від загальної суми капітальних вкладень.
Таблиця 20
Капітальні витрати на будівництво станції
| Найменування робіт |
Вимірник |
Об'єм роботи |
Вартість
одиниці роботи, грн.
|
Загальна вартість тис. грн.. |
| Відведення території |
га |
400 |
| Земляні роботи |
м3 |
3,2 |
| Укладання головної колії новими рейками типу Р65 при 2000 шт. ж-б шпал на щебені |
км. |
135000 |
| Укладання станційних колій новими рейками типу Р50 при 1840 шт. шпал дерев'яних |
км. |
83700 |
| 1 Укладання одиночних стрілочних переводів: Р65 марки 1/11 |
комплект |
9600 |
| Р50 марки 1/9 |
« |
7800 |
1 Електрична централізація стрілок і сигналів при:
електричній тязі
тязі тепловоза
|
стор. перевод
«
|
11300 10000
|
Устаткування контактною мережею станційних колійв при:
змінному струмі
при постійному струмі
|
км. км.
|
50000
57000
|
| Зовнішнє освітлення території станції (лінія на ж-б опорах) |
га |
4500 |
| Установка світлофорів |
світлоф. |
850 |
| Будівництво з-б упорів |
упор |
450 |
| Будівництво вокзалу з цеглини на 50 пасажирів |
будівля |
150000 |
Пасажирські платформи:
високі залізобетонні
низькі асфальтовані
пішохідний міст з-б, шириною 3,0м
|
м
«
«
|
57
25
500
|
| Двосторонній схід з залізобетонного моста на 1 платформу |
схід |
11200 |
| Будівництво автомобільної асфальтованої дороги шириною 8 м |
км. |
86000 |
| Будівництво критого складу (стіни цегляні) |
м2 |
211 |
| Те ж, відкритого підкранового майданчика (двоконсольний козловой кран прольотом 16-20 м, вантажопідйомністю 7,5-10 т) |
м2 |
156 |
| Відкритий навалювальний майданчик |
« |
25 |
| Габаритні ворота |
комплект |
480 |
Разом по кошторису _____________________________
Всього з урахуванням коефіцієнта інфляції
(Кинфл. = 40 і більше разів) ________________________
СПИСОК ВИКОРИСТАНОЇ ЛІТЕРАТУРИ.
1. А.І. Неменущий. Проектування дільничих станцій - Луганськ: видавництво СНУ ім. В. Даля, 2008. – 136 с.: табл. 21. рис. 39. бібліогр. 27 назв.
2.
Дегтяренко В.Н. Железнодорожные станции промышленных предприятий. – Ростов-на-Дону: РИСИ, 1971. – 210 с.
3.
Дегтяренко В.Н. Транспортные узлы промышленных районов. – М.: Стройиздат, 1974. – 286 с.
4.
Куценко В.И.Железнодорожные станции и промышленные узлы. – Луганск: ВНУ, 2003. – 232 с.
5.
Железнодорожные станции и узлы./ Под общ. ред. Н.В. Правдина.- М.: Стройиздат, 1974. – 324 с.
6.
Железнодорожные станции и узлы промышленного транспорта: Учебник для вузов / В.М. Акулиничев. Л.П.Колодий, Н.Г.Мищенко. В.А.Сидяков; Под ред. В.М.Акулиничева. - М. транспорт, 1986. – 352 с.
7.
Болотный В. Я. Проектирование железнодорожных узлов: Учебное пособие для вузов. — М.: Транспорт, 1989. — 150 с.
8.
Н. В., Банек Т. С., Негрей В. Я. и др. Под ред. Н. В. Правдина.—М.: Транспорт, 1984. – 296 с.
9.
Железнодорожные станции и узлы (задачи, примеры, расчеты): Учебное пособие для вузов ж.д. транспорта / Правдин Н. В., Шубко В.Г., Архангельский Е.В. и др.; Под ред. Н. В. Правдина и В.Г. Шубко. — М.: Железнодорожные станции и узлы. Задачи, примеры, расчеты / Правдин Маршрут, 2005. — 502 с.
10.
Правдин В. Н., Банек Т. С., Негрей В. Я Проектирование железнодорожных станций и узлов. - Минск: Высшая школа, 1984. - Ч. 1. 286 с., Ч. II. 200 с.
|