ПЛАН. Введение. Характеристика предприятия. Организация снабжения и складского хозяйства ресторана. Технологическая документация на производстве. Научная организация труда. Организация производства. Описание мероприятия. Заключение. Список Литературы.
Введение. Пища-основа жизни человека. От того, как человек питается, зависит его здоровье, настроение, трудоспособность. Следовательно, питание человека-это не только его личное, но и общественное дело. Предприятия общественного питания оснащены механическим, холодильным и тепловым оборудованием с газовым, электрическим и паровым обогревом. В связи с этим технолог должен знать оборудование предприятий общественного питания и другие технические дисциплины. Не менее важно для технолога знание экономики общественного питания. Достигнуть высокой производительности труда, повысить культуру обслуживания нельзя без знания основ организации общественного питания. Развитие общественного питания: дает существенную экономию общественного труда вследствие более рационального использования техники, сырья, материалов; предоставляет рабочим и служащим в течение рабочего дня горячую пищу, что повышает их работоспособность, сохраняет здоровье; дает возможность организации сбалансированного рационального питания в детских и учебных заведениях. Повышение эффективности общественного питания основывается на общих для всего народного хозяйства принципах интенсификации производства – достижение высоких результатов при наименьших затратах материальных и трудовых ресурсов.
1. Характеристика предприятия. В соответствии с ГОСТР 50761-95 “Услуги общественного питания. Общие требования” к услугам общественного питания предъявляются определенные требования. Услуга общественного питания – результат деятельности предприятий и граждан-предпринимателей по удовлетворению потребностей потребителя в питании и проведении досуга. Ресторан «Аркадия» относится к ресторанам «высшего» класса. Зал рассчитан на 150 посадочных мест. (план ресторана приложение 1) В состав здания входят: торговый зал, биллиардная, бар, производственные помещения, административные помещения, складские помещения, бытовые помещения для персонала, технические. В состав производственных помещений входят; горячий цех, холодный цех, цех доработки полуфабрикатов, овощной цех, моечная кухонной посуды, моечная столовой посуды. К административным помещениям причисляют кабинет директора, бухгалтерию, кабинет зав производством. К бытовым помещениям относят раздевалку для персонала, душевую и туалетные комнаты. К техническим помещениям относят вентиляционная, щитовая, тепловой узел. Ресторан «Аркадия» имеет световую неоновую вывеску, при входе в ресторан расположено фойе. В фойе предусмотрены: гардероб, туалетные комнаты, пост охраны. Торговый зал имеет сцену и перед ней площадку для танцев. Интерьер зала выдержан в сине-зеленых тонах. При отделке зала были использованы современные материалы а также дерево и ткани. Мебель повышенной комфортности в соответствии с интерьером ресторана, столы имеют мягкое покрытие. Кресла мягкие с подлокотниками. Д ля оформления зала и помещений для потребителей используются изысканные и оригинальные декоративные элементы (светильники, драпировки, картины и т.д.). Ресторан «Аркадия» предлагает всё, что необходимо любителям бильярда: Первоклассные бильярдные столы турнирного уровня; Великолепный интерьер; Тихая, спокойная располагающая к хорошей игре атмосфера; Уютный бар с широким ассортиментом спиртных напитков и вкусной домашней кухней; Постоянным клиентам скидки. Для создания оптимального микроклимата в ресторане имеется система кондиционирования воздуха. Ресторан «Аркадия» - это общедоступное предприятие общественного питания, предоставляющее потребителям широкий ассортимент блюд сложного приготовления, в основном по индивидуальным заказам, а также вино-водочные, табачные и кондитерские изделия. Высокий уровень обслуживания сочетается с организацией отдыха посетителей. Услуги по организации досуга включают: организацию музыкального обслуживания; организацию проведения концертов, программ, варьете. В Ресторане «Аркадия» организуются обслуживание приемов, семейных торжеств, банкетов, проведение тематических вечеров. Посетителей обслуживают официанты, метрдотель, бармены, блюда и напитки приготовляют высококвалифицированные повара. Обслуживающий персонал имеет форменную одежду и обувь единого образца. В Ресторане «Аркадия» посетителям предоставляются обеды (бизнес-ланч) и ужены. Ресторан имеет удобный подъезд автотранспортом и охраняемый паркинг.
2. Организация снабжения и складского хозяйства ресторана. В ресторане «Аркадия» доставкой продуктов занимается экспедитор. Для обеспечения предприятия продовольственными продуктами необходимо решать следующие задачи: Что купить; Сколько закупить; У кого закупить; На каких условиях закупить; Кроме того, необходимо: Заключить договор; Проконтролировать исполнение договора; Организовать доставку; Организовать складирование и хранение. Эти задачи решает отдел снабжения ресторана. Он работает самостоятельно, выполняя свои определенные выше функции. На предприятии есть список поставщиков у которых постоянно закупается продукция, а так же производится закупка на рынках и оптовых базах. Составленный перечень поставщиков анализируется на основании специальных критериев. Зачастую ограничиваются ценой и качеством поставляемой продукции, а также надежностью поставок. К другим критериям, принимаемым во внимание при выборе поставщика, относят следующие: Удаленность поставщика от потребителя; Сроки выполнения заказов; Организация управлением качества у поставщика; Финансовое положение поставщика, его кредитоспособность и др. Доставка продуктов ведется централизованным и децентрализованными способами. Централизованная доставка товаров на предприятия осуществляется силами и средствами поставщиков. При централизованной доставке предприятие освобождается от необходимости иметь свой транспорт. При децентрализованной доставке вывоз товаров от поставщиков обеспечивает непосредственно само предприятие, используя свой транспорт. Важную роль в товародвижении выполняет транспорт. Водители транспорта и экспедитор в процессе передвижения товаров должны обеспечить: Сохранность груза при транспортировке; Своевременную доставку груза; Соблюдение правил загрузки и транспортирование груза; Эффективное использование транспортных средств. В ресторане «Русская трапеза» на каждую машину, предназначенную для перевозки продуктов, имеется санитарный паспорт, выданный учреждениями санитарно-эпидемиологической службы. Приемка товаров в предприятии питания является важной составной частью технологического процесса. Приемку проводят в два этапа. Продукты получают по количеству и по качеству. Первый этап – предварительный. Приемка продуктов по количеству производится по товарно-транспортным накладным, счетам-фактурам, путем пересчета тарных мест, взвешивании. Если товар поступил в исправной таре, кроме проверки веса брутто предприятие имеет право потребовать вскрытия тары и проверки веса нетто. Второй этап – окончательная приемка. Масса нетто и количество товарных единиц проверяют одновременно со вскрытием тары. Масса тары проверяется одновременно с приемкой товара. При обнаружении недостачи составляется односторонний акт о выявленной недостаче, этот товар хранится отдельно, обеспечивается его сохранность и вызывается поставщик. После окончательной приемки составляется акт в 3 экземплярах. Одновременно с приемкой товаров по количеству товар принимается также и по качеству. Приемка товаров по качеству производится органолептически (по виду, цвету, запаху, вкусу). При этом проверяют соответствие стандартам, ТУ. К транспортным документам прикладываются сертификаты или удостоверения качества. Для обеспечения бесперебойной работы производств реализации продукции в достаточном ассортименте с учетом спроса потребителей необходимы товарные запасы. Для Ресторана «Аркадия» рекомендуются следующие нормы товарных запасов при нормальных условиях хранения: Нескоропортящиеся продукты (мука, сахар, крупа) – 8-10дней Скоропортящиеся продукты (мясо, Рыба, птица) – 2-5дней Запасы хлеба молока не должны превышать однодневную реализацию.
3. Технологическая документация на производстве. Основным этапом планирования является составление плана-меню. План-меню составляется заведующим производством накануне планируемого дня (не позднее 15 ч) и утверждается директором предприятия. К основным факторам, которые необходимо учитывать при составлении меню. Относятся: примерный ассортимент выпускаемой продукции, рекомендованный для предприятий общественного питания в зависимости от типа и вида предоставляемого рациона, наличия сырья и его сезонность. Утверждая план-меню, директор и заведующий производством несут ответственность за то, чтобы блюда, включаемые в меню, были в продаже в течении всего дня торговли предприятия. Визитной карточкой ресторана называют его меню, т. е. перечень закусок, блюд, напитков (с указанием цены и выхода), имеющихся в продаже в течение всего времени работы. Слово меню происходит от французского «menu» и означает расписание блюд и напитков на завтрак, обед и ужин, а также перечисление блюд для приемов и другого вида обслуживания. Все блюда в меню перечисляются в последовательности, соответствующей порядку приема пищи. Порядок перечисления блюд должен соответствовать установленному для каждого предприятия ассортиментному минимуму – определенному количеству блюд и напитков, которые ежедневно должны быть в реализации. Сокращение количества наименований блюд и закусок, предусмотренных ассортиментным минимумом, не допускается. Наоборот, ассортимент может быть расширен за счет включения в меню сезонных и фирменных блюд. При составлении меню должно быть достигнуто разнообразие закусок, блюд как по видам сырья (рыбные, овощные, мясные), так и по способам кулинарной обработки (отварные, припущенные, жаренные, тушеные, запеченные), а также правильное сочетание гарнира с основным продуктом. При составлении меню учитывают вкусовые качества пищи, внешнее оформление блюд. Следует также иметь в виду, что в блюдах должна достигаться вкусовая гармония за счет сочетания различных компонентов друг с другом. Следующий фактор, учитываемый при составлении меню, - сезонность потребления. Известно, что блюда, богатые жирами и белками, пользуются большим спросом в зимний период, а летом повышается спрос на холодные блюда, овощи и свежие фрукты. Многие потребители в обеденные часы ежедневно посещают кафе, поэтому меню следует разнообразить не только на данный день, но и по дням недели. При подборе гарниров и соусов к блюдам необходимо добиваться, чтобы они соответствовали основному продукту. Блюда и закуски, включенные в меню, должны быть в наличии в течение всего дня работы. Следует также иметь в виду, что кафе в дневное время часто посещают потребители с детьми. Поэтому в меню должны быть предусмотрены блюда в размере полупорций или специальные блюда для детей. В меню все закуски и блюда располагают в следующей очередности: от менее острых к более острым, от припущенных к отварным, жареным к тушеным. Типы меню отличаются друг от друга вариантами подбора предлагаемых блюд и структурой цен. Меню «а ля карт». Этот тип меню предлагает выбор в каждом виде блюд, причем каждое блюдо оценивается отдельно. Блюда из такого меню, выбранные посетителями, готовятся на заказ. Меню «Табльдот». Этот тип меню предлагает небольшой ассортимент блюд и оценивается общей суммой в расчете на одного человека за все меню. Типичный пример такого меню – «деловой завтрак» (бизнес-ланч) по умеренным ценам, в состав которого входят по три-четыре наименования блюд. Посетитель платит установленную цену за весь обед или завтрак. Меню типа табльдот очень популярны в праздничные дни, например Новый год. Меню «а ля парт» - гости делают предварительный заказ и обслуживаются в определенный промежуток времени. Применяется чаще в курортных гостиницах. «Шведский стол» - это широкий выбор блюд со свободным доступом, этот метод обслуживания увеличивает пропускную способность зала, ускоряет процесс обслуживания. Циклическое меню – это группа меню за определенный период времени. Этот тип меню в основном используется в стационарных учреждениях, например в больницах, санаториях и т. д. Циклическое меню имеет целью разнообразить ассортимент блюд для потребителей, и для обслуживающего персонала, а также гарантировать полноценность питания целого коллектива людей в целях сохранения здоровья.
4. Научная организация труда. Научная организация труда в общественном питании, как и в других отраслях должна решить три основные задачи: экономическую, психофизиологическую и социальную. Решение экономической задачи полагает наиболее полное использование техники, материалов, сырья, обеспечивает повышение эффективности производства и труда. Решение психофизической задачи предусматривает создание на предприятии благоприятных условий труда, способствующих здоровью работников, снижению утомляемости и повышению трудоспособности. Решение социальной задачи обеспечивает всестороннее развитие человека, способствует превращению труда в жизненную необходимость, воспитывает ответственность за результаты своего труда. Эти задачи связаны между собой и должны решатся в комплексе. Без решения психофизической задачи и социальных задач не будут решены экономические задачи. НОТ выделяют следующие основные направления. разработка и внедрение рациональных форм и разделения и кооперации труда; совершенствование организации и обслуживания рабочих мест; внедрение передовых приемов и методов труда; улучшение условий труда; подготовка и повышение квалификации кадров; рационализация режимов труда и отдыха; укрепление дисциплины труда; совершенствование нормирования труда.
5. Организация производства. Ресторан «Аркадия» имеет разнообразные цехи, специализирующиеся по видам перерабатываемого сырья и изготовляемой продукции: цех доработки полуфабрикатов, овощной, горячий, холодный. Складское, тарное, санитарно-техническое хозяйство. Цехи подразделяют на: заготовочные (цех доработки полуфабрикатов, овощной); доготовочные (горячий, холодный). В каждом цехе организуют технологическую линию – участок производства, оснащенный необходимым оборудованием для определенного технологического процесса. В заготовочных цехах ресторана производят механическую обработку мяса, рыбы, птицы, овощей и выработку полуфабрикатов для снабжения ими горячего цеха своего предприятия. В Ресторане «Аркадия» в основном работают на полуфабрикатах, поэтому обработку мяса, птицы, субпродуктов и рыбы сосредотачивают в одном цехе (цех доработки полуфабрикатов), также как и обработку всех овощей.
Холодный цех. Холодные цеха предназначены для приготовления, порционирования и оформления холодных блюд и закусок, сладких блюд и холодных супов. Продукция, используемая для приготовления блюд, перед отпуском не подвергается вторичной тепловой обработке, поэтому в цехе должны соблюдаться строгие санитарные требования: продукты, используемые для приготовления блюд, должны храниться в холодильных шкафах или камерах при температуре не выше 6-8 гр.; посуда и инвентарь должны быть промаркированы и использоваться по назначению; В соответствии с технологическим процессом должны быть четко разграничены рабочие места для обработки сырых и вареных овощей, гастрономических мясных и рыбных продуктов, порционирования блюд и др.; салаты, винегреты, бутерброды следует готовить только партиями и реализовать в течение одного часа; соблюдать температурный режим хранения и отпуска холодных блюд (10-14 гр.).
Горячий цех. Горячий цех является основным цехом предприятия, в котором завершается технологический процесс приготовления пищи: осуществляется тепловая обработка продуктов и полуфабрикатов, варка бульонов, приготовление супов, соусов, гарниров, вторых блюд, а также производится тепловая обработка продуктов для холодных и сладких блюд. Горячий цех имеет удобную связь с заготовочными цехами, со складскими помещениями и удобную взаимосвязь с холодным цехом, раздаточной и торговым залом, моечной кухонной посуды. Блюда горячего цеха, выпускаемые в ресторане «Аркадия» соответствуют требованиям государственных стандартов, стандартов отрасли, стандартов предприятия, сборников рецептур блюд и кулинарных изделий, и вырабатываются по технологическим инструкциям и картам, технико-технологическим картам при соблюдении Санитарных правил для предприятий общественного питания. Производственная программа горячего цеха составляется на основании ассортимента блюд, реализуемых через торговый зал. Горячий цех оснащен современным оборудованием: тепловым, холодильным, механическим, и немеханическим: плитами, жарочными шкафами, электросковородами, электрофритюрницами, холодильными шкафами, производственными столами и стеллажами. Овощной цех. Овощной цех имеет удобную связь с холодным и горячим цехом, в которых завершается выпуск готовой продукции. Технологический процесс обработки овощей состоит из сортировки, мытья, очистки, дочистки после механической очистки, промывания, нарезки. Оборудование для овощного цеха подбирают по нормам оснащения в зависимости от типа и мощности предприятия. Основным оборудованием являются производственные столы, столы для дочистки картофеля, моечные ванны, подтоварники для овощей. Рабочие места оснащаются инструментами, инвентарем для выполнения определенных операций. В овощном цехе выделяют линию обработки картофеля и корнеплодов и линию обработки свежей капусты и других овощей и зелени. Оборудование ставится по ходу технологического процесса Работу овощного цеха организует заведующий производством.
Цех доработки полуфабрикатов. В Ресторане «Аркадия» организован цех доработки полуфабрикатов, которые предприятие получает от промышленных и заготовочных предприятий в виде мяса крупными кусками, рыбы специальной разделки охлажденной и мороженой, тушек кур и цыплят. В цехе организуют отдельные рабочие места для доработки мясных полуфабрикатов, полуфабрикатов из птицы, рыбы. Из оборудования в цехе доработки полуфабрикатов устанавливают универсальный привод ПМ-1,1 с комплектом машин для рыхления, измельчения мяса и выполнения других операций. Кроме механического оборудования в цехе устанавливают холодильное оборудование, моечные ванны, производственные столы, передвижные стеллажи. В Ресторане «Аркадия» согласно производственной программе, крупнокусковые полуфабрикаты разделываются на порционные, мелкокусковые и рубленные. Рабочее место оборудуется производственным столом, на который укладываю разделочную доску, устанавливают циферблатные весы. Субпродукты поступают на предприятие в виде сырья и в цехе доготовки полуфабрикатов предусмотрено отдельное место для их обработки. Для обработки домашней птицы, поступающей от промышленности, также организовано отдельное рабочее место. Приготовление полуфабрикатов из птицы осуществляется на рабочем месте, где используют моечные ванны, производственный стол. Учитывая специфический запах рыбных продуктов, приготовление порционных полуфабрикатов осуществляют на отдельных производственных столах. Кроме раздельного оборудования выделяются отдельные инструменты, тара, разделочные доски, маркированные для обработки рыбы. В цехе доработки полуфабрикатов применяются настольные мясорубки. В цехе выполняют работу повара 4 и 5 разрядов. За свою работу повара отчитываются перед заведующим производством или бригадиром.
Моечная кухонной посуды. Моечная кухонной посуды предназначена для мытья наплитной посуды (котлов, кастрюль, противней, и др.) кухонного и разделочного инвентаря, инструментов. Помещение моечной должно иметь удобную связь с производственными цехами (холодным, горячим). В помещении моечной устанавливаются подтоварники для использованной посуды, стеллажи для чистой посуды и инвентаря, моечные ванны с тремя отделениями - для замачивания, мытья и дезинфекции.
6. Описание мероприятия. Банкет-фуршет на 30 человек. Банкет-фуршет обычно проводят организации, когда за ограниченное время необходимо принять большое количество людей на той же площади банкетного зала; каждый участник в ходе банкета имеет возможность подойти для беседы к любому гостю, самостоятельно взять понравившиеся ему закуски, напитки; приглашенные могут уйти с банкета в любой момент. Как правило, банкет-фуршет организуют с 18 до 20 ч и продолжается он 1-1,5 ч. На этом банкете стулья не ставят. Гости едят и пьют стоя у столов или, взяв закуску, отходят от стола. В меню включены холодные и горячие закуски, десерт и горячие напитки. Горячие закуски должны быть порционированы без костей и соуса, салаты – в корзиночках, икра – в валованах; гастрономические продукты нарезаны таким образом, чтобы их можно было есть без ножа. Перед приемом гостей зала ресторана оформляем живыми цветами. Они покрыты фланелью и застелены зелеными банкетными скатертями, гармонирующими с цветом стен. На всех столах скатерти спущены на одинаковую длину на расстояние 1-2 см от пола, что бы скрыть ножки стола, а углы скатертей забраны внутрь под прямым углом. Дополнительные и подсобные столы накрывают как банкетные (со спуском). Свет притемнен, играет спокойная музыка. Украшением служат живые полевые цветы в низких вазах. На банкете-фуршете с обслуживанием официантами по поводу деловых переговоров количество официантов принимается из расчета одного официанта на 15 человек. Поэтому для обслуживания 30 гостей потребуется 2 официанта, которые будут подавать блюда и убирать использованную посуду. Официанты в зале, стоя у столов, наливают напитки, раскладывают блюда, закуски. В связи с тем, что не все приглашенные сразу могут подойти к столу, основное внимание официанты должны уделять гостям, стоящим в стороне или у дополнительных столов, предлагая им напитки и закуски. В течении всего обслуживания официанты следят за порядком на столе, уносят использованную посуду, бутылки, пополняют предметы сервировки, своевременно освобождают или заменяют пепельницы. Для проведения банкета-фуршета используем стандартные ресторанные столы 1250х800мм в количестве 5шт. из расчета 1п/м на 6-8 человек Составлены в виде буквы П. А также кроме фуршетных столов используем столики 500х500 в количестве 4 шт. устанавливаемых у стен и один подсобный столик для запасов столовой посуды, приборов, рюмок, салфеток.
Заключение. Успешная работа предприятия общественного питания зависит от многих факторов. Как и всякая сложная система, ночной клуб начинается с замысла его создателя и заканчивается контролем и его функционированием. В своей работе я рассмотрела, на мой взгляд, самые важные факторы, влияющие на успех в ресторанном бизнесе. Такими факторами являются: Функции управления в ресторанном бизнесе. Управление организацией основывается на общих принципах системы управления производством. В функциях управления раскрывается содержание управления как процесса, отражается вид управленческой деятельности, должностные обязанности, закрепленные за определенным структурным подразделением или работником, назначение конкретного органа управления. Основные функции управления являются общими для всех производственно-экономических систем, относятся к любому объекту управления. Они необходимы для решения общих задач управления и типичны для всего управленческого решения. Структура системы управления предприятием общественного питания. Правильно составленная структура системы управления для любого предприятия общественного питания, упрощает и освобождает руководителя от целого ряда функций, для выполнения которых есть квалифицированные специалисты. Структура системы управления фиксируется в организационных схемах структуры управления, штатных расписаниях положениях о структурных подразделениях, должностных инструкциях. Расстановка и подбор кадров. Для успеха в ресторане очень важен подбор кадров. От того на сколько правильно менеджер подберет персонал, будет зависеть дальнейшая работа. Менеджер должен точно представлять, какой тип кандидатов нужен для стабильного трудового коллектива, способного добиться высоких конечных результатов. В последнее время, в связи с возросшей требовательностью посетителей, рестораны стараются повышать качество приготовления пищи и обслуживания. Соответственно повышаются потребности ресторанов в высококвалифицированных кадрах. Функции менеджеров. В данной работе, большое внимание я уделила изучению работы менеджеров в ресторанном бизнесе. Основываясь на собственном опыте и местной практике, хотелось бы отметить, что не смотря на большое количество ресторанов в г. Бишкек, очень мало ресторанов, где есть менеджеры, которые соблюдают предъявленные к ним требования
Услуга питания представляет собой услугу по приготовлению, реализации и организации потребления блюд и изделии сложного изготовления всех основных групп из различных видов сырья, покупных товаров и вино-водочных изделий, оказываемую квалифицированным производственным и обслуживающим персоналом в условиях повышенного уровня комфорта в сочетании с организацией досуга. Овощной цех.
Овощной цех организуют на предприятии с большой и средней мощностью. Овощной цех размещается, как правило, в той части предприятия, где находится овощная камера, чтобы транспортировать сырье, минуя общие производственные коридоры. Цех должен иметь удобную связь с холодным и горячим цехом. Ассортимент и количество продукции зависит от производственной программы предприятия. Оборудование для цеха подбирается по нормам оснащения в зависимости от мощности предприятия.
П лан овощного цеха.
1 – картофелечистка 2 – подтоварник. 3 – ванна моечная 4 – стол для дочистки картофеля и корнеплодов 5 – стеллаж передвижной. 6 – овощерезательная машина. 7 –стол производственный. 8 – стол для очистки репчатого лука. П лан горячего цеха.
1 – плита электрическая ПЭСМ-4Ш 2 – сковородка электрическая СЭСМ-0.5 3 – шкаф жарочный электрический 4 – фритюрница. ФЭСМ-20 5 – плита электрическая 2х конфорочная. 6 – вставка к тепловому оборудованию 7 – мармит электрический МСЭСМ-50. 8 – стол производственный . 9 – универсальный привод ПГ-0.6 10 – стол для установки средств малой механизации. 11 – стол охлаждаемый CОЭСМ-2. 12 – печь шашлычная. 13 – стелаж передвижной. 14 – котел пищевой КПЭ-100. 15 – электрокипятильник КРНЭ-100Б. 16 – котел пищевой КПЭСМ-60. 17 – ванна передвижная. 18 – шкаф холодильный ШХ-0,4М. 19 – прилавок-мармит для первых блюд. 20 – стойка раздаточная электрическая СРСМ 21 – стойка раздаточная. 22 – стол со встроенной моечной ванной. 23 – раковина. План холодного цеха. 
1- холодный шкаф ШХ-0.8; 2- холодный шкаф ШХ –0.6 3- стол производственный. 4- секция-стол с охлаждаемым шкафом и горкой СОЭСМ-3 5- низкотемпературный прилавок СН-0,15. 6- секция-стол с охлаждаемым шкафом СОЭСМ-2; 7- перед-вижной стеллаж. 8- моечная ванна ВМ-2СМ 9- машина для нарезки вареных овощей 10 – маслоделитель ручной
План цеха доработки полуфабрикатов. 
A – участок обработки мяса С – участок обработки птицы В – участок обработки рыбы. 1 – ванна с бортиками; 2 – разрубочный стул; 3 – стол производственный; 4 – стеллаж передвижной; 5 – универсальный приводПМ-1.1; 6 – мясорубка;7 – опалочный шкаф; 8 – ванна моечная; 9 – холодильный шкаф. Приложение 1.
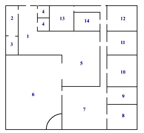
ПЛАН РЕСТОРАНА «Аркадия»  1 – фойе. 2 – гардеробная. 3 – комната охраны. 4 – туалетные комнаты. 5 – бар, биллиардная. 6 – зал. 7 – горячий цех, 8 – цех доработки полуфабрикатов, 9 – моечная, 10 – холодный цех, 11 – овощной цех, 12 – складские помещения, 13 – помещения персонала и тех помещения, 14 – администрация,
21 Список литературы. Коршунов Н.В. “Организация обслуживания в ресторане” М, высшая школа 1976г. Кристофер Энертон-Томас “Ресторанный бизнес” - М, “Росконсульт” 1999г. Усов В.В. “Организация обслуживания в ресторане” - Москва. “ Высшая школа” 1990г. Аносова М.М., Кучер Л.С. «Организация производства на предприятиях общественного питания» , 1985г Радченко Л.А. «Организация производства на предприятиях общественного питания», 2000г. Сборник рецептур блюд и кулинарных блюд национальных кухонь народов России. 1992г. Х. Ридель, «Бары и рестораны. Техника обслуживания». 2002г. Иванникова Е.И., «Барное дело», 2002г.
|