Банк рефератов содержит более 364 тысяч рефератов, курсовых и дипломных работ, шпаргалок и докладов по различным дисциплинам: истории, психологии, экономике, менеджменту, философии, праву, экологии. А также изложения, сочинения по литературе, отчеты по практике, топики по английскому.
Полнотекстовый поиск
Всего работ:
364139
Теги названий
Разделы
Авиация и космонавтика (304)
Административное право (123)
Арбитражный процесс (23)
Архитектура (113)
Астрология (4)
Астрономия (4814)
Банковское дело (5227)
Безопасность жизнедеятельности (2616)
Биографии (3423)
Биология (4214)
Биология и химия (1518)
Биржевое дело (68)
Ботаника и сельское хоз-во (2836)
Бухгалтерский учет и аудит (8269)
Валютные отношения (50)
Ветеринария (50)
Военная кафедра (762)
ГДЗ (2)
География (5275)
Геодезия (30)
Геология (1222)
Геополитика (43)
Государство и право (20403)
Гражданское право и процесс (465)
Делопроизводство (19)
Деньги и кредит (108)
ЕГЭ (173)
Естествознание (96)
Журналистика (899)
ЗНО (54)
Зоология (34)
Издательское дело и полиграфия (476)
Инвестиции (106)
Иностранный язык (62791)
Информатика (3562)
Информатика, программирование (6444)
Исторические личности (2165)
История (21319)
История техники (766)
Кибернетика (64)
Коммуникации и связь (3145)
Компьютерные науки (60)
Косметология (17)
Краеведение и этнография (588)
Краткое содержание произведений (1000)
Криминалистика (106)
Криминология (48)
Криптология (3)
Кулинария (1167)
Культура и искусство (8485)
Культурология (537)
Литература : зарубежная (2044)
Литература и русский язык (11657)
Логика (532)
Логистика (21)
Маркетинг (7985)
Математика (3721)
Медицина, здоровье (10549)
Медицинские науки (88)
Международное публичное право (58)
Международное частное право (36)
Международные отношения (2257)
Менеджмент (12491)
Металлургия (91)
Москвоведение (797)
Музыка (1338)
Муниципальное право (24)
Налоги, налогообложение (214)
Наука и техника (1141)
Начертательная геометрия (3)
Оккультизм и уфология (8)
Остальные рефераты (21692)
Педагогика (7850)
Политология (3801)
Право (682)
Право, юриспруденция (2881)
Предпринимательство (475)
Прикладные науки (1)
Промышленность, производство (7100)
Психология (8692)
психология, педагогика (4121)
Радиоэлектроника (443)
Реклама (952)
Религия и мифология (2967)
Риторика (23)
Сексология (748)
Социология (4876)
Статистика (95)
Страхование (107)
Строительные науки (7)
Строительство (2004)
Схемотехника (15)
Таможенная система (663)
Теория государства и права (240)
Теория организации (39)
Теплотехника (25)
Технология (624)
Товароведение (16)
Транспорт (2652)
Трудовое право (136)
Туризм (90)
Уголовное право и процесс (406)
Управление (95)
Управленческие науки (24)
Физика (3462)
Физкультура и спорт (4482)
Философия (7216)
Финансовые науки (4592)
Финансы (5386)
Фотография (3)
Химия (2244)
Хозяйственное право (23)
Цифровые устройства (29)
Экологическое право (35)
Экология (4517)
Экономика (20644)
Экономико-математическое моделирование (666)
Экономическая география (119)
Экономическая теория (2573)
Этика (889)
Юриспруденция (288)
Языковедение (148)
Языкознание, филология (1140)

Курсовая работа: Техническая характеристика грузовой станции

Название: Техническая характеристика грузовой станции
Раздел: Рефераты по транспорту
Тип: курсовая работа Добавлен 22:14:29 25 декабря 2010 Похожие работы
Просмотров: 5699 Комментариев: 16 Оценило: 3 человек Средний балл: 4 Оценка: неизвестно     Скачать

Содержание

Введение

1. Технико-эксплуатационная характеристика работы станции

1.1 Техническая характеристика станции

1.2 Эксплуатационная характеристика станции

2. Расчет потребности вагонного парка и показателей его использования

2.1 Определение вагонопотоков прибытия и отправления по объектам грузовой работы

2.2 Обеспечение пунктов погрузки порожними вагонами

2.3 Определение средней статической нагрузки по станции

3. Организация вагонопотоков на станции покровск

3.1 Определение размеров движения передаточных поездов и числа подач вагонов на грузовые пункты по станции

3.2 Определение количества вагонов в составе маршрутов

3.3 Расчет числа маршрутов за сутки

3.4 Расчет процента маршрутизации

4. Расчет (проверочный) мощности технических средств станции

4.1 Расчет складских помещений

4.2 Расчет погрузо-выгрузочных средств

4.3 Расчет продолжительности грузовых операций

4.4 Расчет потребного количества автотранспорта

5. Организация грузовой и коммерческой работы

6. Организация технической работы станции

6.1 Технология обработки поездов по прибытию

6.2 Технология обработки грузовых поездов по отправлению

6.3 Обработка пригородных поездов

6.4 Порядок подачи порожних вагонов под погрузку опасных грузов на станции Покровск и разъезда 3км

6.5 Порядок пакетирования, приема, сдачи и пересылки документов с разъезда 3км. на станции Покровск

7. Оперативное управление и планирование работы станции

7.1 Информация о подходе поездов и грузов

7.2 Организация оперативного планирования работы станции

7.3 Организация работы единых смен

8. Расчет показателей работы станции

9. Технико-экономическая оценка предлагаемой технологии

10. Охрана труда и техника безопасности при погрузочно-разгрузочных работах и безопасность труда в перевозочном процессе на станции

11. Требования к местам производства погрузочно-разгрузочных работ на станции

12. Организация работы станции в зимних условиях

Заключение

Список литературы

Введение

Грузовая станция играет большую роль в перевозочном процессе. В настоящее время при анализе работы грузовых станций выявляются ряд негативных факторов, такие как, большие простои, которые ведут к снижению перерабатывающей способности.

Решение этих задач предусматривается по двум основным направлениям. Во-первых, это повышение эффективности эксплуатационной работы железнодорожной станции, во-вторых - развитие инфраструктуры железнодорожной станции.

При разработке предложений и мероприятий по изменению технологии работы грузовой станции в основу поставлены следующие задачи:

обеспечение качества процессов и безопасности перевозок;

достижение финансовой устойчивости и эффективности;

сокращение времени переработки и доставки грузов;

увеличение перерабатывающей способности станции;

высвобождение контингента за счет внедрения технических средств.

В целях повышения эффективности операций коммерческого осмотра вагонов; увеличения пропускной способности железнодорожной станции, сокращения времени доставки грузов; своевременного выявления коммерческих неисправностей, повышения безопасности движения поездов и сохранности перевозимых грузов, высвобождения контингента требуется комплексное внедрение технических средств.

Внедрение на ПКО и КПБ автоматизированной системы осмотра поездов и вагонов (АСКОПВ) дает возможность при коммерческих осмотрах составов переходить на безбумажную технологию работы. С электронным контролем безопасней становятся условия труда приемщиков поездов, поскольку для них исключен неоправданный выход на путь, подъем на высоту. На станциях с большим объемом пропуска и переработки поездов установка комплекса позволяет с наименьшими затратами времени пропускать поезда, что в итоге улучшает все показатели. Система обеспечивает просмотр проходящего состава в режиме реального времени, фиксирование информации в памяти компьютера в течение полугода, просмотр записанной информации и, в случае выявления неисправности, выделение кадров. Благодаря АСКОПВ для осмотра состава из 30 вагонов требуется всего 2-3 минуты. Поезд движется со скоростью 60 километров в час под специальной металлической аркой, на которой закреплены датчики и видеокамеры. На монитор транслируется изображение каждого вагона. Одновременно датчики регистрируют малейшие отклонения от габаритов.

Кроме того, разрабатывается аппаратура для автоматического считывания номеров запорно-пломбировочных устройств. При этом несущей конструкцией для датчиков, идентифицирующих пломбы, станет АСКОПВ.

Комплексное внедрение технических новшеств позволит реально увеличить пропускную способность станции, обеспечить высвобождение штата, повысить эффективность работы приемщиков поездов.

Пересмотр законодательной и нормативной базы в части грузовой и коммерческой работы позволит организовать осмотр только с помощью системы АСКО ПВ.

На ПКО устанавливается новая версия комплекса АРМ ПКО.

В период с 2008 по 2030гг. внедрение на Приволжской ж. д. программы "Мониторинг грузовой станции". Возможности: получение полной информации о станции, формирование анализа работы (рейтинг), взаимодействие с системой АСКО ПВ и теплотелевизионным комплексом (возможность получение видеоархива), формирование отчета по искажению наименования, массы груза.

Внедрение данных систем неизбежно повлечет за собой необходимость технологических изменений и пересмотра нормативных документов, а также позволит значительно повысить производительность труда исполнителей, ведущих отчетность и учет по актово-претензионной работе. Анализ накопленных сведений даст в перспективе возможность выявлять наиболее "проблемных" грузоотправителей, станции и железные дороги - как в вопросе сокращения потерь от несохранных перевозок, так и допускаемых в массовом порядке искажений сведений о грузах, и принимать соответствующие меры.

Основой технологии работы станций в настоящее время становится информатизация перевозок и обработки, связанных с ними документов в системе ЕАСАПР.

Целью работы Единой автоматизированной системы актово-претензионной работы хозяйства коммерческой работы в сфере грузовых перевозок (ЕАСАПР М) является повышение эффективности грузовых перевозок: обеспечение сохранности и безопасности перевозимых грузов, повышение доходов от грузовых перевозок, снижение убытков, возникших в ходе выполнения грузовых перевозок, повышение качества обслуживания грузовладельцев.

Возможности:

регистрация результатов проведения служебного расследования;

автоматическое формирование книг станционной отчетности, справочных и аналитических форм, автоматическая регистрация оперативных донесений и получение их электронной почтой, связь с системой "ЭТРАН";

оперативное выявление критических ситуаций в хозяйстве коммерческой работы в сфере грузовых перевозок и комплексный анализ качественных показателей работы как хозяйства в целом, так и по таким вопросам, как обеспечение безопасности, сохранности, своевременности доставки груза, задержки вагонов на границе, их отцепки на ПКО, использование инфраструктуры и другим;

автоматизации составления учетно-отчетных и справочных форм путем согласованного обмена информацией с системами дорожного и сетевого уровня, необходимой для принятия управленческих решений и направлена на снижение потерь из-за простоев вагонов и из-за несоблюдения сроков доставки грузов в указанных случаях;

регистрация всех заявлений на переадресовку с проверкой через АРМ о наличии фактов, при которых переадресовка не возможна, связь с АСУ ЗПУ;

аттестация грузоотправителей, грузополучателей на знание Технических условий размещения и крепления грузов, учет информации по смерзающимся и скоропортящимся грузам, получение информации по претензиям, информацию по весам и так далее.

1. Технико-эксплуатационная характеристика работы станции

1.1 Техническая характеристика станции

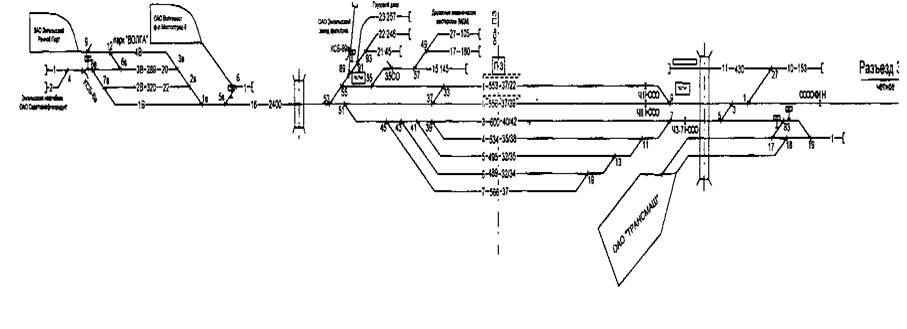
Станция Покровск по характеру работы является грузовой станцией, отнесена к 3 классу тупикового типа.

В четном направлении - перегон Покровск - Разъезд 3км - однопутный, оборудован двухсторонней полуавтоматической блокировкой, маршрутно - контрольными устройствами зависимости стрелочных переводов и сигналов.

Станция имеет необходимые виды связи, а также маневровую радиосвязь с машинистом маневрового локомотива.

Таблица 1.1 Ведомость парков и путей

Назначение путей Стрелки, ограничивающие путь Длина в метрах Вместимость в условных вагонах Наличие на пути
от до между пред. столбиками полезная электр. изоляции контакт сети устройств АЛСН/ САУТ
Приемо-отправочный парк
II Главный. Прием нечетных пассажирских и грузовых поездов, отправление четных пассажирских и грузовых поездов. 9 37 567 556 37/39 Есть нет есть чет / нет
1 Приемо-отправочный. Прием нечетных пассажирских и грузовых поездов, отправление четных пассажирских и грузовых поездов. 9 33 - 553 37/22 Есть нет есть чет/ нет
3 Приемо-отправочный. Прием нечетных грузовых поездов, отправление четных грузовых поездов. 7 39 600 600 40/42 Есть нет нет / нет
4 Приемо-отправочный. Прием нечетных грузовых поездов, отправление четных грузовых поездов. 11 39 534 534 35/38 Есть нет нет/ нет
5Приемо-отправочный. Прием нечетных грузовых поездов, отправление четных грузовых поездов. 13 41 495 495 32/35 Есть нет нет/ нет
6 Приемо-отправочный. Прием нечетных грузовых поездов, отправление четных грузовых поездов. 19 43 489 489 32/34 Есть нет нет/ нет
7 Приемо-отправочный. Прием нечетных грузовых поездов, отправление четных грузовых поездов. 19 45 566 566 37 Есть нет нет/ нет
10 Вытяжной 27 упора - 153 9 нет нет нет/ нет
11 Погрузочно-выгрузочный 27 упора 430 430 30 нет нет нет/ нет
15 Тупик для стоянки пассажирских поездов 57 упора 145 145 10/5 нет нет нет/ нет
16 Соединительный 53 - 2472 176 нет нет нет/ нет
Грузовой двор
21 Погрузочно-выгрузочный 93 упора 45 45 3 нет нет нет/ нет
22 Погрузочно-выгрузочный 93 упора 246 246 17 нет нет нет/ нет
23 Погрузочно-выгрузочный 91 упора 257 257 18 нет нет нет/ нет
Парк ВОЛГА
2В Передаточный 320 320 22 нет нет нет/ нет
3В Передаточный - 289 20 нет нет нет/ нет
Дорожные механические мастерские (МДМ)
17 Погрузочно-выгрузочный. 49 упора - 180 12 нет нет нет/ нет
27 Погрузочно-выгрузочный. 49 упора - 105 7 нет нет нет/ нет

Рисунок ПЗ.1 Схема станции Покровск


1.2 Эксплуатационная характеристика станции

Станция Покровск обеспечивает прием и отправление грузовых, пригородных поездов, формирование и расформирование поездов, прибывающих на станцию в переработку, подборку вагонов по фронтам погрузки и выгрузки; подачу и уборку вагонов на места общего пользования и подъездные пути, обслуживаемые локомотивом станции.

Станция Покровск выполняют следующие операции:

оформление перевозочных документов;

подборку и подачу вагонов предприятиям, имеющим договоры на эксплуатацию пути необщего пользования и подачу уборку вагонов;

прием и выдачу груза клиентам повагонными отправками;

коммерческий осмотр передаточных поездов по прибытию и отправлению;

подачу и уборку вагонов к фронтам погрузки и выгрузки;

Основная работа (погрузка и выгрузка грузов) на станции осуществляется на путях необщего пользования и производится средствами грузоотправителей и грузополучателей. Порожние вагоны под погрузку поступают со станции Анисовка. Вагоны по графику прибывают на станцию с передаточными поездами. При отправлении передаточного поезда со станции Покровск или Анисовка оператор СТЦ по отправлению извещает по телефону приёмосдатчика груза о номерах вагонов, для планирования работы станции. Согласно плану формирования грузовых поездов станция Покровск формирует поезда назначением на станцию Анисовка через разъезд 3 км: весовая норма составов, обращающихся на участке Покровск - Анисовка в четом и нечетном направлениях - 2500 тонн и 30 вагонов. Среднесуточный размер движения в парах поездов, согласно графика: - грузовых поездов - 3 пары; пригородных поездов - 3 пары.


Таблица 1.2 Перечень железнодорожных путей необщего пользования и места их примыкания:

Наименование организации, для обслуживания которой предназначен ж. д. путь необщего пользования Принадлежность ж. д. пути необщего пользования Место примыкания и граница ж. д. пути необщего пользования Наличие предохранительных устройств для предупреждения выхода подвижного состава с ж. д. пути н/п
1 2 3 4
1. ОАО "Трансмаш" владелец

Стрелка №83 в южной горловине станции.

Сигнальный знак

"Граница п/п" установленный у переднего стыка рамного рельса стрелки №83 и предельного столбика стрелки №83.

предохранительный тупик №1

2. ОАО "Энгельсский завод фильтров"

дорога

Стрелка №89 в северной горловине станции. Сигнальный знак

"Граница ж/д пути н/п" установленный у предельного столбика стрелки №89.

Колесо-сбрасывающий башмак №89а (КСБ-89а)
3. Энгельсская нефтебаза ОАО "Саратовнефтепродукт" дорога

Стрелка №8в к продолжению пути №3В парка "ВОЛГА".

Сигнальный знак

"Граница ж/д пути н/п" установленный у стыка рамного рельса стрелки №8в.

Колесо-сбрасывающий башмак №8а (КСБ-8а)
4. ЗАО "Энгельсский речной порт" владелец

Стрелки №1в,3в,7в

Сигнальные знаки

"Граница ж/д пути н/п" установленные у передних стыков рамных рельс стрелок №1в,3в,7в.

Сбрасывающий остряк №9
5. ОАО "Волгомост филиал Мостоотряд-8" владелец

Стрелка №5в к соединительному пути №16 станции Покровск.

Сигнальный знак

"Граница ж/д пути н/п" установленный у предельного столбика стрелки №5в

Предохранительный тупик №1

Сооружения и устройства станции.

На территории станции расположены:

низкая пассажирская платформа длиной 95метров, прилегающая к 1-му пути станции Покровск;

низкая пассажирская платформа длиной 65метров, прилегает ко 2-му пути станции Покровск;

грузовой двор с открытыми площадками для выгрузки тарно-штучных грузов;

погрузо-выгрузочная площадка длиной 65 метров, примыкающая к 11 пути станции Покровск;

двухъярусная металлическая рампа для выгрузки легковых автомобилей, примыкающая к 11 пути станции Покровск;

низкая пассажирская платформа длиной 95 метров, прилегающая к пути №4 разъезда 3 км.

Устройства связи на станции обеспечивают быструю и четкую передачу распоряжений ДСП работникам станции о приеме и отправлении поездов, о порядке производства маневровой работы и других указаний.

В помещении дежурного по станции имеется: поездная диспетчерская связь с ДНЦ участка, поездная межстанционная связь с дежурными по станции Анисовка; постанционная связь дежурного по станции со станциями, отделением и Управлением дороги; диспетчерская внутристанционная связь ДСП со станционными работниками; служебная с диспетчером ШЧ внутристанционная АТС, проводная двухсторонняя радиосвязь с машинистами поездных локомотивов; маневровая двусторонняя радиосвязь с машинистами маневровых локомотивов и составителями поездов, двухсторонняя парковая связь, связь оператора ЭВМ по сети передачи данных со станциями Приволжской железной дороги, ИВЦ Саратова.

Кроме того, имеется маневровая радиосвязь составителей поездов с машинистами маневровых локомотивов.

Устройства энергоснабжения станции (основное и резервное) обеспечивает надежное электропитание устройств СЦБ и связи, достаточное освещение территории, объектов станции и грузового двора.

Характеристика подъездных путей, примыкающих к станции.

Путь необщего пользования ОАО "Транспортное машиностроение" примыкает к 12 пути станции Покровск стрелками №№ 81, 83. Обслуживается путь необщего пользования собственным локомотивом. Развёрнутая длина пути необщего пользования - 5600 метров погонных.

Сдаваемые на путь необщего пользования вагоны подаются в предохранительный тупик №1, дальнейшее продвижение вагонов производится локомотивом ветвевладельца.

Возвращаемые с пути необщего пользования вагоны доставляются локомотивом ветвевладельца в предохранительный тупик №1. Количество вагонов в каждой сдаваемой ветвевладельцу передаче устанавливается 8 вагонов. С пути необщего пользования вагоны возвращаются дороге группам, поданными на путь необщего пользования.

Подача вагонов на путь необщего пользования производится круглосуточно по уведомлению, которое передаётся приемосдатчиком станции Покровск по телефону не позднее, чем за 2 часа до предстоящей подачи лицам, уполномоченным предприятием и сообщенным начальнику станции.

Об окончании погрузки, выгрузки и готовности к уборке одновременно поданных вагонов к фронту, предприятие уведомляет по телефону приёмосдатчика станции Покровск с последующим письменным подтверждением, передаваемым на станцию, не позднее чем через 30 минут.

Осмотр и передача вагонов в техническом и коммерческом отношениях производится на приемо-сдаточных путях.

Учёт наличия вагонов на пути необщего производится по номерному способу.

Расстояние для взыскания сбора за подачу и уборку вагонов принимается 0,5км. в оба конца.

На территории предприятия установлены следующие технологические нормы на выполнение погрузо-выгрузочных операций.

Путь необщего пользования предприятия ЗАО "Покровские фильтры" примыкает к ходовому пути станции Покровск стрелкой № 89. Развёрнутая длина составляет 343 метров погонных.

Подача и уборка вагонов производится локомотивом станции с расстановкой вагонов по фронтам погрузки и выгрузки. Подача вагонов производится круглосуточно по уведомлению, передаваемому приемосдатчиком станции Покровск за 2 часа до предстоящей подачи лицам, уполномоченным предприятием.

Об окончании погрузи или выгрузки и готовности к уборке одновременно поданных к фронту вагонов представитель пути необщего пользования уведомляет приемосдатчика станции Покровск по телефону с последующим представлением письменного уведомления не позднее, чем через 30 минут.

Приём и сдача вагонов производится па путях погрузки, выгрузки в соответствии с Правилами перевозок грузов ж. д. транспортом, сборник - книга 1.

Учёт наличия вагонов на пути необщего производится по номерному способу.

Расстояние для взыскания сбора за подачу и уборку вагонов 1,0км в оба конца.

Количество вагонов в каждой одновременно сдаваемой на путь необщего пользования не должно превышать 5 вагонов.

На территории предприятия установлены следующие технологические нормы на выполнение погрузо-выгрузочных операций:

Путь необщего пользования ОАО Энгельсская нефтебаза "Саратовнефтепродукт" примыкает к пути №3 парка "Волга" стрелкой № 8. Развёрнутая длина составляет 611 метров погонных.

Подача и уборка вагонов производится локомотивом станции с расстановкой вагонов по фронтам погрузки и выгрузки. Подача вагонов производится круглосуточно по уведомлению, передаваемому приемосдатчиком станции Покровск за два часа до предстоящей подачи лицам, уполномоченным директором предприятия и сообщенным начальнику станции.

Об окончании погрузи или выгрузки и готовности к уборке одновременно поданных к фронту вагонов представитель пути необщего пользования уведомляет приемосдатчика станции Покровск по телефону с последующим представлением письменного уведомления не позднее, чем через 30минут.

Приём и сдача вагонов производится на путях погрузки, выгрузки в соответствии с Правилами перевозок грузов ж. д. транспортом, сборник - книга 1.

Учёт наличия вагонов на пути необщего производится по номерному способу.

Расстояние для взыскания сбора за подачу и уборку вагонов 8,2км в оба конца.

Количество вагонов в каждой одновременно сдаваемой на путь необщего пользования не должно превышать 10 вагонов.

На территории предприятия установлены следующие технологические нормы на выполнение погрузо-выгрузочных операций.

Путь необщего пользования ГУП "Энгельсский речной порт" примыкает к парку "Волга" стрелками №№1,3,7 и обслуживается собственным локомотивом.

Подача и уборка вагонов производится локомотивом станции на приемосдаточные пути №1 и №4 парка "Волга". Дальнейшее продвижение вагонов и расстановка их по фронтам погрузки выгрузки производится локомотивом предприятия.

Подача вагонов производится круглосуточно по уведомлению, передаваемому приемосдатчиком станции Покровск, не позднее, чем за 2 часа до предстоящей подачи лицам, уполномоченным директором предприятия и сообщенным начальнику станции.

Об окончании погрузи или выгрузки и готовности к уборке одновременно поданных к фронту вагонов представитель пути необщего пользования уведомляет приемосдатчика станции Покровск по телефону с последующим представлением письменного уведомления не позднее, чем через 30 минут.

Приём и сдача вагонов производится на приемо - сдаточных путях в соответствии с Правилами перевозок грузов ж. д. транспортом, сборник - книга 1.

При подаче и уборке вагонов локомотивом предприятия устанавливается следующее технологическое время оборота вагонов:

общий (единый) срок для всех вагонов, кроме маршрутов 5,45 часа;

для погрузки и выгрузки маршрутов - 12 часов 26минут.

Учёт наличия вагонов на пути необщего производится по номерному способу.

Расстояние для взыскания сбора за подачу и уборку вагонов принимается 7,8 км. в оба конца.

Путь необщего пользования ОАО "Волгомост" (Мостоотряд № 8) примыкает к соединительному пути станцию Покровск стрелкой № 5, обслуживается собственным локомотивом.

Развёрнутая длина пути необщего пользования составляет 3260метров погонных.

Сдаваемые на путь необщего пользования вагоны подаются локомотивом станции на выставочный тупиковый путь №1. Возвращаемые с территории пути необщего пользования вагоны доставляются локомотивом ветвевладельца на выставочный тупиковый путь №1, откуда переставляются локомотивом станции на путь станции Покровск.

Количество вагонов в каждой сдаваемой ветвевладельцу передаче устанавливается не более 15 вагонов. Вертушки подаются в полном составе.

С пути необщего пользования вагоны возвращаются на станцию группами, поданными на путь необщего пользования.

О предстоящей подаче вагонов приёмосдатчик станции уведомляет по телефону, лицо, уполномоченное предприятием. Уведомление передается круглосуточно, не позднее, чем за 2 часа до предстоящей подачи.

Об окончании погрузки и выгрузки и готовности к уборке одновременно поданных к фронту вагонов представитель пути необщего пользования уведомляет приемосдатчика станции Покровск по телефону с последующим письменным уведомлением, переданным не позднее, чем через 30 минут.

Приём и сдача вагонов производится на приемо-сдаточных путях в дневное время в соответствии с Правилами перевозок грузов ж. д. транспортом, сборник - книга 1.

На пути необщего устанавливается единый технологический срок оборота для всех вагонов 3 часа 35 минут на группу до восьми физических вагонов и 7 часов 10 минут свыше восьми вагонов.

Учёт простоя вагонов на пути необщего производится по номерному способу.

Расстояние подачи и уборки вагонов принимается равным 4,8км в оба конца.

Маневровая работа на станции.

Подача и уборка вагонов производится на основании наряда, подаваемого приёмосдатчиком груза дежурному по станции с указанием номеров вагонов рода подвижного состава и рода груза. Время подачи или уборки вагонов отмечается в памятке приёмосдатчика.

Подачу вагонов на грузовые фронта и их уборку выполняет составитель поездов.

Дежурный по станции, после получения сообщения о готовности вагонов к уборке, даёт указание составителю поездов об уборке вагонов с грузовых пунктов и формировании очередного состава. Об окончании формирования состава составитель поездов докладывает дежурному по станции.

Для производства маневровой работы станция Покровск разделена на три маневровых района.

Руководителем маневровой работы является составитель поездов, работающий в "одно лицо". Передвижение локомотива осуществляется по сигналу составителя поездов с повторением дежурными стрелочных постов.

Маневровая работа производится одним маневровым тепловозом ЧМЭ-3, осуществляется путём осаживания.

Маневровый тепловоз оборудованным двухсторонней маневровой радиосвязью с дежурным по станции Покровск и обслуживается одним машинистом.

Экипировка, маневрового локомотива производится на путях локомотивного депо станции Анисовка.

Таблица 1.3 Границы маневровых районов и характер выполняемой работы

Район Что служит вытяжкой и ее границы Основной характер выполняемой работы
1 2 3

1 маневровый район

(от входного "Н" до оси станции)

Вытяжка № 12

от стр. № 5 до упора

Расформирование и формирование поездов, подборка местных вагонов по пунктам подачи.

2 маневровый район

(от стрелки №53 до оси станции)

Соединительный путь № 16 от стр. № 53 до предельного столбика стр. № 6а парка "Волга".

Расформирование и формирование поездов, подборка местных вагонов по пунктам подачи.

Подача и уборка вагонов на грузовой двор.

3 маневровый район

(парк "Волга")

Соединительный путь от стр. № 6а до стыка рамного рельса стрелки № 53 станции Покровск

Выставка вагонов для пред. "Энгельсский речной порт" и его контрагентов;

Подача и уборка вагонов на пред. "Энгельсская нефтебаза".

2. Расчет потребности вагонного парка и показателей его использования

2.1 Определение вагонопотоков прибытия и отправления по объектам грузовой работы

Суточное отправление и прибытие каждого рода груза определяем по формуле:

, (2.1)

где: - прибытие (отправление) груза в год, тонны;

- коэффициент внутригодовой неравномерности прибытия (отправления),1,2;

Грузовой двор:

Тарно-штучные грузы (повагонные отправки)

Выгрузка: Погрузка:

тонн

тонн

Трубы:

Выгрузка:

тонн

Песок:

Выгрузка:

тонны

Подъездной путь ОАО "Трансмаш":

Выгрузка: Погрузка:

Оборудование: Металлолом:

тонн тонны

Подъездной путь ОАО "Энгельсский завод фильтров":

Выгрузка: Погрузка:

Тарно-штучные грузы: Тарно-штучные грузы:

тонн тонн

Подъездной путь Энгельсская нефтебаза ОАО "Саратовнефтепродукт":

Выгрузка: Погрузка:

Дизтопливо: Бензин:

тонн тонн

Подъездной путь ЗАО "Энгельсский речной порт":

Выгрузка: Погрузка:

Гравий: Металлолом:

тонн тонн

Подъездной путь ОАО "Волгомост филиал мостоотряд-8":

Выгрузка: Погрузка:

Щебень: Песок:

тонн тонн

Количество вагонов, необходимых для обеспечения суточной погрузки заданных грузов и количество вагонов, прибывающих за сутки на станцию под выгрузку, определяем по формуле:

, (2.2)

где: объем суточной погрузки или выгрузки, т.;

Pтн4 - техническая норма загрузки 4-х осного вагона, 54т/ваг.

Тарно-штучные грузы (повагонные отправки):

Выгрузка: вагонов

Погрузка: вагонов

Трубы:

Выгрузка: вагонов

Песок:

Выгрузка: вагонов

Подъездной путь ОАО "Трансмаш". Оборудование:

Выгрузка: вагона

Металлолом:

Погрузка: вагонов

Подъездной путь ОАО "Энгельсский завод фильтров":

Тарно-штучные грузы:

Выгрузка: вагонов

Тарно-штучные грузы:

Погрузка: вагонов

Подъездной путь Энгельсская нефтебаза ОАО "Саратовнефтепродукт":

Дизтопливо:

Выгрузка: вагонов

Бензин:

Погрузка: вагонов

Подъездной путь ЗАО "Энгельсский речной порт":

Гравий:

Выгрузка: вагонов

Металлолом:

Погрузка: вагонов

Подъездной путь ОАО "Волгомост филиал мостоотряд-8":

Щебень:

Выгрузка: вагонов

Песок:

Погрузка: вагонов

2.2 Обеспечение пунктов погрузки порожними вагонами

Обеспечение пунктов погрузки порожними вагонами производится на основании балансовой таблицы 2.1 с учетом производственных расчетов по определению потребности вагонов.

Из таблицы 2.1 видно, что все пункты на грузовом дворе обеспечены порожними вагонами из-под выгрузки соответствующих грузов, 6 платформ и 4 полувагона (излишек) сдают по регулировочному плану на отделение дороги, а 14 полувагона передают на п/п "Трансмаш" под погрузку металлолома.

Для обеспечения погрузки в полном объеме на 3 подъездных пути под погрузку поступают всего 30 вагонов - 10 крытых, 10 цс и 10 пв из регулировки, т.к там наблюдается их недостаток.


Таблица 2.1 Балансовая таблица

Наименование

погрузо-выгрузочных

пунктов

Название грузовых пунктов

(складов)

Тип

вагонов

Выгрузка Погрузка Баланс порожних вагонов Порядок обеспечения порожними вагонами

Поступление

(недостаток)

Отправление

(излишек)

1 2 3 4 5 6 7 8 9 10

Грузовой

двор

Тарно-штучные грузы (ПО):

кр

810 15 810 15 - - -
Трубы пл. 318 6 - - - 6 в регулировку
Песок пв. 1242 18 - - - 4 14 пв под погр металлолома, 4пв в регул.
Итого по грузовому двору 2370 39 810 15 - 10
П/путь ОАО "Трансмаш" Оборудование пл. 210 4 - - - 4 в регулировку
Металлолом пв. - - 742 14 - - 14 пв с г/д
П/путь ОАО "Энгельсский завод фильтров" Тарно-штучные грузы (ПО): кр. 545 10 - - - -
Тарно-штучные грузы (ПО): кр. - - 1080 20 10 - 10 из регулировки
Энгельсская нефтебаза ОАО "Саратовнефтепродукт" Диз. топливо цс. 500 10 - - - -
Бензин цс. - - 1260 20 10 - 10 из регулировки
П/путь ЗАО "Энгельсский Гравий пв. 700 10 - - - -
речной порт" Металлолом пв. - - 540 20 10 - 10 из регулировки
П/п ОАО "Волгомост филиал мостоотряд-8" Щебень пв. 700 10 - - - -
Песок пв. - - 680 10 - -
Итого по подъездным путям 2655 39 4822 84 30 4 -
Всего по станции 5025 83 5632 99 30 14 -

Таблица ПЗ.2 Годовой грузооборот станции

Название

грузового пункта

Наименование

груза

Род вагонов Выгрузка Погрузка Процентное соотношение вагонов
тыс. тонн тыс. тонн 4-осные

Грузовой двор

Тарно-штучные (ПО) кр. 246375 246375 100%
Трубы пл. 96725 - 100%
Песок пв. 377775 - 100%
ОАО "Трансмаш" Оборудование пл. 63900 - 100%
Металлолом пв. - 225692 100%
ОАО "Энгельсский завод фильтров" Тарно-штучные грузы (ПО) кр. 165770 - 100%
Тарно-штучные грузы (ПО) кр. - 228125 100%
Энгельсская нефтебаза ОАО "Саратовнефтепродукт" Дизтопливо цс 152100 - 100%
Бензин цс - 377167 100%

ЗАО " Энгельсский

речной порт"

Гравий пв. 213000 - 100%
Металлолом пв. - 328500 100%
ОАО "Волгомост филиал мостоотряд-8" Щебень пв. 213000 - 100%
Песок пв. - 206850 100%

2.3 Определение средней статической нагрузки по станции

Средняя по станции статическая нагрузка (проверочная) может быть определена по формуле:

, (2.3)

где: - количество грузов всех наименований, погруженных на станции за сутки, т,

- количество вагонов, загружаемых всеми грузами на станции за сутки, ваг.

т/ваг.

Коэффициент сдвоенных операций определяют по формуле:

, (2.4)

где: - суточная выгрузка на станции, вагонов;

-суточная погрузка на станции, вагонов;

- количество порожних вагонов, поступающих на станцию под погрузку по регулировочному плану за сутки, вагонов.

Вычисленные показатели характеризуют эффективность использования вагонного парка на станции.

3. Организация вагонопотоков на станции покровск

3.1 Определение размеров движения передаточных поездов и числа подач вагонов на грузовые пункты по станции

Вагонопоток, поступающий под выгрузку на грузовой двор и подъездные пути, прибывает на станцию Покровск передаточными поездами. Создаваемый вагонопоток после погрузки и последующего накопления отправляется, также передаточными поездами, на станции Пугачевск и Сенную.

Число передаточных поездов определяют по формуле:

, (3.1)

где: - суммарное количество груженых и порожних вагонов, поступающих на грузовой двор за сутки, или погруженных и освободившихся после выгрузки на грузовом дворе за сутки; - состав передаточного поезда.

Состав передаточного поезда - 30 вагонов, остальные исходные данные показаны в таблице 2.1

Число передаточных поездов с гружеными и порожними вагонами определяют как по прибытию, так и по отправлению. Передаточные поезда с вагонами на грузовой двор и подъездные пути подлежат расформированию и сортировке по фронтам погрузки. Среднее количество прибывающих вагонов на j-й грузовой пункт (или разложение состава передаточного поезда) может быть определено по формуле:

, (3.2)

где: - количество вагонов, перерабатываемых за сутки на j-м грузовом пункте отдельно по погрузке и выгрузке; - общее количество вагонов, перерабатываемых за сутки на грузовом пункте отдельно по погрузке и выгрузке. Очевидно, что состав передаточного поезда равен сумме отдельных групп, перерабатываемых на грузовых пунктах, то есть:

, (3.3)

где n - число грузовых пунктов. Определение количества передаточных поездов по прибытию и отправлению и среднего количества вагонов на каждый грузовой пункт. По прибытию:

поезда.

Количество вагонов в составе передаточного поезда: с тарно-штучными грузами (повагонные отправки).

вагона;

с трубами:

вагона;

с песком:

вагона;

Подъездной путь ОАО "Трансмаш":

Оборудование: вагон;

Подъездной путь ОАО "Энгельсский завод фильтров":

Тарно-штучные грузы: вагона;

Подъездной путь Энгельсская нефтебаза ОАО "Саратовнефтепродукт":

Дизтопливо: вагона;

Подъездной путь ЗАО "Энгельсский речной порт":

Гравий: вагона;

Подъездной путь ОАО "Волгомост филиал мостоотряд-8":

Щебень: вагона;

Порожние вагоны (из регулировки):

вагонов.

Проверка: 4+2+4+1+3+3+3+3+7 = 30 вагонов. По отправлению:

поезда.

Количество вагонов в составе передаточного поезда:

с тарно-штучными грузами (повагонные отправки):

вагона;

Подъездной путь ОАО "Трансмаш":

Металлолом: вагона;

Подъездной путь ОАО "Энгельсский завод фильтров":

Тарно-штучные грузы: вагонов;

Подъездной путь Энгельсская нефтебаза ОАО "Саратовнефтепродукт":

Бензин: вагонов;

Подъездной путь ЗАО "Энгельсский речной порт":

Металлолом: вагонов;

Подъездной путь ОАО "Волгомост филиал мостоотряд-8":

Песок: вагона;

Порожние вагоны (в регулировку):

вагона

Проверка: 4+4+5+5+5+3+4 = 30 вагонов.

Таблица 3.1 Разложение составов передаточных поездов

Грузы, поступающие в составах передаточных поездов

Среднее количество вагонов

(по расчету)

Фактическое разложение составов

передаточных поездов

3601 3603 3605 3607
1 2 3 4 5 6

Тарно-штучные:

а) повагон. отправки

4

5

3

4

3

Трубы 2 2 1 1 2
Песок 4 6 3 5 4
Оборудование 1 1 1 1 1
Тарно-штучные грузы 3 1 4 3 2
Дизтопливо 3 1 4 3 2
Гравий 3 1 4 3 2
Щебень 3 1 4 3 2
Порожние вагоны 7 9 5 6 10
Всего вагонов в составе 30 27 29 29 28

При большой потребности в порожних вагонах на грузовом дворе поступление их на станцию может быть организовано передаточными поездами, составленными только из порожних вагонов. Массовые грузы, предъявляемые ежесуточно к перевозке в большом объеме, должны, как правило, отправляться маршрутами.

По заданию с подъездных путей отправляют (и прибывают) именно массовые грузы. Поэтому суточный вагонопоток подъездных путей следует организовать в маршруты.

3.2 Определение количества вагонов в составе маршрутов

Определение количества вагонов в составе маршрутов по отправлению и прибытию следует проводить по формуле:

, (3.4)

где: - масса состава маршрута брутто (см. п.3 задания);

- масса тары соответственно 4 - и 8-осных вагонов;

- техническая норма загрузки 4 - и 8-осных вагонов.

Расчет количества вагонов в составе маршрута по отправлению и прибытию:

бензин:

вагон;

металлолом:

вагонов.

Станция Покровск работает с опасными грузами 3 класса.

С опасными грузами класса 1 (взрывчатые материалы) и 7 (радиоактивные вещества) станция не работает.

Класс 2 (газы сжатые, сжиженные и растворенные под давлением). В емкостях (цистерн, баллона) имеет место избыточное давление. Оно может значительно повышаться с увеличением температуры, что может привести к разгерметизации емкости или даже ее разрушению.

Класс 3 (легковоспламеняющиеся жидкости). В случае утечки способны создавать над поверхностью горючую концентрацию паров при любых температурах окружающей среды выше температуры вспышки. Горючая концентрация паров может распространяться от места возникновения на расстояние более 2 км, а низкие температуры самовоспламенения паров приводят к их воспламенению от нагретых тел и поверхностей.

Класс 4 (легковоспламеняющиеся твердые вещества, самовоспламеняющиеся вещества, вещества, выделяющие воспламеняющиеся газы при взаимодействии с водой). Грузы класса 4 характеризуются высокой активностью по отношению к воде. Взаимодействие с водой может носить характер взрыва. В ходе химической реакции образуются воспламеняющиеся горючие газы.

Класс 5 (окисляющие вещества и органические пероксиды). Специфичность свойств опасных грузов данного класса определяется их способностью при нагревании разлагаться с образованием кислорода (разложение пероксидов может носить характер взрыва), что способствует развитию пожара в условиях аварийной ситуации.

Класс 6 (ядовитые вещества). Грузы этого класса способны вызвать отравления, заболевания при попадании вовнутрь или при соприкосновении с кожей. Особенно опасны легколетучие вещества при создании высоких концентраций, приводящих к отравлению не только в зоне аварийной ситуации, но и на значительном расстоянии от неё.

Класс 8 (едкие или коррозионные вещества). При проведении аварийно-восстановительных работ с опасными грузами данного класса необходимо учитывать, что при непосредственном контакте эти вещества вызывают повреждения живой ткани, а при утечке и просыпании - повреждение и даже разрушение перевозимых грузов или транспортных средств.

Класс 9 (прочие опасные вещества). Класс 9 подразделяется на подклассы 9.1 и 9.2. Опасностью веществ подкласса 9.1 является способность воспламеняться при определённых условиях, становиться коррозионными для стали, алюминия и других металлов при увлажнении, вызывать раздражение и ожоги влажной кожи, оказывать вредное воздействие на организм при неправильном обращении с ними, выделять ядовитые газы при попадании в огонь. Опасные вещества подкласса 9.2 обладает видами опасности, проявление которых представляет опасность только при их транспортировании навалом водным транспортом.

Каждый класс опасных грузов в соответствии с их свойствами делится на подклассы, категории и группы. В алфавитном указателе опасных грузов "Сборника правил и тарифов №370" приводится номер вещества по списку ООН и наименование груза, номер аварийной карточки, предписывающей порядок действия при аварийных ситуациях, содержание штемпелей о характере опасности, прикрытия, возможности роспуска с горки.

Грузоотправитель обязан указать в накладной точное наименование опасного груза согласно алфавитного указателя и номер аварийной карточки. Если в указателе номер карточки отсутствует, то к накладной прикладывается аварийная карточка и делается отметка "Аварийная карточка приложена". В верхней части накладной грузоотправитель обязан проставить предусмотренные для данного груза штемпеля красного цвета. В вагонном листе аналогичные штемпеля проставляет приёмосдатчик станции.

Порожняя тара и порожние вагоны из-под сжатых и сжиженных газов перевозятся на тех же условиях, что и гружёные.

К таре и упаковке при перевозке опасных грузов предъявляются особые требования, изложенные в Правилах перевозок опасных грузов по железной дороге.

На вагоны, загруженные опасными грузами и содержащие остатки опасных грузов, наносятся знаки опасности, соответствующие классу и подклассу, к которому отнесён данный груз. Если груз обладает несколькими видами опасности, наносятся все знаки, соответствующие этим видам опасности. Знаки опасности должны прикреплять грузоотправители и удалять после выгрузки грузополучатели. На вагонах знаки опасности должны быть расположены таким образом, чтобы они были видны аварийно-спасательному персоналу.

Все специальные и специализированные цистерны должны иметь соответствующую отличительную окраску котлов (цветные полосы), знаки опасности, а также трафареты о наименовании груза.

Порядок окраски цистерн, нанесение на них знаков опасности и трафаретов о наименовании груза установлен МПС РФ.

Отличительная окраска котлов и все необходимые надписи, и трафареты на цистерны, принадлежащие железным дорогам, наносятся дорогой только масляными красками.

Массу опасных грузов во всех случаях определяет грузоотправитель. Погрузку и выгрузку их осуществляют грузоотправители или грузополучатели.

Вагоны, прибывшие с опасными грузами, должны быть приняты грузополучателем на свои подъездные пути с момента получения уведомления о прибытии или согласно договора на эксплуатацию подъездного пути. Отказ от приёма прибывших грузов не допускается.

Места налива и слива должны быть достаточно освещены для круглосуточной работы, а также снабжены необходимым противопожарным оборудованием. При погрузочно-разгрузочных работах с легковоспламеняющимися жидкостями особо тщательно соблюдать требования противопожарной и личной безопасности. Осматривая вагоны, загруженные этими грузами, или порожние после выгрузки, а также груженые вагоны с признаками течи, категорически запрещается пользоваться спичками, керосиновыми фонарями, а также курить. Во всех таких случаях пользоваться аккумуляторными фонарями, включать которые необходимо заблаговременно, не подходя к вагону. Категорически запрещается разводить огонь ближе, чем за 50 метров от мест погрузки и выгрузки опасных грузов.

Требования к погрузке и выгрузке опасных грузов.

Грузоотправители (грузополучатели) обязаны иметь разрешение (лицензию) органов Гостехнадзора России на право погрузки-выгрузки опасных грузов: грузоотправители-владельцы собственных или арендованных специализированных вагонов для перевозки опасных грузов перед каждой погрузкой должны предъявлять работникам станции и пункту технического обслуживания вагонов (ПТО) свидетельство технической исправности вагонов, включая его рабочее и конструктивное оборудование, гарантирующее безопасность перевозок конкретного опасного груза. Номер свидетельства работники ПТО проставляют в специальной книге формы ВУ-14, а на обратной стороне накладной в графе 4 грузоотправитель производит запись "Вагон в техническом и коммерческом отношении исправен, пригоден для перевозки конкретного опасного груза, его рабочее и конструктивное оборудование соответствует установленным требованиям" ставит свою подпись и заверяет ее штемпелем.

Налив цистерн опасными грузами разрешается производить только после осмотра цистерн персоналом наливного пункта и записи о пригодности их для перевозки указанного продукта в журнале установленной формы ВУ-14.

Перед началом погрузки-выгрузки опасных грузов на сливо-наливной эстакаде цистерны должны быть надежно закреплены тормозными башмаками согласно расчетных норм, а стрелки на пути переведены в положение исключающее возможность въезда на этот путь другого состава.

По окончании налива грузоотправитель обязан протереть, а при необходимости промыть наружную поверхность котла цистерны, раму и ходовые части так, чтобы не было следов наливаемого груза.

Слив производится в местах необщего пользования. Цистерна должна быть слита полностью, остатки зачищены, а в соответствующих случаях обезврежена.

Запрещается погрузка и выгрузка опасных грузов, перевозимых наливом, на местах общего пользования, а также на местах необщего пользования, не имеющих соответствующей оснастки и приспособлений для погрузки и выгрузки этих грузов.

Меры безопасности при организации маневровой работы.

Если в перевозочных документах на вагоны имеется штемпель "Не спускать с горки", то маневры с ними должны производится осаживанием, без толчков и резких остановок. Скорость сцепления таких вагонов с другими вагонами или локомотивом не должна превышать 3км в час. Если в перевозочных документах на вагоны имеется штемпель "Прикрытие", то в качестве прикрытия должны ставить вагоны с неопасными грузами или порожние вагоны и цистерны из-под неопасных грузов. Составитель поездов перед началом производства маневров с вагонами, загруженными опасными грузами, обязан предупредить о маневрах участника маневров и лиц, сопровождающих грузы или осуществляющих их охрану. Скорость движения маневровых составов на подъездные пути предприятий и при следовании с подъездных путей не должна превышать 15 км/час. В зимних условиях при производстве маневровой работы с вагонами, загруженными опасными грузами, должны быть предусмотрены дополнительные меры безопасности.

3.3 Расчет числа маршрутов за сутки

, (3.5)

где nсут - количество вагонов за сутки.

Прибывающие маршруты назначением на подъездные пути подаются, как правило, целыми составами при наличии выставочных путей независимо от вместимости фронтов погрузки и выгрузки.

Расчет числа маршрутов за сутки по отправлению груза:

бензин:

маршрут;

металлолом:

маршрут.

Количество отгружаемых за месяц маршрутов:

бензин:

маршрутов.

металлолом:

маршрута;

Рисунок 3.1 Схема организации маршрутизации с местной погрузкой на станции Покровск


Таблица 3.2 Совмещенный календарный план погрузки грузов отправительскими маршрутами по ст. Покровск за месяц

Название Род груза Ст. Кол-во Число месяца
1 2 3 4 5 6 7 8 9 10 11 12 13 14 15 16 17 18 19 20 21 22 23 24 25 26 27 28 29 30
"Саратовнефтепродукт" бензин Калининград-Сортировочн. 15

1

1

1

1

1

1

1

1

1

1

1

1

1

1

1

"Энгельсский речной порт" металлолом Кочетовка 22

1

1

1

1

1

1

1

1

1

1

1

1

1

1

1

1

1

1

1

1

1

1

Итого 2 1 1 1 1 1 2 1 1 1 2 1 2 1 2 1 1 1 2 1 1 1 1 1 2 1 1 1 1 1

Таблица 3.3 Календарный план погрузки грузов отправительскими маршрутами по ст. Покровск Приволжской ж. д. на месяц

Станция назначения или распыления маршрута Род груза Вес и длина маршрута Количество маршрутов Числа месяца
тонн вагоны 1 2 3 4 5 6 7 8 9 10 11 12 13 14 15 16 17 18 19 20 21 22 23 24 25 26 27 28 29 30
Калининград-Сортировочный бензин

3500

41

15

1

1

1

1

1

1

1

1

1

1

1

1

1

1

1

Итого 1 1 - - 1 - 1 - 1 - 1 - 1 - 1 - 1 - 1 - 1 - 1 - 1 - 1 - 1 -

Таблица 3.4 Календарный план погрузки грузов отправительскими маршрутами по ст. Покровск Приволжской ж. д. на месяц

Станция назначения или распыления маршрута Род груза Вес и длина маршрута Количество маршрутов Числа месяца
тонн вагоны 1 2 3 4 5 6 7 8 9 10 11 12 13 14 15 16 17 18 19 20 21 22 23 24 25 26 27 28 29 30
Кочетовка Метало \лом 3500 47 22

1

1

1

1

1

1

1

1

1

1

1

1

1

1

1

1

1

1

1

1

1

1

Итого

1

1

1

1

1

1

1

1

1

1

1

1

1

1

1

1

1

1

1

1

1

1

3.4 Расчет процента маршрутизации

Процент маршрутизации определяется по формуле:

, (3.6)

где - количество вагонов, погруженных и отправленных со станции маршрутами за сутки.

Для исходных данных в балансовой таблице принять

.

На подъездном пути №2.

Бензин. Время налива -

, (3.7)

мин = 5,83 час на один маршрут.

На подъездном пути №1. Металлолом. Механизация - мостовой кран грузоподъемностью 10т, производительность 62 т/ч.

крана;

мин = 5,88 час на один маршрут.

Рассчитанные нормы времени используются для разработки графиков технологического процесса обработки групп вагонов и целых маршрутов, а также для составления суточного плана-графика работы станции.

Таблица ПЗ.3 Техническая характеристика участков, примыкающих к станции

Участки Число главных путей Средства связи для движения поездов Управление стрелками Серия поездных локомотивов
Покровск - Разъезд 3 км 1 ПАБ МКУ

2 ТЭ 10М

ЧМЭ-3

4. Расчет (проверочный) мощности технических средств станции

4.1 Расчет складских помещений

В зависимости от рода грузов, поступающих на станцию Покровск, можно дать характеристику грузовым пунктам.

Устройство и техническое оснащение грузового двора

На территории грузового двора расположены:

пакгауз площадью 5870 кв. м. (1);

погрузочно-выгрузочная высокая боковая платформа у 21 пути и погрузочно-выгрузочная высокая комбинированная платформа у 22 пути общей площадью 3600 кв. м. (2);

высокая открытая сортировочная платформа у 22 пути площадью 2000 кв. м. (3);

низкая погрузочно-выгрузочная платформа у 22 пути площадью 3000 кв. м. (4);

низкая погрузочно-выгрузочная платформа у 23 пути площадью 3600 кв. м. (5);

площадки у повышенного пути 23 общей площадью 2500 кв. м. (6);

проходная (7)

Механизированный участок погрузочно-разгрузочных работ (МЧ-4), расположенный на грузовом дворе, оснащен следующими механизмами:

двумя электрокозловыми кранами (КК грузоподъемностью 5т);

двумя (спаренными) электрокозловыми кранами КПБ грузоподъемностью 2. x10т;

бульдозером;

тракторным погрузчиком ТО-18;

двумя электропогрузчиками.

Для переработки труб на станции оборудована бетонированная площадка. Длина площадки 100 метров, ширина 25 метров, площадью 2500 кв. м. Для переработки труб используются два автокрана КС-4571 на базе автомобиля КрАЗ-257 грузоподъемностью 16 тонн.


Для выгрузки песка на грузовом дворе имеется повышенный путь. Путь обслуживает козловой кран, оснащенный вибратором для очистки полувагонов от остатков груза и люкозакрывателями.

Рисунок 4.1 Схема грузового двора станции Покровск

На территории грузового двора расположены:

1 - пакгауз площадью 587 кв. м.;

2 - погрузочно-выгрузочная высокая боковая платформа у 21 пути и погрузочно-выгрузочная высокая комбинированная платформа у 22 пути общей площадью 3600 кв. м.;

3 - высокая открытая сортировочная платформа у 22 пути площадью 2000 кв. м.;

4 - низкая погрузочно-выгрузочная платформа у 22 пути площадью 3000 кв. м.;

5 - низкая погрузочно-выгрузочная платформа у 23 пути площадью 3600 кв. м.;

6 - площадки у повышенного пути 23 общей площадью 2500 кв. м.;

7 - проходная;

Размеры складов грузового двора устанавливаем одним из следующих способов:

По нагрузке на 1 кв. м. площади склада (все грузы, кроме зерна, цемента и др., хранящихся в силосах, а также контейнеров), Для контейнеров по принятой схеме планировки расположения контейнеров на площадке (грузы в контейнерах), Для хранения зерна, цемента и других грузов по необходимому количеству силосов находим по формуле:

, (4.1)

где: суточное прибытие или отправление груза, т.;

расчетный срок хранения грузов на складе, принимаем для повагонных отправок по прибытию сут., по отправлению сут.;

коэффициент, учитывающий дополнительную площадь на проходы, проезды машин и механизмов,

коэффициент, учитывающий прямой вариант перегрузки, принимаем ;

расчетная нагрузка на 1 кв. м. площади, т/кв. м.

Определяем площадь склада для тарно-штучных грузов (повагонные отправки):

кв. м.;

кв. м.;

Определяем площадь площадки для труб:

кв. м.;

Определяем площадь площадки для песка:

кв. м.;

Определим площади складов на подъездных путях и арендованных участках по формуле:

, (4.2)

Определяем площадь складов для хранения:

Подъездной путь ОАО "Трансмаш":

Оборудование: кв. м.

Металлолом: кв. м.

Подъездной путь ОАО "Энгельсский завод фильтров"

Тарно-штучные грузы: кв. м.

Тарно-штучные грузы: кв. м.

Подъездной путь Энгельсская нефтебаза ОАО "Саратовнефтепродукт":

Дизтопливо: кв. м.

Бензин: кв. м.

Подъездной путь ЗАО "Энгельсский речной порт"

Гравий: кв. м.

Металлолом: кв. м.

Подъездной путь ОАО "Волгомост филиал мостоотряд-8"

Щебень: кв. м.

Песок: кв. м.

4.2 Расчет погрузо-выгрузочных средств

Количество погрузо-разгрузочных машин для грузового пункта определяем по формуле:

, (4.3)

где: Q выгрсут - суточная выгрузка на грузовом пункте, т.;

Q погр. сут - суточная погрузка на грузовом пункте, т.;

коэффициент, учитывающий долю погрузочно-разгрузочных работ по прямому варианту "автомобиль-вагон" и "вагон-автомобиль"; величина этого коэффициента устанавливается, исходя из заданных режимов работы грузового двора (0,2-0,5);

Тпер - продолжительность работы грузового пункта, ч.;

Тпост - постоянные перерывы в работе грузового пункта, исходя пункта, исходя из режима работы (прием и сдача смен, обеденные перерывы и т.п.; при круглогодичной работе, Тпост = 4-5ч.;

количество подач и уборок вагонов с грузового двора за сутки (принимаем равное числу передаточных поездов за сутки);

продолжительность подачи и уборки вагонов на грузовой пункт, (технологический процесс работы станции Покровск);

общая масса груза в подаваемой группе вагонов, т.;

, (4.4)

где: П - техническая производительность погрузо-разгрузочной машины, т/ч;

количество вагонов в подаваемой группе (принимается по разложению состава передаточного поезда);

техническая норма загрузки, т.;

время на выполнение подготовительных и заключительных операций с группой вагонов, мин.;

Количество погрузочно-разгрузочных машин на подъездном пути и норма времени (в мин) на выполнение грузовых операций с группой вагонов (маршрутом) определяют по формулам:

, (4.5), , (4.6)

где - суточный грузооборот грузового пункта, т.;

если при определении округление проведено в меньшую сторону и при округлении проведено в большую сторону.

, (4.7)

где - количество вагонов в составе маршрута.

Тарно-штучные грузы (повагонные отправки). Механизация - аккумуляторные погрузчики, грузоподъемностью до 1,5т., производительностью 32 т/ч.

аккумуляторных погрузчиков;

Трубы. Механизация - 2-х консольный козловой кран, грузоподъемностью 10 т, пролетом 16 м, производительностью 70,5 т/ч.

кран.

Выгрузка песка (повышенный путь).

мин.

Подъездной путь ОАО "Трансмаш":

Выгрузка оборудования. Механизация - 2-х консольный козловой кран, грузоподъемностью 10т., ширина пролета 16м., производительность 70,5 т/ч.;

кран.

Погрузка металлолома производится на погрузочной площадке.

Механизация - электромостовой кран с электромагнитной плитой, грузоподъемность 5 т.

кран.

Подъездной путь ОАО "Энгельсский завод фильтров":

Выгрузка тарно-штучных грузов (повагонные отправки). Механизация - аккумуляторные погрузчики, грузоподъемностью до 1,5т., производительностью 32 т/ч.

аккумуляторных погрузчика;

Погрузка тарно-штучных грузов (повагонные отправки). Механизация - аккумуляторные погрузчики, грузоподъемностью до 1,5т., производительностью 32 т/ч.

аккумуляторных погрузчика;

Подъездной путь Энгельсская нефтебаза ОАО "Саратовнефтепродукт":

Выгрузка самотеком дизтоплива

мин.;

Погрузка бензина.

Общее время в минутах налива цистерн:

, (4.8)

где: tпод - время на подготовительные операции (открытие люков, заправка шлангов); ориентировочно принимаем равным 2 минуты на одну цистерну;

tзакл - время на заключительные операции (уборка шлангов, замер жидкости, закрывание люков и др.); ориентировочно принимаем равным 12 минут на одну цистерну;

tнс - время непосредственно налива (слива) цистерн.

Время в минутах непосредственно налива (слива) цистерн определяют по формуле:

, (4.9)

где: qi - вместимость однотипных цистерн, т;

ni - число однотипных цистерн в группе;

F - площадь поперечного сечения однотипного трубопровода, F = 0,00785 м2 ;

z - число однотипных трубопроводов, используемых параллельно;

g - плотность нефтепродукта, т/м3 ;

uср - средняя скорость движения нефтепродуктов в трубопроводе uср = 1,5 м/с.

Подъездной путь ЗАО "Энгельсский речной порт".

Выгрузка гравия. Механизация - повышенный путь оснащен козловым краном с вибратором и люкозакрывателями.

кран.

Погрузка металлолома. Механизация - электромостовой кран с электромагнитной плитой, грузоподъемность 5 т.

крана.

Подъездной путь ОАО "Волгомост филиал мостоотряд-8".

Выгрузка щебня. Механизация - повышенный путь с козловым краном с вибратором и люкозакрывателями производительностью 75 т/ч;

кран.

Погрузка песка. Механизация - кран стреловой с навесным грейфером, емкость ковша 1,5 м3 производительностью 75 т/ч;

кран;

4.3 Расчет продолжительности грузовых операций

Норма времени в минутах на выполнение грузовых операций с группой вагонов, определяем по формуле:

(4.10)

где - суточный грузооборот грузового пункта, т;

(4.11)

где: П - техническая производительность погрузо-разгрузочной машины, т/ч;

количество вагонов в подаваемой группе (принимается по разложению состава передаточного поезда);

техническая норма загрузки, т.;

время на выполнение подготовительных и заключительных операций с группой вагонов, мин.;

количество погрузо-разгрузочных машин.

если при определении округление проведено в меньшую сторону и при округлении проведено в большую сторону.

(4.12)

где: - количество вагонов в составе маршрута;

общая масса груза в подаваемой группе (принимается по разложению состава передаточного поезда).

Для тарно-штучных грузов (повагонные отправки):

мин. = 1ч.30 мин.

Выгрузка труб:

мин. = 2ч.20 мин.

Выгрузка песка - повышенный путь:

мин. = 0,95ч.

Подъездной путь ОАО "Трансмаш":

Оборудование: мин. = 1ч.30 мин.

Металлолом: мин. = 1 ч.52 мин.

Подъездной путь ОАО "Энгельсский завод фильтров":

Тарно-штучные грузы: мин. = 1 ч.50 мин.

Тарно-штучные грузы: мин. = 2 ч.57 мин.

Подъездной путь Энгельсская нефтебаза ОАО "Саратовнефтепродукт":

Дизтопливо: мин.; Бензин:

мин.

мин. = 3ч.47 мин.

Подъездной путь ЗАО "Энгельсский речной порт":

Гравий: 1,75 ч.

Металлолом: мин. = 4 ч.15 мин.

Подъездной путь ОАО "Волгомост филиал мостоотряд-8":

Щебень: ч.

Песок: мин. = 2ч.51 мин.

4.4 Расчет потребного количества автотранспорта

Выбор типа и марки автомашин проводится с учетом физико-химических свойств, размеров и веса грузов.

Потребное количество автомашин для завоза и вывоза заданного груза, перерабатываемого на грузовом дворе, определяют по формуле:

, (4.13)

где: Qсут - суточный грузооборот, т.;

- расстояние перевозки грузов от склада до склада потребителя, 15 км;

- средняя коммерческая скорость движения автомобиля (автопоезда), принимается для городских условий, равной 20 км/ч;

Тн - время нахождения автомобиля в наряде, 16 ч/сут;

qн - номинальная грузоподъемность автомобиля (автопоезда), принятого для освоения рассматриваемого грузооборота, т.;

- коэффициент использования грузоподъемности автомобиля (автопоезда), принимаемый равным:

1,0 для грузов 1 класса;

0,8 для грузов 2 класса (тарно-штучные);

0,6 для грузов 3 класса;

0,5 для грузов 4 класса;

0,4 для грузов 5 класса;

- коэффициент выпуска автомобилей (принимается = 0,67);

t - время нахождения автомобиля (автопоезда) в пунктах погрузки и выгрузки, ч, принимается в соответствии с разделом 4 Прейскуранта №13-01-01 "Единые тарифы на перевозку грузов автомобильным транспортом"

- коэффициент использования пробега автомобилей (отношение пробега груженого автомобиля к общему пробегу за один оборот автомобиля).

Определяем число автомобилей для перевозки тарно-штучных грузов (повагонные отправки). Для перевозки используется автопоезд: КАМАЗ-54102, грузоподъемностью 19,2 т. ч., ч.

8 автомобилей.

Трубы:

Для перевозки используем КАМАЗ-5320 с прицепом, грузоподъемностью 16 тонн. , Расстояние перевозки 10 км.

автомобиля.

Песок:

Для перевозки используем КАМАЗ-5320 с прицепом, грузоподъемностью 16 тонн. , Расстояние перевозки 10 км.

автомобилей.

Таблица ПЗ.4 План формирования поездов

Категория поездов Станция назначения, распыления Количество вагонов в составе Весовые нормы, т.
Чет. Нечет.
Передаточные, Анисовка 30 2500 2500

5. Организация грузовой и коммерческой работы

Грузовая работа на станции Покровск выполняется круглосуточно и должна быть равномерно распределена по периодам суток.

Основная грузовая работа осуществляется на путях необщего пользования и лишь 0,5% от общего объема - на путях общего пользования.

Местами общего пользования на станции являются грузовой двор и погрузо - выгрузочный путь №11.

Приём и сдача вагонов в коммерческом отношении осуществляется между приемосдатчиком груза и представителем грузовладельца при осуществлении грузовых операций в местах необщего пользования в соответствии с договором, на путях общего пользования в местах погрузки - выгрузки.

В процессе выполнения грузовых операций, приёмосдатчики груза информируют дежурного по станции о ходе выполнения грузовых операций и предполагаемом времени их окончания, а после окончания погрузки передают дежурному по станции наряд на уборку вагонов с путей необщего пользования с указанием места подачи, количества и номеров вагонов, рода груза.

На основании полученного наряда дежурный по станции даёт указание составителю поездов об уборке вагонов и извещает приёмосдатчиков о предстоящем заезде маневрового локомотива.

Прием к перевозке и погрузка повагонных отправок. До начала погрузки приёмосдатчик груза получает от товарного кассира наряд - заказ, на основании которого планируется погрузка на следующие сутки. На основании данного наряда планирует им подача порожних вагонов под погрузку. Порожние вагоны под погрузку приемосдатчик груза предъявляет к техническому осмотру работнику ВЧД-14.

В книгу формы ВУ-14 приемосдатчик записывает все номера вагонов, предъявленных под погрузку, цифровой код принадлежности вагона государству - собственнику наименование груза, предназначенного под погрузку, после указания рода груза в обязательном порядке записываются страна, для которой предназначен груз. Затем приемосдатчик предъявляет данные вагоны к техническому осмотру осмотрщику вагонов. Приемосдатчик и осмотрщик вагонов - осмотр вагонов в техническом и коммерческом отношении заверяют своими подписями в книге формы ВУ-14 с отметкой о пригодности порожних вагонов под погрузку, а также груженых под сдвоенные операции.

При техническом осмотре осмотрщик вагонов выявляет все технические неисправности вагонов и устраняет их. Если неисправность устранить невозможно, то осмотрщик вагонов в книге формы ВУ-14 напротив номера вагона отмечает характер неисправности. При возврате вагонов с путей необщего пользования осмотрщик вагонов проверяет их техническое состояние, и обнаруженные неисправности сверяет с записями в книге формы ВУ-14.

На обнаруженную техническую неисправность осмотрщик вагонов выписывает уведомление формы ВУ-23, где указывает характер неисправности и меры безопасности при следовании данного вагона в ремонт, а также сообщает оператору ПТО информацию о неисправном вагоне.

Если при возврате с пути необщего пользования на станцию осмотрщик вагонов выявил техническую неисправность вагона, не обнаруженную ранее, то такой вагон после составления акта формы ВУ-25 отправляется на станцию Анисовка для подачи его на пути ВЧД-14 для ремонта.

Предъявление порожних вагонов под погрузку опасных грузов осуществляется порядком, изложенным выше порядком с регистрацией осмотра в отдельном "Журнале предъявления к техническому осмотру вагонов под погрузку опасных грузов" формы ВУ-14 Осмотр вагонов осуществляется в порожнем состоянии в день начала погрузки.

В случае выявления вагонов негодных под погрузку осмотрщик вагонов делает отметку "не годен" о чем уведомляет дежурного по станции.

Прием грузов к перевозке осуществляемся на основании заявок грузоотправителей, которые предоставляют не менее чем за 10 дней до начала перевозок в прямом ж д. сообщении и не менее чем за 15дней до начала перевозок грузов в прямом и непрямом международном сообщениях. В заявках указывается количество вагонов по дням погрузки, род груза, станция и дорога назначения. До приема груза товарный кассир проверяет наличие:

доверенности на право отправлять груз, рассчитываться за перевозку и подписывать финансовые документы (накладную, учетную и накопительную карточки; памятку приемосдатчика, ведомость подачи и уборки вагонов, счета-фактуры, актов общей формы);

наличие заявки на перевозку груза, согласованной в ДЦФТО, согласно станции и Устава железнодорожного транспорта РФ;

договора у грузоотправителя на подачу и уборку или на эксплуатацию пути необщего пользования и срок его действия, а также договора на организацию перевозок грузов;

лицевого счета в Саратовском ТехПД и денежных средств на нем, необходимых для оплаты данной перевозки и сборов за ж. д. услуги;

соответствия станции назначения коммерческим операциям, выполняемым с данным грузом;

согласия станции назначения в приеме груза при перевозке продовольственных скоропортящихся грузов, а также нефти и нефтепродуктов в адреса частных лиц, индивидуальных частных предприятий или когда грузоотправитель и грузополучатель является одним и тем же лицом;

соответствия наименования груза со справочником НСИ ЭТРАН, для перевозки грузов в международном сообщении, соответствие наименования груза справочнику гармонизированной номенклатуры грузов (ГНГ);

приказа по предприятию "о назначении ответственного лица за погрузку" и акта о сдаче испытаний в знании Устава ТУЖД РФ, Правил перевозок грузов. Технических условий погрузки и крепления грузов, ГОСТа 22235-76;

лицензии у предприятия на работу с опасными грузами, при погрузке опасных грузов;

разрешения таможенного органа на погрузку, при перевозке за пределы России;

телеграммы - подтверждения оплаты тарифа, при оплате перевозки через экспедиторов;

руководящих телеграмм - распоряжений и указаний ОАО "РЖД", Управления Приволжской ж. д. и НОД-4.

А также отсутствие:

непреодолимых препятствий для отравления груза (адрес 75), согласно cт.29 и 46 Устава железнодорожного транспорта РФ;

карантинных ограничений на ввоз и вывоз (адрес 73), при перевозке продукции растительного происхождения и других под карантинных материалов;

конвенционных запрещений со сроком погрузки предъявляемого груза для назначения станции - портов и стоящихся линий (адрес 72). При выполнении всех условий, на заявке товарным кассиром проставляется календарный штемпель станции, и заявка считается принятой. Грузоотправителю выдаются чистые бланки накладных для оформления перевозки.

Приемосдатчик уведомляет грузоотправителя о времени подачи вагонов под погрузку не позднее, чем за 2 часа до подачи с регистрацией уведомления в "Книге уведомлений о времени подачи вагонов".

До предъявления к перевозке груза, находящегося под таможенным контролем, грузоотправитель заблаговременно до дня планируемой погрузки груза представляет в таможенный орган заполненную накладную. В подтверждение возможности погрузки груза таможенным органом проставляется в накладной штамп "Погрузка разрешена", заверенный личной номерной печатью и подписью должностного лица таможенного органа. Штамп проставляется в графе "Отметки таможни", а при перевозках грузов на экспорт не в прямом международном сообщении, оформленных на бланках перевозочных документов внутреннего сообщения, в графе накладной Наименование груза - под наименованием груза. После погрузки груза в вагон грузоотправитель завершает таможенное оформление перевозки. Разрешение таможенного органа на отправление груза удостоверяется в накладной и дорожной ведомости штампом ''Выпуск разрешен", заверенный номерной печатью и подписью должностного лица таможенного органа. Штамп проставляется в графе "Отметки таможни", а при перевозках грузов на экспорт не в прямом международном сообщении, оформленных на бланках перевозочных документов внутреннего сообщения. Товарный кассир сверяет штампы и печати, проставленные таможенным органом в перевозочных документах при производстве таможенного оформления грузов, с образцами, предоставленными ранее таможенным органом.

До начала погрузки приемосдатчик груза, получает от грузоотправителя накладную, проверяет в товарной конторе наличие разрешения на ввоз и погрузку грузов. Памятка приемосдатчика ГУ-45 заводится при подаче вагона под грузовые операции с указанием номера вагона, места подачи и времени начала грузовых операций.

Подтверждением времени начала грузовых операций является подписи приемосдатчика и грузоотправителя в памятке приемосдатчика ГУ-45.

Об окончании грузовых операций грузоотправитель уведомляет приемосдатчика груза по телефону с дальнейшей передачей письменного уведомления, подтверждающею завершение грузовых операций, в срок установленный договором.

Грузоотправитель предъявляет погруженный вагон приемосдатчику груза, который принимает его по наружному осмотру с проверкой исправности ЗПУ, а также соответствия перевозочным документам номеров ЗПУ. Погрузка, размещение и крепление грузов в вагоны должны соответствовать требованиям ТУ и правилам перевозок грузов и обеспечивать безопасность движения и эксплуатацию железнодорожного транспорта, сохранностью грузов и вагонов. На основании данных накладной приемосдатчик составляет вагонный лист и оформляет запись в "Книге приема груза к отравлению". Время окончания грузовых операций грузоотправитель удостоверяет подписью в памятке приемосдатчика формы ГУ-45.

Прием к перевозке грузов на открытом подвижном составе производится приемосдатчиком (не ниже 6-го разряда) путем проведения визуального осмотра груза в вагоне на наличие признаков утраты, недостачи и повреждения грузов и количества мест груза (при возможности), а также соблюдения требований технических условий размещения и крепления грузов. После проверки правильности размещения и крепления груза и оборотной стороны накладной приемосдатчик вносит необходимые отметки в вагонный лист порядком, установленным техническими условиями погрузки и крепления грузов. Проверку правильности размещения и крепления кранов и других технических средств на гусеничном или колесном ходу, с навесным оборудованием и поворотными частями, а также погруженных в соответствии с ТУ и МТУ грузов, крепление которых произведено с использованием многооборотных средств крепления осуществляет начальник станции или его заместитель по станции Покровск.

Прием к перевозке негабаритных (тяжеловесных) грузов, и грузов погруженных на транспортерах осуществляет комиссия в составе, начальника станции или его заместителя по станции Покровск (председатель), а также представителей пункта технического обслуживания вагонов и дистанции пути.

Данные комиссионной проверки заносятся в Акт проверки размещения и крепления негабаритного (тяжеловесного) груза, составляемый в двух экземплярах, один из которых прикладывается к перевозочным документам, а в второй хранится в делах станции в течение 6 месяцев.

Подробный порядок приема к перевозке негабаритных (тяжеловесных) грузов и грузов, погруженных на транспортерах описан в Инструкции по перевозке негабаритных и тяжеловесных грузов на ж. д. государств - участников СНГ.

Оформленные документы: памятку приемосдатчика, вагонный лист - приемосдатчик передает в товарную контору для оформления комплекта перевозочных документов и оплаты грузоотправителем причитающихся железной дороге платежей.

При оформлении перевозочных документов на грузы, подлежащие обязательному постоянному или сменному сопровождению товарный кассир проверяет в графе "Наименование груза" наличие отметки и Ф. И.О. проводника, серии, номера паспорта и номера командировочного удостоверения, номер удостоверения проводника - при перевозке в постоянном сопровождении и наименовании юридического лица, уполномоченного грузоотправителем (грузополучателем) на охрану груза и номера договора на охрану - при сопровождении груза на всем пути следования сменными проводниками военизированной охраны, после чего проставляет в накладной штемпель "Охрана" с указанием кода станции - в случае сопровождения груза сменными проводниками. Начисленные суммы договорных сборов проставляются в графе накладной "Тарифные отметки".

По прибытии на станцию вагонов с местным грузом приемосдатчик груза (станции Покровск) обязан уведомить грузополучателя о прибытии не позднее, чем в 12 часов дня, следующею за днем прибытия груза порядком, установленным в договоре. При отсутствии договора по телефону или телеграфу. Передача уведомления регистрируется им в "Книге уведомления о прибытии грузов". В накладной и дорожной ведомости. В графе "календарные штемпеля уведомления грузополучателя о прибытии груза" проставляется соответствующий календарный штемпель с указанием времени уведомления в графе "время час мин", фамилии лица, производившего уведомление с проставлением подписи.

В случае выявления неясности или не заполнения отдельных граф накладной, заполнения их различным шрифтом или от руки, исправлений в перевозочных документах, несоответствия данных накладной и дорожной ведомости и других нарушений Правил оформления комплекта перевозочных документов - выдача груза производится после тщательной проверки подлинности перевозочных документов и получения подтверждения начальника станции отправления.

Извещение грузополучателей о подаче вагонов под выгрузку на пути необщего пользования, примыкающие к станции Покровск производит приемосдатчик груза (станции Покровск); на пути необщего пользования разъезда 3км - приемосдатчик груза (разъезда 3км). Извещение производится не позднее, чем за 2 часа до предстоящей подачи вагонов порядком, установленным в договоре и с записью в "Книге уведомлений о подаче вагонов".

Для выдачи груза уполномоченное лицо грузоотправителя представляет в товарную контору доверенность, оформленную в соответствии с законодательством РФ и паспорт или иной, удостоверяющий личность документ. В доверенности указываются данные паспорта, или иного документа удостоверяющего личность, перечень действий, которые оно уполномочено совершить (раскредитование документов, получение накладной, осуществление расчетов за перевозку, подписание "Памятки приемосдатчика", ведомости подачи и уборки вагонов, коммерческого акта и др.), а также номер вагона и номер накладной, если доверенность выдается на получение груза по конкретной накладной.

При выдаче грузов приемосдатчиком груза осуществляется проверка путем визуального осмотра коммерческого состояния вагона (проверяется исправность ЗПУ, закруток, люков, стен вагона, количества мест груза на открытом подвижном составе, при возможности) и при отсутствии обстоятельств, предусматривающих необходимость проверки груза, предусмотренной статьей 41 Транспортного устава, такие грузы выдаются без проверки. Подтверждением выдачи груза являются подписи грузополучателя и приемосдатчика в "Памятке приемосдатчика" формы ГУ-45 в графе "Вагон сдал" "Вагон принял''. "Памятка приемосдатчика'' оформляется в 2-х экземплярах.

Выдача грузополучателю грузов, перевозившихся со сменным или постоянным сопровождением осуществляется проводниками без участия приемосдатчика за исключением случаев:

прибытия вагонов (контейнеров) с ЗПУ, наложенными при погрузке или перегрузе в пути следования или по причинам, зависящим от ж. д.;

прибытия вагонов с коммерческим актом, составленным на попутной станции;

прибытия скоропортящихся грузов с нарушением срока их доставки или с нарушением температурного режима в рефрижераторном подвижном составе;

выдачи грузов, выгрузка которых обеспечивалась в местах общего пользования;

прибытия вагонов, погруженных железной дорогой.

Порядок взаимодействия работников станции Покровск и ВЧД-14 при осмотре порожних вагонов после выгрузки и формировании сообщения 1356.

Коммерческий осмотр порожних вагонов из-под выгрузки производят приемосдатчики груза станции Покровск и разъезда 3км при приеме вагона от грузополучателя после завершения грузовых операций, на путях необщего пользования, примыкающих к станции Покровск и разъезду 3км, соответственно, при наличии оформленной грузополучателем пересылочной накладной в АФТО. Затем приемосдатчик груза подает наряд дежурному по станции па уборку вагонов с пути необщего пользования. После уборки вагонов приемосдатчик груза заканчивает оформление памятки приемосдатчика формы ГУ-45ВЦ и вагонного листа.

Дежурный по станции предъявляет выведенную группу вагонов к техническому и коммерческому осмотру работнику ВЧД-14 и приемосдатчику груза порядком, установленным в пункте 4.3 настоящего Технологического процесса.

Осмотр порожних вагонов из-под выгрузки производит работник ВЧД-14 на путях станции Покровск или разъезда 3км. при техническом осмотре, выведенной с пути необщего пользования группы.

Результаты технического и коммерческого осмотра записываются в журналах формы ВУ-14, где работник ВЧД-14 отражает результаты технического осмотра и заверяет своей росписью.

Приемосдатчик груза по результатам технического и коммерческого осмотра вагонов формирует и передает в АСОУП сообщение 1356 о результатах осмотра вагонов из-под выгрузки.

Взвешивание повагонных отправок при приеме и выдаче груза.

Общая масса груза в вагоне, предъявляемого к перевозке по одной накладной, определяется путем взвешивания либо суммированием массы, указанной на каждом грузовом месте согласно трафарету, по стандартной массе, а также расчетным путем и посредством обмера.

В соответствии с Уставом ж. д. транспорта определение массы грузов, погрузка которых до полной вместимости вагонов может повлечь за собой превышение их допустимой грузоподъёмности, осуществляется только посредством взвешивания. При этом определение массы грузов, перевозимых навалом и насыпью, осуществляется посредством взвешивания на вагонных весах. При отсутствии у грузоотправителя весов, масса груза может быть определена на вагонных весах предприятия, имеющего весы или на вагонных весах станции Анисовка, отвечающих требованиям Госстандарта РФ и Инструкции МПС "О ведомственном техническом надзоре за весоизмерительными приборами на железных дорогах РФ" по договору.

За предоставление вагонных весов (при необходимости приемосдатчика груза) для взвешивания грузов, с грузоотправителя взимается сбор, согласно договора.

При приеме к перевозке грузов, погруженных по НТУ в первый раз, на станции производится обязательная проверка массы груза на вагонных весах.

Проверка массы груза взвешиванием при выдаче груза повагонными отправками производится в случаях, предусмотренных статьей 41 ТУЖД.

В случае несоответствия массы груза массе, указанной в перевозочных документах сверх норм, установленных Правилами перевозок грузов, приемосдатчик составляет рапорт на оформление коммерческого акта.

Таблица ПЗ.5 Расписание движения поездов

С Анисовки на Покровск С Покровска на Анисовку
№ поезда Время прибытия Стоянка Время отправл. № поезда Время прибытия Стоянка Время отправл.
3201 1-46 3202 02-58
3203 7-00 3204 05-55
3205 11-36 3206 9-10
6307 8-00 6308
6303 16-08 6304 11-33
6305 21-43 6306 -

6. Организация технической работы станции

6.1 Технология обработки поездов по прибытию

Передаточные поезда со станции Анисовка пропускаются через разъезд 3 км. без переработки на станцию Покровск, где после операций по прибытию расформировываются.

Если в составе поезда основная часть вагонов прибыла в адрес путей необщего пользования, примыкающих к разъезду 3 км., дежурный по станции Покровск может принять решение о расформировании поезда па разъезде 3 км.

Обработка поезда по прибытию включает в себя следующие операции:

остановка головной части поезда па другой путь (в случае, если длина принимаемого поезда превышает полезную длину пути приёма);

техническое обслуживание вагонов;

коммерческий осмотр вагонов;

контрольная проверка состава и перевозочных документов.

При получении от дежурного по разъезду 3км. сообщения о подходе поезда дежурный по станции дает указание дежурным стрелочных постов на приготовление маршрута приема с указанием номера поезда и пути приема. После получения сообщения от дежурных стрелочных постов о готовности маршрута дежурный по станции замыкает маршрут и открывает входной светофор. Подробно действия работников станции и разъезда 3км. описан в "Инструкции о порядке пользования устройствами СЦБ на станции Покровск".

После проследования поездом разъезда 3км. дежурный по станции Покровск извещает работников, участвующих в обработке поезда: приемосдатчика, работника ПТО, о номере поезда и пути приёма.

После остановки поезда дежурный по станции Покровск оформляет факт прибытия в АСУ станции. В случае расформирования поезда на разъезде 3км. факты прибытия и расформирования поезда в АСУ осуществляет дежурный по станции Покровск на путях разъезда 3км.

Дежурный по станции (разъезду) дает указание дежурным стрелочных постов о закреплении состава на пути станции (разъезда) с указанием номера пути, количества осей в составе и количества тормозных башмаков, необходимого для закрепления. Закрепление вагонов производится в соответствии с ТРА и регламентом переговоров работников станции Покровск (разъезда 3км). После закрепления вагонов, отцепки локомотива и ограждения состава дежурный по станции предъявляет состав к техническому и коммерческому осмотру с оформлением записи в журналах формы ВУ-14 (журналы формы ВУ-14 ведутся отдельно для станции Покровск и разъезд 3км., соответственно дежурными по станции и разъезду).

В случае предъявления вагонов под погрузку опасных грузов дежурный по станции предъявляет их работнику ПТО к техническому осмотру с оформлением записи в журнале формы ВУ-14 "под погрузку опасных грузов".

Пакет перевозочных документов и натурный лист поезда машинист локомотива передаёт дежурному по станции Покровск (разъезду 3 км). Дежурный по станции сверяет соответствие документов натурному листу и производит разметку натурного листа, при необходимости его корректирует. При этом дежурный по станции обязан просмотреть наличие таможенных отметок в перевозочных документах на вагоны, следующие в международном сообщении, о прохождении грузом таможенного контроля. По прибытии вагонов с разрешающими штампами таможенных органов вагон подаётся под выгрузку. При отсутствии разрешающего штампа на выпуск груза дежурный по станции вагон задерживает и сообщает об этом приёмосдатчику станции (старшему) и товарному кассиру. Затем дежурный по станции (разъезду) передаёт перевозочные документы приёмосдатчику станции (разъезду).

Приёмосдатчик, получив перевозочные документы и натурный лист поезда от дежурного по станции (разъезду) просматривает перевозочные документы, отбирает вагонные листы, заносит данные в Книгу выгрузки и передает документы в товарную контору под роспись. Приемосдатчик разъезда 3км. передает документы дежурному по разъезду для передачи их с машинистом маневрового локомотива на станцию Покровск.

Приемосдатчик производит коммерческий осмотр состава и фиксирует время начала осмотра состава в "Книге регистрации коммерческих неисправностей" формы ГУ-98, которые ведутся приемосдатчиками груза (станции Покровск и 3км. отдельно).

При обнаружении коммерческой неисправности вагона, приемосдатчик груза составляет акт общей формы ГУ-23:

При обнаружении вагонов с коммерческими неисправностями, угрожающих безопасности движения поездов акт общей формы ГУ-23 составляется в двух экземплярах. Первый экземпляр акта прикладывается к перевозочным документам, второй экземпляр остается в делах станции;

При обнаружении вагонов с коммерческими неисправностями, угрожающими сохранности перевозимого груза или при наличии признаков хищения грузов, акт общей формы ГУ-23 составляется в 3-х экземплярах: первый и второй экземпляры направляются порядком указанным выше, а третий в ЛОВД (транспортную милицию) по месту обнаружения, с росписью получившего во втором экземпляре. Об обнаружении вагонов (контейнеров) с наличием признаков хищения грузов, приемосдатчик груза незамедлительно информирует дежурную часть ЛОВД, сообщая при этом номер вагона, номер пути и род коммерческой неисправности. Кроме этого приемосдатчик груза составляет рапорт на оформление коммерческого акта, который передаст в актовую группу станции Анисовка.

В акте общей формы ГУ-23 приемосдатчик груза отражает факт обнаружения неисправности и результат коммерческого осмотра груза, в том числе состояние ЗПУ, закруток, плашек, запоров на дверях и люках, состояние кузова вагона и состояние погрузки, с указанием полноты загрузки вагона, равномерности поверхности груза, числа ярусов в междверном пространстве, количество мест груза и т.п. На основании акта общей формы ГУ-23 приемосдатчик груза передает оперативное донесение в адреса согласно Инструкции по актово-претензионной работе.

Проверив выполнение всех условий, товарный кассир уведомляет приемосдатчика о возможности подачи вагонов под грузовые фронты с соответствующей отметкой в "Книге сдачи документов в товарную контору". После чего приемосдатчик выписывает наряд дежурному по станции на подачу на пути необщего пользования и вручает под роспись.

Запрещается осуществлять подачу вагонов на пути необщего пользования без проверки товарным кассиром требований, перечисленных выше. В случае не выполнения, какого - либо из условий вагон задерживается на станции, о чем приемосдатчик груза докладывает заместителю начальника по станции Покровск.

Вагоны с коммерческими неисправностями подаются на пути необщего пользования для комиссионной выдачи груза после составления акта общей формы ГУ-23, и уведомления дежурной части ЛОВД.

Об окончании осмотра состава осмотрщик вагонов и приемосдатчик уведомляют дежурного по станции с последующей росписью работников, производивших осмотр в журналах формы ВУ-14.

Результаты коммерческого осмотра каждого поезда приемосдатчик груза оформляет в "Книге регистрации коммерческих неисправностей" формы ГУ-98 и заверяет своей подписью.

Если коммерческие неисправности при осмотре поезда не обнаружены приемосдатчик груза в книге формы ГУ-98 в графах 4-9 делает отметку "Коммерческих неисправностей не обнаружено"

В случае не установки состава поезда в пределах полезной длины пути приема часть вагонов маневровым порядком выставляется на другой приемо - отправочный путь.

Время затраченное на перестановку группы вагонов, отцепленных от поезда по прибытию поезда рассчитано в соответствии с методическими указаниями по расчету норм времени на маневровые работы, выполняемые на ж. д. транспорте.

После окончания обработки состава поезда по прибытию составитель поездов, но указанию дежурного по станции, приступает к расформированию состава, предварительно ознакомившись с разметкой и составив план маневровой работы. План доводится до сведения всех работников, участвующих в предстоящей работе (машинист маневрового локомотива, дежурные стрелочных постов).

Расформирование состава производится рейсами осаживания. Одновременно с расформированием состава производится подборка вагонов по группам с таким расчетом, чтобы обеспечивались минимальные затраты времени и маневровых средств на подачу, расстановку и уборку вагонов с погрузо-разгрузочных фронтов. При этом применяется скользящая специализация путей.

Таблица ПЗ.6 Нормы времени на технологические операции

Наименование операции Норма времени, мин.
1. Обработка по прибытии передаточного поезда, подлежащего расформированию 30
2. Расформирование состава на вытяжке 10
3. Формирование состава 10
4. Обработка поезда своего формирования по отправлению 20
5. Подача (уборка):
на грузовой двор 10
на п/путь ОАО "Трансмаш" 20
на п/путь ОАО "Энгельсский завод фильтров" 10
на п/путь Энгельсская нефтебаза ОАО "Саратовнефтепродукт" 15
на п/путь ЗАО "Энгельсский речной порт" 15
на п/путь ОАО "Волгомост филиал мостоотряд-8" 15
6. Холостой заезд локомотива на станцию с: п/путей 5
7. Перестановка группы вагонов: на п/путях
8. Очистка вагонов 5 мин/вагон
9. Время на выгрузку грузовой двор:
Тарно-штучные (повагонная отправка) 90
Трубы 140
Песок 57
10. Время на выгрузку п/пути:
Оборудование 90
Тарно-штучные грузы (ПО) 161
Дизельное топливо 205
Гравий 105
Щебень 102
11. Время на погрузку грузовой двор:
Тарно-штучные (повагонная отправка) 262
12. Время на погрузку подъездные пути:
Металлолом 112
Тарно-штучные грузы (ПО) 177
Бензин 340
Металлолом 343
Песок 171

Подача и уборка вагонов на пути необщего пользования осуществляется порядком, предусмотренным в договоре на эксплуатацию пути необщего пользования или на подачу и уборку вагонов.

Заезд маневрового локомотива для подачи вагонов под грузовые операции совмещается с уборкой вагонов с погрузо-выгрузочных устройств.

6.2 Технология обработки грузовых поездов по отправлению

Станция Покровск формирует передаточные поезда на станции Анисовка. Выводимые с парков и путей необщего пользования вагоны формируются в поезд с учётом требований ПТЭ, ИДП и др. нормативных документов.


Таблица 6.1 График обработки грузового поезда прибывшего на станцию Покровск

Операция До отправления По отправлению поезда, мин. Исполнитель
0 5 10 15 20 25 30 35 40 45 50 60 70
Получение сообщения с 3 км. о проследовании поезда ДСП

Получение ТГНЛ

ДСП
Извещение работника ПТО и приемосдатчика о времени и пути прибытия поезда ДСП
Отпуск автотормозов и отцепка локомотива 3 ТЧМ, работник ПТО
Закрепление состава 5 Деж. стр. постов
Получение перевозочных документов от машиниста 5 ДСП
Разметка ТГНЛ и сверка его с перевозочными документами 1 5 ДСП
Техническое обслуживание состава 4 5 Работник ПТО
Списывание и коммерческий осмотр состава 4 5 Приемосдатчик
Меловая разметка вагонов 1 5 Приемосдатчик
Общая продолжительность 6 6

Обработка состава по отправлению включает следующие операции:

технический осмотр состава;

коммерческий осмотр состава;

прицепка поездного локомотива;

подборка, пакетирование перевозочных документов и вручение их машинисту локомотива;

опробование автотормозов, и отправление.

Если количество вагонов в формируемом составе превышает полезную длину пути формирования, то сформированный состав устанавливается с учётом установки локомотива в границах выходного сигнала, хвостовая часть выходит за предельный столбик пути отправления.

По окончании формирования дежурный по станции предъявляет состав к техническому и коммерческому осмотрам. Результаты осмотра записываются в журналах формы ВУ-14, хранящихся у дежурного по станции.

До проведения коммерческого осмотра приемосдатчик списывает номера вагонов, подлежащих отправлению со станции, и передает списанный состав дежурному по станции.

После этого приемосдатчик производит коммерческий осмотр состава согласно сборника ЦМ-360.

Приемосдатчик груза фиксирует время начало осмотра состава в "Книге регистрации коммерческих неисправностей" формы ГУ-98. Результаты коммерческого осмотра каждого поезда приемосдатчик груза оформляет в "Книге регистрации коммерческих неисправностей" формы ГУ-98 и заверяет своей подписью.

Если коммерческие неисправности при осмотре поезда не обнаружены приемосдатчик груза в книге формы ГУ-98 в графах 4-9 делает отметку "Коммерческих неисправностей не обнаружено".

Дежурный по станции по списку номеров вагонов и перевозочным документам полученным от приемосдатчика, оформляет в АСУ станции натурный лист поезда. После тщательной проверки наличия всех документов (вагонного листа, дорожной ведомости, накладной и перечисленных в ней приложениях) и соответствия их натурному листу пакетирует их наклейкой контрольного бланка формы ДУ-81. При наличии в составе сформированного поезда вагонов, требующих особых условий пропуска (негабаритные, опасные грузы и т.п.) ДСП сообщает об этом поездному диспетчеру. Отправление такого поезда производится по приказу поездного диспетчера. Пакет с перевозочными документами и натурный лист поезда дежурный по станции вручает машинисту локомотива под роспись. После прицепки поездного локомотива осмотрщик вагонов совместно с машинистом локомотива производит опробование автотормозов. Последовательность и продолжительность операций по обработке поезда своего формирования приведена в графике на Рис.6.2. При расчете времени на обработку состава работником ПТО и приемосдатчиком груза, учитывался средний состав поезда 22 вагона, в случае формирования состава большей длины, время на обработку увеличивается пропорционально количеству вагонов.

6.3 Обработка пригородных поездов

Графиком движения пригородных поездов предусмотрено курсирование 6-ти пар пригородных поездов между станциями Покровск - Анисовка.

Для приема и отправления пригородных поездов, согласно ТРА станции, используются 1 и 2 пути станции Покровск, 4 и 5 пути разъезда 3км.

Для обслуживания пассажиров на территории станции расположено здание вокзала и две пассажирские платформы около 1 пути и между 1 и 2 путями а также пассажирская платформа на разъезде 3км между 4 и 5 путями.

По прибытию, после остановки поезда на станции Покровск, параллельно с высадкой пассажиров производится техническое обслуживание вагонов.

По отправлению техническое обслуживание состава производится осмотрщиком вагонов одновременно с посадкой пассажиров.

При перестановке составов пригородных поездов с 1-го или 2-го пути разрешается использовать тепловоз от пригородного поезда для маневровой работы.

Таблица 6.2 График обработки поезда своего формирования при отправлении со станции Покровск

Операция До отправления По отправлению поезда, мин. Исполнитель
0 5 10 15 20 25 30 35 40 45 50 55 60 65
Оформление натурного листа и подборка документов ДСП
Списывание состава и проверка наличия документов Приемосдатчик
Сборка состава на пути станции и закрепление ДСП, ТЧМ, составитель
Технический осмотр состава и устранение неисправностей 4 5 Работник ПТО
Коммерческий осмотр состава 4 5 Приемосдатчик
Конвертирование документов 5 ДСП
Вручение пакета с перевозочными документами машинисту 5 ДСП
Прицепка поездного локомотива 3 ТЧМ
Уборка тормозных башмаков 5 Дежурные стр. постов
Опробование автотормозов, отправление 1 5

ТЧМ,

работник ПТО

Общая продолжительность 7 0

6.4 Порядок подачи порожних вагонов под погрузку опасных грузов на станции Покровск и разъезда 3км

Погрузка опасных грузов производится на путях необщего пользования, принадлежащих грузоотправителю их силами и средствами.

Порядок подачи вагонов под погрузку грузов на конкретные пути необщего пользования, устанавливается Договором, заключенным с предприятием и Инструкцией по эксплуатации железнодорожного пути необщего пользования.

Порожние вагоны, под погрузку опасных грузов, дежурный по станции Покровск, предъявляет к техническому осмотру ответственному работнику ВЧД-14 уполномоченному, согласно приказа ВЧД-14.

Осмотр вагонов осуществляется в порожнем состоянии в день начала погрузки. Результаты осмотра записываются в журнале формы ВУ-14 с указанием номеров вагонов, наименования груза, под перевозку которого этот вагон предназначается, страны назначения и фамилии лица производившего осмотр. Ответственный работник ВЧД-14 напротив каждого вагона проставляет отметку о пригодности вагона и под погрузку и заверяет своей росписью, а также выдаёт акт о подготовке цистерны под налив формы ВУ-20а, который прикладывается к пересылочной накладной.

Технический осмотр и определение пригодности ходовых частей, колесных пар, буксового узла, рамы вагона, тормозных и ударно-тяговых устройств подвижного состава, принадлежащего грузоотправителям или арендованного ими, производится работниками вагонного хозяйства по заявке грузоотправителя, подаваемой начальнику станции или его заместителю по станции Покровск письменно или по телефону.

Техническое состояние и пригодность под перевозку опасных грузов специализированных вагонов, а также их арматуры и оборудования определяет грузоотправитель.

Перед погрузкой опасного груза в собственный специализированный или арендованный вагон грузоотправитель обязан предъявить приемосдатчику груза свидетельство о техническом состоянии вагона (приложение №2, Правил перевозок), включая его арматуру и оборудование, гарантирующее безопасность перевозки этого груза. Номер свидетельства работниками вагонного хозяйства проставляют в книге формы ВУ-14, а грузоотправитель на оборотной стороне накладной в графе 4 должен сделать отметку "Вагон, его арматура и оборудование исправны и соответствуют установленным требованиям".

Пригодность вагонов под перевозку опасных грузов в коммерческом отношении определяется грузоотправителями.

6.5 Порядок пакетирования, приема, сдачи и пересылки документов с разъезда 3км. на станции Покровск

Памятки приемосдатчика формы ГУ-45 и акты общей формы ГУ-23 пересылаются с разъезда 3км. на станции Покровск 2 раза в сутки (8-00 ч и 20-00 ч), через машинистов локомотивов.

Приемосдатчик груза разъезда 3км. перед пакетированием документов обязан тщательно проверить наличие всех документов, составленных за смену, а также оформить и вложить список, в котором перечислить все приложенные документы, заверить своей подписью и штемпелем станции. Увязка пакета должна быть выполнена так, чтобы полностью исключить возможность доступа к документам и их изъятие без нарушения целостности упаковки.

Ответственность за наличие всех документов и правильность упаковки несет приемосдатчик груза разъезда 3км.

Приемосдатчик груза разъезда 3км. пакет с документами передает дежурному по разъезду 3км., который, в свою очередь, вручает его машинисту локомотива под роспись в "Книге приема и сдачи документов машинистам локомотивов". Дежурный по разъезду 3км., после получения пакета с документами, обязан вручить его машинисту ближайшего локомотива, следующего на станции Покровск.

Дежурный по разъезду 3км. сообщает по телефону приемосдатчику груза станции Покровск о необходимости получения документов от машиниста локомотива.

За сохранность пакета с документами в пути следования ответственность несет машинист локомотива.

Приемосдатчик груза станции Покровск получает от машиниста локомотива пакет с документами под роспись в "Книге приема и сдачи документов машинистам локомотивов", после чего незамедлительно передает его в товарную контору. Товарный кассир проверяет целостность упаковки пакета с документами, проверяет их наличие согласно приложенного списка, после чего расписывается в получении документов в списке. Приложенные списки документов хранятся в товарной конторе.

Таблица 6.3 График обработки поезда своего формирования по отправлению

Операция

До оконч форм После окончания формирования Исполнитель
0 10 20 30 40 50
Выход на путь отправления Оператор СТЦ
Контрольное списывание состава с натуры Оператор СТЦ
Предъявление состава к осмотру ДСП
Подборка документов и оформление натурного листа 15 Оператор СТЦ
Доставка и вручение перевозочных документов 3 Оператор СТЦ
Ограждение состава 2 Работники ПТО
Технический осмотр состава и ремонт вагонов 25 Работники ПТО
Коммерческий осмотр состава и устранение неисправностей

25

Приемщики поездов, работники НОРВ

Снятие ограждения, прицепка поездного локомотива, полная проба

торм., уб. т/башмаков и отправление.

25

Лок. бригада,

ДСПП,

сигналист

Общая продолжительность обработки поезда 52

Таблица 6.4 График приема груза в склад

Наименование операций Время в минутах Исполнитель
20 40 60 80 100
Проверка визы на накладной 5 Приемосдатчик
Укладка груза с автомобиля в склад станции 60 Бригада грузчиков
Проверка груза, упаковки и отправительской маркировки 60 Приемосдатчик
Запись в книгу приема груза к отправлению 10 Приемосдатчик
Оформление накладной 5 Приемосдатчик
Пересылка накладной в тов. контору 5 Приемосдатчик
Общее время 80

Таблица 6.5 График погрузки грузов из склада в вагон

Наименование операций Время в минутах Исполнитель
20 40 60 80 100
Ознакомление бригады грузчиков с подрядчиком работы 5 Приемосдатчик
Подача и расстановка вагонов Составитель
Коммерческий осмотр вагонов Приемосдатчик

Погрузка груза в вагон

60 Грузчики МЧ
Уведомление диспетчера и закрытие дверей, наложение закруток и пломбирование 10 Приемосдатчик Грузчики МЧ
Запись в вагонный лист сведений о вагонах, пломбах и окончании погрузки 5 Приемосдатчик
Окончательное оформление документов, книги приема груза к отправлению и книги пломбировки 5 Приемосдатчик
Доставка документов в товарную контору 5 Приемосдатчик

Общее время

95

Таблица 6.6 График приема и погрузки грузов из автотранспорта в вагон

Наименование операций Время Исполнитель
30 60 90 120 150 180 210 240
Ознакомление комплексной бригады с планом работы, ком. осмотр 5 Приемосдатчик
Проверка визы на накладной 5 Приемосдатчик
Погрузка груза в вагон 180 Грузчики МЧ
Проверка количества мест 180 Приемосдатчик
Закрытие дверей наложение пломб и закруток на двери вагона

10

Приемосдатчик Грузчики МЧ
Оформление накладной, сост. вагонного листа и запись в книгу приема к отправлению

5

Приемосдатчик
Доставка документов в товарную контору 5 Приемосдатчик
Уведомление ДСП о готовности вагонов к уборке 5 Приемосдатчик
Общее время 215

Таблица 6.7 График выгрузки грузов в склад станции

Наименование операций Время Исполнитель
20 40 60 80 100 120 140 160 180
Получение вагонных листов из СТЦ

5

Приемосдатчик
Ознакомление комплексной бригады МЧ с планом работы 5 Приемосдатчик
Подача и расстановка вагонов 10 Составитель поездов
Коммерческий осмотр вагонов 10 Приемосдатчик
Выгрузка и укладка груза в склад 135 Грузчики МЧ
Проверка груза и упаковка 135 Приемосдатчик
Запись в книгу выгрузки грузов 5 Приемосдатчик
Очистка вагона и закрытие дверей 10 Грузчики МЧ
Уведомление ДСП или ст. приемосдатчика о готовности вагонов 3 Приемосдатчик
Разметка вагонных листов и доставка их в товарную контору 10 Приемосдатчик
Разметка накладной в товарной конторе 10 Приемосдатчик
Общее время 180

7. Оперативное управление и планирование работы станции

Общее руководство работой станции осуществляет начальник станции Анисовка - Покровск.

Руководство эксплуатационной работой станции, контроль за выполнением суточных и сменных планов, организация обработки поездов и вагонов по технологическому процессу, обеспечение выполнения грузовой и коммерческой работы возложено на заместителя начальника станции по станции Покровск.

Оперативное руководство эксплуатационной работой станции, осуществляет дежурный по станции Покровск. Распоряжения дежурного по станции по обеспечению своевременного и безопасного приёма и отправления поездов, безопасности движения, выполнения маневровых и грузовых операций, а также рационального использования технических средств станции, являются обязательными для работников всех служб, связанных с подготовкой, приёмом и отправлением поездов.

Для оперативного руководства работой станции, контроля и анализа выполнения сменного задания и технологического процесса дежурный по станции в процессе дежурства ведёт настольный журнал движения поездов и локомотивов формы ДУ-3 и книгу учёта исполненной работы.

Дежурный по станции разъезда 3км согласовывает работу с дежурным по станции Покровск, обеспечивая работу по разъезду 3км и примыкающим путям необщего пользования в соответствии с требованиями Инструкции по движению поездов, ТРА и технологического процесса работы станции. Дежурный по разъезду 3км в процессе дежурства ведёт настольный журнал движения поездов и локомотивов формы ДУ-2 и книгу учёта исполненной работы.

7.1 Информация о подходе поездов и грузов

Информация о подходе поездов и грузов, ее качество - основа оперативного планирования и регулирования работы станции.

Информирование клиентуры об ожидаемом подходе вагонов под выгрузку осуществляет приёмосдатчик станции Покровск.

При погрузке, выгрузке вагонов приемосдатчики станции Покровск и разъезд 3км оформляют в АСУ станции памятки приемосдатчика формы ГУ-45, в результате чего в АСУ отражается точная информация о погруженных и выгруженных вагонах на станции, которая передается в АСОУП.

Приемосдатчик груза уведомляет о предстоящей подаче вагонов на путь необщего пользования, не позднее, чем за 2 часа, представителей, уполномоченных предприятием. О подаче вагонов на пути необщего пользования, примыкающие к станции Покровск, уведомление производит приемосдатчик груза станции Покровск, а на примыкающие к разъезду 3км - приемосдатчик груза разъезд 3км. Обслуживание путей необщего пользования производится в соответствии с договором.

7.2 Организация оперативного планирования работы станции

Целью оперативного планирования работы станции является выполнение суточного и сменного заданий по погрузке и выгрузке, а также регулировочных заданий и основных качественных показателей работы станции.

Работа станции осуществляется по сменно-суточному плану, составленному начальником станции совместно с руководителями путей необщего пользования и утвержденному начальником отдела перевозок на селекторном совещании в 8 час. и 20 час. Суточный план содержит следующие данные:

количество поездов, которое должно прибыть на станцию и отправиться со станции за сутки;

план погрузки, выгрузки, в том числе по важнейшим грузам;

отправление порожних вагонов по регулировочному заданию.

В суточном плане выделяется объём работы, который должен быть выполнен в первой половине суток.

Сменное задание на вторую половину суток составляется с учётом итогов работы первой смены и суточного плана.

Сменное план - задание составляется на основании следующих данных:

наличия гружёных и порожних вагонов на станции на начало планируемого периода;

данных информации о подходе поездов и грузов;

заявок грузоотправителей на планируемый период;

очерёдности обработки фронтов погрузки и выгрузки;

положения каждого станционного и путей необщего пользования;

сменного плана - задания по погрузке и сдаче порожних вагонов.

Начальник станции или его заместитель перед вступлением на дежурство знакомит с планом работы дежурного по станции Покровск через маневрового диспетчера станции Анисовка.

Дежурный по станции Покровск руководит работой всей смены станции, инструктирует работников смены, обеспечивает выполнение сменного плана работы станции, контроль за выполнением технологического процесса, а также заданных норм простоя вагонов, организовывает маневровую работу, обеспечивает своевременную подачу, уборку вагонов на грузовые фронты и перестановку вагонов, контролирует безопасность движения поездов и маневровой работы.

На дежурного по станции Покровск возлагаются:

увязка работы станции с примыкающими путями необщего пользования и подразделениями технических служб на станции;

контроль за эффективным использованием технических средств станции, маневровых локомотивов;

решение отдельных оперативных задач, возникающих при выполнении плана в связи с меняющейся обстановкой на станции;

контроль за соблюдением условий, обеспечивающих безопасное производство маневров;

рациональное распределение работы между маневровыми районами с учётом равномерности их загрузки;

максимальное совмещение операций расформирования с подборкой вагонов к местам погрузки, выгрузки;

обеспечение достоверности информации о поездах и вагонах в системе АСУ станции.

По данным о подходе поездов и груза, наличии вагонов на станции и разъезде 3км., а также на основании плана погрузки и выгрузки дежурный по станции планирует формирование и отправление поездов со станции. В соответствии с этим планом устанавливается очередность вывода груженых вагонов с фронтов погрузки, а также порядок подачи порожних вагонов под погрузку, причем особое внимание уделяется выполнению сдвоенных операций с вагонами.

Для обеспечения четкого руководства работой смены рабочее место дежурного по станции оборудовано следующими видами связи:

оперативной технологической связью (ОТС);

АТС;

радиосвязью с маневровыми локомотивами;

радиосвязью с поездными локомотивами;

межстанционной связью с дежурным по разъезду 3км;

персональной ЭВМ с программным обеспечением АСУ станции.

7.3 Организация работы единых смен

Для обеспечения слаженности в работе при выполнении маневров на станции, операций по приему, отправлению поездов и обработке составов на станции организованы единые смены. Единая смена объединяет работников одной смены, в состав которой включены работники служб движения, грузовой, вагонной, локомотивной, а также работники путей необщего пользования, участвующие в выполнении технологического процесса работы станции.

Руководителем единой смены является дежурный по станции Покровск. Для выполнения маневровой работы и операций по приёму, отправлению, обработке вагонов на станции организованы маневровые бригады.

В состав маневровой бригады входят составитель поездов, машинист маневрового локомотива, дежурные стрелочных постов станции Покровск и разъезда 3км. Руководит маневровой бригадой составитель поездов.

Работникам единых смен устанавливается нормированное задание на конечный результат работы станции - количество отправленных местных вагонов и простой местного вагона под одной грузовой операцией.

Дополнительный показатель установлен по каждой профессии положением о премировании работников единых смен.

Дежурный по станции разъезда 3км согласовывает работу с дежурным по станции Покровск, обеспечивая работу по разъезду 3км и примыкающим путям необщего пользования в соответствии с требованиями Инструкции по движению поездов, ТРА и технологического процесса работы станции. Дежурный по разъезду 3км в процессе дежурства ведёт настольный журнал движения поездов и локомотивов формы ДУ-2 и книгу учёта исполненной работы.

8. Расчет показателей работы станции

Анализом установлено, что средняя суточная выгрузка составляет 83 вагона 5025 т, погрузка 99 вагонов 5632 т.

Статическая нагрузка равна 57,0 т/ваг.

Коэффициент сдвоенных операций равен 1,61.

Простой вагонов на станции снижен за счет изменения режима работы на круглосуточный, имеется возможность снизить простой вагонов под накоплением.

Средний простой местного вагона по станции определяем по формуле:

, (9.1), 1 вариант: часа

2 вариант: часа

Норму времени нахождения вагона под одной грузовой операцией по формуле:

1 вариант: час. (9.2)

2 вариант: час.

Вагонооборот станции - сумма прибывших и убывших вагонов за сутки.

1 вариант: ваг. (9.3)

2 вариант: ваг.

Коэффициент использования маневровых локомотивов насчитываем для каждого локомотива по плану-графику по формуле:

(9.4)

где: общее время занятия локомотива за сутки, мин.

число локомотивов;

1 вариант:

2 вариант:

Таблица 9.1 Показатели работы станции

Показатели Единицы измерения Значение
1 вариант 2 вариант
1. Вагонооборот ваг 226 260
2. Выгрузка т; ваг 5025; 83 5025; 83
3. Погрузка т; ваг 5632; 99 5632; 99
4. Статическая нагрузка т/ваг 57,0 57,0
5. Коэффициент сдвоенных операций 1,61

1,61

6. Простой местного вагона ч 10,87 12,63
7. Простой под одной грузовой операцией ч 6,75

7,84

8. Рабочий парк вагонов ваг. 182 182
9. Кол-во маневровых локомотивов единицы 1

1

10. Коэффициент использования маневрового локомотива 0,63

0,54

11. Уровень маршрутизации % - 54
12. Сокращение срока доставки груза сутки - 1,3

9. Технико-экономическая оценка предлагаемой технологии

Эффективность может быть выражена, как стоимостными, так и натуральными показателями. Экономия времени проследования маршрута с металлоломом от станции Покровск до станции Кочетовка без переработки на попутных технических станциях и маршрута с бензином от станции Покровск до станции Калининград-Сортировочный.

Сокращение срока доставки в сутках:

(10.1)

где: - расстояние перевозки; , - нормы суточного пробег, соответственно для повагонных и маршрутных отправок, км/сут, и км/сут.

Сокращение срока доставки для маршрута до станции Кочетовка

сутки

Сокращение срока доставки для маршрута до станции Калининград-Сортировочный:

суток

Экономия от сокращения простоя поездных локомотивов в результате устранения необходимых перецепок при пропуске составов без переработки через попутные технические станции:

(10.2)

где: количество маршрутов за месяц (по календарному плану);

- количество попутных технических станций;

С лок-час - стоимость локомотиво-часа (44,858 руб. - для электровозов).

Бензин:

руб.;

Металлолом:

руб.

Экономия локомотиво-бригад при ликвидации перецепок:

(10.3)

где стоимость локомотивной бригады (251,416 руб)

Бензин:

руб.;

Металлолом:

руб.

Экономия электроэнергии:

(10.4)

где - стоимость одного киловатт/часа;

экономия киловатт/час (90 квт/час).

Бензин:

руб.;

Металлолом:

руб.

Экономия вагоно-часов при пропуске вагонопотоков через попутные технические станции без переработки:

(10.5)

где: - количество вагонов в составе маршрута;

- стоимость одного вагоно/часа (9, 203 руб);

- доля зависящих от размеров движения расходов.

Бензин:

руб.;

Металлолом:

руб.

Экономия в пути следования от ликвидации трудовых затрат:

(10.6)

где - стоимость переработки одного вагона на одной попутной технической станции (30-50 руб).

Бензин:

руб.;

Металлолом:

руб.

Экономия от сокращения времени переработки одного вагона на станциях погрузки укрупненных групп вагонов:

(10.7)

где - сокращение простоя вагона на станции (1-3 час).

Бензин:

руб.;

Металлолом:

руб.

Общая экономическая эффективность составит:

, (10.8)

Бензин:

руб.

Металлолом:

руб.

Максимальное выполнение ряда операций параллельно с основными технологическими операциями (приемосдаточные операции с маршрутами, операции по прибытию и отправлению, взвешивание, дозировка, документальное оформление грузовых операций

Экономия вагоночасов в год от параллельного выполнения приемосдаточных операций:

Экономия от определения веса груза параллельно погрузке:

(10.9)

где время на определение веса груза () ч.

ваг-ч;

ваг-ч.

Экономия вагоночасов от параллельного оформления перевозочных документов:

(10.10)

где tдок - время на оформление перевозочных документов при маршрутной отправке 4 минуты на вагон - () ч.

ваг-ч;

ваг-ч.

Выполнение приемосдаточных операций параллельно с техническим осмотром:

(10.11)

где: продолжительность выполнения приемосдаточных операций, 0,5ч.;

руб., ваг-ч;

ваг-ч.

Экономия от определения веса груза в вагонах, составления перевозочных документов параллельно погрузке может быть получена с учетом рода груза, наличия филиала товарной конторы, весового хозяйства в местах погрузки и других факторов.

10. Охрана труда и техника безопасности при погрузочно-разгрузочных работах и безопасность труда в перевозочном процессе на станции

Требования к персоналу, допускаемому к погрузочно-разгрузочным работам.

К погрузочно-разгрузочным работам допускаются лица не моложе 18 лет, прошедшие медицинское освидетельствование, обученные и прошедшие проверку знаний по охране труда и пожарной безопасности. К работе по строповки грузов допускаются лица, прошедшие специальное обучение и имеющие удостоверение стропальщика. К управлению погрузо-разгрузочными машинами (грузоподъемными кранами, погрузчиками, автомашинами) допускаются лица, прошедшие специальное обучение и имеющие удостоверение на право управления данной машиной. Инженерно-технические работники, ответственные за безопасное проведение погрузочно-разгрузочных работ, должны проходить первичную и периодическую проверку знаний технологических процессов, устройств и безопасной эксплуатации подъемно-транспортного оборудования, пожарной безопасности. Привлечение к погрузке и выгрузке работников, не занятых постоянно на погрузочно-разгрузочных работах, без первичного инструктажа на рабочем месте запрещается. При погрузке-выгрузке тяжеловесных и крупногабаритных грузов руководитель работ должен провести внеплановый инструктаж.

В процессе работы все работники, занятые на погрузочно-разгрузочных работах, должны в соответствии требований "Положения об организации обучения и проверки знаний работников железнодорожного транспорта РФ" ЦСР/325-95г. МПС и СТП МЧ-4 "Организация обучения и проверки знаний по охране труда в Саратовской механизированной дистанции погрузочно-разгрузочных работ" не менее одного раза в 2 года проходить повторную проверку знаний по охране труда. При приеме на работу вновь принятый работник проходит вводный инструктаж, первичный инструктаж на рабочем месте, стажировку под руководством опытного работника, первичную проверку знаний.

На станции Покровск существуют общие требования безопасности:

Все работы, связанные с погрузкой, выгрузкой, складированием и транспортировкой грузов в МЧ-4 выполняются в соответствии с требованиями ГОСТ 12.3 009-76 "Работы погрузочно-разгрузочные. Общие требования безопасности", ГОСТ 12.3 020-80 "Процессы перемещения грузов на предприятиях. Общие требования безопасности" и "Правилам техники безопасности и производственной санитарии при погрузочно-разгрузочных работах на железнодорожном транспорте" ЦМ/4771, а также в соответствии с разработанными с ними местными инструкциями по охране труда, стандартами предприятия и технологическими картами на отдельные виды погрузочно-разгрузочных операций.

Погрузочно-разгрузочные работы выполняются в основном с применением подъемно-транспортного оборудования и средств механизации.

В случаях необходимости (в частности при погрузке тарно-штучных грузов) разрешается поднимать и перемещать грузы вручную, но с соблюдением норм, установленных действующим законодательством. Мужчинам в возрасте 18 лет и старше разрешается поднимать и переносить груз массой до 50 кг. на расстоянии 60 м. Если груз на спину рабочего поднимают и укладывают 2-е других рабочих, то масса переносимого груза может составлять до 80 кг.

Безопасность производства погрузочно-разгрузочных работ обеспечивается выбором производства работ, подъемно-транспортного оборудования и технологической оснастки, подготовкой и организацией мест производства работ, применением средств защиты работающих, проведением медицинского осмотра лиц, допущенных к работе, их обучением, проверкой знаний и периодическим инструктированием. Погрузка (размещение) и крепление грузов на подвижном составе должны обеспечивать возможность их безопасной последующей выгрузки. Выгруженные и подготовленные к погрузке около пути грузы должны быть уложены и закреплены так, чтобы не нарушался габарит приближения строений. Грузы при высоте до 1200мм располагают от наружной грани головки рельса не ближе 2м, а при большей высоте - не ближе 2,5м.

К погрузке и разгрузке вагонов разрешается приступать только после их закрепления на фронте выгрузки в соответствии с требованиями "Инструкции по движению поездов и маневровой работе" и ограждения сигналами в соответствии с требованиями "Инструкции по сигнализации".

Не допускается производство погрузочно-разгрузочных работ при производстве маневров. Допускается передвижение вагонов вручную по фронту выгрузки или погрузки только по горизонтальному участку пути в количестве не более одного груженого или двух порожних вагонов и под непосредственным руководством ответственного лица. При передвижении вагонов вручную не допускается:

передвигать их со скоростью более 3км/ч, причем вагоны должны обязательно быть сцеплены;

выкатывать их за предельный столбик в направлении главных и приемоотправочных путей;

начинать передвижение, не имея тормозных башмаков;

подкладывать для торможения под колеса шпалы, камни, ломы и другие предметы;

перекатка вагонов вручную, занятых людьми, с взрывчатыми материалами и опасными грузами запрещается.

11. Требования к местам производства погрузочно-разгрузочных работ на станции

При выборе мест проведения погрузочно-разгрузочных работ, размещения на них сооружений, подъемно-транспортного оборудования, складируемых материалов и транспортных средств руководствовались требованиями строительных норм и правил, санитарных норм и другой нормативно-технической документацией. В целях обеспечения безопасности и удобства в работе площадки для погрузочно-разгрузочных работ спланированы и устроены на прямых и горизонтальных участках.

Запрещается размещать грузы в проходах и проездах. Ширина проездов для погрузчиков должна быть не менее 3м. Места производства погрузочно-разгрузочных работ оснащены знаками безопасности в соответствие требований ГОСТ 12.4 026-76. Для проезда ко всем объектам на территории МЧ-4 оборудованы и четко обозначены пожарные поезда, обеспечивающие проезд пожарных машин в любое время года и при любой погоде. Движение автотранспортных средств организовано по транспортно-технологической схеме с установкой следующих дорожных знаков. Дороги, предназначенные для движения автотранспорта имеют твердое покрытие. На территории определены проходы для работающих в соответствии с технологическим процессом и расположением рабочих мест. Проходы обозначены знаками "служебный проход". Ширина проходов не менее 1м. В месте пересечения служебных проходов с железнодорожными путями уложены настил на уровне головки рельсов шириной 1,5м. В зимнее время погрузочно-разгрузочные площадки регулярно очищаются от снега и льда, при необходимости посыпаются песком. На площадках установлены ящики и металлические контейнера для сбора мусора.

Железнодорожные и крановые пути должны содержаться в технологически исправном состоянии и в соответствии с графиком плана производства работ подвергаться осмотру и ремонту. График плана производства работ разрабатывается главным механиком МЧ-4, к ремонту путей привлекаются дистанции пути. Водосточные колодцы на территории МЧ-4 должны быть закрыты крышками. Места производства погрузочно-разгрузочных работ имеют достаточно естественное и искусственное освещение.

Анализ аварий и несчастных случаев показывает, что в 2007 году более чем в 4 раза в сравнении с 2006 г. сократилось общее количество случаев травматизма при эксплуатации грузоподъемных кранов.

Таблица 11.1 Причины аварий и несчастных случаев по грузоподъемным кранам.

2006 г. 2007 г.

1. Перегрузка крана сверх допустимой грузоподъемности

2. Нарушение правил производства работ

3. Работа крана в зоне повышенной опасности (АЭП)

4. Нахождение рабочих в опасной зоне

5. Обслуживание крана необученным персоналом

6. Эксплуатация технически неисправных кранов

1

4

2

1

-

2

1

Требования к применению средств индивидуальной защиты работников, занятых на погрузочно-разгрузочных работах.

Погрузочно-разгрузочные работы должны производиться в спецодежде, спецобуви, соответствующей требованиям ГОСТ 12.4 011-87 и "Типовыми отраслевыми нормами бесплатной выдачи спецодежды, спецобуви и других средств индивидуальной защиты рабочих и служащих, занятых на эксплуатации магистральных железных дорог МПС", утвержденных 16.05.84г. №25/Ц. Рабочие при получении спецодежды, спецобуви и других средств индивидуальной защиты, инструктируются о порядке пользования этими средствами и требованиями по уходу за ними. При погрузке, выгрузке пылящих грузов выдаются противопыльные респираторы ШБ-1. при выполнении погрузочно-разгрузочных работ в зоне действия козловых кранов все работники обеспечиваются и обязаны носить защитные каски. Производится регулярная стирка спецодежды в химчистке Саратовского узла на базе локомотивного депо.

Требования к применению подъемно-транспортного оборудования в МЧ-4.

Подъемно-транспортное оборудование, применяемое при проведении погрузочно-разгрузочных работ должно соответствовать требованиям ГОСТ 12.2 003-74; "Правил устройства и безопасной эксплуатации грузоподъемных кранов". Все установленные в МЧ-4 грузоподъемные краны до пуска их в работу подвергались техническому освидетельствованию, и их эксплуатация была разрешена инспектором котлонадзора после тщательного осмотра. Каждый кран снабжен паспортом, инструкцией по монтажу и эксплуатации. На краны, находящиеся в эксплуатации, четко наносят регистрационный номер, грузоподъемность в тоннах, надписи "не стой под грузом". Краны, находящиеся в работе, проходят частичное периодическое освидетельствование 1 раз в год, полное - 1 раз в 3 года. Независимо от срока очередного испытания краны подлежат освидетельствованию и испытанию после капитального ремонта механизмов, смены грузовых канатов и после аварии. При полном техническом освидетельствовании краны должны подвергаться: осмотру, статическому и динамическому испытаниям. При частичном освидетельствовании производится только осмотр. Результаты технических освидетельствований записывают в журнал их учета и осмотра, паспорт крана. Съемные грузозахватные приспособления (стропы, цепи, траверсы, клещи) после изготовления подвергаются техническому освидетельствованию - осмотру и испытанию нагрузкой в 1,25 раза превышающей их номинальную грузоподъемность. В процессе эксплуатации проводят осмотр:

траверс, клещей и других захватов и тары - каждый месяц;

стропы - каждые 10 дней;

редко используемых грузозахватных приспособлений - перед выдачей их на работу.

Важнейшим условием безопасной эксплуатации козловой кранов является их устойчивость - собственная и грузовая. Для этого рассчитаем задачу. Проверку устойчивости козловых кранов на опрокидывание производят в нерабочем положении при действии ураганного ветра вдоль пути. Расчетное давление ветра принимаем по СНиП 11-6-74.

Уравнение устойчивости относительно точки опрокидывания:

, (11.1)

где: k - коэффициент собственной устойчивости (равен 1,15);

W1 …Wn - сила давления ветра на отдельные части конструкции крана, тс;

G1 - вес портала, Н; G2 - вес тележки и грузового полиспаста, Н;

а, b, с, h1 , hn - плечи сил относительно точки опрокидывания, м/ (h1 =12,5; h2 =7,8).

Проверим устойчивость козлового крана грузоподъемностью 20 т. Вес ригеля 120 кН, машинного помещения 50 кН, грузовой тележки 20 кН, поднимаемого груза 200 кН.

Рисунок 11.1 Собственная устойчивость

Рисунок 11.2 Грузовая устойчивость.

Для расчетной решетчатой конструкции крана принимаем: = 0,35; k=1,5; q=250 Па.

Площадь ригеля крана м2 .

Давление ветра на ригель крана:

, (11.2)

Усиление при торможении крана, передвигающегося с грузом

кН.

Коэффициент грузовой устойчивости определяем как отношение моментов удерживающего Мур опрокидывающему Мо , т.е.

, (11.3)

> 1,4 (допускаемый).

Произведем проверку козлового крана на собственную устойчивость в нерабочем положении при действии ураганного ветра 700Па. При аэродинамическом коэффициенте обдувании .

Опрокидывающий момент от действия ветра:

(11.4)

Удерживающий момент при собственном весе крана Q = 200 кН:

(11.5)

Коэффициент собственной устойчивости:

> 1,15 (11.6)

Q г - вес крана с грузом, тс (Qг =20+200+120+50=3900 кН);

h3 - плечо удерживающего момента, равное половине расстояния между колесами (h3 = 3 м);

W1 , h1 - соответственно сила давления ветра на ферму крана, тс, и расстояние от рельса до центра тяжести фермы, м. (h1 = 12,5 м);

W2 , h2 - соответственно сила давления ветра на жесткую опору, тс, и расстояние от рельса до центра тяжести жесткой опоры, м. (h2 = 7,8 м);

Т - усилие при торможении крана, тс.

Проверив расчеты грузовой и собственной устойчивости мы получили, что коэффициент собственной устойчивости меньше чем грузовая значит, кран может быть введен в эксплуатацию.

В целях обеспечения содержания кранов в исправном состоянии и безопасных условий работы в МЧ-4 определен порядок организации надлежащих освидетельствований, осмотров, ремонтов. В этих целях издается приказ о назначении ответственного по надзору за безопасной эксплуатацией грузоподъемных машин, ответственного за содержание грузоподъемных машин в исправном состоянии и лиц, ответственных за безопасное производство работ кранами. Создана ремонтная служба и установлен порядок осмотров, обслуживаний, ремонтов на основе разработанного графика плана производства работ. Соблюдается требуемый правилами порядок обучения и периодической проверки знаний персонала, обслуживающего грузоподъемные машины. Разработаны инструкции для ответственных лиц и обслуживающего персонала, журналы, проекты производства работ, технологические карты, технические условия на погрузку и разгрузку, схемы, строповки, складирования.

Грузоподъемные машины могут быть допущены к перемещению только тех грузов, масса которых не превышает грузоподъемности машины. Не допускается поднимать груз неизвестной массы, а также защемлений, примерзший или зацепившийся. Не допускаются работы на грузоподъемной машине при скорости ветра, превышающей значение, указанное в паспорте, а также при снегопаде, тумане, дожде, снижающих видимость в пределах рабочей зоны, а также, если температура окружающего воздуха ниже указанного в паспорте машины. В МЧ-4 введен порядок обмена условными сигналами между стропальщиками и крановщиком. Место производства работ должно быть освещено в соответствии с проектом производства работ и должно составлять не менее 20лк.

Применяемые в работе электропогрузчики не регистрируют в инспекции котлонадзора. Их эксплуатируют в соответствии с техническим паспортом. Раз в год погрузчики подвергают комиссионному осмотру и в соответствии с графиком ППР ремонту. Назначают лиц, ответственных за их эксплуатацию. На каждую тележку и тачку наносят трафарет с указанием предельной рабочей нагрузки и клеймо завода-изготовителя.

Грузоподъемность вилочных погрузчиков определяют для двух положений телескопической рамы -

вертикального:

, (11.7)

и наклонного:

, (11.8)

где: G - вес погрузчика, кгс.;

d - расстояние от центра тяжести погрузчика до оси передних колес, м.;

С - расстояние от центра тяжести транспортируемого груза до оси передних колес, м.;

h1 - высота центра тяжести погрузчика, м.;

а - ускорение погрузчика при движении, м/с2 ;

δ - ускорение свободного падения = 9,81 м/с2 ;

d - угол наклона рамы.

Основные требования предъявляются к работе машиниста крана, который в своей работе должен руководствоваться "Инструкцией по безопасному ведению работ для машинистов электрических кранов". Так, перед началом работы машинист обязан ознакомиться с техническим состоянием крана. Перед осмотром на входной электрощит для питания крана вывешивают плакат "не включать - работают люди". После осмотра крана производит опробование работы механизмов крана на холостом ходу. При этом тормозной путь крана должен быть не более 1м., а все механизмы должны работать без заданий и избыточного шума. Результаты осмотра и опробования машинист заносит в специальный журнал. Прежде чем привести кран в движение, необходимо убедиться, что на крановых путях нет людей грузов или посторонних предметов. Управление краном ведется по сигналам стропальщиков. Причем сигнал "СТОП" машинист выполняет независимо от того, как и кем, он подан. Если масса контейнера близка к грузоподъемности, то его сначала поднимают на 100мм, проверяют безотказность действия тормозов и лишь, затем продолжают подъем и перемещение. Перемещать поднятый контейнер нужно на такой высоте, чтобы между ним и встречающимися на пути предметами был просвет не менее 0,9м. При управлении крана рукоятку контроллера необходимо переводить из одной позиции в другую плавно. Нельзя оставлять рукоятку контроллера в промежуточном положении. Реверсирование движений механизмов крана должно осуществляться только после полной остановки. Исключения допускаются только в аварийных ситуациях. Если при перемещении груза внезапно выйдет из строя тормоз механизма подъема, то во избежание падения груз необходимо, не включая механизма подъема, отвести груз на ближайшее свободное место. Машинист крана во время работы должен следить, чтобы не нарушались габариты укладки грузов и не загромождались проходы складских и контейнерных площадок. Для машинистов кранов, работающих на контейнерной площадке для крупнотоннажных контейнеров, разработана специальная инструкция, учитывающая особенности работы двух одновременно работающих крана на одном пути, зоны их действия строго разграничены. Расстояние между тележками кранов, работающих на одном пути, не должно быть менее 1м. Запрещается подталкивать кран краном. По окончании работы, машинист обязан установить кран на место, предназначенное для его стоянки (в конце крановых путей у вводного шкафа). Крюк крана при этом поднят в верхнее положение, а захваты опущены на специальный стеллаж. Рукоятки контроллеров и рубильники панелей устанавливают в нулевое положение, кабину закрывают на замок, а ключ от замка передают дежурному.

На подкрановых путях устанавливают автоматически действующие концевые выключатели, при срабатывании которых краны останавливаются. Подкрановые пути оборудованы упорами.

Немаловажное значение в вопросах обеспечения безопасности труда имеет освещенность рабочих мест. Освещают площадку и рабочее пространство в зоне действия каждого крана люминесцентными светильниками, установленными на стационарных опорах по продольным сторонам складской площадки. Расположение светильников двухрядное. Освещенность в рабочей зоне должна быть не ниже 20лк. При работе с автостропом освещенность на уровне площадки должна быть не ниже 5лк.

Требования безопасности при погрузке-выгрузке тарно-штучных грузов.

Вагоны с тарно-штучными грузами (пакетированные или с массой одного места более 100кг) подают на 14 путь грузового двора. С расположенным рядом крытым складом. Расстановка вагонов по фронту производится по указанию приемосдатчика. Выгрузка из вагона и погрузка на автомашины производится 5 грузчиками с помощью электропогрузчиков различной грузоподъемности. Грузчики закрывают и открывают двери вагонов, устанавливают и снимают переходной мостик, компенсирующий разницу в уровнях рампы склада и пола кузова вагона, производят зачистку вагонов.

Особые требования безопасности предъявляются к работе водителя погрузчика. Приступая к работе, водитель должен тщательно осмотреть машину, обратив особое внимание на действие тормозов, исправность грузоподъемника (рамы, каретки, захватных приспособлений), убедиться в отсутствии течи в соединениях маслопроводов гидросистемы, в прочности крепления звездочек и грузовых цепей, пальцев, цилиндров наклона рамы и др. особое внимание уделяется на регулировку тормозной системы. Педаль ножного тормоза должна иметь свободный ход 10 - 15мм (до начала перемещения поршня главного тормозного цилиндра) и полный ход 90 - 95мм. Малейшее расстройство тормозной системы снижает безопасность труда. Работая на электропогрузчике, оборудованным вилами, водитель обязан следить, чтобы груз распределялся равномерно на обе лапы и не выходил за их пределы более чем на 1/3. На электропогрузчиках грузоподъемностью 1,5тн центр тяжести груза, масса которого близка к номинальной грузоподъемности машины, должен находиться на расстоянии не далее чем 500 мм от передних стенок вил. Если груз не прилегает плотно к стенкам вил, расстояние от них до центра тяжести груза увеличивается и опрокидывающий момент возрастает. Это может привести к потере продольной устойчивости машины. Во время перемещения электропогрузчика с грузом раму грузоподъемника следует отклонять назад. Это повышает устойчивость машины и исключает сползание груза с вил. Высота груза от пола при движении погрузчика не должна быть более 300мм и менее величины дорожного просвета данной машины. Без груза электропогрузчик передвигается с полностью опущенной рамой грузоподъемного. Водитель обязан помнить о габарите и возможности прохода погрузчика в дверные проемы склада и вагонов. Чтобы предохранить пакеты от разваливания, грузовые места следует укладывать плотно друг к другу и по возможности в перевязку. Грузы в ящиках, кипах, тюках укладывают штабелями. При укладке вручную высота штабелей в складе допускается не более 3м. при помощи погрузчиков пакетами на поддонах в 2 - 4 яруса в зависимости от прочности тары, компактности пакетов и в соответствии с максимально допустимой нагрузкой на нижний поддон (пакет). Грузы в мешках и кулях должны укладываться в штабели в перевязку, после каждых 6 рядов, укладывают прокладки из досок. Штабель должен быть устойчивым и не иметь перекосов. Не допускается укладывать в штабель грузы в слабой упаковке, имеющих неправильную форму, ее обеспечивающих устойчивость штабеля. Грузы, не подающиеся штабелированию, укладывают на стеллажи. Грузы в бочках, барабанах и бумагу в рулонах укладывают плотно один к другому, при этом крайние 3 бочки закрепляются от раскатывания клиньями. Каждый ряд бочек, барабанов, рулонов обвязывается проволокой. Между штабелями оставляют проходы шириной не менее одного метра. Движение электропогрузчика с грузом осуществляется на скоростях, обеспечивающих полную безопасность обслуживающего персонала. У пересечений проездов, на поворотах, в местах скопления людей водитель обязан снижать скорость машины и давать сигналы, необходимо убедиться что в зоне разворота нет людей. Следует быть особенно осторожным, как при выезде на рампу склада, так и при передвижении по ней, так как малейшая оплошность может привести к падению машины. Оставляя электропогрузчик, водитель обязан вынуть ключ из замка выключения и взять его с собой.

Требования безопасности при погрузке-выгрузке навалочных и сыпучих грузов.

Вагоны с сыпучими и навалочными грузами подают на повышенный путь №21. Расстановку по фронту производят по указанию приемосдатчика грузового двора. Полувагоны разгружаются самотеком в отвал через люки, которые рабочие открывают баграми. Штабелируют груз, а также загружают автомобили тракторным погрузчиком. При погрузочно-разгрузочных работах во избежание обрушения верхней части навалочные и сыпучие грузы должны выбираться без подкопа. При выгрузке сыпучих грузов из полувагонов люки следует открывать специальными приспособлениями, позволяющими работающим находиться на безопасном расстоянии. Люки должны открываться одновременно с обеих сторон. Во избежание осыпания груза на подкрановые пути устанавливают подпорные стенки. Перед погрузкой-выгрузкой смерзшихся или слежавшихся грузов должна быть восстановлена их сыпучесть. Запрещается восстанавливать сыпучесть груза соударением вагонов, разбивание груза грузозахватными устройствами, а также оттаивание груза открытым пламенем. Для перехода работающих по сыпучему грузу, имеющему большую текучесть и способность засасывания, необходимо устанавливать трапы или настилы с перилами на всем пути передвижения. Штабеля сыпучих грузов с крутизной, большей угла естественного откоса, необходимо ограждать прочими подпорными стенками.

Требования безопасности при погрузке-выгрузке тяжеловесных грузов, металлов, металлоизделий.

Погрузка-выгрузка тяжеловесных грузов, металлов, металлоизделий производят на тяжеловесной площадке, расположенной у 4 пути и совмещенной с площадкой крупнотоннажных контейнеров. При переработке таких грузов кранами бригада состоит из крановщика и 2 - 3 стропальщиков, которые также готовят место для укладки. Прежде чем начать подъем груза, масса которого близка к грузоподъемности крана, его отрывают от земли на несколько сантиметров, убеждаются в устойчивости машины, исправности ее тормозов и лишь после этого продолжают подъем. Запрещается подтягивать краном или захватывать груз, когда грузовой канат натянут косо. При управлении краном крановщик руководствуется указаниями стропальщика. Обмениваясь с ним сигналами. Перемещает груз краном на высоте не менее 0,5м. над встречающимися предметами на пути. Скорость передвижения крана без груза не должна превышать 10км/ч, с грузом - 5км/ч. Стропы накладывают на груз равномерно, без узлов и перекручивания. Чтобы стропы не перетирались на острых углах груза, под них ставят подкладки. При кантовании подвешенного на крюк груза стропальщик обязан пользоваться багром. Строп снимают с крюка крана только тогда, когда груз установлен на предназначенное место. На кран если автопогрузчик разрешается навешивать только исправные и испытанные приспособления с клеймом или биркой, где обозначена допускаемая грузоподъемность. Крюки грузозахватных приспособлений козлового крана оборудуют замыкающими устройствами, чтобы исключить самопроизвольное снятие чалочных строп с крюка. При строповке длинномерных грузов с гладкой поверхностью (трубы, валы прокатных станов и так далее) необходимо хорошо затягивать стропы, а против скольжения применять деревянные прокладки.

Особые требования безопасности предъявляются правилами Госторгнадзора к стальным канатам (тросам) - грузовым, несущим и чалочным. Долговечность стального каната характеризуется главным образом числом перегибов, которые он выдерживает до разрушения. К траверсе, захватному органу, барабану канат следует крепить так, чтобы он не перегибался. При эксплуатации цепных стропов необходимо соблюдать следующие требования: выбирая цепи для работы с теми или иными грузами, следует учитывать не только их диаметр, но и угол наклона. Чтобы предотвратить травматизм при погрузочно-разгрузочных работах с тяжеловесными грузами, грузозахватные устройства должны быть различимы на их фоне. Перед началом погрузки-выгрузки таких грузов руководитель работ объясняет рабочим порядок и последовательность выполнения операций, проверяет исправность строп и других приспособлений. Если груз близок по весу к номинальной грузоподъемности, руководитель работ руководит работой до ее окончания. На выгрузку-погрузку таких грузов разрабатываются технологические карты, в которых отражают: подготовку к производству работ, подготовку вагона к разгрузке (погрузке), строповку груза, перемещение груза и его складирование.


Таблица 11.2 Технологическая карта № 1 безопасности труда

Наименование работы Разгрузка полувагона с металлическими трубами весом __ тн Наименование операции Порядок выполнения организационных и технических мероприятий, обеспечивающих безопасность работ, меры безопасности при выполнении работ
1 2 3 4
Состав бригады Крановщик, два стропальщика и лицо, ответственное за безопасное производство работ кранами 1. Организационные и технические мероприятия до начала работ

Подготовка к производству работ:

1. Проверить исправность съемных грузозахватных приспособлений и оттяжек.

2. Подобрать необходимые подкладки и прокладки.

3. Проверить наличие свободных проходов к месту складирования.

Средства защиты Защитная каска

Сигнальные принад-

лежности

Сигнальные флажки (красного и желтого цвета), сигнальный жилет
Инструмент и приспособления Кран типа ККС-12,5 г/п 12,5 тн. Траверса г/п __ тн, оттяжки, подкладки, навесная лестница.

2. Меры безопасности и их последовательность при вы-

полнении работ.

Подготовка полувагона к разгрузке:

1. Полувагон надежно затормозить, установив инвентарные тормозные башмаки под передние и задание колеса.

2. Стропальщики (1 и 2) крепят (при необходимости с помощью крана) навесную лестницу к борту полувагона, противоположному направлению перемещения груза, в зоне видимости крана.

3. Стропальщик (3) поднимается в полувагон и осматривает груз, убеждаясь в надежности его крепления.

Меры безопасности при нахождении на ж.д. путях На станции к месту работы нужно проходить по установленному маршруту служебного прохода, внимательно следя за передвижением поездов или маневровых передвижениях. При переходе путей на территории станции необходимо пользоваться тоннелями, пешеходными мостиками и настилами. Переходить следует под прямым углом. При переходе пути, занятого подвижным составом, следует пользоваться исправными переходными площадками вагонов. Запрещается для перехода пути, занятого подвижным составом подлезать под вагоны и переходить по автосцепкам. Сходя с тормозной площадки, следует убедиться в отсутствии приближающегося подвижного состава на соседнем пути. При переходе путей нельзя наступать на рельсы, переходить пути в пределах стрелочных переводов и крестовин запрещается

Строповка груза.

1. Лицо, ответственное за безопасное производство работ кранами, назначает сигнальщика из числа стропальщиков (стропальщик 2) и дает команду на производство работ.

2. Сигнальщик дает команду машинисту крана подать грузовой крюк по центру груза.

3. Стропальщик (3) производит строповку груза в соответствии со схемой строповок и закрепляет оттяжки так, чтобы при перемещении груза исключались возможность задевания этими концами за встречающиеся на пути предметы.

4. Сигнальщик дает команду машинисту крана произвести натяжение стропов.

5. Сигнальщик дает команду машинисту крана поднять груз на 200 – 300 мм и проверяет правильность строповки, затем на подъем груза на высоту 100 мм выше борта полувагона.

6. Сигнальщики (1 и 3) поддерживают груз оттяжками от раскачивания и вращения.

7. Сигнальщик дает команду машинисту крана на перемещении груза.

Перемещение груза.

Груз перемещается к месту складирования. Следить, чтобы груз был поднят на высоту не менее, чем 0,5 м выше встречающихся предметов. Проверить устойчивость груза и произвести его расстроповку

3.Организационные

и технические мероприятия по окончании работ.

По окончании разгрузки стропальщики освобождают площадку и полувагон от мусора, упаковочного материала и увязочной проволоки. Съемные грузозахватные устройства, оттяжки и прочий инвентарь укладывают в места хранения.

12. Организация работы станции в зимних условиях

Бесперебойная работа станции в зимних условиях зависит от качества и своевременности подготовки станционного хозяйства и проведения технологических и технических мер, обеспечивающих выполнение установленных качественных и количественных показателей.

Перечень основных мероприятий по подготовке станции к зиме, ответственные исполнители и сроки выполнения работ устанавливается в соответствии с Инструкцией по подготовке к работе в зимних условиях хозяйства движения, пассажирского и грузового.

Для обеспечения бесперебойного приёма и отправления поездов, выполнения маневровой и грузовой работы, как на местах общего пользования, так и на примыкающих к станции путях необщего пользования предприятий, эффективного использования снегоуборочной техники, технических устройств на станции, маневровых устройств и локомотивов, средств механизации погрузочно-разгрузочных работ на станции проводятся следующие мероприятия:

полное укомплектование станции кадрами и в первую очередь работниками ведущих профессий;

периодический инструктаж и обучение работников специфики труда в зимних условиях;

обеспечение работников станции зимней спецодеждой и спецобувью;

выполнение ремонтно-оздоровительных работ на станции (ремонт путей, смена стрелочных переводов, переводных брусьев, очистка путей и междупутий от мусора, деталей подвижного состава и материалов верхнего строения пути);

проверка состояния и ремонт осветительной аппаратуры на станции;

создание запаса инвентаря для уборки снега и льда, а также песка для посыпки во время гололёда территории станции, маршрутов прохода к рабочим местам;

производство в соответствии с утверждённым планом капитального и текущего ремонта производственных, служебно - технических и бытовых зданий и помещений.

Основой организации работы по борьбе со снежными заносами является оперативный план очистки от снега стрелок, станционных путей и уборки снега со станции, разрабатываемый начальником дистанции пути совместно с начальником станции.

Планом предусматривается:

организация очистки путей от мусора и других посторонних предметов;

организация и проведение защиты станции от снежных заносов;

технология очистки и уборки снега с учётом рационального использования имеющейся техники и обеспечения устойчивой работы станции по приёму, отправлению поездов и выполнению маневровых операций;

во избежание примерзания остряков стрелочных переводов в перерывах между маневровыми передвижениями;

периодический перевод остряков стрелок из одного положения в другое;

при сильном морозе и метели при взятии вагонов на вытяжной путь состав делят на части.

План организации очистки путей и стрелок от снега разрабатывается на весь зимний период для каждого парка с учетом путевого развития, характера поездной и маневровой работы.

При вступлении на дежурство дежурный по станции информирует работников смены об ожидаемой погоде и сообщает им план снегоуборочных работ.

В случае заносов в первую очередь очищаются от снега стрелки и приемо-отправочные пути.

На грузовых фронтах первыми очищаются пути, на которых выполняется наибольшая работа по погрузке - выгрузке грузов, затем остальные.

График работы снегоуборочной техники увязывается с планом маневровой работы по расформированию - формированию составов, подаче и уборке вагонов на пути необщего пользования и грузовые фронты станции.

Для обеспечения в зимний период устойчивой работы по приему и отравлению поездов, производству грузовой и маневровой работы на станции применяется:

чередование путей приема поездов и передач;

сокращение времени простоя от прибытия до начала расформирования во избежание застывания смазки в буксах вагонов;

"прокатку" состава перед вытягиванием его на вытяжной путь для расформирования;

регулирование скорости расформирования;

во избежание примерзания остряков стрелочных переводов в перерывах, между маневровыми передвижениями периодический перевод остряков стрелок из одного положения в другое;

при сильном морозе и метели, при взятии вагонов на вытяжной путь, состав делят на две части.

Для обеспечения своевременного ввоза грузов на станцию и вывоза их со станции автомобильные подъезды к грузовым фронтам, местам выполнения грузовых операций и складирования грузов в период метелей, снегопада должны быть своевременно очищены от снега, а в период гололёда - посыпаны песком.

При организации работ в зимний период особое внимание обращается на обеспечение безопасности движения поездов, выполнение маневровых и грузовых операций и технику безопасности.

Заключение

В данном дипломном проекте на основе задания руководителя отображена работа станции Покровск, в полной мере освещены вопросы путевого развития станции, маневровой и грузовой работы, характеристики и специализация на местах общего пользования и подъездных путях.

Были рассчитаны вагонопотоки станции, определены нормы времени на выполнение операций и количество погрузо-выгрузочных машин и механизмов

Анализом установлено, что средняя суточная выгрузка составляет 83 вагона 5025 тонн; погрузка 99 вагонов 5632 тонны.

Статическая нагрузка 57,0 тонн/вагон. Коэффициент сдвоенных операций - 1,61.

В дипломном проекте предложно изменение технологии, в части применения отправительской маршрутизации с мест погрузки для грузов бензин и металлолом. В дипломном проекте детально рассмотрен этот вопрос. Бензин следует маршрутами до станции Калининград-Сортировочный, а металлолом следует маршрутами до станции Кочетовка.

Данные мероприятия позволят ускорить оборот вагона, уменьшить простои, существенно сократить складские площади и расходы, связанные с их содержанием.

В разделе охраны труда рассмотрена система обеспечения безопасности при погрузо-разгрузочных работах и в перевозочном процессе.

Список литературы

1. Устав железнодорожного транспорта Российской Федерации. - М.: Книга Сервис, 2003. - 96 с.

2. Правила перевозок грузов железнодорожным транспортом. - М.: "ЮрТранс", 2003. - 712 с.

3. Типовой технологический процесс работы грузовой станции. - М.: Транспорт, 1991. - 216 с.

4. Технические условия погрузки, размещения и крепления грузов в вагонах и контейнерах. - М.: "ЮрТранс", 2003. - 544 с.

5. Гриневич Г.П. Комплексная механизация и автоматизация погрузочно-разгрузочных работ на железнодорожном транспорте. - М.: Транспорт, 1981.

6. Давыденко В.Г., Олейник О.А. Справочная книга начальника станции. - М.: Транспорт, 1992. - 191 с.

7. Грузовые станции общего пользования / под ред.В.И. Апатцева: Уч. пос. - М.: РГОТУПС, 2003. - 162 с.

8. Голубкин Б.П. Управление грузовой и коммерческой работой, грузоведение.: Уч. пос. - М.: РГОТУПС, 2007. - 215 с

9. Голубкин Б.П. Грузоведение, сохранность и крепление грузов: Курс лекций. - М.: РГОТУПС, 2007. - 141 с.

10. Методические указания для выполнения курсового проекта для студентов IV курса "Управление грузовой коммерческой работой и грузоведение". М.: РГОТУПС; 2003 г. - 60 с.

11. Единые нормы выработки и времени на вагонные, автотранспортные и складские погрузо-разгрузочные работы. М.: Транспорт; 1997 г. - 280 с.

12. Методические указания для студентов - дипломников "Основные требования к разработке и оформлению дипломных проектов". М.: РГОТУПС; 2005 г. - 50 с.

Оценить/Добавить комментарий
Имя
Оценка
Комментарии:
Хватит париться. На сайте FAST-REFERAT.RU вам сделают любой реферат, курсовую или дипломную. Сам пользуюсь, и вам советую!
Никита10:59:31 03 ноября 2021
.
.10:59:28 03 ноября 2021
.
.10:59:24 03 ноября 2021
.
.10:59:23 03 ноября 2021
.
.10:59:22 03 ноября 2021

Смотреть все комментарии (16)
Работы, похожие на Курсовая работа: Техническая характеристика грузовой станции

Назад
Меню
Главная
Рефераты
Благодарности
Опрос
Станете ли вы заказывать работу за деньги, если не найдете ее в Интернете?

Да, в любом случае.
Да, но только в случае крайней необходимости.
Возможно, в зависимости от цены.
Нет, напишу его сам.
Нет, забью.



Результаты(294172)
Комментарии (4230)
Copyright © 2005-2022 HEKIMA.RU [email protected] реклама на сайте