Федеральное агентство по образованию
ГОУ ВПО «Братский государственный университет»
Факультет энергетики и автоматики
Кафедра промышленной теплоэнергетики
Курсовой проект
по дисциплине «Энергосбережение в теплоэнергетике и теплотехнологиях»
Расчет контактного теплоутилизатора
Пояснительная записка
140106 СБ 10 КП 00000 ПЗ
Выполнил: ст. гр. ЭОП-05 Красуля А.С.
Руководитель: профессор кафедры ПТЭ Семёнов С.А.
Братск 2009
Федеральное агентство по образованию
ГОУ ВПО «Братский государственный университет»
Факультет энергетики и автоматики
Кафедра промышленной теплоэнергетики
ЗАДАНИЕ
на выполнение курсового проекта по дисциплине
«Энергосбережение в теплоэнергетике и теплотехнологиях»
Расчет контактного теплоутилизатора
Студенту группы ЭОП–05 Красуле А.С.
Содержание задания:
1. Исходные данные (В-10):
Тип теплоутилизатора – орошаемый насадочный скруббер;
Тип насадки: кольцевая керамическая (загрузка навалом);
Температура уходящих газов на выходе из теплоутилизатора: 40°C;
Температура воды на входе в теплоутилизатор: 5°C;
Тип котлоагрегата: Е-10-14 ГМ;
Вид топлива: попутный газ Каменный лог - Пермь;
Стоимость топлива: 76 р./1000 м3;
Стоимость электроэнергии: 0,12 р./кВт·ч;
Коэффициент инфляции: 40;
2. Графическая часть –
2 л.
2.1. Чертеж контактного насадочного скруббера ЭК-МБ1. Формат А1.
2.2. Схема газового тракта котла с теплоутилизатором. Формат А2-А3.
Руководитель: профессор кафедры ПТЭ Семёнов С.А.
Задание выполнил ст. гр. ЭОП-05 Красуля А.С.
СОДЕРЖАНИЕ
ВВЕДЕНИЕ
1. ЛИТЕРАТУРНЫЙ ОБЗОР
2. ТЕПЛОВОЙ РАСЧЕТ
3. КОНСТРУКТИВНЫЙ РАСЧЕТ
4. ГИДРАВЛИЧЕСКИЙ РАСЧЕТ
5. ЭКОНОМИЧЕСКИЙ РАСЧЕТ
ЗАКЛЮЧЕНИЕ
СПИСОК ИСПОЛЬЗОВАННОЙ ЛИТЕРАТУРЫ
ВВЕДЕНИЕ
Задачей курсового проекта является проектирование контактного теплоутилизатора, с этой целью проводится тепловой, конструктивный, гидравлический и экономический расчеты.
В них определяется поверхность теплообмена для передачи заданного количества теплоты, проводится выбор типоразмера теплоутилизатора, определяется количество аппаратов, высоты засыпки насадки в КТУ, проводится анализ влияния размеров насадки на потребляемую мощность, необходимую для продувки газа через КТУ и выбор наиболее экономически целесообразного варианта насадки.
Курсовой проект состоит из двух частей: расчетно-пояснительной записки и графической части.
Ключевые слова: теплоутилизатор теплообмен котлоагрегат
1. ЛИТЕРАТУРНЫЙ ОБЗОР
Контактные теплообменники получили широкое распространение при конденсации паров, охлаждении газов водой, нагревании воды газами, охлаждении воды воздухом, мокрой очистке газов и в других. Целесообразно их использовать и в качестве теплоутилизаторов, так как с уходящими газами котельных, ТЭЦ, теплопотребляемого оборудования теряется значительное количество теплоты.
При охлаждении дымовых газов в контактных аппаратах экономия тепла обеспечивается как за счет снижения температуры уходящих газов, так и за счет теплоты конденсации содержащихся в них водяных паров.
При сжигании жидкого или твердого топлива, содержащего сернистые соединения, и охлаждении уходящих газов ниже точки росы происходит конденсация паров серной кислоты, поэтому широкое внедрение контактных аппаратов для утилизации теплоты дымовых газов в котельных рекомендуется в настоящее время только для газифицированных котельных и ТЭЦ.
Эффективность КТУ снижается с увеличением температуры воды на входе, поэтому их применение рекомендуется при температурах воды на входе не выше 35°С.
По назначению контактные теплообменники можно подразделить на охладители или нагреватели газа (жидкости), увлажнители или осушители газа и др. Они могут иметь одну или несколько взаимодействующих зон, в которых протекают процессы однофазного нагрева (охлаждения), испарения, конденсации, кристаллизации либо устанавливается динамическое равновесие между энергоносителями.
По конструктивному оформлению среди контактных теплообменников можно выделить: контактные теплоутилизаторы с активной насадкой, полые скрубберы, насадочные скрубберы, барботажные или тарельчатые колонны, скрубберы с подвижным слоем шаровой насадки, трубы Вентури, контактные теплоутилизаторы с активной насадкой.
К основным особенностям работы контактных теплообменников можно отнести следующее:
1)процессы охлаждения или нагрева сред сопровождаются массообменном;
2)нагрев или охлаждение сред происходит до определенного температурного предела, после достижения которого устанавливается динамическое равновесие;
3)нормальная работа теплообменника возможна в относительно узком диапазоне параметров, определяемом конструкцией аппарата, соотношением расходов сред, их взаимным направлением, скоростями, способами распределения, уносом и другими факторами;
4)процессы формирования поверхности контакта между газом и жидкостью имеют стохастический характер, определяемый гидродинамическими и тепловыми режимами аппаратов.
Применение контактных теплоутилизаторов в газифицированных котельных позволяет повысить эффективность использования природного газа до 20%
(в зависимости от наличия потребителей горячей воды с температурой до 50°С
).
Примерами контактных теплообменников могут являться полые скрубберы, барботажные и тарельчатые колонны, насадочные скрубберы, трубы Вентури, контактные теплоутилизаторы с активной насадкой.
Особое место среди контактных теплоутилизаторов занимают насадочные скрубберы. Они представляют собой колонны, заполненные телами различной формы, и имеют круглое или прямоугольное сечение; диаметр скруббера может составлять 6–9 м
, а высота 25–35м
. Орошающая жидкость, подаваемая сверху, дробится на капли механическими форсунками грубого распыла, работающими под давлением 0,3–0,4МПа
. При этом факелы распыла должны перекрывать все поперечное сечение скруббера. Поток газа со скоростью 0,7–1,5м/с
, как правило, направляется противоточно по отношению к каплям, снизу вверх. В скрубберах с установленным для уменьшения уноса жидкой фазы
каплеуловителями скорость газа в пересчете на полное поперечное сечение аппарата может достигать 5–8 м/с
. Удельный расход воды в скруббере при охлаждении, например, доменного газа составляет 3–10 кг/м3
, он зависит от температуры и начальной влажности газа.
Для создания и увеличения поверхности контакта орошающей воды и уходящих газов на опорные колосниковые решетки насыпают или укладывают в определенном порядке кольцевые и седловые насадки, насадку из колец Палля, седел Берля, стальных шариков, спиралей из стальной ленты и пластмассовых прутков, керамических блоков (рис. 1).
Некоторые типы насадок для контактных теплоутилизаторов
Рис. 1. а – кольцевая керамическая; б – седла Берля; в – кольца с перегородками; г – шары; д – пропеллерная насадка; е – кольца Палля; ж – хордовая насадка; з – спираль; и – керамические блоки
Важнейшими требованиями к насадке являются обеспечение большей поверхности контакта фаз, низкий перепад давления в слое, а также равномерное распределение потоков газа и жидкости по сечению аппарата.
С учетом проведенных испытаний научно- исследовательским институтом санитарной техники (НИИСТ, г. Киев) совместно с Промэнергогазом были разработаны конструкции блочных насадочных скрубберов ЭК–БМ1 и ЭК–БМ2 применительно к котлам всех типоразмеров.
Общий вид скрубберов ЭК–БМ1 приведен на рис. 2. В таком виде скрубберы выпускаются с 1986 г. Конструктивная схема блоков ЭК–БМ1 и
ЭК–БМ2 одинакова, но габаритные размеры их различны: диаметр соответственно 1000 и 2000 мм
, высота 4000 и 4500 мм
, толщина стенок корпуса 4 и 5–6 мм
.
Корпус блока состоит из трех секций: верхней, средней и нижней. В каждой секции имеются патрубки, штуцера, лазы, расположение которых зависит от компоновки скруббера в котельной.
Нижняя секция имеет плоское днище, к которому приваривают опорную раму и четыре несущие лапы, устанавливаемые на фундамент. В секции имеется штуцер для отвода горячей воды, а в дне – штуцер для дренажа и продувки водяного объема.
В корпусе средней секции имеется приваренный под углом прямоугольный патрубок для подвода горячих дымовых газов, а также люк для осмотра и ремонта поднасадочного объема и выгрузки насадки. В секции имеется внутренняя рама, на которой устанавливается опорная решетка, несущая рабочий слой насадки из керамических колец.
В верхней секции имеются люки, служащие для загрузки и укладки колец рабочего слоя, осмотра и ремонта водораспределителя, а также для загрузки насадки каплеулавливающего слоя, патрубок для отвода охлажденных и осушенных в скруббере дымовых газов, опорная решетка, несущая каплеулавливающий слой насадки 200 мм
, загруженной кольцами 50x50x5 мм
навалом.
Холодная вода подается в скруббер с помощью водораспределителя, состоящего из подводящей трубы, круглого коллектора и восьми радиально расположенных горизонтальных перфорированных труб, вваренных в коллектор. Диаметр отверстий в трубах и коллекторе 5 мм
, шаг 50 мм.
Горячая вода удаляется из водяного объема через специальный штуцер.
В настоящее время скрубберы двух типоразмеров выпускает ЛЗГА под маркой ЭК–БМ1–1 (диаметр 1м
) и ЭК–БМ1–2 (диаметром 2 м
).
Из скруббера уходящие газы выходят с относительной влажностью 95 ¸ 100%
, что не исключает возможности конденсации водяных паров из газов в газоотводящем тракте после скруббера. Для устранения этого необходимо
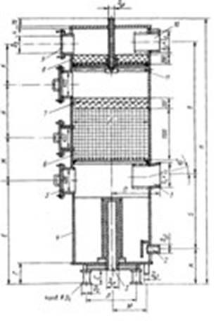
Блочный контактный насадочный скруббер ЭК–БМ1 последней модификации

Рис.2. 1 – входной патрубок горячих газов; 2 – штуцер для отвода нагретой воды; 3 – переливной патрубок (труба); 4 – корпус; 5 – люк; 6 – рабочий слой кольцевых насадок, уложенных рядами; 7 – то же, загруженных навалом; 8 – каплеулавливающий насадочный слой; 9 – люк-взрывной клапан; 10 – патрубок для отвода охлажденных газов; 11 – водораспределитель производить подсушку дымовых газов.
Преимуществом насадочных аппаратов по сравнению с безнасадочными является большая компактность, однако они обладают и большим гидравлическим сопротивлением. Насадка склонна к забиванию пылью при обработке запыленных газов.
2. ТЕПЛОВОЙ РАСЧЕТ
Главной целью теплового расчета контактных теплоутилизаторов является определение объема насадки (ее геометрической поверхности), который обеспечивает нагрев воды до заданных параметров.
В соответствии с заданием уточняем исходные данные для выполнения расчетов:
а) температуру дымовых газов на входе в КТУ (температуру уходящих из котла газов принимаем из характеристик котельного агрегата [2]), =1460
С
;
б) температуру дымовых газов на входе в КТУ (по заданию), =400
С
;
в) температуру воды на входе в КТУ (по заданию), =50
С
;
г) теоретические объемы воздуха, водяных паров, азота, трехатомных газов принимаем из приложения 8 [1]:
=2,24 м3
/м3
;
=9,03 м3
/м3
;
=1,31 м3
/м3
;
=11,13 м3
/м3
– теоретический объем воздуха;
=12,58 м3
/м3
– теоретический объем газов;
д) коэффициент избытка воздуха принимаем согласно рекомендациям [2], =1,3;
е) расчетный КПД котла, расход топлива (из характеристик котельного агрегата [2]): =92,1 %
;
Расход топлива рассчитываем по формуле:
,
где теплопроизводительность котла, кВт, определяемая по формуле:
,
где номинальная паропроизводительность, кг/с,
(из характеристик котельного агрегата [2]), 10 т\ч=2,77
кг/с
;
расход воды на продувку, кг/с
, принимается 
кг/с
;
энтальпия перегретого пара, питательной и котловой воды, МДж/кг
.
определяем при =194 0
С
(прил.5,[1]), =2789,08 кДж/кг
;
определяем при 0
С
(прил.4.[1]), =419,1 кДж/кг
;
определяем при =1,4 МПа
, (прил.4.[1]), =830,8 кДж/кг
;
располагаемая теплота, принимаемая МДж/м3
;

м3
/с
Определяем удельный объем дымовых газов:
,
где коэффициент избытка воздуха;
м3
/м3
Определяем объемные доли компонентов в дымовых газах:
,
,
,

Определяем начальное влагосодержание дымовых газов:
,
где объемная доля компонента;
молекулярная масса компонента, г/моль
, 18 г/моль
,
44 г/моль
, 28 г/моль
, 29 г/моль.
кг/кг.
Тепловой расчет контактного теплоутилизатора ведется на 1 кг
сухого газа, поэтому необходимо определить начальное влагосодержание сухих газов, кг/кг с.г.
,
где молекулярная масса сухих газов.
кг/кг с.г.
Определяем конечное влагосодержание дымовых газов, полагая, что на выходе из теплоутилизатора при температуре газ является насыщенным, кг/кг с.г.
:
,
где газовая постонная сухого газа,
;
газовая постоянная водяного пара (молекулярная масса пара =18),
;
Р
– давление влажного газа в аппарате, МПа
, принимаем Р
=0,1 МПа
;
РМАКС
– давление насыщенного пара при =400
С
, МПа
(прил. 6 [1]), РМАКС
=0,0076 МПа
;
кг/кг с.г
.
Определяем давление водяных паров в аппарате по формуле:
МПа
По давлению водяных паров определяем предварительное значение температуры мокрого термометра (прил. 6 [1]):
=52,2 0
С
при =0,0141 МПа
Определяем влагосодержание дымовых газов , кг/кг с.г
. при по формуле:
кг/кг с.г
.
Уточняем температуру мокрого термометра по методу, предложенному Н.И. Егоровым. Этот метод основан на составлении теплового баланса теплоутилизатора в момент насыщения газа парами и достижения жидкостью температуры мокрого термометра. В этом случае тепло, содержащееся в газе, равно сумме тепла, внесенного газом в аппарат, и тепла паров, образовавшихся при испарении жидкости.
Тепловой баланс аппарата по газу тогда запишется следующим образом:
,
где теплоемкость сухих газов, определяемая при средней температуре дымовых газов в аппарате =930
С, (
по прил. 7 [1]): 1,043 кДж/(кг0
С)
;
энтальпия пара при =52,2 0
С
: 2595 кДж/кг,
[3];
энтальпия водяного пара при =1460
С, (
по прил. 5 [1]), 2741,66 кДж/кг
[3];
Подставив значения и , а также и в это уравнение, проверяем сходимость баланса:


%.
Так как погрешность баланса превышает 1 %, то задаемся другим значением температуры мокрого термометра; увеличиваем, так как левая часть баланса меньше правой .
Принимаем =56,0 0
С
, тогда =0,01688 МПа.
Влагосодержание дымовых газов , кг/кг с.г
. определим по формуле:
кг/кг с.г
.
Энтальпию пара находим при =56,0 0
С
, 2600 кДж/кг,
энтальпия водяного пара при =1460
С
и =0,0141МПа
2741,66 кДж/кг
[3].
Тогда проверяем сходимость баланса:


%.
Погрешность баланса не превышает 1 %
.
Изображаем на Id
–диаграмме процессы охлаждения дымовых газов в контактном теплоутилизаторе :
Определяем средний действительный объем дымовых газов в КТУ по формуле:
,
где средняя температура дымовых газов в аппарате,
0
С
;
В
– расход топлива, В
=0,169 м3
/с
;
удельный объем дымовых газов 15,919 м3
/м3
;
м3
с.
Рассчитываем массовый расход дымовых газов:
,
где плотность дымовых газов при 0
С
:
,
где сумма произведений объемных долей и молекулярных масс компонентов, г/моль
;
кг/м3
кг/с
Для устранения возможной конденсации водяных паров необходимо производить подсушку уходящих из КТУ газов путем перепуска (байпасирования) 10¸15 % или более их объема помимо КТУ и их дальнейшее смешение за теплоутилизатором.
Массовый расход газов через теплоутилизатор с учетом байпасирования определяем через тепловой баланс:
,
где температура газов в устье дымовой трубы,
;
теплоемкость дымовых газов, определяемая по температуре по прил. 7 [1], ;
теплоемкость газов при 0
С
, определяемая по прил. 7[1], ;
теплоемкость газов при 0
С
, определяемая по прил. 7[1], ;
кг/с
Определяем расчетный расход газов через теплоутилизатор с учетом байпасирования:
м3
/с
Находим начальное значение температуры воды, выходящей из теплоутилизатора:

Рассчитываем секундный расход воды, подаваемой в КТУ:
,
где теплоемкость сухих газов при определяемая 0
С
по прил. 7 [1], ;
энтальпия водяного пара при 0
С
, определяемая по прил. 5 [1] 2741,66 кДж/кг
[3] ;
энтальпия водяного пара при 0
С
, определяемая по прил. 4 [1], ;
теплоемкость воды при 0
С
, определяемая по прил. 4 [1],
;
теплоемкость воды при 0
С
, определяемая по прил. 4 [1], ;
По найденному значению уточняем температуру выходящей из теплоутилизатора воды:
0
С
Определяем несовпадение предварительно заданного и рассчитанного значений :
%
,
где температура воды на выходе из теплоутилизатора 0
С
;
температура воды на выходе из теплоутилизатора 0
С
Так как Д=4,25% < 5% 0
С
Определяем количество утилизируемой теплоты (теплопроизводительность КТУ):
,
где секундный расход воды, подаваемой в КТУ, 3,274 кг/с
;
теплоемкость воды при 0
С
, определяемая по прил. 4 [1], ;
начальное влагосодержание дымовых газов, 0,10 кг/кг с.г
.;
конечное влагосодержание дымовых газов, 0,058 кг/кг с.г
.
кВт
Рассчитываем количество нагретой воды, выходящей из теплоутилизатора:
кг/с.
3.КОНСТРУКТИВНЫЙ РАСЧЕТ
Задачами конструктивного расчета являются: выбор типоразмера теплоутилизатора, определение количества аппаратов, определение высоты засыпки насадки в КТУ.
Расчет конструктивных характеристик теплоутилизатора производится для всех размеров заданного типа насадки (таблица 2.1. [1]).
Выбираем тип теплоутилизатора. В качестве КТУ принимаем стандартный контактный экономайзер ЭК-БМ1, выпускаемый двух типоразмеров: ЭК-БМ1-1 с диаметром скруббера 1м
и ЭК-БМ1-2 с диаметром 2м
.
Выбираем ЭК-БМ1-1 с диаметром скруббера 1 м
.
Рассчитываем количество устанавливаемых аппаратов:
,
где диаметр выбранного типа теплоутилизатора, м
;
рекомендуемая скорость газов в свободном сечении скруббера
м/с
;
шт.
Полученное значение округляем до целого числа, т.е. n
= 2 шт
. Дальнейший расчет ведем для одного аппарата.
Определяем действительную скорость газов в свободном сечении теплоутилизатора:
м/с
Рассчитываем среднюю разность температур между теплоносителями:
0
С
Определяем плотность орошения:
,
где плотность воды при 0
С
, определяемая по прил. 4 [1], кг/м3
;
свободный объем насадки, ; ; ; , размер насадки: 1) 15х15х2; 2) 25х25х3; 3) 35х35х4; 4) 50х50х5 из таблицы 2.1. [1]).
м3
/(м2
ч)
м3
/(м2
ч)
м3
/(м2
ч)
м3
/(м2
ч)
Рассчитываем поверхностный коэффициент теплообмена:
,
где коэффициент теплопроводности сухого газа при 0
С
, определяемый по прил. 7 [1], ;
плотность сухих газов при 0
С
, определяемая по прил. 7
[1], кг/м3
;
динамическая вязкость газа при 0
С
, определяемая по
прил. 7 [1], ;
кинематическая вязкость жидкости, определяемая по прил. 4 [1] при 0
С
, ;
g
– коэффициент свободного падения,g
=9,81 м/с2
;
a
=1,16 – коэффициент перевода из технической системы единиц в СИ;
удельная поверхность насадки в единице объема, ; ; ; (таблица 2.1. [1]);
   Определяем расчетную поверхность насадки:
м2
м2
м2
м2
Рассчитываем объем насадки:
м3
м3
м3
м3
Определяем полную высоту насадки и удельное тепловое напряжение:
,
где площадь сечения аппарата, определяемая по формуле:
,
где количество подаваемой в аппарат воды, ;
плотность воды при tж
=26,915o
С
, сж
=996,47 кг/м3
;
м2
м2
м2
м2
Тогда высота насадки определится:
м
м
м
м.
Определяем удельное тепловое напряжение:
,




По полученным данным строим графические зависимости поверхностного коэффициента теплообмена и полной высоты насадки КТУ от удельной поверхности насадки и (рис.4,5).

Рис.4. График зависимости KF
=f(f).

Рис.5 График зависимости H=f(f).
4. ГИДРАВЛИЧЕСКИЙ РАСЧЕТ
Целью гидравлического расчета является определение мощности, затрачиваемой на перекачивание газа через скруббер.
Продувание газа через КТУ связано с дополнительными затратами энергии. Для определения мощности, затрачиваемой на перекачивание газа, нужно подсчитать сопротивление тракта, которое зависит от типа насадки и гидравлического режима работы аппарата.
Н.М. Жаворонковым рекомендуется следующая формула для определения сопротивления сухой (неорошаемой) насадки:
,
где коэффициент сопротивления при прохождении газа через слой насадки;
высота слоя насадки, м
;
эквивалентный диаметр, м
(табл.2.1. [1]);
скорость газа в свободном сечении насадки (действительная), м/с
;
плотность газа при 0
С
, кг/м3
.
Действительная скорость газа определяется по формуле:

где скорость газов (из конструктивного расчета);
свободный объем, м3
/м3
(табл.2.1. [1]).
м/с
м/с
м/с
м/с
По данным Н.М. Жаворонкова, для неупорядоченной насадки из колец (навалом) коэффициент сопротивления можно определить:
при  
при  ,
.
где динамическая вязкость газа при 0
С,
.




Так как , то 








Сопротивление смоченной насадки всегда больше сопротивления сухой, вследствие уменьшения проходного сечения жидкостной пленки:
,
где коэффициент.
При орошении водой величина коэффициента может быть найдена по приближенной формуле:
,
где u
– плотность орошения, (из конструктивного расчета).








Мощность, необходимая для продувания газа через КТУ определяется:
,
где объемный расход дымовых газов через КТУ, м3
/с
;
КПД нагнетателя, принимаем 0,75.
кВт
кВт
кВт
кВт
По полученным значениям строим графическую зависимость N=
f(
f)
(рис. 6).

Рис.6. График зависимости N=f(f).
5.ЭКОНОМИЧЕСКИЙ РАСЧЕТ
Целью экономического расчета является определение годового экономического эффекта и срока окупаемости дополнительных капвложений.
Увеличение коэффициента использования топлива котла при установке контактных теплоутилизаторов определяется:
,
где расход топлива, ;
количество теплоты, сэкономленное в КТУ, Вт
;
низшая теплота сгорания топлива.

,
где и т.д. – содержание горючих компонентов в газе, % по прил.8 [1].
 
Экономия первичного топлива при использовании уходящих газов котла определяется:
,
где число часов работы утилизационной установки в году, Т=7500 ч/год
;
КПД котла, рассчитанный по высшей теплоте сгорания топлива.

м3
/год.
Годовая стоимость сэкономленного топлива определяется по формуле:

где прейскурантная цена топлива, определяемая по прил. 3 [1], ;
коэффициент инфляции, 
руб/год.
Дополнительные капиталовложения в КТУ:
,
где масса аппарата, принимается 500 кг
на 1 м3
насадки:




цена 1 кг нержавеющей стали, ;
число скрубберов, 




Годовые амортизационные отчисления от дополнительных капиталовложений:




Годовые дополнительные расходы электроэнергии:

где дополнительная мощность, необходимая для продувания газов через теплоутилизатор (из гидравлического расчета), кВт
;




Годовая стоимость потребляемой электроэнергии определяется:

где тариф на электроэнергию, определяемый по прил.3 [1], ;




Итоговое снижение годовых эксплуатационных затрат 





Годовой экономический эффект составит:





Срок окупаемости установки:





По результатам расчетов строим графики зависимости годового экономического эффекта и срока окупаемости от удельной поверхности насадки и (рис. 7, 8) и производим выбор наиболее целесообразного варианта.

Рис. 7 График зависимости ЭГ
=f(f).

Рис.8. График зависимости Ток
=f(f).
Наиболее оптимальным вариантом насадки является вариант № 2, размер насадки 25Ч25Ч3. Срок окупаемости такой установки . А годовой экономический эффект при размере насадки 25Ч25Ч3 составляет 
ЗАКЛЮЧЕНИЕ
В данном курсовом проекте был проведен расчет контактного теплоутилизатора ЭК–БМ1 – 1.
В результате теплового расчета определили количество утилизируемой теплоты (теплопроизводительность КТУ), равную , температуру выходящей из теплоутилизатора воды 48,83 °С
, количество нагретой воды, выходящей из теплоутилизатора .
В конструктивном расчете определили типоразмер теплоутилизатора – ЭК–БМ1–1, и количество аппаратов – 2 шт. Рассчитали поверхность насадки для четырех видов типоразмера: , , , ; рассчитали высоту засыпки насадки для четырех видов типоразмера: , , , . Также построили графические зависимости поверхностного коэффициента теплообмена и полной высоты насадки КТУ от удельной поверхности насадки.
В гидравлическом расчете определили мощность, затрачиваемую на перекачивание газа: , , , .
В экономическом расчете определили экономическую эффективность использования КТУ: , , , , срок окупаемости:    . В результате всех расчетов и исходя из экономической целесообразности выбрали кольцевую керамическую насадку с размерами 25Ч25Ч3.
СПИСОК ИСПОЛЬЗОВАННОЙ ЛИТЕРАТУРЫ
1. Семёнов С.А.,Литецкая Е.В. Энергосбережение в теплоэнергетике и теплотехнологиях. Основы теории и проектирования контактных теплоутилизаторов: Учебно-методическое пособие / С.А.Семёнов, Е.В.Литецкая. – 2-е изд., исправл. и перераб. – Братск: ГОУ ВПО «БрГУ», 2006. – 62 с.
2. Роддатис К.Ф., Полтарецкий А.Н. Справочник по котельным установкам малой производительности / Под ред. К.Ф.Роддатиса. – М.: Энергоатомиздат, 1989. – 488 с.: ил.
3. Ривкин С.Л., Александров А.А. Термодинамические свойства воды и водяного пара: Справочник. Рек. Гос.службой стандартных справочных данных – 2-е изд., перераб. и доп. – М.: Энергоатомиздат, 1984, 80 с. с ил.
4. Котельные установки промышленных предприятий. Тепловой расчет промышленных котельных агрегатов: учебное пособие для курсового проектирования.- Г.В. Пак .- Братск: БрИИ 1996 .
|