ФЕДЕРАЛЬНОЕ АГЕНТСТВО ПО ОБРАЗОВАНИЮ
ГОУ ВПО
Уральский Государственный Горный Университет
Курсовая работа
по предмету: Сети ЭВМ и телекоммуникации
Тема: Разработка проекта компьютерной сети для офиса компании "Спичка"
Выполнил:
Студент гр.АСУ-06-2
Нефёдов В.Н.
Екатеринбург
2009
Содержание
1Введение
1 Выбор протокола и технологию построения ЛВС
2 Выбор сетевого оборудования
3 План сети
4 Конфигурация серверов и рабочих станций. Выбор ПО
5 Расчёт стоимости владения сети
Заключение
ВВЕДЕНИЕ
ЛВС или локальная вычислительная сеть - это распределенная компьютерная коммуникационная система. Она позволяет использовать одновременно информационные ресурсы рабочих станций сотрудников, ресурсы различного периферийного и коммуникационного оборудования, ресурсы серверного оборудования и систем хранения данных. Также сети ЛВС обеспечивают совместное применение систем управления компанией, специализированного программного обеспечения и сети Интернет.
Целью этой курсовой работы является разработка проекта компьютерной сети для офиса компании «Спичка», а также составление плана сети, выбор программного обеспечения и аппаратных конфигураций серверов и рабочих станций.
Техническое задание
Офис компании «Спичка» занимается производством спичек. Необходимы ЛВС и канал доступа к сети Интернет.
Необходимо:
1. Выбрать протокол и технологию построения ЛВС из расчёта пропускной способности - 100Мбит/с.
2. Определить используемое активное и пассивное сетевое оборудование.
3. Составить план сети в масштабе.
4. Определить программно-аппаратную конфигурацию серверов и рабочих станций.
5. Рассчитать стоимость владения сети.
1 Выбор протокола и технологии построения ЛВС
Для того, чтобы обеспечить пропускную способность каналов связи на скорости 100 Мбит/с, сравним протоколы FastEthernet, FDDI, 100 VG – AnyLAN, и выберем тот, который наиболее бы подходил к техническим требованиям.
Fast
Ethernet
. Эта технология почти полностью повторяет технологию Ethernet. Метод доступа остался тот же самый, а скорость передачи данных увеличилась до 100 Мбит/с. Расстояние между станциями ограничено и не должно превышать 100 м.
- Достоинства: - дешевизна технологии;
- скорость передачи 100 Мбит
- простота;
- распространенность;
· Недостатки: - ограничение максимальной длинны сегмента кабеля – 100 метров.
FDDI
.
Технология FDDI – это первая технология локальных сетей, в которой средой передачи данных является волоконно-оптический кабель. Сеть FDDI строится на основе двух волоконнооптических колец, которые образуют основной и резервный пути передачи данных между узлами сети. Наличие двух колец – это основной способ повышения отказоустойчивости в сети. Как и в TokenRing, в FDDI используется маркерный метод доступа . отличие лишь в том, что здесь имеется режим раннего освобождения маркера, который передаётся после передачи пакета. В этой сети не используются приоритеты, но определены два вида станций для подключения:
- станции двойного подключения (DAS) имеют скорость передачи данных 200 Мбит/с;
- станции одиночного подключения (SAS) – скорость передачи 100 Мбит/с.
Максимальное количество станций двойного подключения в кольце 500, максимальный диаметр двойного кольца 100 км, а между соседними узлами для оптоволокна равно 2 км, для UTP категории 5 – 100 м.
Достоинства: - хорошая производительность;
- большое расстояние:
- высокая отказоустойчивость;
- обеспечивает восстановление логической структуры;
Недостаток: - дорогая технология.
100
VG
–
AnyLAN
. Эта технология отличается от Ethernet больше, чем от FastEthernet. А именно: здесь используется другой метод доступа – DemandPriority, который поддерживает приоритетный метод доступа. Сеть 100VG – AnyLAN состоит из центрального коммутатора (корневого), соединённых с ним конечных узлов и других концентраторов. Концентратор циклически выполняет опрос портов. Станция, желающая передать пакет, посылает сигнал концентратору, запрашивая передачу кадра и указывая его приоритет. Существует два уровня приоритетов – низкий (файловая служба) и высокий (данные, чувствительные к задержкам). Если сеть свободна, то концентратор разрешает передачу пакета и после анализа адреса получателя в пакете отправляет его станции назначения. Если сеть занята, то концентратор ставит полученный запрос в очередь, которая обрабатывается в порядке поступления запросов и с учетом приоритетов. Имеет физический стандарт для UTP категории 5, STPType 1 и оптоволокна. Расстояние между концентратором и АС составляет 100 м.
- Достоинства: - надежность передачи данных;
- скорость передачи данных 100 Мбит/с;
- возникновение коллизий отсутствует;
- совместимость с другими сетевыми средами;
· Недостатки: - небольшие технические возможности;
- дороговизна.
Проанализировав сетевые технологии и учитывая что сеть должна обеспечить надёжность, простоту и распостраненность. Явные преимущества над всеми технологиями у технологии Fast Ethernet 100BaseТX.
FastEthernet. Fast Ethernet использует метод передачи данных CSMACD-множественный доступ к среде с контролем несущей и обнаружением коллизий. Fast Ethernet использует размер пакета 15160 байт. Кроме того, Fast Ethernet налагает ограничение на расстояние между подключаемыми устройствами – не более 100 метров. Для того чтобы снизить перегрузку, сети стандарта Fast Ethernet разбиваются на сегменты, которые объединяются с помощью мостов и маршрутизаторов. При построении центральной магистрали, объединяющей серверы, используют коммутируемый Fast Ethernet. Fast Ethernet-коммутаторы можно рассматривать как высокоскоростные много портовые мосты, которые в состоянии самостоятельно определить, в какой из его портов адресован пакет. Коммутатор просматривает заголовки пакетов и таким образом составляет таблицу, определяющую, где находится тот или иной абонент с таким физическим адресом. Это позволяет ограничить область распространения пакета и снизить вероятность переполнения, посылая его только в нужный порт. Только широковещательные пакеты рассылаются по всем портам.
Стандарт 100BaseTX требует применения двух пар UTP или STP. Одна пара служит для передачи, другая – для приема. Этим требованиям отвечают два основных кабельных стандарта: EIA/TIA-568 UTP Категории 5 и STP Типа 1 компании IBM. В 100BaseTX привлекательно обеспечение полнодуплексного режима при работе с сетевыми серверами, а также использование всего двух из четырех пар восьмижильного кабеля - две другие пары остаются свободными и могут быть использованы в дальнейшем для расширения возможностей сети.
Недостатки: этот кабель дороже других восьмижильных кабелей, кроме того, для работы с ним требуется использование пробойных, разъемов и коммутационных панелей, удовлетворяющих требованиям Категории 5. Нужно добавить, что для поддержки полнодуплексного режима следует установить полнодуплексные коммутаторы.
2 Выбор сетевого оборудования
На сегодняшний день существует множество фирм, выпускающих сетевое оборудование. Наиболее популярными являются 3COM, Cisco, Linksys, ATI, D-Link, и другие. Разнообразие фирм затрудняет выбор оборудования, т.к. некоторые фирмы занимаются производством уже давно, являются престижными и устанавливают высокие цены на свои продукты. Другие менее известные устанавливают цены ниже, но качество тоже может быть ниже.
Появление каждой новой фирмы и ее продуктов обостряет конкуренцию на рынке и приводит к снижению цен на оборудование. Сети становятся все более доступными.
Так как общее количество рабочих мест равно 29, и количество запланированных для монтажа розеток – 33 штуки, то необходим коммутатор с соответствующим числом портов. Наиболее подходящими под эти цели из представленных на рынке моделей являются 48-портовые коммутаторы, обеспечивающие возможность подключения всех имеющихся рабочих мест и имеющими запас свободных портов в случае необходимости расширения сети. Так же возможен вариант использования двух 24-портовых коммутаторов, соединённых между собой. Рассмотрим некоторые модели основных производителей, представленные на рынке (ввиду малого масштаба сети и её архитектуры, применение управляемых моделей финансово не оправданно – поэтому они рассматриваться не будут)
3Com Baseline Switch 2250
- Коммутатор начального уровня, старший в семействе Baseline, предназначен для малых и средних компаний, филиалов и рабочих групп.
Портов 10/100
BASE-T
|
Портов 10/100/
1000 BASE-T
|
Число МАС адресов |
Размеры, мм |
Вес, кг |
| 48 |
2 |
8000 |
440x235x44 |
1,5 |
средняя стоимость по данным price.ru – 8500р.
Linksys SR224 -
коммутатор для рабочей группы, настольный / монтируемый в шкаф-стойку
Портов 10/100
BASE-T
|
Портов 10/100/
1000 BASE-T
|
Число МАС адресов |
Размеры, мм |
Вес, кг |
| 24 |
- |
н\д |
279х240х45 |
1,5 |
средняя стоимость по данным price.ru – 4480р
D-Link DES-1026G
- 26-ти портовый коммутатор DES-1026G разработан для подключения высокопроизводительных рабочих групп и отделов.
Портов 10/100
BASE-T
|
Портов 10/100/
1000 BASE-T
|
Число МАС адресов |
Размеры, мм |
Вес, кг |
| 24 |
2 |
8000 |
440x200x44 |
2,8 |
средняя стоимость по данным price.ru4 680 руб.
D-Link DES-1024D
– более дешёвая модель, гигабитные порты отсутствуют.
Портов 10/100
BASE-T
|
Портов 10/100/
1000 BASE-T
|
Число МАС адресов |
Размеры, мм |
Вес, кг |
| 24 |
- |
8000 |
280x180x44 |
1,5 |
средняя стоимость по данным price.ru- 2040р
Из всех рассмотренных моделей можно остановится на 3Com Baseline Switch 2250 ,
так как он обеспечивает непосредственное наличие 48 портов, и имеет пожизненную гарантию от производителя. Вариант из двух Linksys SR224 не целесообразен, во-первых из-за цены (суммарная стоимость превысит последнюю у 3com) и во-вторых из-за более низкой пропускной способности полученной связки (гигабитные порты отсутствуют + более низкая внутренняя п.с. устройства). Пара D-Link DES-1026G опять же дороже чем 3com, хотя имеет равную п.с. и гигабитные порты. Самым экономически выгодным вариантом является два коммутатора D-Link DES-1024D, так как они обладают самой низкой стоимостью при практически равных функциональных возможностях, но срок гарантии составляет всего 12 месяцев.
Принимая во внимание всё вышеописанное, и учитывая, что к проектируемой сети не предъявляется повышенных требований безопасности, а общее кол-во передаваемого трафика находится на среднем уровне (сеть малого офиса) - за основу выбирается коммутатор D-Link DES-1024D в количестве двух штук. Впоследствии, при необходимости расширить кол-во рабочих мест возможно приобретение ещё одной модели.
Для обеспечения совместного доступа в интернет, а так же для обеспечения централизованного управления трафиком необходимо применения маршрутизатора. За основу может быть взят как обыкновенный персональный компьютер под управлением серверной ОС со всеми необходимыми сервисами и службами (DNS; DHCP; gateway; NAT и т.д.)- чаще всего это UNIX-системы. Либо готовое устройство сочетающее в себе все необходимые аппаратно-програмные средства. В первом случае есть возможность гораздо более гибко и точно настроить все функции под конкретные требования, например включить поддержку биллинга или файерволла. Но возрастает сложность облуживание, необходимо привлечения специалиста для первоначальной настройки.
В случае применения готового устройства, функциональные возможности не так широки и изначально обусловлены его аппаратными возможностями – но при этом не требуют столь тщательной настройки и как правило проще в обслуживании. Рассмотрим некоторые модели (беспроводные модели не рассматриваются, ввиду того что целесообразнее использовать несколько точек доступа подключенных к свободным портам коммутатора и распложенных в соответствии с размерами необходимой зоны покрытия)
Linksys BEFVP41
Маршрутизатор 4-х портовый 10/100 с VPN сервером.
| Тип устройства |
Маршрутизатор проводной |
| Количество портов коммутатора |
4 |
| Базовая скорость передачи данных |
10/100 Мбит/сек |
| Размер таблицы MAC адресов |
- |
| DHCP-сервер |
да |
| Межсетевой экран (Firewall) |
да |
| NAT |
да |
| Поддержка Dynamic DNS |
нет |
| Число поддерживаемых VPN-туннелей |
50 |
| Web-интерфейс |
да |
| Автоматическое определение MDI/MDIX |
да |
Примерная цена - 5 000 руб
TRENDnet
TW
100-
BRV
304
VPN-шлюз, интегрированный с коммутатором и сетевым экраном
| Тип устройства |
Маршрутизатор проводной |
| Количество портов коммутатора |
4 |
| Базовая скорость передачи данных |
10/100 Мбит/сек |
| Размер таблицы MAC адресов |
- |
| DHCP-сервер |
да |
| Межсетевой экран (Firewall) |
да |
| NAT |
да |
| Поддержка Dynamic DNS |
да |
| Число поддерживаемых VPN-туннелей |
70 |
| Web-интерфейс |
да |
| Автоматическое определение MDI/MDIX |
да |
Примерная цена – 5100р
Planet VRT-311
роутер с VPN 4x10/100TX+1xRJ-45 (WAN)
| Тип устройства |
Маршрутизатор проводной |
| Количество портов коммутатора |
3 |
| Базовая скорость передачи данных |
10/100 Мбит/сек |
| Размер таблицы MAC адресов |
1024 |
| DHCP-сервер |
да |
| Межсетевой экран (Firewall) |
да |
| NAT |
да |
| Поддержка Dynamic DNS |
нет |
| Число поддерживаемых VPN-туннелей |
100 |
| Web-интерфейс |
да |
| Автоматическое определение MDI/MDIX |
да |
Примерная цена – 5500р
Все перечисленные маршрутизаторы относятся к классу проводных решений, имеют встроенный коммутатор, поддерживают стандартные функции как DHCP и DNS сервер, поддерживают технологию NAT и так же оснащены встроенными файерволлами, для обеспечения безопасности и контроля доступа внутрь сети. Из особенностей стоит отметить поддержку VPN – что позволит создавать защищённые подключения например между удалёнными филиалами или несколькими офисами и создать сеть предприятия.Выбор производителя и модели в каждом конкретном случае должен определяться множеством факторов, начиная от наличия необходимых дополнительных функций (к примеру, встроенный Microsoft-совместимый PPTP-сервер) и заканчивая удобством интерфейса конфигурирования.
На основании этого выбирается маршрутизатор Linksys BEFVP41, обладающий самой низкой стоимостью, хорошим функционалом, довольно удобным и продуманным веб-интерфейсом и логотипом «Cisco Systems» на лицевой панели.
Для подключения ПК на рабочих местах пользователей необходимо приобрести сетевые карты с интерфейсом PCI, т.к. не все могут обладать встроенными – и их использование не рационально ввиду невозможности замены при выходе из строя и возможного риска нарушения работоспособности материнской палаты в целом.
Список активного сетевого оборудования:
Коммутатор D-Link DES-1024D – 2 шт.
Сетевая карта PCID-LinkDFE-520TX 10/100 – 30 шт
Маршрутизатор Linksys BEFVP41– 1 шт.
Так же для монтажа требуется следующее пассивное сетевое оборудование:
Розетка наст. RJ-45 Cat.5 1 порт (SMN-1WT) – 33 шт.
Patch-panel 24 UTP, 19", 5e кат., с держателем кабеля – 3 шт.
Разъем RJ-45 Cat.5 (P88RE06V2) – 40 шт.
Кабель «витая пара» Cat.5eUTP – 1300м в учетом запаса 10%,
Настенный коммутационный шкаф 19" 600х450dx12U с вентилятором -1 шт.
Расчет стоимости оборудования
| № |
Наименование |
Кол-во |
Цена |
Стоимость |
| 1 |
Коммутатор D-Link DES-1024D |
2 |
2040 р |
4080р |
| 2 |
Сетевая карта PCID-LinkDFE-520TX 10/100 |
30 |
170 р. |
5100р |
| 3 |
Марш. Linksys BEFVP41 |
1 |
2350 р. |
5000р |
| 4 |
Розетка наст. RJ-45 Cat.5 1 порт (SMN-1WT) |
33 |
30 |
990р |
| 5 |
Patch-panel 24 UTP, 19", 5e кат |
3 |
893 р. |
2679р |
| 6 |
Разъем RJ-45 Cat.5 |
40 |
7р |
280р |
| 7 |
Кабель «витая пара» Cat.5eUTP м. |
1300 |
8р |
10400р |
| 8 |
коммутационный шкаф 19" 600х450dx12U |
1 |
8950р |
8950р |
| итого |
37479р |
Общая стоимость необходимого сетевого оборудования составила 37479р.

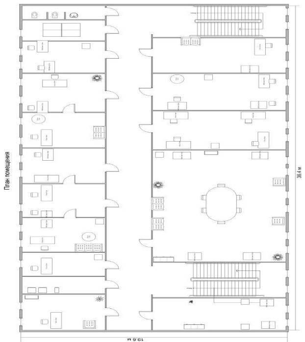
3 План сети

Логическая схема сети
4 Конфигурация серверов и рабочих станций. Выбор ПО
Для эффективной работы компании «Спичка» необходима централизованная программа бухгалтерского учёта, управления финансами и кадрами, а так же база данных с клиентами, заказами и продажами. Автоматизированные рабочие места сотрудников должны быть оснащены программными пакетами для обеспечения работы с электронной документацией, возможностью доступа в сеть интернет и отправки и получения электронной почты.
На рынке представлены следующие программные продукты ориентированные на финансы и бухучёт.
1С:Предприятие (КИС), — программный продукт компании 1С, предназначенный для автоматизации деятельности предприятий различных форм собственности. Последняя версия — 8.1. Используется более чем 1 млн. предприятиями на территории России, СНГ и Балтии, Румынии, Вьетнама. Имеет встроенный язык конфигурирования «бизнес-логики».
В общем виде платформа представляет собой программную оболочку над базой данных (используются базы на основе DBF-файлов в 7.7, собственный формат 1CD в версии 8.0 и 8.1 или Microsoft SQL Server на любой из этих версий)[1]. Кроме того, с версии 8.1 поддерживается PostgreSQL, а также DB2. Имеет свой внутренний язык программирования, обеспечивающий помимо доступа к данным возможность взаимодействия с другими программами посредством OLE и DDE, а в версии 8.0 и 8.1 — через COM-соединение. Платформа (клиентская часть) разработана для использования только в среде Microsoft Windows.
Программы «БЭСТ» — относятся к классу так называемых ERP-систем (программы для оперативного и бухгалтерского учёта, управления предприятием и так далее). Продано свыше 40000 копий программ в России, на Украине и в Белоруссии. Основные покупатели находятся в среде представителей малого и среднего бизнеса, коммерческих, производственных и бюджетных структур, получивших инструменты для автоматизации учета и управления.
Программные продукты «ПАРУС» (ПП «ПАРУС») — предназначены для автоматизации деятельности коммерческих предприятий и бюджетных учреждений разного уровня. Среди линеек ПП «ПАРУС» есть и тиражные продукты и относящиеся к классу ERP-систем.Довольно широко распространена на предприятиях и в учреждениях России и Украины.
В настоящее время основные линейки программных продуктов «ПАРУС» развиваются на платформах:
тиражные продукты Visual FoxPro (c 1997 г.);
корпоративные - Oracle (с 1996)
Система программ 1С:Предприятие предназначена для решения широкого спектра задач автоматизации учёта и управления на предприятии. Широкое распространение на рынке(фактически негласный стандарт), и гибкость настройки делают эту платформу лучшим выбором для автоматизации систем учёта предприятия.
За основу будет взят терминальный режим. Это позволит сократить расходы на рабочие станции (не требуется большая вычислительная мощность),облегчит задачи администрирование и обеспечения безопасности данных.Использование терминальной технологии для организации вычислительной сети предприятия даёт возможность руководству и персоналу компании воспользоваться многочисленными преимуществами: повышении безопасности хранения и обработки информации, удобством в обслуживании, экономии средств, повышению надёжности системы в целом.
Использование терминального режима предполагает наличие операционной системы семейства MSWindows 2003\2008 Server,версииStandard или выше . В качестве основных ролей будут использоваться роль Терминального сервера, файлового сервера и сервера печати.
MSWindowsServer 2008 на сегодня является самой последней версией в линейке серверных операционных систем Microsoft. Версия 2003 является предпоследней и имеет очень большое распространение в серверном сегменте рынка, она предъявляет более низкие требования к аппаратным ресурсам ПК, особенно в области потребления оперативной памяти, а так же имеет гарантированную совместимость с широким спектром программ. Предполагается использование версии 2003 R2 Enterprisex64 Edition с пакетом обновления servicepack 2 – как самоя последняя версия на сегодняшний день. Выбор 64битной версии обусловлен ограничением адресации памяти 32битной архитектуры – максимальное количество памяти, выделяемое под процесс, не может превышать 2 гб.
Выбор сервера для терминальной системы
Основное правило построения терминальной системы:
В качестве терминального сервера обязательно должен использоваться выделенный сервер.
Поскольку все приложения терминальных клиентов (или большая их часть) выполняются на сервере, на него создается большая нагрузка, сравнимая с суммарной нагрузкой обычных клиентских ПК, выполняющих те же приложения. Поэтому крайне нежелательно возлагать на терминальный сервер какие-либо другие функции (например, файл-сервера, контроллера домена или firewall).
Основные требования, предъявляемые к серверу терминальной системы:
· должен быть выделенным,
· двухпроцессорным,
· оснащенным большим объемом оперативной памяти.
Как и для большинства серверов, желательно наличие отказоустойчивой дисковой подсистемы (встроенный или внешний RAID-массив).
Процессор
Для использования в качестве терминального сервера обычно вполне достаточно двухпроцессорной системы. Установка большего числа CPU значительно удорожит систему, но, как правило, не принесет должного эффекта. При этом желательно, чтобы процессоры были как можно более производительными, с высокой тактовой частотой и большим объемом кэша - например, старшие модели Intel Xeon DP.
Объем памяти
Если клиентские ПК выполняют стандартный набор офисных приложений (Word, Excel, Web-броузер и программа электронной почты класса Outlook или The Bat!), в пересчете на одного пользователя обычно достаточно 100 MB памяти сервера. Поскольку современные приложения имеют модульную структуру, они, будучи запущены разными пользователями терминальной системы, компактно размещаются в оперативной памяти сервера за счет механизма, препятствующего дублированию программного кода в ОЗУ. Таким образом, сервера с 4 GB памяти будет достаточно для одновременной работы 40-50 пользователей терминальной системы.
Масштабирование
С ростом числа пользователей и превышением мощности сервера можно просто добавлять новые серверы, распределяя между ними нагрузку (Load Balancing) и обеспечивая отказоустойчивость (создавая кластер).
Рассмотрим подходящие по критериям модели:
HPProLiant ML370R05 имеет следующие характеристики:
Процессор: Intel® Xeon™ X5450 3.0 ghz
Материнская плата: Intel® 5000PServerchipset
Оперативная память: 4x2GB DDR-2 FB 5300
Дисковый массив: 4х 146GBSAS 10000RPMraid 0+1
два интегрированных сетевых адаптера 1Gbit Ethernet
Отказоустойчивый БП с возможностью горячей замены 1+1 800Вт
Стоимость - 98000р
ETegro Hyperion ES330 G2
Процессор: 1 x Intel Xeon E5405 12MB / 2.00 GHz /
Материнскаяплата: Intel® 5000P Server chipset
Оперативнаяпамять: 2 x FBDIMM 1Gb 667 ECC + Registered
Дисковый массив: 1 x HDD 160 GB SATA 7200 rpm
Стоимость - 74550 р.
Flagman LX220
Процессоры: 2 x Intel Xeon E5405 12MB / 2.00 GHz /
Материнскаяплата: Intel® 5000P Server chipset
Оперативная память: 2x2GB DDR-2 FB 5300
Дисковый массив: 2х 150GBSATA 10000RPM
два интегрированных сетевых адаптера 1Gbit Ethernet
фиксированный БП 550ватт
Стоимость – 85320р.
Сервер HP ProLiant ML370R05 имеет большой запас производительности –может быть установлен второй процессор, максимальный объем оперативной памяти и дискового массива может быть увеличен до 32gb и 24tb соответственно. ETegro Hyperion ES330 G2 имеет слишком маленький оббьем дискового пространства, Flagman LX220 обладает лучшим сочетанием цены\производитльности. Модель от HP в большей степени удовлетворят всем требованиям, т.к. имеет развитую дисковую подсистему и большой оббьем оперативной памяти – что никогда не будет лишним.
В качестве программного обеспечения будет использовано комплексное решение от 1С: Предприятие на основе платформы 8,1(sql версия) – как наиболее развитая и актуальная на сегодняшний день, с конфигурациями "Бухгалтерия Предприятия", "Управление торговлей" и "Зарплата и Управление Персоналом". Для управления базами данных будет использован MS SQL Server 2005 Express Edition –распространяемый бесплатно и обладающий необходимыми функциональными возможностями.
В качестве рабочих станций пользователей могут быть использованы как персональные компьютеры типовых конфигураций, так и тонкие клиенты.
Тонкий клиент - бездисковый компьютер-клиент в сетях с клиент-серверной или терминальной архитектурой, который переносит все или большую часть задач по обработке информации на сервер.Кроме общего случая, следует выделить аппаратный тонкий клиент (например, Windows-терминал) — специализированное устройство, принципиально отличное от ПК. Аппаратный тонкий клиент не имеет жёсткого диска, использует специализированную локальную ОС (одна из задач которой организовать сессию с терминальным сервером для работы пользователя), не имеет в своём составе подвижных деталей, выполняется в специализированных корпусах с полностью пассивным охлаждением.
Cумма затрат на лицензионное ПО при использовании терминалов ниже, чем при использовании ПК. Стоимость лицензии на терминальный доступ TSCAL (~$90) ниже стоимости лицензии для настольной ОС (~$150). Кроме того, не нужен локальный антивирус (~$50 в год на 1 пользователя) и сложное системное ПО, например, для резервного копирования, управления парком ПК и др.
Потребляемая мощность терминала не превышает 15...20Вт, в то время как обычные ПК, для сравнения, потребляют 150 Вт. Кратковременное отключение питания не является для терминалов критичным фактором, не нужны локальные UPS.
Упрощается локальное администрирование, поскольку всё ПО устанавливается централизованно на сервере, обновление и замена ПО также происходят только на сервере. Терминалы практически не нуждаются в локальном администрировании.
Значительно сокращаются риски хищения, утраты и подмены корпоративной информации.
DEPO Sky 222
DEPO Sky 222 WinCE6/ C7-1GHz/ 1GB_DDR2-667/ DOM-256MB/ C100/ CARE3/
Ценаконфигурации: 11 926 р.
ТОНК
1211
Windows XP терминал (тонкийклиент) ТОНК 1211 (TONK1211) (AMD Geode LX800, RAM 512 Mb, DOM 1024 Mb, VGA, FastEthernet, 3xUSB, COM, PS/2, WinXP Embedded)
Цена конфигурации 12 924 р.
DEPOSky 222 - это модель крупного отечественного производителя, широко представленного на рынке, а так же обеспечивающего полный спектр услуг постпродажного обслуживания и поддержки. Отличается более выгодной ценой и гарантией на 3 года.
5 Расчёт стоимости владения сети
Общие затраты на построение и использование ЛВС составят:
Стоимость оборудования
| № |
Наименование |
Кол-во |
Цена |
Стоимость |
| 1 |
Коммутатор D-Link DES-1024D |
2 |
2040 р |
4080р |
| 2 |
Сетевая карта PCID-LinkDFE-520TX 10/100 |
30 |
170 р. |
5100р |
| 3 |
МаршрутизаторLinksys BEFVP41 |
1 |
2350 р. |
5000р |
| 4 |
Розетка наст. RJ-45 Cat.5 1 порт (SMN-1WT) |
33 |
30 |
990р |
| 5 |
Patch-panel 24 UTP, 19", 5e кат |
3 |
893 р. |
2679р |
| 6 |
Разъем RJ-45 Cat.5 |
40 |
7р |
280р |
| 7 |
Кабель «витая пара» Cat.5eUTP м. |
1300 |
8р |
10400р |
| 8 |
коммутационный шкаф 19" 600х450dx12U |
1 |
8950р |
8950р |
| итого |
37479р |
Стоимость сервера и программного обеспечения
| № |
Наименование |
Кол-во |
Цена |
Стоимость |
| 1 |
Сервер HP ProLiant ML370R05 |
1 |
98000р |
98000р |
| 2 |
1C:Предприятие 8,1 лицензия на 15 рабочих мест |
15 |
3000 |
45000 |
| 3 |
MS Windows 2003 Server R2
x64 Enterprise 25 клиентских лицензий
|
1 |
93872 р |
93872 р |
| итого |
236872р |
Стоимость рабочих мест
| № |
Наименование |
Кол-во |
цена |
стоимость |
| 1 |
Тонкий клиент DEPO Sky 22 |
29 |
11 926 руб. |
348854р |
| итого |
348854р |
Общая итоговая сумма
| стоимость оборудования |
34829р |
| стоимость сервера и программного обеспечения |
236872р |
| Стоимость рабочих мест |
275500р |
| всего |
623268р |
ЗАКЛЮЧЕНИЕ
В этой работе была спроектирована локальная сеть для офиса компании «Спичка» занимающейся производством спичек. Данная ЛВС состоит из 1го сервера, 29 рабочих станций и 1 маршрутизатора. Количество кабеля «витая пара» по расчетам составляет 1170 метров, но следует учесть, что рекомендуется взять кабель с запасом 10%.
Доступ к сети Интернет предоставляется провайдером по технологии Ethernet, общая итоговая сумма затрат на прокладку сети и установку компьютеров и по составила 549914р.
Сеть легко поддаётся расширению, тк на коммутаторе осталось много свободных портов а использование патч-панелей призвано сократить затраты на установку дополнительных розеток.
|