Банк рефератов содержит более 364 тысяч рефератов, курсовых и дипломных работ, шпаргалок и докладов по различным дисциплинам: истории, психологии, экономике, менеджменту, философии, праву, экологии. А также изложения, сочинения по литературе, отчеты по практике, топики по английскому.
Полнотекстовый поиск
Всего работ:
364139
Теги названий
Разделы
Авиация и космонавтика (304)
Административное право (123)
Арбитражный процесс (23)
Архитектура (113)
Астрология (4)
Астрономия (4814)
Банковское дело (5227)
Безопасность жизнедеятельности (2616)
Биографии (3423)
Биология (4214)
Биология и химия (1518)
Биржевое дело (68)
Ботаника и сельское хоз-во (2836)
Бухгалтерский учет и аудит (8269)
Валютные отношения (50)
Ветеринария (50)
Военная кафедра (762)
ГДЗ (2)
География (5275)
Геодезия (30)
Геология (1222)
Геополитика (43)
Государство и право (20403)
Гражданское право и процесс (465)
Делопроизводство (19)
Деньги и кредит (108)
ЕГЭ (173)
Естествознание (96)
Журналистика (899)
ЗНО (54)
Зоология (34)
Издательское дело и полиграфия (476)
Инвестиции (106)
Иностранный язык (62791)
Информатика (3562)
Информатика, программирование (6444)
Исторические личности (2165)
История (21319)
История техники (766)
Кибернетика (64)
Коммуникации и связь (3145)
Компьютерные науки (60)
Косметология (17)
Краеведение и этнография (588)
Краткое содержание произведений (1000)
Криминалистика (106)
Криминология (48)
Криптология (3)
Кулинария (1167)
Культура и искусство (8485)
Культурология (537)
Литература : зарубежная (2044)
Литература и русский язык (11657)
Логика (532)
Логистика (21)
Маркетинг (7985)
Математика (3721)
Медицина, здоровье (10549)
Медицинские науки (88)
Международное публичное право (58)
Международное частное право (36)
Международные отношения (2257)
Менеджмент (12491)
Металлургия (91)
Москвоведение (797)
Музыка (1338)
Муниципальное право (24)
Налоги, налогообложение (214)
Наука и техника (1141)
Начертательная геометрия (3)
Оккультизм и уфология (8)
Остальные рефераты (21692)
Педагогика (7850)
Политология (3801)
Право (682)
Право, юриспруденция (2881)
Предпринимательство (475)
Прикладные науки (1)
Промышленность, производство (7100)
Психология (8692)
психология, педагогика (4121)
Радиоэлектроника (443)
Реклама (952)
Религия и мифология (2967)
Риторика (23)
Сексология (748)
Социология (4876)
Статистика (95)
Страхование (107)
Строительные науки (7)
Строительство (2004)
Схемотехника (15)
Таможенная система (663)
Теория государства и права (240)
Теория организации (39)
Теплотехника (25)
Технология (624)
Товароведение (16)
Транспорт (2652)
Трудовое право (136)
Туризм (90)
Уголовное право и процесс (406)
Управление (95)
Управленческие науки (24)
Физика (3462)
Физкультура и спорт (4482)
Философия (7216)
Финансовые науки (4592)
Финансы (5386)
Фотография (3)
Химия (2244)
Хозяйственное право (23)
Цифровые устройства (29)
Экологическое право (35)
Экология (4517)
Экономика (20644)
Экономико-математическое моделирование (666)
Экономическая география (119)
Экономическая теория (2573)
Этика (889)
Юриспруденция (288)
Языковедение (148)
Языкознание, филология (1140)

Контрольная работа: Водозаборные скважины

Название: Водозаборные скважины
Раздел: Рефераты по геологии
Тип: контрольная работа Добавлен 06:52:03 28 июня 2010 Похожие работы
Просмотров: 484 Комментариев: 14 Оценило: 3 человек Средний балл: 5 Оценка: неизвестно     Скачать

Контрольная работа

По геологии


Задача 1

Определить понижение уровня в центральной скважине водозабора, состоящего из n=3 скважин, расположенных параллельно совершенному урезу реки на расстоянии 2100 м друг от друга. Расход каждой скважины Q0 =800 м3 /сут, радиус фильтра r0 =0.1м. Водоносные аллювиальные пески имеют мощность hст =40 м, коэффициент фильтрации К=8 м/сут ; водоотдача 0.1 Прогноз выполнить для t=700 сут . Рассмотреть два варианта расстояния скважин до реки d1 =100м ;и d2 =500 м. Сопоставить полученные решения.

Решение:

Рассмотрим 1 вариант d1 =100м Величина уровнепроводности определяется по формуле:

а=м2 /сут

Время наступления стационарного режима фильтрации определим по формуле:

tс =

Rк =2(d+н.д ) т.к река с совершенным урезом то Rк =2d

tс =31 сут.

Так как длинна водозаборного ряда 2l=(n-1)*2=(3-1)*100=200 м и соблюдается условие dl, можем использовать формулу Маскета Лейбензона:


S0 =**[]=4.52 м

Так как S0.25hст данное решение не подлежит корректировке.

Рассмотрим 2 вариант при d2 =500 м.

tс == 781 сут

Радиус контура питания Rк =2d2 =2*500=1000 м .

Так как расстояние между взаимодействующими скважинами ri =20.3Rk , можем использовать формулу:

S=

S=

Увеличение расстояния скважины от реки существенно увеличило период нестационарного режима фильтрации, но мало повлияло на величину понижения.

Задача 2

Кольцевой водозабор ,состоящий из n=8 скважин ,вскрывает напорный пласт известняков мощностью m=50 м, коэффициент фильтрации К=4 м/сут. Выше залегает весьма водообильный горизонт грунтовых вод, отделенный от известняков слоем суглинков мощностью m0 =25 м и коэффициентом фильтрации К0 =10-4 м/сут. Упругая водоотдача известняков =4*10-5 . Расстояние между скважинами 2, суммарный водоотбор Qсум =8000м3 /сут. Радиус фильтра скважины r0 =0.15м, длина фильтра l0 =15м. Фильтр расположен в средней части пласта. Избыточный напор над кровлей известняков Н=25 м.

Необходимо определить: время наступления стационарного режима фильтрации в скважинах, величину сработки уровня и остаточный напор.

Решение:

Определим радиус кольцевого водозабора:

R0 ==

Оценим величину параметра перетекания по формуле:

В=7071м

Величина радиуса контура питания:

Rk =1.12*B=1.12*7071=7919.5м

Условие ri k соблюдается

Величина пьезопроводности известняков:

а# = м2 /сут

Стационарный режим наступит через время :

tс ==31 сут

Величину понижения уровня в совершенной скважине определим по формуле:

S=

S=+*

Величину сопротивления, учитывающего несовершенство скважин, определяем по графику:

=

нс =8 , тогда дополнительное понижение за счет несовершенства определим по формуле:

м

А общее понижение уровня :

S=23.9+6.37=30.27м

Остаточный напор над кровлей отсутствует.

Понижение ниже кровли :

25-30.27=-5.27 м , что сопоставимо с .

Задача 3

Водоносный горизонт мощностью 40 м приурочен к водоносным аллювиальным пескам с коэффициентом фильтрации К=15 м/сут, водоотдачей 0.05. На расстоянии d=300 м от уреза реки эксплуатируются две скважины с расходами Q1 =1500 м3 /сут и Q2 =1000 м3 /сут, расположенные на расстоянии 2 друг от друга. Радиус фильтра скважин r0 =0.1м. Определить: понижение уровня в скважине 2 на моменты времени 1;3;10;100 и 500 суток. Качественно описать развитие понижения во времени. Построить график S-. Графически сравнить полученные результаты с понижением уровня в неограниченном пласте.


Решение:

Определим величину уровнепроводности пласта:

а = = =12000 м2 /сут

Понижение в скважине 2 будет формироваться под воздействием четырех скважин: двух реальных и двух отображенных. Определим расстояние до каждой из них.

До скв1: r1 =2 250м; до скв 2: r2= r0 ;

По теореме Пифагора:

=

До отображенной скв 2:

Используя формулы:

rкв ;

t;

Т =;

Определим начало влияния каждой скважины на формирование понижения в скважине 2 и время наступления квазистационарного режима от влияния каждой скважины. Вычисления сводим в таблицу 1

Таблица 1

Номер скважины tвл , сут tкв ,сут
1

2

1/
2/

Для t= 1сут согласно таблице 1 ,учитывается влияние скважины 1, однако ее режим неустановившийся:

S0 =

S0 =

Для t=3 сут, согласно таблице 1, учитывается влияние скважины 1 и скважины 2/ , но режим неустановившийся. С учетом того что имеем расчетную схему в виде реки (Н=const), то отображенная скважина задается как нагнетательная (-Q0 ),тогда:

S0 =

S0 =2.27 м

Для t= 10 сут учитывается влияние скважин 1 , 1/ ,и 2/ , но режим неустановившийся:

S0 =

S0 = =2.38 м

Для t=100 сут учитывается влияние всех скважин при этом режим во всех скважинах квазистационарный , тогда:

Расчет для t=500 суток аналогичен расчету при t=100сут так как режим квазистационарный, а центральная скважина еще раньше выходит на стационарный режим, что связано с границей постоянного напора.

Отразим полученные результаты расчетов на графике и убедимся, что график для схемы неограниченного пласта является медианным по отношению к схемам полуоткрытого и полузакрытого пласта.

Задача 4

Водозабор из двух скважин работает в напорном, неограниченном в плане пласте известняков с К= 25 м/сут, мощностью m=30 м ,упругой водоотдачей 10-4 . Остаточный напор на начало эксплуатации Н=20 м . Расходы скважин изменяются во времени. Первые t1 =700 сут , 1 скв эксплуатируется с расходом м3 /сут, а скв 2- м3 /сут; затем 2000 м3 /сут; м3 /сут. Скважины расположены на расстоянии 2друг от друга. Скважины совершенные по степени вскрытия пласта, r0 =0.1м.

Определить понижение уровня в СКВ 2 спустя t=1500 сут после начала работы этой скважины.


Решение:

График изменения дебита взаимодействующих водозаборных скважин

Определим величину пьезопроводности пласта:

а# = м2 /сут

Найдем время наступления квазистационарного режима по формуле:


Т.е к расчетному периоду, режим можно считать квазистационарным и используя формулы имеем:

S2 =

S2 =

Т.е меньше остаточного напора.

Задача 5

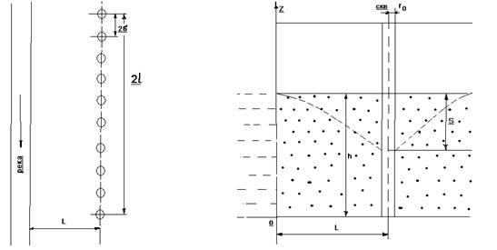
Водозаборный ряд из n = 10 скважин эксплуатирует с суммарным расходом Qсум = 20000 м /сут грунтовые воды в долине реки с совершенным врезом. Водоносный горизонт приурочен к аллювиальным пескам. Мощность обводненной толщи hе = 40 м, коэффициент фильтрации k=20 м/сут, водоотдача μ= 0,2. Расстояние между скважинами в ряду составляет 2σ=200м. Оценить время наступления стационарного режима фильтрации. Определить понижение уровня в центральной скважине, радиус фильтра которой ro =0,1м. Скважина совершенная. Рассмотреть два варианта размещения водозабора относительно реки: параллельно урезу на расстоянии L1 =300м и L2 = 1200м от него.


Решение:

1 Определяем величину коэффициента уровнепроводности

а==

Время наступления стационарного режима фильтрации для обоих вариантов размещения водозабора составит:

по первому варианту

tc = =сут,

по второму варианту

tc = =3600сут.

2. Определяем величину понижения уровня в скважине водозабора при его размещении в L1 =300 м от уреза реки. Учитывая, что длина ряда 2l=2σ·n=200·10=2000 м и L1 <l, воспользуемся формулой (7.15)

Так как S<0,25hе (6.1<10,0), данное решение не подлежит корректировке.

3. Определяем величину понижения уровня в скважине водозабора при ее размещении на расстоянии L2 =1200 м от уреза реки. Учитывая что, L2 > l , можем воспользоваться методом обобщенных систем, используя формулы:

S=Sw +ΔSСКВ ;

Sw =;

ΔSСКВ =;

Rw =

rn =

Отметим, что полученное решение будет справедливо для периода эксплуатации водозабора, превышающего время наступления стационарного режима, т.е. tпрог >3600 сут. Предварительно схематизируем пласт как неограниченный, принимая Rk = 2L, тогда Rотобр =0.

Sw =

ΔSСКВ =

Суммируя получим:

S=8.63 м

Так как S> 0,25hе , переходим к расчету для грунтовых вод, составляя квадратное уравнение:

2*mSн =(2he -S)*S

2*40*8.36=2*40S-S2 ; S2 -80S+668.8=0;

откуда определяем понижение в грунтовых водах:

S=40-=9.48 м.

Задача 6

Песчаный карьер имеет размеры b х L равные 600 х 1200 м. По контуру карьера пробурены скважины с шагом 2σ =300 м, из которых осуществляется водоотбор с целью водопонижения с расходом Qо =1200м3 /сутиз каждой скважины. Водоносный горизонт заключен в песках и имеет мощность hе =40м. Коэффициент фильтрации песков k=10 м/сут, водоотдача μ=0,1. Определить величину понижения уровня под карьером и в скважинах, имеющих радиус фильтра ro =0,1м. Скважины совершенные. Продолжительность разработки карьера t=5 лет.


Решение:

1. Определим количество скважин по контуру карьера:

n=

Суммарный водоотбор равен:

Qсум =n*Q0 =12*1200=14400 м3 /сут

2. Величина коэффициента уровнепроводности пласта:

а= м2 /сут

Проверяем условии:

R0 ==479 м.

что меньше расчетного срока в 1825 сут.

Это означает наступление квазистационарного режима фильтрации к этому времени по всему водозабору, что позволяет использовать для его расчета метод обобщенных систем.

4. Так как режим фильтрации квазистационарный, определим величину понижения уровня под карьером по формулам:

Sw =;

Rw =;

rпр =R0 ;

Sw =

Дополнительное понижение в скважинах определим по формулам:

ΔSСКВ =;

rn =

ΔSСКВ =;

Общее понижение в скважине равно:

S=Sw + ΔSСКВ =12.26+1.48=13.74 м.

Так как S>0.25he , то переходим к расчету для грунтовых вод:

(2he -S)S=2*40*13.74; S2 -80S+1099.2=0;

S=40- =17.6м.

Оценить/Добавить комментарий
Имя
Оценка
Комментарии:
Делаю рефераты, курсовые, контрольные, дипломные на заказ. Звоните или пишите вотсап, телеграмм, вайбер 89675558705 Виктория.
09:43:48 20 октября 2021
Привет студентам) если возникают трудности с любой работой (от реферата и контрольных до диплома), можете обратиться на FAST-REFERAT.RU , я там обычно заказываю, все качественно и в срок) в любом случае попробуйте, за спрос денег не берут)
Olya21:19:42 25 августа 2019
.
.21:19:41 25 августа 2019
.
.21:19:40 25 августа 2019
.
.21:19:39 25 августа 2019

Смотреть все комментарии (14)
Работы, похожие на Контрольная работа: Водозаборные скважины

Назад
Меню
Главная
Рефераты
Благодарности
Опрос
Станете ли вы заказывать работу за деньги, если не найдете ее в Интернете?

Да, в любом случае.
Да, но только в случае крайней необходимости.
Возможно, в зависимости от цены.
Нет, напишу его сам.
Нет, забью.



Результаты(286342)
Комментарии (4153)
Copyright © 2005-2021 HEKIMA.RU [email protected] реклама на сайте