ФЕДЕРАЛЬНОЕ АГЕНТСТВО
ПО ОБРАЗОВАНИЮ
Брянский Государственный
Технический Университет
Кафедра: “БЖД”
Расчетно-графическая работа №2
“Расчёт искусственного освещения по методу светового потока”
Вариант №4
Студент гр. 03-В
Козин В.А.
Преподаватель
Зайцева Е.М.
Брянск 2006
Содержание
1. Теоретическая часть. 3
2. Расчет по методу коэффициента использования. 6
3. Результаты расчета. 10
Приложения…………………………...………………………………………..11
Каждое производственное помещение должно иметь искусственное освещение, удовлетворяющих ряду основных требований:
-освещенность рабочих поверхностей в соответствии с установленными требованиями;
-отсутствие на рабочей поверхности резких теней;
-отсутствие в поле зрения прямой и отраженной блескости;
-необходимый спектральный состав света;
-обеспечение аварийного освещении (при необходимости).
Искусственное освещение бывает двух видов: общее и комбинированное.
Комбинированное освещение рекомендуется там, где нужна высокая точность выполняемых работ, где возникают специфические требования к освещению, где оборудование создает глубокие, резкие тени или рабочие поверхности расположены вертикально (штампы, гильотинные ножницы), а также там, где на различных рабочих местах производственного помещения требуется различная (резко отличающаяся) величина освещенности.
Система общего освещения может быть рекомендована в помещениях, где по всей площади выполняются однотипные работы (в литейных цехах), а также там, где создание местного освещения затруднительно.
Для обеспечения наиболее благоприятного соотношения яркости в поле зрения при комбинированном освещении светильники общего освещения должны создавать на рабочей поверхности не менее нормируемой освещенности.
Наряду с рабочим освещением в соответствии со СНиП в производственных помещениях может быть предусмотрено аварийное освещение для эвакуации работающих и аварийное освещение для продолжения работ.
Аварийное освещение для эвакуации работающих из помещений при отключении рабочего освещения должно создавать в линии основных проводов на уровне пола освещенность не менее 0,5лк, а на открытых территориях – не менее 0,25лк.
Аварийное освещение для продолжения работ следует предусматривать, если отключение рабочего освещения и связанное с этим нарушение нормального обслуживания оборудования механизмов может вызвать:
-взрыв, пожар, отравление людей;
-длительное нарушение технологического процесса;
Электрическое освещение производственных помещений может быть рассчитано по одному из трех методов: по величине удельной мощности освещения, по методу коэффициента использования и по точечному методу; применение каждого обусловливается видом рассчитываемого освещения и требуемой точностью расчета.
Первый из названных методов является менее трудоемким, но и наименее точным и поэтому применяется только при предварительных ориентировочных расчетах, а также может служить целями проверочных расчетов существующих систем освещения.
Метод коэффициента использования (метод светового потока) применяется для расчета общего равномерного освещения производственных помещений средней высоты при условии равномерного расположения светильников. Данный метод позволяет рассчитать усредненное значение освещенности по всей рабочей площади и поэтому непригоден для расчета местного освещения. При этом методе учитывается отражательная способность стен и потолка помещения.
Точечный метод (метод силы света) применяется для расчетов всех видов освещения: общего, местного, локализованного, наружного; он применим для расчета освещенности любой точки, при любом положении поверхности, на которой лежит заданная точка, и при любом расположении светильников.
Помимо универсальности этот метод является наиболее точным, недостатком его является большая трудоемкость по сравнению с остальными.
2.
Расчет по методу коэффициента использования
Таблица 1
Исходные данные
| Освещенность Е, лк |
200 |
| Размеры помещения a×b , м |
54×24 |
| Расчетная высота подвесного светильника hp , м |
6 |
| Тип светильника |
РСП05/Г03 |
| Тип лампы |
Газоразрядные ДРЛ |
| Коэффициент запаса k |
1,5 |
| Коэффициент неравномерности освещения z |
1,2 |
Решение
1) Определяем максимальное расстояние между светильниками по выбранному типу светильника и рекомендуемым соотношениям расстояний между светильниками и высотой подвеса
м,
где λ = 0,8 для светильников с лампами ДРЛ [прилож., табл. 1].
2) Определяем расстояние от стены до первого ряда светильников при отсутствии рабочих мест
м.
3) Определяем общее количество рядов по ширине
ряда
Принимаем количество рядов по ширине n
Ш
= 6
Определяем общее количество рядов по длине
рядов
Принимаем количество рядов по длине n
Д
= 12.
4) Определяем общее количество светильников, которое необходимо разместить в помещении
.
5) Определяем показатель помещения
.
6) Определяем расчетный световой поток одной лампы
лм,
где x
- число источников света в светильнике;
n
И
= 0,69 - коэффициент использования светопотока [прилож., табл. 2].
Данный световой поток может обеспечить лампа ДРЛ-125 с Ф
= 5600 лм [прилож., табл. 3].
Определяем отклонение 
< 20%.
7) Определяем расчетное число светильников
.
Принимают число светильников n
= 60.
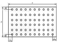
Располагаем их в соотношении 6 10.
8) Определяем мощность системы:
.
Вариант №2
Выбираем лампу ДРЛ-80 с Ф
= 3200 лм.
Определяем расчетное число светильников с учетом выбранной лампы:
.
Принимаем число светильников n
= 104 и располагаем их в соотношении 8 13.
Определяем отклонение 
< 20%.
Определяем мощность системы:
.
Вариант №3
Выбираем лампу ДРЛ-250 Ф
= 11000 лм.
Определяем расчетное число светильников с учетом выбранной лампы:
.
Принимаем число светильников n
= 32 и располагаем их в соотношении 4 8.
Определяем отклонение 
>-10%.
Определяем мощность системы:
.
Таблица 2
Варианты расчетов
№
вар.
|
Число ламп |
Световой поток лампы, лм |
Отклонение от , % |
Тип и мощность
ламп, Вт
|
Полная мощность системы, кВт |
| Расчетное |
Принятое |
| 1 |
60 |
4696 |
5600 |
19 |
ДРЛ-125; 125 |
150 |
| 2 |
104 |
- |
3200 |
- |
ДРЛ-80; 80 |
166.4 |
| 3 |
32 |
- |
11000 |
- |
ДРЛ-250; 250 |
160 |
Вывод:
Наиболее оптимальным вариантом является 1-й вариант, так как система потребляет меньше электрической энергии, чем в других 2-х вариантах.
Схемы размещения светильников

Приложение


|